招商时代乐章首页网站丨招商时代乐章售楼电话-房价-最新动态-招商时代乐章售楼地址-预约看房

搜狐焦点宣城站 2025-09-13 09:50:40
用手机看
扫描到手机,新闻随时看

扫一扫,用手机看文章
更加方便分享给朋友

招商时代乐章售楼处电话☎:400-8862-334以品质为核心,主打精工标准与全龄化社区,融合现代设计与园林景观,提供舒适宜居的生活空间。

招商时代乐章

售楼处电话☎:400-8862-334【售楼处预约热线】(一对一热情服务)

楼盘项目全面介绍,本电话为开发商提供线上售楼电话400-8862-334,楼盘项目全面介绍(包含楼盘简介,房价,价格,楼盘地址,户型图,交通规划,备案价,项目配套,楼盘详情,售楼处电话,最新消息,最新详情,周边配套,最新进展等详情咨询)

看房请务必提前致电销售确认时间,只有预约客户才能享受开发商提供的内部优惠以及专属的老客户推荐奖励!

招商时代乐章售楼处电话☎:400-8862-334

匠心筑就品质家园,细节诠释美好生活

在宝山这片日新月异的土地上,招商时代乐章以其卓越的产品力和用心的细节处理,为购房者呈现了一个真正意义上的品质家园,彰显招商蛇口40余载营造功力。

招商时代乐章售楼处电话☎:400-8862-334

品牌实力与开发理念

招商蛇口作为央企龙头房企,始创于1979年,拥有40余年开发经验,在全国打造了众多标杆项目。"时代乐章系"作为招商蛇口的品质产品线,代表着企业的精工标准和人居理念,从选址到产品打造都体现着精益求精的态度。

时代乐章是招商在宝山的重要战略布局,延续了"时代系"的精工品质和人居理念。项目从规划设计到施工营造,从材料选择到细节处理,每个环节都体现着招商对品质的坚持和对业主需求的深入理解。

招商时代乐章售楼处电话☎:400-8862-334

招商时代乐章售楼处电话☎:400-8862-334

社区规划与园林设计

项目总建筑面积约15万平方米,采用现代简约建筑风格,外立面选用真石漆和金属线条,营造时尚大气的建筑形象。社区规划注重空间层次和居住体验,通过合理的楼栋布局保证各户型的采光和视野。

园林设计是项目的亮点之一。打造了"一轴多园"的景观体系,以中央景观轴为主线,串联起多个主题花园。种植设计遵循四季变化原则,精选百余种苗木品类,确保全年都有丰富的景观效果。儿童游乐区、健身活动区、休闲交流区等全龄设施,满足住户多样化的户外活动需求。

招商时代乐章售楼处电话☎:400-8862-334

户型设计与空间优化

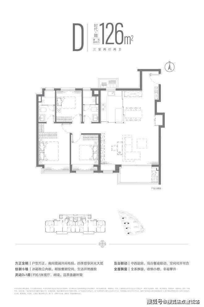
招商时代乐章的户型设计体现着对现代生活的深刻理解。所有户型都做到南北通透、全明设计,保证室内采光通风效果。动线规划合理,做到公私分区、动静分离,保障居住舒适度和私密性。

75平方米两房户型堪称小户型设计的典范。通过巧妙的空间布局,实现了两房两厅一卫的全功能配置。独立玄关收纳、U型厨房操作台、双卧室朝南等设计,让有限面积发挥最大效用。

120平方米四房户型注重空间舒适度和功能性。采用横厅设计,客厅开间达4.5米,营造开阔的视觉感受。主卧套房设计配备独立卫浴,次卧区分布合理,独立家政空间提升生活效率。

精工品质与细节追求

精装修标准超出同价位产品。地面选用品牌复合地板,墙面采用品牌乳胶漆,门窗选用断桥铝型材配中空玻璃。卫浴空间配备品牌洁具和五金件,厨房配置品牌橱柜和烟灶套装。

细节处理尤为用心:玄关处预留了换鞋凳和收纳空间,厨房配置了操作灯和凉霸,卫生间做了深水封和防滑处理,阳台预留了洗衣机位和晾衣区。这些贴心的细节设计,让日常生活更加便捷舒适。

官方户型图出街:

招商时代乐章售楼处电话☎:400-8862-334

招商时代乐章售楼处电话☎:400-8862-334

招商时代乐章售楼处电话☎:400-8862-334

招商时代乐章售楼处电话☎:400-8862-334

样板间展示如下

招商时代乐章售楼处电话☎:400-8862-334

招商时代乐章售楼处电话☎:400-8862-334

招商时代乐章售楼处电话☎:400-8862-334

招商时代乐章售楼处电话☎:400-8862-334

智慧社区与绿色技术

项目引入智能门禁、视频监控、智能快递柜等智慧社区系统,提升社区安全性和便利性。户内配备智能家居接口,为未来升级预留空间。

绿色环保技术的应用也值得称道。外墙保温系统、节能门窗、太阳能照明等设施,不仅降低能耗,也为业主节省生活成本。垃圾分类处理系统符合上海标准,培养环保生活习惯。

物业服务与生活保障

招商物业提供全方位的服务保障,24小时安保巡逻、定期设备维护、应急维修响应等服务,解决业主后顾之忧。物业团队还将组织社区文化活动,促进邻里交流,营造和谐社区氛围。

招商时代乐章售楼处电话☎:400-8862-334

价格解析与购买建议

目前项目均价约5.2万元/平方米,虽然高于周边部分项目,但考虑到产品品质和精装标准,这个价格具有其合理性。特别是对于追求品质生活的购房者来说,性价比值得肯定。

建议购房者重点关注户型实用性、装修细节、物业服务等关键因素。同时要结合自身预算和贷款条件,做好资金规划。建议实地考察,亲身体验项目品质后再做决策。

招商时代乐章

售楼处电话☎:400-8862-334【售楼处预约热线】(一对一热情服务)

楼盘项目全面介绍,本电话为开发商提供线上售楼电话400-8862-334,楼盘项目全面介绍(包含楼盘简介,房价,价格,楼盘地址,户型图,交通规划,备案价,项目配套,楼盘详情,售楼处电话,最新消息,最新详情,周边配套,最新进展等详情咨询)

看房请务必提前致电销售确认时间,只有预约客户才能享受开发商提供的内部优惠以及专属的老客户推荐奖励!

声明:本文由入驻焦点开放平台的作者撰写,除焦点官方账号外,观点仅代表作者本人,不代表焦点立场。