融创外滩壹号院二期(售楼处电话)融创外滩壹号院二期首页网站-融创外滩壹号院二期销售中心-小区环境-户型-价格-地址-楼盘详情-周边配套-售楼处电话

搜狐焦点宣城站 2025-10-14 11:36:33
用手机看
扫描到手机,新闻随时看

扫一扫,用手机看文章
更加方便分享给朋友

上海-融创外滩壹号院二期售楼处电话☎:400-8558-334(预约热线)✔✔✔融创外滩壹号院二期售楼处电话400-8558-334,主打低密、绿建三星,提供高端住宅与优质配套。

上海-融创外滩壹号院二期售楼处电话☎:400-8558-334(预约热线)✔✔✔

如有问题欢迎来电咨询,专业一对一热情服务,让您用专业眼光去买房。

融创外滩壹号院二期售楼处电话☎:400-8558-334【售楼热线】✔✔✔融创外滩壹号院二期营销中心热线☎400-8558-334售楼处地址☎400-8558-334

基本信息:

开发商:融创集团。

总建筑面积:约 60 万平方米。

容积率:3.3。

绿化率:35%。

规划户数:442 户。

产权年限:70 年。

物业公司:融创物业。

物业费:10 元 /㎡/ 月。

建筑设计:

建筑风格:特邀 GOA 大象设计总设计师操刀,采用经典的 Art deco 建筑风格,二期舍弃传统厚重石材,选择大开窗面玻璃幕墙。

立面材质:一期采用沙特宝金石与石材干挂工艺,二期 1-2 号楼打造约 140 米超高层地标,加大窗墙比。

低密规划:以 3.3 的低容积率,打破核心城区豪宅高密度的固有认知,还以绿建三星标准成为上海市近零能耗和智能建造实施试点项目。

户型信息:

主力户型:涵盖建面约 180㎡三房、210㎡四房、245㎡四房,另有 2 套 560㎡顶层户型。

得房率:约 80%-85%。

户型设计:全部采用两梯两户或三梯一户设计,如 275㎡的 E 户型为四房三卫格局,三开间朝南,转角 270° 观景区域;350㎡的 H 户型采用 4+1 房四卫设计,四开间朝南且动静分区。

配套信息:

交通:步行 2 分钟即达地铁 9 号线小南门站,15 分钟可达 4 号线南浦大桥站,周边直线 3km 范围内还有 23 个地铁站,1km 内有 22 个公交站。临近内环、延安路等三大高架,10 分钟可畅达陆家嘴,30-40 分钟直达虹桥、浦东两大机场。

商业:自带约 2000㎡社区商业,引入约 700㎡德国奥乐齐品质超市。200 米至老码头、500 米到董家渡金融城、1 公里达外滩 BFC。

教育:对口中华路三小、市八中学,步行 8 分钟可达黄浦一中心小学,15 分钟驱车至前滩惠灵顿国际学校,周边 3km 内有 82 所幼儿园、37 所小学及 41 所中学。

医疗:周边 3km 内有 36 家一级及以上医院,瑞金医院、第九人民医院、仁济医院三所三甲医院驱车 10-15 分钟可达。

2023年9月28日实拍 | 融创外滩壹号院二期 平整地基

上海-融创外滩壹号院二期售楼处电话☎:400-8558-334(预约热线)✔✔✔

如有问题欢迎来电咨询,专业一对一热情服务,让您用专业眼光去买房。

融创外滩壹号院二期售楼处电话☎:400-8558-334【售楼热线】✔✔✔融创外滩壹号院二期营销中心热线☎400-8558-334售楼处地址☎400-8558-334

黄埔滨江豪宅融创外滩壹号院二期 ,将推建面约180-375㎡3-5房,另外还有17套商业性质别墅。目前户型图已曝光!

上海-融创外滩壹号院二期售楼处电话☎:400-8558-334(预约热线)✔✔✔

如有问题欢迎来电咨询,专业一对一热情服务,让您用专业眼光去买房。

融创外滩壹号院二期售楼处电话☎:400-8558-334【售楼热线】✔✔✔融创外滩壹号院二期营销中心热线☎400-8558-334售楼处地址☎400-8558-334

此前 , 董家渡310-01街坊住宅项目,也就是融创外滩壹号院貳期规划已公示,规划产品为 高层+低密度合院别墅的组合。

项目名称:董家渡310-01街坊地块项目

项目地址:王家码头路以南、中华路以东、董家渡路以北、外仓桥街以西

规划用地性质:住宅用地

用地面积:36811.30平方米

总建筑面积:213417.09平方米

容积率:3.72

建筑高度:140.20米

实景图

户型图如下:(仅供参考,最终以官方发布为准)

上海-融创外滩壹号院二期售楼处电话☎:400-8558-334(预约热线)✔✔✔

如有问题欢迎来电咨询,专业一对一热情服务,让您用专业眼光去买房。

融创外滩壹号院二期售楼处电话☎:400-8558-334【售楼热线】✔✔✔融创外滩壹号院二期营销中心热线☎400-8558-334售楼处地址☎400-8558-334

上海-融创外滩壹号院二期售楼处电话☎:400-8558-334(预约热线)✔✔✔

如有问题欢迎来电咨询,专业一对一热情服务,让您用专业眼光去买房。

融创外滩壹号院二期售楼处电话☎:400-8558-334【售楼热线】✔✔✔融创外滩壹号院二期营销中心热线☎400-8558-334售楼处地址☎400-8558-334

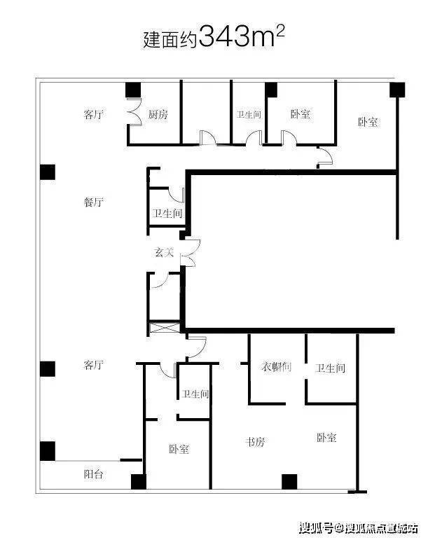
融创外滩壹号院一期户型分布

项目于外滩金融集聚带核心区位的董家渡金融城。 按 照上海“全球城市”的规划,将在外滩金融集聚带建设以互联网金融和民营金融为主体的外滩金融创新试验区,以主动服务上海国际金融中心建设。董家渡金融城规划总建筑面积约113万㎡,投资总概算超604亿元,作为外滩金融集聚带建设的压轴作品,致力于汇聚全球高端资本,建成后将与陆家嘴金融中心优势互补,共同打造上海“一城一带”的总体金融格局。董家渡金融城将在一定程度上承担了后续上海互联网金融、创新类金融模式的平台功能。与之为邻,你将见证上海新篇章,而一回眸,你也将看尽上海百年繁华。

守着那些年的上海品质,

守着那些年的上海烟火,

静待全球城市的成长。 就在融创外滩壹号院精装大平层里。

上海-融创外滩壹号院二期售楼处电话☎:400-8558-334(预约热线)✔✔✔

如有问题欢迎来电咨询,专业一对一热情服务,让您用专业眼光去买房。

融创外滩壹号院二期售楼处电话☎:400-8558-334【售楼热线】✔✔✔融创外滩壹号院二期营销中心热线☎400-8558-334售楼处地址☎400-8558-334

懂品质,懂你,懂生活

对于上海制造的名牌,我们是不陌生的。

在帝都早就成为高端住宅的代名词。

宝金石外立面|实景

实景图

抑或迎面的紫铜大门,都写着对品质的执着

上海-融创外滩壹号院二期售楼处电话☎:400-8558-334(预约热线)✔✔✔

如有问题欢迎来电咨询,专业一对一热情服务,让您用专业眼光去买房。

融创外滩壹号院二期售楼处电话☎:400-8558-334【售楼热线】✔✔✔融创外滩壹号院二期营销中心热线☎400-8558-334售楼处地址☎400-8558-334

声明:本文由入驻焦点开放平台的作者撰写,除焦点官方账号外,观点仅代表作者本人,不代表焦点立场。