上海万科高福云境售楼处电话→万科高福云境售楼中心楼盘测评→万科高福云境_预约看房电话

搜狐焦点宣城站 2025-09-16 09:18:11
用手机看
扫描到手机,新闻随时看

扫一扫,用手机看文章
更加方便分享给朋友

上海黄浦万科高福云境售楼处电话:400-877-8334【线上预约看房】提供285-600㎡大平层及450-600㎡别墅,均价22万/㎡,近13号线,主打高端精装住宅,线上预约看房。

上海黄浦万科高福云境售楼处电话:400-877-8334【线上预约看房】高福云境售楼处电话/地址:400-8778-334【开发商热线】高福云境售楼处营销中心电话☎:4008778334(官方售楼中心已认证√√)温馨提示:如有问题欢迎来电咨询,专业一对一热情服务,让您用专业眼光去买房,高福云境主推建面约285-600㎡超高层大平层及450-600㎡石库门别墅,均价22万/㎡(总价6270万起),近13号线淮海中路站,毗邻新天地、南京西路商圈,70年产权精装大平层,附线上官方预约通道【享】内部专属优惠折扣!

上海黄浦衡复顶豪「高福云境」126套276-600㎡大平层即将面世!5000万起!样板间实景首发!

黄浦衡复风貌区

「高福云境」

约320/600㎡样板房正式开放

一次性推出126套约276-600㎡大平层

本月即将入市

预计主力总价范围在5000万-1.7亿

套均接近9000万

上海黄浦万科高福云境售楼处电话:400-877-8334【线上预约看房】

上海黄浦万科高福云境售楼处电话:400-877-8334【线上预约看房】

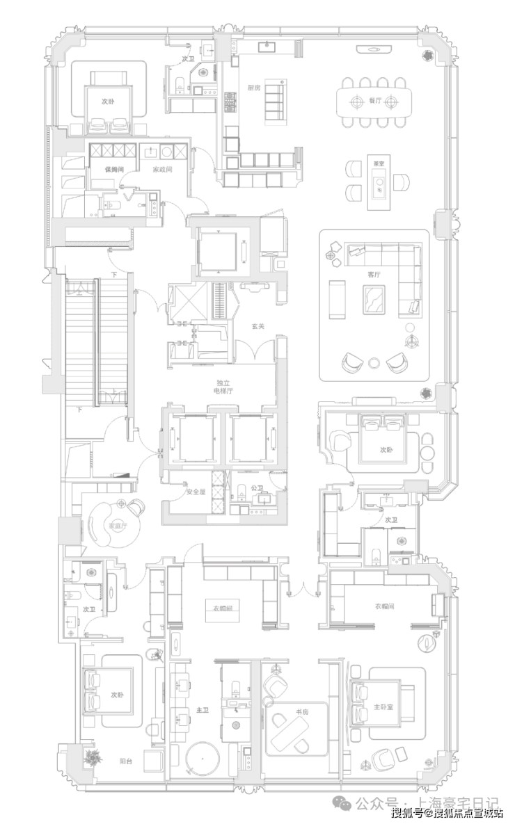
约600平方米过程户型图

(部分楼层平面略微不同)

上海黄浦万科高福云境售楼处电话:400-877-8334【线上预约看房】

约600㎡户型是6房带4套房,完整满足了居住在平层的所有功能空间需求。主卧套房,搭配有专属书房,总体空间接近150㎡,本身就是一间豪华公寓,同时带有男女主人双重衣帽间,是真正能够享受到别墅级的居住尺度。衣帽间、卫浴间、主卧都是肉眼可见的奢侈。

另一个样板房是约320平方米的中间套,采用两梯两户设计,独立门厅。

上海黄浦万科高福云境售楼处电话:400-877-8334【线上预约看房】

320㎡户型配备了单独带浴室的家政空间,可作为独立保姆间或是独立家政空间。高福云境的室内设计师1508London打造了许多国际知名的豪宅作品,包括海德公园一号(伦敦)、伦敦骑士桥豪华公寓、迪拜文华东方酒店、TheOWO私人住宅(伦敦)。

上海黄浦万科高福云境售楼处电话:400-877-8334【线上预约看房】

资料显示,007-01地块(大)拟建47栋3F多层住宅(包含部分底层商业)、1处幼儿园以及若干社区配套;将打造石库门风貌别墅产品。

上海黄浦万科高福云境售楼处电话:400-877-8334【线上预约看房】

007-01地块(小)拟建1栋43F超高层住宅以及若干社区配套,超高层无中小套户型要求,全装修比例为100%。

上海黄浦万科高福云境售楼处电话:400-877-8334【线上预约看房】

高福云境因为开发历程太过悠久,前期方案改了又改,按照目前公示的最新控规,将会保留全部石库门建筑,作为独栋及联排别墅,同时兴建一栋150米的超高层豪宅,成为浦西住宅的制高点之一。

2023年11月24日,上海市规划和自然资源局发布了一则《上海市黄浦区国有土地使用权协议出让公示》。地块名称:黄浦区瑞金二路街道007-1(部分)地块及007-4、007-6地下空间地块(高福里新增相邻地块)。

地块位置:东至延中公园、南至长乐路、西至瑞金一路、北至巨鹿路。本次公示的地块位于淮海中路黄金路段,直线距离约200米地铁13号线淮海中路站。

上海黄浦万科高福云境售楼处电话:400-877-8334【线上预约看房】

而在瑞金路淮海路路口,永业开发的龙凤商厦也已经封顶,未来会成为淮海路中段的最大商业体。

上海黄浦万科高福云境售楼处电话:400-877-8334【线上预约看房】

项目距离13号线淮海中路站非常近,与凯德茂名公馆一路之隔!

高福里规划控图:

黄浦衡复风貌区

「高福云境」

约320/600㎡样板房正式开放

一次性推出126套约276-600㎡大平层

预计8月底入市!

预计主力总价范围在5000万-1.7亿

套均接近9000万!

上海黄浦万科高福云境售楼处电话:400-877-8334【线上预约看房】高福云境售楼处电话/地址:400-8778-334【开发商热线】高福云境售楼处营销中心电话☎:4008778334(官方售楼中心已认证√√)温馨提示:如有问题欢迎来电咨询,专业一对一热情服务,让您用专业眼光去买房,高福云境主推建面约285-600㎡超高层大平层及450-600㎡石库门别墅,均价22万/㎡(总价6270万起),近13号线淮海中路站,毗邻新天地、南京西路商圈,70年产权精装大平层,附线上官方预约通道【享】内部专属优惠折扣!

声明:本文由入驻焦点开放平台的作者撰写,除焦点官方账号外,观点仅代表作者本人,不代表焦点立场。