森兰·航荟名庭(森兰·航荟名庭售楼处)首页网站-2025森兰·航荟名庭房价_楼盘评测丨地址丨详情丨森兰·航荟名庭售楼处电话丨楼盘百科

搜狐焦点宣城站 2025-10-09 09:36:55
用手机看
扫描到手机,新闻随时看

扫一扫,用手机看文章
更加方便分享给朋友

上海-森兰·航荟名庭售楼处电话☎:400-8558-334(预约热线)✔✔✔上海森兰·航荟名庭售楼处电话400-8558-334,位于浦东航头镇,主打90-136㎡三至四房,均价4.8万/㎡,精装交付,交通便利,配套完善,预计2026年6月交房。

上海-森兰·航荟名庭售楼处电话☎:400-8558-334(预约热线)✔✔✔

如有问题欢迎来电咨询,专业一对一热情服务,让您用专业眼光去买房。

森兰·航荟名庭售楼处电话☎:400-8558-334【售楼热线】✔✔✔森兰·航荟名庭营销中心热线☎400-8558-334售楼处地址☎400-8558-334

基本信息:

开发商:上海外高桥集团股份有限公司。

位置:上海市浦东新区航头镇航圆路 977 弄(海洲幼儿园东北侧约 70 米)。

产权年限:70 年。

总占地面积:约 6.9 万平方米。

总建筑面积:约 15.9 万平方米。

容积率:1.5。

绿化率:35%。

总户数:1049 户。

建筑类型:12 栋 11-14 层小高层及 10 栋 7-8 层洋房。

户型信息:

主力户型:建面约 90-136㎡的 3-4 房。

户型特点:90㎡户型三开间朝南,配备 270° 观景阳台;136㎡户型四开间朝南,约 5.7 米面宽客厅,全卧飘窗设计,空间通透。户型设计合理,得房率高达 78%-80%。

价格信息:

均价:约 4.8 万元 /㎡。

总价范围:约 370 万 - 690 万。

配套信息:

交通:直线距离地铁 18 号线航头站仅约 500 米,步行 7 分钟可达。自驾出行紧邻沪南公路、S3 沪奉高速等主干道,30 分钟内通达张江、前滩等核心区域。

商业:自带约 1360㎡社区商业,1 公里内有苏航生活广场、农工商超市等,3 公里达周浦万达广场。

教育:邻近海洲幼儿园,周边还有明珠森兰小学、福山外国语小学森兰分校等优质学校。

医疗:与上海中医药大学附属龙华医院(三甲)直线距离仅 800 米。

交付信息:

交房标准:精装交付,配备东芝空调、威能壁挂炉、科勒卫浴、西门子厨电等一线品牌。

交房时间:预计 2026 年 6 月 30 日。

项目户型图如下:

A1户型森雅

建筑面积约90㎡三室两厅两卫

上海-森兰·航荟名庭售楼处电话☎:400-8558-334(预约热线)✔✔✔

如有问题欢迎来电咨询,专业一对一热情服务,让您用专业眼光去买房。

森兰·航荟名庭售楼处电话☎:400-8558-334【售楼热线】✔✔✔森兰·航荟名庭营销中心热线☎400-8558-334售楼处地址☎400-8558-334

装修标准:项目全屋配备东芝空调、威能两用壁挂炉;卫生间马桶、台盆、龙头皆选用科勒品牌;厨房燃气灶、油烟机选用老板品牌;开关插座皆来自西门子.

【产品规划】

项目整体规划南低北高,北侧沿街布置商业,打造7-8层洋房、10-14层小高层(无连廊),总价400万级,建筑面积约90-136㎡3-4房全龄精奢户型.

图丨航荟名庭效果图

森兰·航荟名庭以容积率1.5,规划约50000㎡森氧社区景观,融合简约现代的立面风格,兼具实用性于美观性,让森系生活的景观价值最大化.融合地方文化,打造形象IP森氧鸟,陪伴业主一起成长.

4图丨航荟名庭效果图

作为建筑最美丽的外衣,景观在每一个社区中有着举足轻重的作用.好的景观懂人的审美,亦懂将业主生活需求妥帖安放.

图|项目景观效果图

森兰·航荟名庭在设计构思上以“森氧社区”为主题,绿化以多植被覆盖形式营造出自然、舒适的空间,展现出新一代森氧社区的生态、活力、趣味、优雅等特征.

让自然融入生活,满足全家人的健康需求,深研业主的行为习惯和日常偏好,打造约50000㎡大盘景观空间,最大化软硬比,形成高覆盖率的森氧空间,以全龄景观社区,书写充满温度、阳光、鲜氧的幸福时光.

利用景观IP和轴线景观营造归家的尊贵仪式感.社区中轴之上,景观廊架作为户外会客中心,搭配绿植营造户外会客的静谧氛围.

图|项目效果图

入口景观由远及近,社区结合航头当地鹤文化主题,取羽翼舒展的设计语言,设置三条不同主题的林荫步道,200米银杏漫步道、100米乌桕林道、200米樱花步道,形成一条完整璀璨的绿林项链.

图|项目效果图

在悠闲的午后品一盏清茶,于浓阴绿影下倾耳聆听蝉鸣鸟叫,静享浪漫生活的闲情志趣.

上海-森兰·航荟名庭售楼处电话☎:400-8558-334(预约热线)✔✔✔

如有问题欢迎来电咨询,专业一对一热情服务,让您用专业眼光去买房。

森兰·航荟名庭售楼处电话☎:400-8558-334【售楼热线】✔✔✔森兰·航荟名庭营销中心热线☎400-8558-334售楼处地址☎400-8558-334

图|项目效果图

让建筑与自然和谐共生,在森兰·航荟名庭邂逅不经意的美好,是惬意岁月的安然,也是健康生活的仪式感.

图|项目效果图

对高品质生活的追求,打造“森系生活“住宅标杆,用有温度的全龄森氧社区,定制与家人的自然生活乐趣,还原健康美好生活的本真.

日前项目规划设计方案已公示,拟建12栋10-14F小高层住宅、10栋7-8F多层住宅、1栋8F保障房、2栋商业以及若干配套用房,可售住宅约954套!

项目效果图:

该项目将延续外高桥森兰品牌基因,秉持“生态、宜居”开发理念,打造高品质的“森系生活”,助力浦东城市更新.

社区整体规划为南低北高

【周边配套】

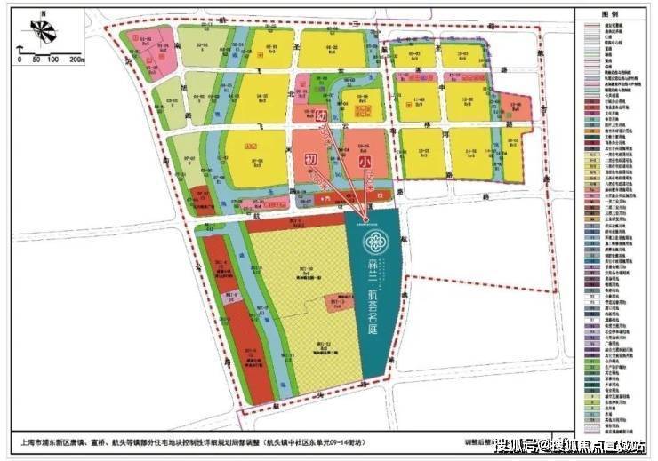
交通配套:直线距离18号线航头站仅约500米,完全可以实现步行进站!进站后7站即达中环御桥、11站可达内环龙阳路、15站来到陆家嘴金融城昌邑路.

示意图仅供参考

不只是地铁,项目周边还有4条主干道环绕,自驾通勤周浦康桥、前滩三林、北蔡花木、联洋碧云、张江等浦东上游板块同样迅捷无比!

商业配套:项目周边有上海苏航生活广场、咸塘小镇商业步行街,集中式大型商业有周浦万达广场、浦乐生活广场(在建中).

教育配套:项目隔壁就是海洲幼儿园,北面还有2块教育用地,可以说从幼儿园小学到初中的教育都近在咫尺.未来业主每天可步行接送孩子上下学,让孩子的成长之路更从容,也更安全.(免责声明:以上学校相关信息来自上海2035航头板块规划公示,仅供参考.不作学区承诺,对口信息以每年政府公示为准)

上海-森兰·航荟名庭售楼处电话☎:400-8558-334(预约热线)✔✔✔

如有问题欢迎来电咨询,专业一对一热情服务,让您用专业眼光去买房。

森兰·航荟名庭售楼处电话☎:400-8558-334【售楼热线】✔✔✔森兰·航荟名庭营销中心热线☎400-8558-334售楼处地址☎400-8558-334

声明:本文由入驻焦点开放平台的作者撰写,除焦点官方账号外,观点仅代表作者本人,不代表焦点立场。