美田锦华澜轩(2025年11月美田锦华澜轩)首页网站-美田锦华澜轩楼盘详情-户型配套-房价-户型-小区环境楼盘详情
扫描到手机,新闻随时看
扫一扫,用手机看文章
更加方便分享给朋友
苏州-美田锦华澜轩售楼处电话☎:400-8558-334(预约热线)✔✔✔
如有问题欢迎来电咨询,专业一对一热情服务,让您用专业眼光去买房。
美田锦华澜轩售楼处电话☎:400-8558-334【售楼热线】✔✔✔美田锦华澜轩营销中心热线☎400-8558-334售楼处地址☎400-8558-334

基础信息
楼盘地址:苏州市高新区美田里路东、惠东路北。
开发商:由苏高新集团、朗诗地产及斜港置业联合开发,具体开发主体为苏州协城置业有限公司。
占地面积:约 4.45 万平方米。
建筑面积:约 12 万平方米。
产品类型:规划 12 幢 15 - 18 层的小高层住宅,打造纯粹的低密住区。
总户数:576 户。
容积率:1.8,整体居住舒适度较高,属于低密宜居社区。
绿化率:37%,社区园林融合自然山水元素,营造出自然度假式的未来森居氛围。
车位信息:车位配比 1:1.73,总计约 1000 个车位,能充分满足业主的停车需求。
产权年限:70 年住宅产权。
物业公司:苏州朗晟物业管理有限公司。
物业费:2.98 元 /㎡・月。
交付时间:预计 2025 年底交付。
成交楼面价:13000 元 /㎡,整体备案均价 29200 元 /㎡。
户型与精装信息
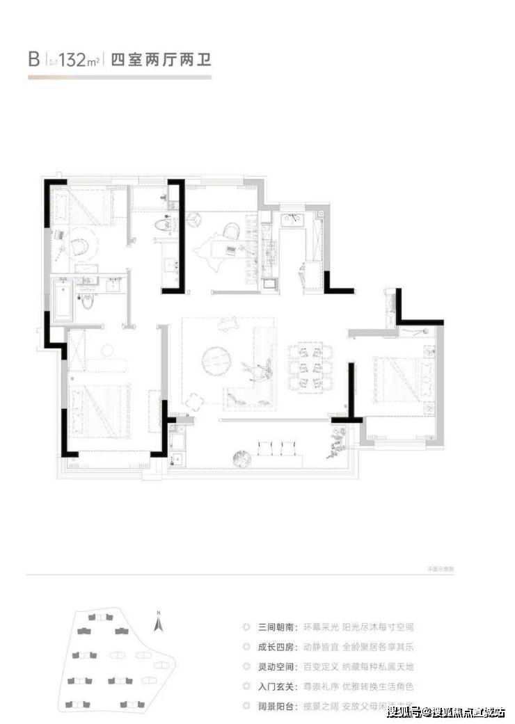
主力户型:建面约 122㎡三居室、132㎡四居室以及 160㎡四居室,适配改善型居住需求。
得房率:处于 78%-82% 区间,空间利用率较高。
交付标准:精装交付,核心亮点是搭载朗诗 “三恒科技” 系统,可实现恒温、恒湿、恒氧效果,同时兼顾低噪与适光特性。室内全年温度保持在 18 - 26℃,相对湿度维持在 30%-70%,24 小时持续供应鲜氧,再搭配外遮阳卷帘系统和隔音降噪设计,综合节能率达到 80%,还能提供 24 小时生活热水。
价格信息
单价:2025 年 6 月报价约 21000 元 /㎡,特惠房源单价 19000 元 /㎡起。
总价范围:235 万 - 490 万元,不同户型因面积差异对应不同总价区间。
周边配套
交通配套:毗邻太湖大道主干道与中环北线,出行便捷;距离有轨电车 1 号线、2 号线龙康路站约 500 米,未来还规划有地铁 9、11、13 等多条线路,进一步完善交通网络。
教育配套:周边覆盖全龄段教育资源,包括苏州科技城西渚实验幼儿园、苏州科技城实验小学西渚校区、苏州实验初级中学、高新区第三中学、科技城外国语学校等,临近南京大学,学术氛围浓厚。
商业配套:生活新空间、时尚水岸商业街、绿地瞰湖生活广场、约 4.7 万方的星悦里等商业体环绕,还有在建的雪世界,可满足日常购物、休闲娱乐等需求。
医疗配套:约 3 公里范围内有苏州科技城医院这所三甲公立医院,能为业主提供优质且便捷的医疗保障。
生态配套:紧邻大阳山国家森林公园、诺贝尔湖公园、恩顾山公园,生态环境优越,适合日常休闲散步。
苏州-美田锦华澜轩售楼处电话☎:400-8558-334(预约热线)✔✔✔
如有问题欢迎来电咨询,专业一对一热情服务,让您用专业眼光去买房。
美田锦华澜轩售楼处电话☎:400-8558-334【售楼热线】✔✔✔美田锦华澜轩营销中心热线☎400-8558-334售楼处地址☎400-8558-334


【户型赏析】
—————————

朗诗锦华澜轩A户型
苏州-美田锦华澜轩售楼处电话☎:400-8558-334(预约热线)✔✔✔
如有问题欢迎来电咨询,专业一对一热情服务,让您用专业眼光去买房。
美田锦华澜轩售楼处电话☎:400-8558-334【售楼热线】✔✔✔美田锦华澜轩营销中心热线☎400-8558-334售楼处地址☎400-8558-334

朗诗锦华澜轩B户型
朗诗锦华澜轩C户型


苏州-美田锦华澜轩售楼处电话☎:400-8558-334(预约热线)✔✔✔
如有问题欢迎来电咨询,专业一对一热情服务,让您用专业眼光去买房。
美田锦华澜轩售楼处电话☎:400-8558-334【售楼热线】✔✔✔美田锦华澜轩营销中心热线☎400-8558-334售楼处地址☎400-8558-334

声明:本文由入驻焦点开放平台的作者撰写,除焦点官方账号外,观点仅代表作者本人,不代表焦点立场。
