【保利·西郊和煦】2025首页网站|【保利·西郊和煦】售楼处欢迎您|【保利·西郊和煦】在售户型|楼盘详情|小区配套|最新价格|周边详情|容积率
扫描到手机,新闻随时看
扫一扫,用手机看文章
更加方便分享给朋友
保利·西郊和煦|领墅营销中心电话:400-8123-224✔✔
保利·西郊和煦|领墅售楼中心:400-8123-224✔✔
12号线旁,约1.01低密滨水墅
超1100m²煦·CLUB美学会客厅实景开放
保利·西郊和煦|领墅售楼处电话☎:400-8123-224✔✔欢迎来电咨询! (预约看房热线)可预约销售人员,专业一对一热情服务,让您用专业眼光去买房。
建面约139-145㎡精奢叠墅应市加推
建面约132-195m²滨水联排臻席不待
谨此68席爆款臻品
今日开启认购
保利·西郊和煦|领墅售楼处电话:400-8123-224✔✔(预约看房热线)
保利·西郊和煦|领墅营销中心电话:400-8123-224✔✔
保利·西郊和煦|领墅售楼中心:400-8123-224✔✔
从热领松江到冠领全市,保利·西郊和煦|领墅,自6月首开以来,以纯粹轨交墅区之姿,持续引领松江改善居住天花板。凭借过人的产品和超越业界的实景展示,领墅一举问鼎10月全市新房别墅市场销冠宝座!再度点燃市场热度,演绎何为现象级鼎流神盘。
此番收官钜献的五批次房源,作为项目压轴的超大联排户型KING195滨水联排惊艳归来,KINGSIZE美学样板同步问世,实景演绎何为千万级终极改善的天花板!保利·西郊和煦|领墅,不断超越自我,不断为市场注入惊喜,从焕新西郊的叠加新墅种到王炸级KING195的重磅归来,领墅不止打造产品,更在兑现理想生活的想象——这是一场合乎西郊终极改善的炽热奔赴,也是一次从“卷产品力”到“懂情绪价值”的全面升级。
01
领跑终极改善
放大更有想象力的墅居生活样板
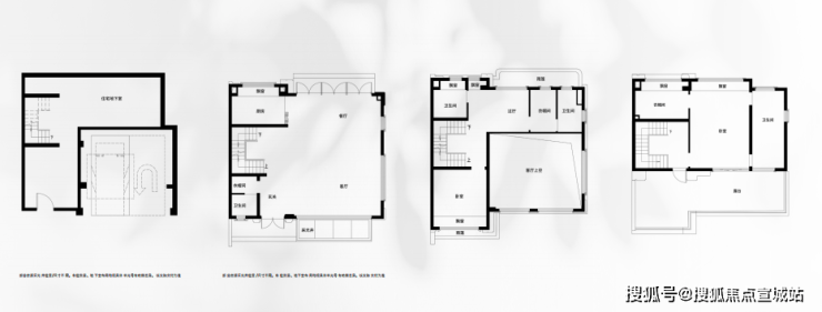
在寸土寸金的西郊,纯墅不再仅指向面积,而是关乎与自然共生的尺度与从容。五批次即将重磅加推的领墅KING195滨水联排,即将同步开放实景美学样板!透过现有的户型结构,我们不难看出保利发展对追求终极改善的圈层客群所放大的全景展示面:

保利·西郊和煦|领墅售楼处电话:400-8123-224✔✔(预约看房热线)
保利·西郊和煦|领墅营销中心电话:400-8123-224✔✔
保利·西郊和煦|领墅售楼中心:400-8123-224✔✔
一线滨水日常
天赋稀贵的圈层效应
放眼全市别墅新房市场,如果说约1.01的超低容积率,是领墅四开四捷冠领全城的诚意表达,那么环绕于KING195门前一线滨水景观的不可复制性,无疑就是纯粹圈层所梦寐以求的满分注脚。

推窗即见碧波荡漾、公园绿境,出门便是墅映塘前、亲水漫行。领墅KING195滨水联排依水而立,约1km双水岸围合确保了建筑与自然之间有足够的呼吸感,并使得每一户都能最大限度地私享这份宁静与开阔,诚如领墅建筑设计师所言——这正是城市墅居最动人的价值内核!
IMAX级引景入室
超长三开间的阳光叙事
作为领墅圈层争藏的“极少墅”,KING195户型最为动人的笔触,就在于南向约10米的三开间面宽。这绝非是数据的堆砌,而是一种拥抱自然的终极姿态。

保利·西郊和煦|领墅售楼处电话:400-8123-224✔✔(预约看房热线)
保利·西郊和煦|领墅营销中心电话:400-8123-224✔✔
保利·西郊和煦|领墅售楼中心:400-8123-224✔✔
客餐厅、南向次卧、独立主卧层层配享同等尺度面宽,充分将全天日照最大限度地纳入室内。巨幅落地玻璃窗如同取景框,将庭院绿意无缝衔接入内,最大化确保了每位家庭成员都能平等地享有阳光与观景的权利。
垂直生活聚场
功能与情感的立体编织
不光面宽尺度在遥遥领先于同类墅居市场,KING195的室内空间在垂直生活情境上也展现出精妙的演绎。地上三层与地下空间的组合,实现了功能上的彻底分离与情感上的紧密联结。

保利·西郊和煦|领墅售楼处电话:400-8123-224✔✔(预约看房热线)
保利·西郊和煦|领墅营销中心电话:400-8123-224✔✔
保利·西郊和煦|领墅售楼中心:400-8123-224✔✔

首层作为家庭的社交核心,客餐厅一体联通分而不离,可根据实际需要配置中西双厨空间;南北双向纯享独立花园,让室内空间充盈自然光合;

保利·西郊和煦|领墅售楼处电话:400-8123-224✔✔(预约看房热线)
保利·西郊和煦|领墅营销中心电话:400-8123-224✔✔
保利·西郊和煦|领墅售楼中心:400-8123-224✔✔

二层可实际家庭结构所需,可由心改造为多套房格局,满足多胎子女独立空间,构成专属的成长天地;


保利·西郊和煦|领墅售楼处电话:400-8123-224✔✔(预约看房热线)
保利·西郊和煦|领墅营销中心电话:400-8123-224✔✔
保利·西郊和煦|领墅售楼中心:400-8123-224✔✔
而顶层的主卧大套间,则是墅居生活的至高礼遇——它集步入式衣帽间、豪华卫浴,附带南向约40m²广角全景空中花园,成为一个兼具私密性与景观性的精神自留地。

负一层地下空间,层高达超5米,搭配多面采光井,可根据藏家实际需求随心百变!
同步加推的精奢叠墅预计总价700万级即可上车,全屋搭配控制面板,一键触控智能窗帘、灯光控制及空调、地暖、新风三大件,厨房配备老板13件套烹调、洁具,全屋配享品牌卫浴,敬请把握高质价比墅居最后上车机会。

保利·西郊和煦|领墅售楼处电话:400-8123-224✔✔(预约看房热线)
保利·西郊和煦|领墅营销中心电话:400-8123-224✔✔
保利·西郊和煦|领墅售楼中心:400-8123-224✔✔



保利·西郊和煦|领墅售楼处电话:400-8123-224✔✔(预约看房热线)
保利·西郊和煦|领墅营销中心电话:400-8123-224✔✔
保利·西郊和煦|领墅售楼中心:400-8123-224✔✔
02
全龄浸享聚场
为西郊焕新圈层向往的生活高度
从拿地到产品规划,领墅始终奉行保利发展的长期主义纲领:宁愿花更多时间打磨户型,也不将就“缩水设计”;宁愿选用更匹配西郊圈层客群的生活聚场,也不从众趋同,让会所成为社区的摆件。
已于8月重磅亮相的超1100m²煦·CLUB主体由围合下沉式庭院构成的全龄会客厅,以新盘罕有的「室内篮球场」、板块最全能的「阳光健身房」、睦邻有道的「独立棋牌室」+「茶道会馆」、独具格调的「圈层私宴厅」+「女王茶室」等全龄生活聚场,超越市场认识的维度和颠覆想象力的空间,为领墅预演出了浸享内外之间的「新浪漫主义」生活方式。
保利·西郊和煦|领墅售楼处电话:400-8123-224✔✔(预约看房热线)
保利·西郊和煦|领墅营销中心电话:400-8123-224✔✔
保利·西郊和煦|领墅售楼中心:400-8123-224✔✔
保利·西郊和煦|领墅售楼处电话:400-8123-224✔✔(预约看房热线)
保利·西郊和煦|领墅营销中心电话:400-8123-224✔✔
保利·西郊和煦|领墅售楼中心:400-8123-224✔✔
强势破圈的背后,是领墅的客户思维,即对改善客户生活需求的深度洞察和精准回应。通过多重生活场景的营造,为客户提供情绪价值!不同年龄段的人,在领墅,每个人都能找到适合自己的生活方式,每个人都能通过实景生活的预演,在煦·CLUB找到属于自己的志趣领地!
03
墅立生活坐标
放大纯粹墅居的低密舒适度
除了所见即所得的产品力,领墅自首开入市以来,为市场所称道的完善配套,也让“轨交墅区”成为项目另一大独墅一帜的市场符号! 项目近邻12号线同乐路站(在建),一脉徐家汇、淮海路、南京西路等核心CBD。配享生态科技城TOD约11万方云廊天街,组团洞泾未来湾TOD(规划)、刘五公路TOD(规划)3大TOD势能联动,咫尺松江万达广场、松江印象城、同乐生活广场等醇熟商圈,拥享城市“中心级”商业旗舰。
保利·西郊和煦|领墅售楼处电话:400-8123-224✔✔(预约看房热线)
保利·西郊和煦|领墅营销中心电话:400-8123-224✔✔
保利·西郊和煦|领墅售楼中心:400-8123-224✔✔
同时,作为上海近10年土拍容积率最低宅地之一,领墅同时还是罕见的「双面环水」滨水社区,西、北两侧拥有约1000米原生水岸+约20米宽生态河道+约270°广角河景,生态环境极佳。先天优势+后天规制,也意味着领墅为自然作出的退让,让项目可以拥有更多的空间去施展关于景观的抱负。
项目南北两侧设置有2个口袋公园,运动公园设有420m²标准篮球场等,休闲公园设有草坪露营区等。同时,项目利用滨水环绕的特点,在社区内部规划了“双轴五巷十园”的景观概念,针对不同年龄段客群的生活方式设计了专属空间,为业主带来尊崇感、仪式感兼备的归家体验。
写在最后
领墅四开四捷持续热销的背后,是市场对真正好房子的共同选择!
当行业仍在比拼户型、装标与配套时,领墅已跃升维度,以空间生命力、实景兑现力、低密吸引力三力合一,构筑难以复制的底层价值。无论是超越市场认知的别墅新形态、眼见为实的实景呈现,还是未来轨交低密墅区的持续潜力,放眼全上海,领墅皆难逢对手。
「保利·西郊和煦|领墅」
建面约132-195m²滨水联排
建面约139-145m²精奢叠加
五批次68套臻席纯墅
本周即将启动认购
保利·西郊和煦|领墅售楼处电话☎:400-8123-224✔✔欢迎来电咨询! (预约看房热线)可预约销售人员,专业一对一热情服务,让您用专业眼光去买房。
楼盘项目全面介绍,本电话为开发商提供线上预约售楼电话400-8123-224(已认证),楼盘项目全面介绍(包含楼盘简介,均价,房价,现房,期房,别墅,叠墅,大平层,价格,楼盘地址,户型图,交通规划,备案价,备案名,项目配套,样板间,开盘时间,认筹时间,楼盘详情,售楼处电话400-8123-224(已认证),最新消息,最新详情,周边配套,一房一价,最新进展等详情咨询400-8123-224(已认证))楼盘详情丨价格丨更多优惠丨机不可失丨欢迎致电丨诚邀品鉴!售楼处位置丨特价房丨工抵房丨剩余房源丨户型图丨最新消息丨免责声明:将文章内容综合来源于网络、只作分享,版权归原作者所有!!如有侵权,请联系我们,我们第一时间处理如有问题欢迎来电咨询,专业一对一热情服务服务热线:400-8123-224(已认证,让您用专业眼光去买房。如果您想了解更多楼盘详情,欢迎提前预约拨打服务热线:400-8123-224(已认证)
声明:本文由入驻焦点开放平台的作者撰写,除焦点官方账号外,观点仅代表作者本人,不代表焦点立场。
