越秀·外滩樾_越秀·外滩樾售楼处电话→越秀·外滩樾售楼中心电话→上海越秀·外滩樾楼盘详情→上海房天下
扫描到手机,新闻随时看
扫一扫,用手机看文章
更加方便分享给朋友
══上海虹口「越秀·外滩樾」══
越秀·外滩樾售楼处电话:400-8778-334
虹口越秀·外滩樾售楼处电话☎:400-877-8334【线上预约看房】越秀·外滩樾售楼中心电话/地址:400-8778-334【官方售楼中心已认证√√】最新进展:在售建面约238-338㎡海派风貌别墅,总价4500-8000万/套,均价约18万/㎡。项目位于虹口北外滩核心区,距外滩1公里,近地铁4/10/19号线海伦路站,主打48席低密院墅与历史风貌保护建筑!
温馨提示:如有问题欢迎来电咨询,专业一对一热情服务,让您用专业眼光去买房,附线上官方预约通道【享】内部专属优惠折扣!
北外滩传承私邸&越秀·外滩樾丨238㎡~338㎡海派风貌院墅,均价20万总价4000万起,预约参观可直接认购!
虹口北外滩低密风貌别墅
由越秀地产+临港集团联合打造
越秀临港虹口156街坊风貌别墅
【越秀·外滩樾】纯别墅社区
虹口越秀·外滩樾售楼处电话☎:400-877-8334【线上预约看房】
风貌之上世界堂前
建面约238㎡—338㎡
总价约4000-9000万
海派院墅三里外滩
立传别墅从你开启传承展厅已开放
70年产权住宅容积率:约1.3
MODELROOMRESERVATION
预约看实房
虹口越秀·外滩樾售楼处电话☎:400-877-8334【线上预约看房】
虹口越秀·外滩樾售楼处电话☎:400-877-8334【线上预约看房】
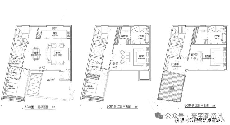
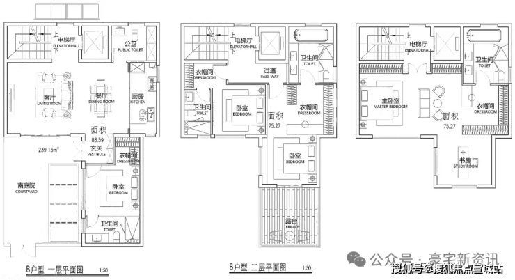
户型图如下:
(过程稿仅供参考,最终以实际为准)
236.25㎡A户型:

239.13㎡B户型:

239.13㎡B户型:

C户型:

291.42㎡D户型

虹口越秀·外滩樾售楼处电话☎:400-877-8334【线上预约看房】
【传奇的1.5公里启航外滩百年世界史】
项目所在地北外滩,是百年前上海的发源地。作为上海开埠后第一座码头的诞生地,北外滩率先“开眼看世界”,海纳万国文化风潮,众多此后影响中国的创举在此诞生,是上海最早的“十里洋场”。
虹口越秀·外滩樾售楼处电话☎:400-877-8334【线上预约看房】
【世界的1.5公里再立世界上海新传】
傲立“一江一河”交汇处(直线距离黄浦江约1km),未来将打造成为彰显上海城市核心竞争力的黄金水岸和具有国际影响力的世界级城市会客厅,出入之间,相逢城市高阶未来。
虹口越秀·外滩樾售楼处电话☎:400-877-8334【线上预约看房】
【上海新封面】黄金三角顶序规划
北外滩,与外滩、陆家嘴并称为上海的“黄金三角”。将以2座陆家嘴的商务体量规划,新天地2.0生活圈打造,成为上海跃升世界舞台的“中心发力”新引擎。
【经济中心】全球化核心腹地
北外滩总开发面积约840万方,自陆家嘴之后上海最大开发区域,未来将聚焦资产管理、金融科技、绿色航运等上游产业,打造“运作全球的总部城”。
虹口越秀·外滩樾售楼处电话☎:400-877-8334【线上预约看房】
【极核中心】顶奢商业新地标
约1.5KM内拥享北外滩商圈、外滩商圈、陆家嘴商圈,华贸奢侈品品牌之家、白玉兰广场等潮奢集萃,未来上海顶奢商业新地标,举步间繁华尽拥。
虹口越秀·外滩樾售楼处电话☎:400-877-8334【线上预约看房】
一城中轴半壁越秀:打造广州地标IFC、城建大厦、维多利广场、越秀金融大厦、财富广场、市长大厦、广州环贸中心(ICC)等诸多重量级作品。
全球地标打造者:广州国际金融中心(IFC)高约440.75米,建成之时为全球10大超高层建筑之一,获得国际建筑界奥斯卡“英国菜伯金奖”。(此外,中国仅北京“鸟巢”和上海世博会英国馆荣获该奖项。)
豪宅基因始终传承:打造“广州第一富人区”二沙岛,屹立广州顶豪之列,整个二沙岛9个项目,有7个项目都是越秀开发,其中越秀宏城花园单价25万-40万/㎡,总价1-6亿,一房难求。
风貌之上世界堂前
建面约238㎡—338㎡
总价约4500-9000万
海派院墅三里外滩立传别墅
70年产权住宅容积率:约1.3
从你开启传承
虹口越秀·外滩樾售楼处电话☎:400-877-8334【线上预约看房】越秀·外滩樾售楼中心电话/地址:400-8778-334【官方售楼中心已认证√√】最新进展:在售建面约238-338㎡海派风貌别墅,总价4500-8000万/套,均价约18万/㎡。项目位于虹口北外滩核心区,距外滩1公里,近地铁4/10/19号线海伦路站,主打48席低密院墅与历史风貌保护建筑!
温馨提示:如有问题欢迎来电咨询,专业一对一热情服务,让您用专业眼光去买房,附线上官方预约通道【享】内部专属优惠折扣!
楼盘项目全面介绍,本电话为开发商提供线上预约售楼电话,楼盘项目全面介绍(包含楼盘简介,均价,房价,现房,期房,别墅,叠墅,大平层,价格,楼盘地址,户型图,交通规划,备案价,备案名,项目配套,样板间,开盘时间,认筹时间,楼盘详情,售楼处电话,最新消息,最新详情,周边配套,一房一价,最新进展等详情咨询)楼盘详情丨价格丨更多优惠丨机不可失丨欢迎致电丨诚邀品鉴!售楼处位置丨特价房丨工抵房丨剩余房源丨户型图丨最新消息丨(温馨提示:本项目参观样板间采取预约制,为了不耽误您的行程,过来参观请提前来电进行预约看房或咨询项目详情)如果您想了解更多楼盘详情,欢迎提前预约拨打官方售楼处电话400-8778-334(已认证√√)
VIP贵宾置业〢欢迎来电咨询〢售楼处邀您品鉴!!
温馨提示:来电提前预约、尊享线上一对一热讲解【享】专属优惠折扣!
(温馨提示:本项目参观样板间采取预约制,为了不耽误您的行程,过来参观请提前来电进行预约看房或咨询项目详情)

免责声明:📍★温馨提示:由开发商旗下销售团队全程营销策划,房源信息真实有效!部分图片素材来自网络,如有侵权请联系小编删除,感谢支持!

★来电咨询了解楼盘最新动态、楼盘详情介绍,板块位置、小区环境、容积率,得房率,绿化率怎么样,最新一房一价表;房价折扣优惠、交房时间、周边商业配套;地铁交通距离、在售户型面积等相关信息!
一、前期准备
购房资格核查
沪籍家庭限购2套,单身限购1套;非沪籍需提供63个月内累计60个月社保/个税证明。
2024年新政放宽了部分区域限购,如临港新片区社保年限要求降低^^。
上海进一步优化房地产政策调整首套房、二套房首付比例及房贷利率
资金规划
首套房首付比例最低30%,二套普通住宅50%、非普通70%。
当前首套房贷利率3.4%,二套3.6%(2025年9月数据)。
二、选房与认购
关注土拍与楼盘信息
通过“上海土地交易市场”公众号获取土拍公告,规划方案可在上海市规资局官网查询3。
开发商拿地后3-4个月开放售楼处,建议通过官方渠道对接销售。
认购流程
需缴纳认购金(首套≥20%房款,二套≥30%),仅限储蓄卡支付。
提供身份证、户口本、婚姻证明、社保记录等材料进行限购审核。
三、积分与摇号
积分制规则
认筹比超1:1.3时触发积分,总分=基础分(家庭结构、户籍)+年限分(社保月数×0.1)。
入围后公证摇号,按顺序选房。
摇号选房
线上/线下两种方式,选房后需在约定时间内补首付并签贷款合同。
四、贷款与签约
贷款申请
需提供收入证明、银行流水、征信报告,公积金贷款需缴存证明5。
组合贷款需同步办理商业与公积金贷款^^。
合同签订
核对《商品房预售许可证》及一房一价表,首付款需打入资金监管账户。
五、交房与产权
验房收房
先验房再收房,重点检查房屋质量及配套设施。
产权办理
开发商需完成竣工备案后,方可办理产证,一般需3-6个月。
注意事项:
定金不超过20%,警惕开发商要求超额支付。
贷款未批复前勿支付首付,避免资金风险。
2025年9月起上海施行新住宅验收标准,关注套内质量细节^^。
声明:本文由入驻焦点开放平台的作者撰写,除焦点官方账号外,观点仅代表作者本人,不代表焦点立场。
