蓝城滨悦城首页网站-蓝城滨悦城售楼处电话-蓝城滨悦城楼盘详情-蓝城滨悦城地址位置-最新房价-户型图-小区环境-楼盘详情-交房时间-周边配套

搜狐焦点宣城站 2025-09-13 09:14:25
用手机看
扫描到手机,新闻随时看

扫一扫,用手机看文章
更加方便分享给朋友

蓝城滨悦城售楼处电话:400-8778-334蓝城滨悦城是杭州滨江区高端精装大平层,300-480㎡户型,绿化率25%,容积率3.5,含空中花园,物业费8元/㎡·月,已交付。

蓝城滨悦城:一层一天地户户大花园!国际滨300-480㎡豪装瞻江官邸!

══杭州滨江区「蓝城滨悦城」══

蓝城滨悦城售楼处电话:400-8778-334

售楼部官方电话|地址位置:400-8778-334【售楼中心官网已认证√√】

温馨提示:如有问题欢迎来电咨询➨提前预约开发商销售一对一热情讲解楼盘详情【享】内部专属房源限时优惠折扣!

蓝城滨悦城售楼处电话:400-8778-334

楼盘基本信息

开发商:蓝城集团×英冠集团联合开发

备案名:蓝城英冠·滨悦城

位置:杭州市滨江区国慷街与信诚路交叉口(距钱塘江岸200米)

物业类型:40年产权精装大平层(现房交付)

总建面:约11.7万㎡(含5幢高层公馆、1幢六星级写字楼及1万㎡商业综合体)

容积率:3.5 | 绿化率:25%

总户数:104户(一层一户)

交付时间:2023年6月(已交付)

物业费:8元/㎡·月(含能耗)

蓝城滨悦城售楼处电话:400-8778-334

产品信息

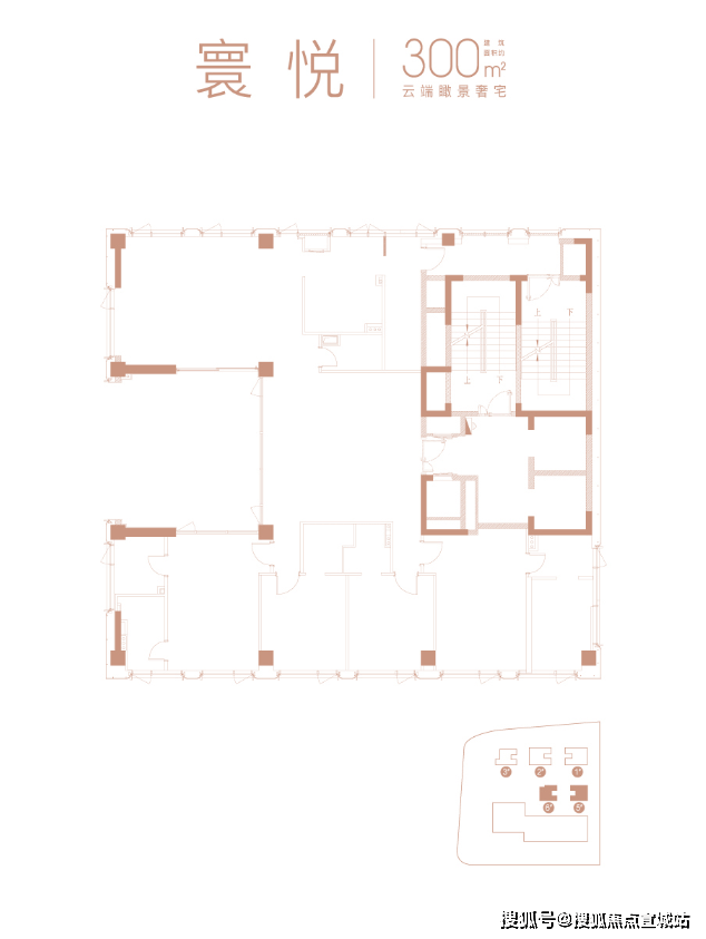
主力户型:

300㎡:三面采光大方厅,层高3.3米,总价约1100万-1800万

480㎡:双厅设计(约116㎡),层高4.1米,总价约1900万-2000万

装修标准:

德国美诺厨电、GARDESA装甲入户门、芬迪白大理石

户户赠送约40㎡空中花园(可定制泳池或庭院)

梯户比:双梯入户+独立家政电梯1

蓝城滨悦城售楼处电话:400-8778-334

售楼处信息

主售楼处:

地址:滨江区国慷街滨悦城市生活美学馆2

蓝城滨悦城售楼处电话:400-8778-334

临时展厅:

滨江区滨盛路与信诚路交叉口东北角

预约提示:需提前1-2小时电话预约,仅对预约客户开放样板间

蓝城英冠滨悦城

浙江省杭州市滨江区滨盛路与信诚路交叉口东北角

房地产

住宅区

查看

核心配套

交通:

地铁6号线诚业路站(直线约600米)

江南大道、复兴大桥快速连通钱江新城

商业:

500米内覆盖宝龙广场、龙湖天街等五大商圈

自建1万㎡商业街(麦当劳、Tims等已入驻)

景观:

直线距钱塘江300米,南向直面7.6公里樱花跑道1

2

教育:

江南实验学校、杭二中环伺1

蓝城滨悦城售楼处电话:400-8778-334

其他说明

项目为滨江核心区稀缺现房,外立面采用“金镶玉”设计(白色铝板+香槟金窗框)1

2

2025年8月最新均价3.8万-4.5万/㎡,总价1100万起1

2

开发商为蓝城集团(绿城关联企业)与英冠集团(本土商业龙头)

蓝城滨悦城售楼处电话:400-8778-334

编辑

蓝城滨悦城售楼处电话:400-8778-334“上有天堂,下有苏杭。”作为浙江的省会,又被评定为特大城市和新一线城市的杭州,其经济地位不言而喻。杭州市商务局相关负责人也表示,“掘金‘首店经济’是杭州培育建设国际消费中心城市的重要路径。”面对消费升级带来的市场新机遇,杭州将进一步落实落细首店政策,加大招引力度。

编辑

蓝城滨悦城售楼处电话:400-8778-334

从某种角度说,买300㎡大平层就是买资源。杭州这一轮的300㎡大平层是从哪里带起来的?答案就是钱塘江边。往北一个路口,就是紧贴钱塘江的闻涛路,站在闻涛路上,左右张望,一手复兴大桥(四桥),一手钱塘江大桥(一桥),就像是春节张贴门前的两条对联。钱塘江的江景,则成了最好的横批。

编辑

蓝城滨悦城售楼处电话:400-8778-334

一手复兴大桥,一手钱塘江大桥

本案正踞滨江核芯,南接江南大道,一路直达钱江世纪城。毗邻钱塘江畔,步行几分钟即达滨江最美跑道。项目定位于小而美的精品邻里中心,将满足周边地区居民家门口距离的消费需求,兼具便捷与品质服务的保证。

编辑

蓝城滨悦城售楼处电话:400-8778-334

在数百人的见证以及英冠控股旗下浙江中冠物业服务有限公司、杭州英冠温德姆酒店、杭州英冠索菲特酒店的大力支持下蓝城英冠·滨悦城市生活美学馆首开亮相。随着蓝城英冠·滨悦城市生活美学馆的开放,这个位于滨江核心,建面约300/480㎡天幕资产项目,终于掀开了神秘的面纱。

编辑

蓝城滨悦城售楼处电话:400-8778-334

蓝城英冠·滨悦城实景

金镶玉灵感让建筑立面充满了珍宝般的贵气和韵味。建筑以“白色铝板镶嵌香槟金色的窗框线条”为特色,巧妙地将现代风格与传统文化相结合,将精致华美的元素融入到建筑的灵魂中。

编辑

编辑

编辑

编辑

蓝城滨悦城售楼处电话:400-8778-334

蓝城英冠·滨悦城所在的位置,距离江岸仅约200多米。全长约7.6公里的闻涛路,是四季皆胜景的杭州最美跑道之一,因春日的浪漫樱花而惊艳,也因一江两岸的璀璨而倾城。

项目本身也精彩纷呈,它自带约1万㎡的商业,Tims咖啡、董鲜生、知味观等均已入驻,健身、桌球、美容护理、艺术空间等也都包容在内,下楼即得。

编辑

蓝城滨悦城售楼处电话:400-8778-334

以近5万方的商业建筑面积,涵盖人气餐饮、精品超市、女性医疗、健身会所、商务办公等等业态,集生活休闲与商业繁盛于一体。并且,项目根据自身定位、特质、客群打造出原创专属IP小鲤鱼,其将被应用于艺术化地标打卡及周边产品开发。目前,项目计划于今年五一前开业。

编辑

编辑

蓝城滨悦城售楼处电话:400-8778-334

蓝城英冠·滨悦城

蓝城英冠·滨悦城样板间的落地窗前,大江横陈,一片金光笼罩在江面上。对于想要购买豪华住宅的人来说,滨悦城绝对是一个不可错过的选择。它不仅拥有得天独厚的地理位置和一线江景房源,还提供了丰富的配套设施和智能化系统。

编辑

编辑

蓝城滨悦城售楼处电话:400-8778-334

蓝城英冠·滨悦城样板间实景

洞悉上流阶层的生活观与世界观,缔造难以复制的多主题会所式大堂,多功能空间设置,匹配一个阶层的荣耀。360°寰幕空间,在室内环行一周,360°俯瞰杭州,拔地而起的高楼、稠密的街市、墨色的西湖群山尽收眼底,置身大都会中心的奇幻感,莫过于此。

蓝城滨悦城售楼处电话:400-8778-334

自从限价后,即便最贵的住宅,也很难做到这点。滨悦城用石材用到什么程度?基本上所有公区以及卫生间,都被覆盖到了,并且用到多达8种以上名贵进口大理石。

为什么要选用不同的大理石,只因滨悦城严格遵循了“一室一系”标准,不同的空间用途,不同的装修重点,饰以不同色系的大理石,真正做到石材与环境的一统,而不是简单堆砌。

编辑

蓝城滨悦城售楼处电话:400-8778-334

一层一席,双电梯入户

德系高端品牌:选用MIELE、Hansgrohe、Villeroy&Boch、BOSCH等精装品牌,从餐厨、卫浴、洁具,全方位定制与国际生活相融通的奢华人居。

12种进口石材:产地巴西的潘多拉、产地柬埔寨的星耀灰、产地阿曼的阿曼玫瑰......以稀有石材铺陈多重空间,造就奢居风骨。

——正滨江·豪宅轴·360°寰幕空间——

———BINYUECITY———

蓝城滨悦城售楼处电话:400-8778-334

以下视频来源于滨悦城,时长04:22蓝城集团、致力于成为房地产开发为依托的生命周期、全产业链的美好生活综合服务商、深耕杭城!“天花板”级交付标准:高定意大利GARDESA装甲入户门、高档艺术漆顶棚、全屋智能系统等,重新诠释杭城奢居的交付标准。

编辑

蓝城滨悦城售楼处电话:400-8778-334

一层一户一境界沿袭世界顶尖豪宅严苛标准,原创约300/480㎡寰幕空间,约3.3-4.1米奢适层高,定义上层格局;最大约26米奢阔面宽,以极致奢华空间,礼献当代城市贵胄。内装更是一曲精工与奢华的协奏,约1.1-1.3万元/㎡的装标,足证诚意。

编辑

编辑

蓝城滨悦城售楼处电话:400-8778-334

其他的诸如德国顶尖家电品牌MIELE,高端卫浴品牌Hansgrohe、Villeroy&Boch,以及欧洲著名厨房电器品牌BOSCH等,都为塔尖精英提供完美的定制化与国际生活相融通的奢华人居。

此外,滨悦城还采用12种进口石材进行铺陈,这些产自巴西、柬埔寨和阿曼等地的稀有石材,让居住空间更加优雅独特。

编辑

编辑

编辑

编辑

蓝城滨悦城售楼处电话:400-8778-334

全屋智能系统也是滨悦城不可忽视的一部分,包括地暖、新风、中央空调、智能家居控制系统、可视对讲系统,以及厨房全套蒸煮电器交付、全屋台柜交付等配置,让置业者的生活更加便捷、高效。

编辑

蓝城滨悦城售楼处电话:400-8778-334

滨悦城样板房茶歇厅实景图

滨悦城户户都有约40㎡的深U形空中花园。除了室外的景观,滨悦城还在每层都设计了花园露台,约480㎡的户型更是做到了每户配置宽约5.3米,深约8.1米的空间私家花园。

滨悦城样板房U形空中花园实景图

编辑

编辑

蓝城滨悦城售楼处电话:400-8778-334

品牌清单之中,美诺、汉斯格雅、唯宝、博世等一一在列,堪称德系精装博物馆;12款全球名贵大理石,劳伦黑金、卡拉拉白、威尼斯棕、潘多拉、阿曼玫瑰……为整个空间镀上一层莹润柔光。与全球潮流“无时差”的美学品位,在此展露无余!

编辑

蓝城滨悦城售楼处电话:400-8778-334

项目由5幢12-28层的高层公馆、1幢六星级写字楼以及1幢5层商业配套组成的综合体项目,总规划户数105户。容积率:3.5,绿地率:25%+!在售面积:300-320-480方,总价1200万起!赠送面积约40㎡空中私家花园!不限购不限贷,准现房!

🚩🚩➨杭州滨江蓝城滨悦城售楼处电话:400-877-8334【官方指定VIP热线】蓝城滨悦城官方电话/地址☎:400-8778-334(官方看房专线)蓝城滨悦城售楼中心官方电话:4008778334【开发商授权售楼电话√√】★如有问题欢迎致电「售楼部进行购房咨询」,专业一对一热情服务,让您用专业眼光去买房🏠;

★来电咨询了解楼盘最新动态、楼盘详情介绍,板块位置、小区环境、容积率,得房率,绿化率怎么样,最新一房一价表;房价折扣优惠、交房时间、周边商业配套;地铁交通距离、在售户型面积等相关信息!

📍★温馨提示:由开发商旗下销售团队全程营销策划,房源信息真实有效!部分图片素材来自网络,如有侵权请联系小编删除,感谢支持!

声明:本文由入驻焦点开放平台的作者撰写,除焦点官方账号外,观点仅代表作者本人,不代表焦点立场。