安高·申陇院首页网站-2025楼盘评测_安高·申陇院欢迎您+安高·申陇院售楼处电话 配套户型+地铁距离
扫描到手机,新闻随时看
扫一扫,用手机看文章
更加方便分享给朋友
上海-闵行-安高·申陇院售楼处电话☎:400-8558-334(预约热线)✔✔✔
如有问题欢迎来电咨询,专业一对一热情服务,让您用专业眼光去买房.
安高·申陇院售楼处电话☎:400-8558-334【售楼热线】✔✔✔安高·申陇院营销中心热线☎400-8558-334售楼处地址☎400-8558-334
闵行·梅陇全新盘
#最新消息#
闵行·梅陇全新品
「安高·申陇院」三期正在认购
将推约107-170㎡3-4房
上期均价76972元/㎡
安高申陇院售楼处电话☎:400-8558-334【预约☎】
基本信息
位置:位于上海闵行区梅陇镇核心区域,东至梅富路,南至梅南路,西至集心路,北至01-26-02地块.
开发商:由高速地产与安联公司联合开发,属国企背景品牌,此前已成功打造安高申宸院等项目.
产品定位:定位为“院系升级之作”,主打改善型住宅,三期产品涵盖建面约107-170㎡的3-4房户型.
安高申陇院售楼处电话☎:400-8558-334【预约☎】
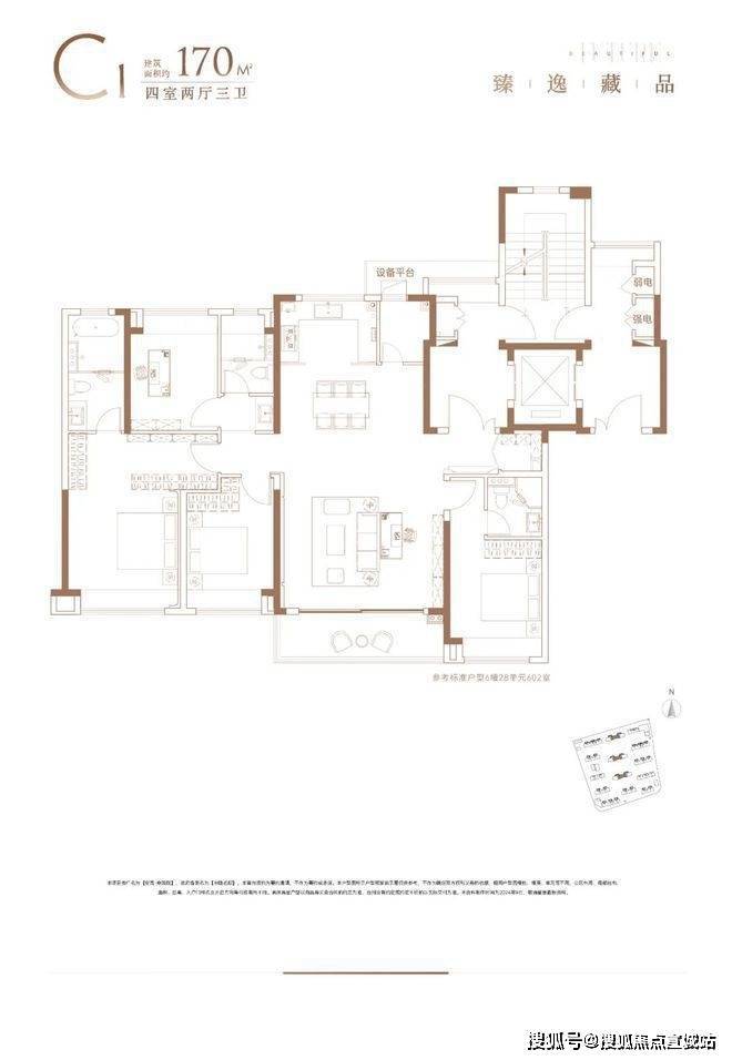
户型与设计亮点
「三期推售户型楼栋分布图」
户型布局:
107㎡三房:采用飞机式布局,南向三开间约9.8米,U型厨房设计,得房率74-75%15.
128㎡四房:南北通透LDKB一体化客餐厅,满足家庭多样化需求
170㎡大平层:南向四开间约15.4米,主卧套房+双卫设计,边户享270°飘窗及转角阳台
装修标准:
主卧悬浮吊顶+皮革背景墙,次卧人字拼地板;厨卫配备博世四件套、汉斯格雅卫浴及智能马桶.
全屋采用华为智能系统,提升居住科技感.
安高申陇院售楼处电话☎:400-8558-334【预约☎】➨上海闵行安高申陇院售楼处电话☎:400-855-8334(预约看房热线)
上海-闵行-安高·申陇院售楼处电话☎:400-8558-334(预约热线)✔✔✔
如有问题欢迎来电咨询,专业一对一热情服务,让您用专业眼光去买房.
安高·申陇院售楼处电话☎:400-8558-334【售楼热线】✔✔✔安高·申陇院营销中心热线☎400-8558-334售楼处地址☎400-8558-334
声明:本文由入驻焦点开放平台的作者撰写,除焦点官方账号外,观点仅代表作者本人,不代表焦点立场。
