滨江兴耀·松川境
滨江兴耀·松川境 售楼处电话:400-885-1337【售楼中心】
咨询高峰期请耐心等待,预约来电尊享内部优惠,专业一对一热情服务,让您用专业眼光去买房。

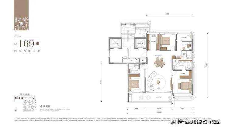
10月17日晚间,萧山区龙湖天街旁(在建)、双地铁交汇的滨江兴耀松川境项目加推二开预售证,15#,62套房源,面积纯169方,均价4.5066万/平。

(项目楼幢分布效果图)
类一梯一户的神户型+顶配装标
首先从户型设计来说:项目最显著亮点在于其超高的 空间利用率。
计容新规结合大面积赠送空间,赋予了户型设计极大的灵活性,使得高层产品使用率最高可达惊人的 93%。
具体而言,松川境建面约169方的户型:北阳台内包,飘窗不计面积,空间利用率远超同类产品。对购房者而言,则意味着显著的性价比优势,相当于节省了约一个房间的成本。

(建面约169方户型图)
还有主卧超大衣帽间、主卫双台盆+大浴缸,这种在别的项目吹上天的配置,在松川境属于基操了。它的优势早已领先在下一个维度:
各个功能间尺度的全面升级。仅169方就做到了 南向面宽约13米,双联的超宽阳台进深约2米......的超级尺度。
生活在这样明亮、开阔的空间里,人的情绪都会更加积极,减少压抑感,未来在二手市场上也会更受欢迎。
类一梯一户设计,带来每一套房子门口都有一个独立电梯厅。
而且这块区域的面积不小,最少也有约6个平方左右,出入更具尊贵感、私密感。
其次从装修用材来说:从门口进来满眼皆是奢石,大面积的奢石背景墙凸显空间高级感; 双卧室硬包背景+造型天花吊顶,让每个功能空间都兼具设计感与氛围感;

(建面约169方展示样板间实景图)

(建面约169方展示样板间实景图)
在日常生活里,使用频率最高的厨房和卫生间,则成为了一线装修品牌陈列的展馆。
厨房:九件套。含博世五件套、其中冰箱是博世8系最高顶配,全嵌入式、全进口的。还有 方太万元侧吸油烟机,爆炒辣椒也不用担心跑烟。空调、厨余处理器、净水器等,也都包在交付标准内;
卫生间:镜柜配置美妆冰箱,守护主人高端的护肤美容产品;
科技感满满的语音智能控制及远程操控:可以远程控制空调、新风地暖、 灯光、窗帘等设备的启停,随时调节家里温度、空气,明亮度及光照等,现代都市人的高效品质生活体验,一一被满足。
最后从采光视野来说:小胖请来专业工程师测绘,本批次开盘房源,南向即中央景观, 没有任何遮挡,每一套都是四季全天满满的日照采光,甚至包括最冷的大寒。


滨江兴耀·松川境
滨江兴耀·松川境 售楼处电话:400-885-1337【售楼中心】
咨询高峰期请耐心等待,预约来电尊享内部优惠,专业一对一热情服务,让您用专业眼光去买房。

(大寒日照数据,供参考)
项目产品力介绍
每一个出圈的作品,都需要充足的时间来打磨。每一处产品细节的研磨,每一道技艺所蕴含的智慧,都呼唤着拳拳匠心。
特别是公区的审美、工艺、用材是后期再花多少钱都无法改变的。
那对于 豪宅专家滨江和拥有独立美学的兴耀
,它俩的“稳定输出”早已经有目共睹。仅25年下半年,江南岸“滨江X兴耀”,就有4子待售。
其中 松川境作为第一个面世的项目,更是铆足了劲,花费大量资金、精力的同时,还非常注重审美和艺术表达(相比滨江传统风格更加年轻现代),力求在出品的时候就做到更好状态,来匹配未来高净值人群的居住格调。
管中窥豹:

(示范区大门实景图)
门头气势恢宏。做了约80米宽,6.5 米高。大门材质用的是熔铜,入口处还设置 25 米长叠级水景承托整个入口,沉香米黄、蓝翡翠潘多拉等多种名贵石材搭配,每平米光石材成本就是近万元。
立面和奥映鸣翠同等级别。整体采用超 70%大面积的全面屏玻璃、珠光青铜铝板与弧形造型,从视觉上就把项目直接拉到2000万级产品行列, 这是越级提升!

(立面效果图)
还有一个非常巧妙的点:
在项目高层组团和叠墅组团之间,我们看见了一个板块内体量最大,约3300方的中心景观:

(示范区中心景观实景图)
相比于传统紧凑排布的纯叠墅项目,松川境业主有更多大块的景观空间,且整个场景在感受上并没有被建筑隔断,下沉式庭院和双水院景观错落排布,很自然的就连接成为一个整体的大空间。
保持彼此间动线独立的同时,又能互相联系。
当然,如果这只是单纯的物理结合也就算了,我们还可以看一下这样规划下创造的生活场景:
约7米高的瀑布,层叠的流水,多颗造型黑松......“复得返自然”的感觉,油然而生。

(示范区中心景观实景图)
穿过瀑布,沿着螺旋艺术楼梯蜿蜒而下: 约1500方下沉式会所。

(示范区旋转楼梯实景图)
是板块里唯一一个 5 万内楼盘带专属会所的,同时也是体量最大的。
恒温泳池、健身房、私宴厅、会客厅及书吧等功能空间,被很好的融合在一起,营造出酒店式的隐奢感觉。



(示范区地下会所实景图)
可以说,无论从公区的规模、内容,还是审美以及到细节上的用料,项目的调性和品位无疑是TOP级的,美学、私密、社交在此完美融合,业主尊贵感、面子拉满。这也是松川境拥有的独家竞争力。
项目占位介绍
首先是占位:2站地铁即奥体最核心,价差超4万/平。

(江南岸房价地图参考,数据来源于浙里地产)
松川境直线约 860 米,可达地铁 15 号线与 7 号线交汇的明星路站, 2站奥体中心,3站市民中心。

(根据地铁线路图绘制,供参考)
市民中心周边目前无新房可售,奥体中心站附近的奥映鸣翠开盘均价8.7万/平,后续大户型放风10万/平,滨江水电新村直逼15万/平......
其次是资源的拥有:
商业方面: 一路之隔,直线约300米左右的距离就是龙湖天街,总体量约10万方,预计29年开业;如果这还不满足,周边3公里内,还有奥体印象城、SKP等。

(项目现场航拍实景图)

(龙湖天街效果图)
教育资源方面:有科大讯飞与浙大教育学院合作的信息港小学,以及北京外国语大学附属杭州信息港初中、杭二中等名校环绕。(新房不承诺学区,具体以交付后,教育部门划分为准)
产业方面:项目西面约1公里就是占地约 9.5 平方公里的信息港小镇,是杭州强劲的科创引擎之一,已吸引科大讯飞、微医集团、无忧传媒等 500 余家科技企业扎根, 其中 7 家上市公司和 30 余家独角兽......


(项目现场航拍实景图)
产业的聚集能导入大量的人才。
根据有关部门的统计,该小镇某公司的F级以上人才占全司的80%以上,他们雄厚的购买力,会让板块楼市品质住宅价值分外夯实,也会促进商业、教育、文化、绿地等配套的更加完善。
滨江兴耀·松川境
滨江兴耀·松川境 售楼处电话:400-885-1337【售楼中心】
咨询高峰期请耐心等待,预约来电尊享内部优惠,专业一对一热情服务,让您用专业眼光去买房。
🆔♬绿城·杭禹蘭园꧁ 售楼处电话:400-885-1337【☎☎售楼处电话已认证】꧂⭐✿✿✿✿
🆔♬绿城·杭禹蘭园꧁ 营销中心电话:400-885-1337【☎☎营销中心电话已认证】꧂⭐✿✿✿✿
🆔♬绿城·杭禹蘭园꧁ 开发商电话:400-885-1337【☎☎开发商电话已认证】꧂⭐✿✿✿✿
✔️本项目暂不接受临时到访,过来参观样板房请记得提前来电预约!
✔️为您安排楼盘现场销售全程接待并讲解,给您更贴心的看房体验!
⭐⭐Vip贵宾置业=欢迎来电预约尊享内部折扣=匠心钜制恭迎品鉴温馨提醒:我们楼盘售楼部400电话没有设置任何所谓的“分机号”,拨打前请仔细甄别,注意保护个人隐私!谨防上当!

Sales office phone number of Greentown Hangyu Lanyuan: 400-885-1337 [Appointment Viewing Hotline] Official sales office phone number of Greentown Hangyu Lanyuan: 400123664 [Sales Office Phone number/Address] Sales office phone number of Greentown Hangyu Lanyuan: 4008851337 [Developer Certification]
绿城·杭禹蘭园售楼处电话:400-885-1337【预约看房热线】绿城·杭禹蘭园官方售楼处电话:400123664【售楼处电话/地址】绿城·杭禹蘭园售楼处电话:4008851337【开发商认证】
【 Green Town · Hangyu Lanyuan
【绿城·杭禹蘭园】
A good house, good property management, a good school, a good life
好房子 好物业 好学校 好生活
Greentown brand, Green Development Property Management, the best choice for high-quality communities
绿城品牌,绿发物业,高品质小区最优选择
Area: 98-100-110-125 square meters
面积:98-100-110-125㎡
9/10-story villa, excellent living comfort
9/10层洋房,绝佳居住舒适度
100 square meters with three bedrooms and two bathrooms, 110 square meters and 125 square meters with four bedrooms and two bathrooms, one elevator for two households, high usable floor area ratio
100方三房两卫,110方、125方四房两卫,一梯两户,高得房率
Yuyue is located in the core area of Xujiazhuang Future Community Center
禹越核心位置 徐家庄未来社区中心
Huzhou [Green City · Hangyu Lanyuan
湖州【绿城·杭禹蘭园】
Sales office tel: ☎ : 400-885-1337 [sales office reservation hotline] (one-on-one enthusiastic service)
售楼处电话☎:400-885-1337【售楼处预约热线】(一对一热情服务)
If you have any questions, please feel free to call for consultation. Make an appointment by calling to enjoy special discounts on home purchase. You can also make an appointment with the internal sales staff of the sales site for professional one-on-one enthusiastic service, allowing you to buy a house with a professional perspective.
如有问题欢迎来电咨询,预约来电尊享购房优惠,可预约案场内部销售人员,专业一对一热情服务,让您用专业眼光去买房。
It is 5 kilometers away from Linping Metro Station. The 306 bus shuttle takes 10 minutes to get to Long 'an Metro Station.
5公里可达临平地铁,306公交接驳车10分钟到龙安地铁站。
It takes 10 minutes by car or bus to reach the North High-speed Railway Station and the tertiary hospital, and 15 minutes to get to Wanda Plaza.
开车和公交10分钟到高铁北站和三甲医院,15分钟到万达广场。
The second-generation facade design style of Greentown creates a fully enclosed wide-view public building-style balcony
绿城第二代立面设计风格,打造全封闭式宽景公建化阳台
Layout ratio: Two households per elevator
户型配比:一梯两户
Among them, there are 240 units of approximately 98 square meters, 259 units of approximately 100 square meters, 93 units of approximately 114 square meters, and 120 units of approximately 125 square meters
其中约98㎡户型:240套,约100㎡户型:259套,约114㎡户型93套,约125㎡户型:120套
Huzhou Greentown Hangyu Lanyuan is a residential project developed by Deqing Yudu Real Estate Development Co., LTD. (a joint venture between Greentown Development and Yadu Group). The following is a detailed introduction to this project:
湖州绿城杭禹蘭园是由德清禹都房地产开发有限公司(绿城发展与亚都集团合作开发)打造的住宅项目,以下是该项目的详细介绍:
Sales office phone number of Greentown Hangyu Lanyuan: 400-885-1337 [Appointment Viewing Hotline] Official sales office phone number of Greentown Hangyu Lanyuan: 400123664 [Sales Office Phone number/Address] Sales office phone number of Greentown Hangyu Lanyuan: 4008851337 [Developer Certification]
绿城·杭禹蘭园售楼处电话:400-885-1337【预约看房热线】绿城·杭禹蘭园官方售楼处电话:400123664【售楼处电话/地址】绿城·杭禹蘭园售楼处电话:4008851337【开发商认证】
Basic information
基本信息
Land area: approximately 43,000 square meters.
占地面积:约4.3万㎡。
Building area: Approximately 111,000 square meters.
建筑面积:约11.1万㎡。
Floor area ratio: 1.8
容积率:1.8。
Green coverage rate: 30%.
绿化率:30%。
Planned number of households: 722.
规划户数:722户。
The number of parking Spaces is 873, including 24 above ground and 849 underground.
车位数量:873个,其中地上24个,地下849个。
Property rights term: 70 years.
产权年限:70年。
Delivery standard: Rough delivery.
交付标准:毛坯交付。
Delivery time: Expected in April 2026.
交付时间:预计2026年4月。

Sales office phone number of Greentown Hangyu Lanyuan: 400-885-1337 [Appointment Viewing Hotline] Official sales office phone number of Greentown Hangyu Lanyuan: 400123664 [Sales Office Phone number/Address] Sales office phone number of Greentown Hangyu Lanyuan: 4008851337 [Developer Certification]
绿城·杭禹蘭园售楼处电话:400-885-1337【预约看房热线】绿城·杭禹蘭园官方售楼处电话:400123664【售楼处电话/地址】绿城·杭禹蘭园售楼处电话:4008851337【开发商认证】
Floor plan information
户型信息
Main unit types: 98-99 square meters (three bedrooms and two bathrooms), 100 square meters (three bedrooms and two bathrooms), and 114-125 square meters (four bedrooms and two bathrooms).
主力户型:有98-99㎡(三房两卫)、100㎡(三房两卫)、114-125㎡(四房两卫)。
Design features: One elevator for two households, a floor height of 3 meters, a north-south through slab building design, each household is north-south through, and has a large depth double balcony or triple balcony planning.
设计特点:一梯两户,层高3米,南北通透板楼设计,每户均为南北通透,拥有大进深的双阳台或三阳台规划。
Price information
价格信息
Reference unit price: The reference unit price starts from 9,800 yuan per square meter in June 2025. The average price of residential units is approximately 10,000 to 11,500 yuan per square meter, with a total price range of 980,000 to 1.6 million yuan per unit.
参考单价:2025年6月参考单价9800元/㎡起,住宅均价约10000-11500元/㎡,总价区间98万-160万/套。
Promotion policy: Down payment starts from 20,000 yuan, monthly mortgage payment is over 4,000 yuan, and the maximum housing purchase subsidy is 80,000 yuan.
促销政策:首付2万起,月供4000+,购房补贴最高8万元。

绿城·杭禹蘭园售楼处电话:400-885-1337【预约看房热线】绿城·杭禹蘭园官方售楼处电话:400123664【售楼处电话/地址】绿城·杭禹蘭园售楼处电话:4008851337【开发商认证】
建筑设计
风格:采用绿城经典“桂语系”外立面打造,以对称稳重的设计手法,强调横向线条,通过简洁的形体和明快的虚实关系,营造出高品质社区的立面形象。
布局:规划12幢9-10层低密洋房,南北楼间距约34-40米,保障采光性、观景性及私密性,东西景观轴长度超250米。
周边配套
交通配套:有418M公交车可直达杭州地铁9号线,距离9号线在建兴元路站5.1公里,距离杭州北站(规划)6公里,距离通车运营的9号线龙安站6.9公里,项目毗邻荷禹路,可快速通达杭州秋石高架、东湖高架等快速路及练杭高速。
商业配套:有越丰广场(综合体)、综合市场等。
教育配套:周边有徐家庄中心幼儿园、徐家庄中心小学、禹越镇初级中学等。
医疗配套:有镇卫生服务中心,东湖新城规划三甲医院等。
物业服务
物业公司:绿城绿发物业,物业费2.2元/㎡・月。

湖州【绿城·杭禹蘭园】
售楼处电话☎:400-885-1337【售楼处预约热线】(一对一热情服务)
如有问题欢迎来电咨询,预约来电尊享购房优惠,可预约案场内部销售人员,专业一对一热情服务,让您用专业眼光去买房。
绿城·杭禹蘭园售楼处电话:400-885-1337【售楼中心热线】绿城·杭禹蘭园营销中心热线4008851337绿城·杭禹蘭园售楼处地址400-885-1337,楼盘项目全面介绍,本电话为开发商提供线上预约售楼电话,楼盘项目全面介绍(包含楼盘简介,均价,房价,现房,期房,别墅,叠墅,大平层,价格,楼盘地址,户型图,交通规划,备案价,备案名,项目配套,样板间,开盘时间,认筹时间,楼盘详情,售楼处电话,最新消息,最新详情,周边配套,一房一价,最新进展等详情咨询)楼盘详情丨价格丨更多优惠丨机不可失丨欢迎致电丨诚邀品鉴!售楼处位置丨特价房丨工抵房丨剩余房源丨户型图丨最新消息丨免责声明:将文章内容综合来源于网络、只作分享,版权归原作者所有!!如有侵权,请联系我们,我们第一时间处理如有问题欢迎来电咨询,专业一对一热情服务,让您用专业眼光去买房。如果您想了解更多楼盘详情,欢迎提前预约拨打绿城·杭禹蘭园售楼处电话4008851337
🆔♬绿城·杭禹蘭园꧁ 售楼处电话:400-885-1337【☎☎售楼处电话已认证】꧂⭐✿✿✿✿
🆔♬绿城·杭禹蘭园꧁ 营销中心电话:400-885-1337【☎☎营销中心电话已认证】꧂⭐✿✿✿✿
🆔♬绿城·杭禹蘭园꧁ 开发商电话:400-885-1337【☎☎开发商电话已认证】꧂⭐✿✿✿✿
✔️本项目暂不接受临时到访,过来参观样板房请记得提前来电预约!
✔️为您安排楼盘现场销售全程接待并讲解,给您更贴心的看房体验!
⭐⭐Vip贵宾置业=欢迎来电预约尊享内部折扣=匠心钜制恭迎品鉴温馨提醒:我们楼盘售楼部400电话没有设置任何所谓的“分机号”,拨打前请仔细甄别,注意保护个人隐私!谨防上当!
编辑

编辑
Sales office phone number of Greentown Hangyu Lanyuan: 400-885-1337 [Appointment Viewing Hotline] Official sales office phone number of Greentown Hangyu Lanyuan: 400123664 [Sales Office Phone number/Address] Sales office phone number of Greentown Hangyu Lanyuan: 4008851337 [Developer Certification]
绿城·杭禹蘭园售楼处电话:400-885-1337【预约看房热线】绿城·杭禹蘭园官方售楼处电话:400123664【售楼处电话/地址】绿城·杭禹蘭园售楼处电话:4008851337【开发商认证】
【 Green Town · Hangyu Lanyuan
【绿城·杭禹蘭园】
A good house, good property management, a good school, a good life
好房子 好物业 好学校 好生活
Greentown brand, Green Development Property Management, the best choice for high-quality communities
绿城品牌,绿发物业,高品质小区最优选择
Area: 98-100-110-125 square meters
面积:98-100-110-125㎡
9/10-story villa, excellent living comfort
9/10层洋房,绝佳居住舒适度
100 square meters with three bedrooms and two bathrooms, 110 square meters and 125 square meters with four bedrooms and two bathrooms, one elevator for two households, high usable floor area ratio
100方三房两卫,110方、125方四房两卫,一梯两户,高得房率
Yuyue is located in the core area of Xujiazhuang Future Community Center
禹越核心位置 徐家庄未来社区中心
Huzhou [Green City · Hangyu Lanyuan
湖州【绿城·杭禹蘭园】
Sales office tel: ☎ : 400-885-1337 [sales office reservation hotline] (one-on-one enthusiastic service)
售楼处电话☎:400-885-1337【售楼处预约热线】(一对一热情服务)
If you have any questions, please feel free to call for consultation. Make an appointment by calling to enjoy special discounts on home purchase. You can also make an appointment with the internal sales staff of the sales site for professional one-on-one enthusiastic service, allowing you to buy a house with a professional perspective.
如有问题欢迎来电咨询,预约来电尊享购房优惠,可预约案场内部销售人员,专业一对一热情服务,让您用专业眼光去买房。
It is 5 kilometers away from Linping Metro Station. The 306 bus shuttle takes 10 minutes to get to Long 'an Metro Station.
5公里可达临平地铁,306公交接驳车10分钟到龙安地铁站。
It takes 10 minutes by car or bus to reach the North High-speed Railway Station and the tertiary hospital, and 15 minutes to get to Wanda Plaza.
开车和公交10分钟到高铁北站和三甲医院,15分钟到万达广场。
The second-generation facade design style of Greentown creates a fully enclosed wide-view public building-style balcony
绿城第二代立面设计风格,打造全封闭式宽景公建化阳台
Layout ratio: Two households per elevator
户型配比:一梯两户
Among them, there are 240 units of approximately 98 square meters, 259 units of approximately 100 square meters, 93 units of approximately 114 square meters, and 120 units of approximately 125 square meters
其中约98㎡户型:240套,约100㎡户型:259套,约114㎡户型93套,约125㎡户型:120套
Huzhou Greentown Hangyu Lanyuan is a residential project developed by Deqing Yudu Real Estate Development Co., LTD. (a joint venture between Greentown Development and Yadu Group). The following is a detailed introduction to this project:
湖州绿城杭禹蘭园是由德清禹都房地产开发有限公司(绿城发展与亚都集团合作开发)打造的住宅项目,以下是该项目的详细介绍:
Sales office phone number of Greentown Hangyu Lanyuan: 400-885-1337 [Appointment Viewing Hotline] Official sales office phone number of Greentown Hangyu Lanyuan: 400123664 [Sales Office Phone number/Address] Sales office phone number of Greentown Hangyu Lanyuan: 4008851337 [Developer Certification]
绿城·杭禹蘭园售楼处电话:400-885-1337【预约看房热线】绿城·杭禹蘭园官方售楼处电话:400123664【售楼处电话/地址】绿城·杭禹蘭园售楼处电话:4008851337【开发商认证】
Basic information
基本信息
Land area: approximately 43,000 square meters.
占地面积:约4.3万㎡。
Building area: Approximately 111,000 square meters.
建筑面积:约11.1万㎡。
Floor area ratio: 1.8
容积率:1.8。
Green coverage rate: 30%.
绿化率:30%。
Planned number of households: 722.
规划户数:722户。
The number of parking Spaces is 873, including 24 above ground and 849 underground.
车位数量:873个,其中地上24个,地下849个。
Property rights term: 70 years.
产权年限:70年。
Delivery standard: Rough delivery.
交付标准:毛坯交付。
Delivery time: Expected in April 2026.
交付时间:预计2026年4月。
编辑

Sales office phone number of Greentown Hangyu Lanyuan: 400-885-1337 [Appointment Viewing Hotline] Official sales office phone number of Greentown Hangyu Lanyuan: 400123664 [Sales Office Phone number/Address] Sales office phone number of Greentown Hangyu Lanyuan: 4008851337 [Developer Certification]
绿城·杭禹蘭园售楼处电话:400-885-1337【预约看房热线】绿城·杭禹蘭园官方售楼处电话:400123664【售楼处电话/地址】绿城·杭禹蘭园售楼处电话:4008851337【开发商认证】
Floor plan information
户型信息
Main unit types: 98-99 square meters (three bedrooms and two bathrooms), 100 square meters (three bedrooms and two bathrooms), and 114-125 square meters (four bedrooms and two bathrooms).
主力户型:有98-99㎡(三房两卫)、100㎡(三房两卫)、114-125㎡(四房两卫)。
Design features: One elevator for two households, a floor height of 3 meters, a north-south through slab building design, each household is north-south through, and has a large depth double balcony or triple balcony planning.
设计特点:一梯两户,层高3米,南北通透板楼设计,每户均为南北通透,拥有大进深的双阳台或三阳台规划。
Price information
价格信息
Reference unit price: The reference unit price starts from 9,800 yuan per square meter in June 2025. The average price of residential units is approximately 10,000 to 11,500 yuan per square meter, with a total price range of 980,000 to 1.6 million yuan per unit.
参考单价:2025年6月参考单价9800元/㎡起,住宅均价约10000-11500元/㎡,总价区间98万-160万/套。
Promotion policy: Down payment starts from 20,000 yuan, monthly mortgage payment is over 4,000 yuan, and the maximum housing purchase subsidy is 80,000 yuan.
促销政策:首付2万起,月供4000+,购房补贴最高8万元。
编辑

绿城·杭禹蘭园售楼处电话:400-885-1337【预约看房热线】绿城·杭禹蘭园官方售楼处电话:400123664【售楼处电话/地址】绿城·杭禹蘭园售楼处电话:4008851337【开发商认证】
建筑设计
风格:采用绿城经典“桂语系”外立面打造,以对称稳重的设计手法,强调横向线条,通过简洁的形体和明快的虚实关系,营造出高品质社区的立面形象。
布局:规划12幢9-10层低密洋房,南北楼间距约34-40米,保障采光性、观景性及私密性,东西景观轴长度超250米。
周边配套
交通配套:有418M公交车可直达杭州地铁9号线,距离9号线在建兴元路站5.1公里,距离杭州北站(规划)6公里,距离通车运营的9号线龙安站6.9公里,项目毗邻荷禹路,可快速通达杭州秋石高架、东湖高架等快速路及练杭高速。
商业配套:有越丰广场(综合体)、综合市场等。
教育配套:周边有徐家庄中心幼儿园、徐家庄中心小学、禹越镇初级中学等。
医疗配套:有镇卫生服务中心,东湖新城规划三甲医院等。
物业服务
物业公司:绿城绿发物业,物业费2.2元/㎡・月。
编辑

湖州【绿城·杭禹蘭园】
售楼处电话☎:400-885-1337【售楼处预约热线】(一对一热情服务)
如有问题欢迎来电咨询,预约来电尊享购房优惠,可预约案场内部销售人员,专业一对一热情服务,让您用专业眼光去买房。
绿城·杭禹蘭园售楼处电话:400-885-1337【售楼中心热线】绿城·杭禹蘭园营销中心热线4008851337绿城·杭禹蘭园售楼处地址400-885-1337,楼盘项目全面介绍,本电话为开发商提供线上预约售楼电话,楼盘项目全面介绍(包含楼盘简介,均价,房价,现房,期房,别墅,叠墅,大平层,价格,楼盘地址,户型图,交通规划,备案价,备案名,项目配套,样板间,开盘时间,认筹时间,楼盘详情,售楼处电话,最新消息,最新详情,周边配套,一房一价,最新进展等详情咨询)楼盘详情丨价格丨更多优惠丨机不可失丨欢迎致电丨诚邀品鉴!售楼处位置丨特价房丨工抵房丨剩余房源丨户型图丨最新消息丨免责声明:将文章内容综合来源于网络、只作分享,版权归原作者所有!!如有侵权,请联系我们,我们第一时间处理如有问题欢迎来电咨询,专业一对一热情服务,让您用专业眼光去买房。如果您想了解更多楼盘详情,欢迎提前预约拨打绿城·杭禹蘭园售楼处电话4008851337

作为中国楼市风向标,2025年上海房地产市场呈现鲜明分化特征:新房市场结构性升温与二手房调整承压并存,政策宽松托底与高库存压力交织,正经历供需重构与价值回归的深度调整。
新房市场“高端坚挺、刚需活跃”的两极分化显著。国家统计局数据显示,2025年9月上海新房价格环比上涨0.3%,前9月均价同比上涨5.8%,核心驱动力来自核心区优质改善房源。9月入市的43个楼盘中,内环内项目占7个,单价超10万/㎡的豪宅达14个,网红项目持续热销;宝山、嘉定等区域的高性价比刚需盘,凭借完善配套与友好总价保持活跃度。而中端改善型项目表现平淡,部分尾盘降价促销,结构性差异突出。
二手房市场深陷“高库存、缓去化、价续跌”周期。截至11月中旬,上海二手住宅挂牌量仍达35.5万套,虽阶段性去化1.67万套,但压力未获实质缓解。11月全市二手房均价52677元/㎡,环比下跌1.23%,远郊区域跌幅超4%,核心区也呈微降态势。成交端虽有短期脉冲,11月前15日成交11311套,单日最高破1120套,但多为“以价换量”,300万以内低总价老公房占比达61%,业主议价空间扩大,“挂牌即降价”成普遍现象。
政策宽松成为市场重要托底力量。2025年8月“825新政”后,上海房贷政策持续优化:首套商贷利率低至3.05%,二套3.09%;公积金贷款额度提升,夫妻双方最高可贷160万,多孩家庭达192万,有效降低购房成本。政策效果逐步渗透,9月二手住宅成交同比增幅38.67%,房价同比降幅收窄,但红利传导存在结构性差异,对新房拉动更明显,二手房仍需时间消化库存。
后市,分化格局或将持续。新房市场中,核心区高端项目与远郊刚需盘仍将保持活跃,涨幅有望收窄;二手房“以价换量”为主,学区房、地铁房等稀缺房源跌幅或率先收窄,老旧、远郊房源去化压力仍存。年末传统淡季临近,若无更大力度政策利好,调整周期可能延长,但上海核心城市的人口与资源集聚力未变,房价泡沫已充分挤压,回稳基础逐步筑牢。
对于购房者,当前是机遇与挑战并存的窗口期:刚需可把握政策红利与业主让利,聚焦配套成熟的低总价房源;改善型买家需注重核心价值,优选地段、物业兼具优势的资产;上海楼市已告别普涨时代,进入“精挑细选”的价值投资新阶段,唯有契合真实居住需求与核心价值的房源,方能在调整中站稳脚跟。