中鹰·黑森林(售楼处)首页网站中鹰·黑森林销售中心(营销中心)-中鹰·黑森林售楼处电话-户型-价格-开盘时间-楼盘详情-周边配套-中鹰·黑森林得房率

搜狐焦点宣城站 2025-09-05 09:21:44
用手机看
扫描到手机,新闻随时看

扫一扫,用手机看文章
更加方便分享给朋友

上海-中鹰·黑森林售楼处电话☎:400-8558-334(预约热线)✔✔✔上海中鹰·黑森林售楼处位于普陀区,主打大平层,采用德国设计,科技系统完善,绿化率高,现房交付,专业服务。

上海-中鹰·黑森林售楼处电话☎:400-8558-334(预约热线)✔✔✔

如有问题欢迎来电咨询,专业一对一热情服务,让您用专业眼光去买房。

中鹰·黑森林售楼处电话☎:400-8558-334【售楼热线】✔✔✔中鹰·黑森林营销中心热线☎400-8558-334售楼处地址☎400-8558-334

基本信息:

楼盘位置:普陀区新村路、真华路附近,具体为真华路 399 号。

开发商:上海中鹰置业有限公司。

产权年限:70 年。

容积率:约 2.2-2.25。

建筑面积:270000 平方米。

占地面积:120000 平方米。

物业公司:上海中鹰物业管理有限公司。

小区规划:

楼栋数:16 幢。

总户数:1264 户。

车位配比:1:1.2。

绿化率:40%,绿化覆盖面积达 100%。

梯户比:2 梯 2 户。

交付标准:高定奢装。

交房时间:现房交付。

户型信息:

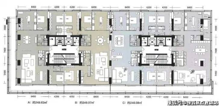
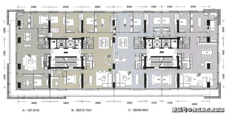
主力户型:建面约 201-581㎡大平层,主力户型集中在 260-350㎡之间,还有平层贯通 1100㎡,上下连通 2200㎡的户型。

户型特色:可实现居住空间私人订制,部分户型搭配超大阳台。

小区特色:

科技系统:采用瑞士世界领先的 8 大系统、34 项技术,包括毛细管 6 恒系统(恒温、恒湿、恒氧、恒洁、恒静、恒舒)。

建筑风格:德国著名建筑事务所 Obermeyer 与 Dibelius 联袂设计,包豪斯极简工业风格,全球首创高层纯住宅四层双腔低辐射全玻璃外墙。

园林景观:小区拥有 12 万方森林,种植了 11000 棵成年乔木,如香樟、银杏、榉树等。

上海-中鹰·黑森林售楼处电话☎:400-8558-334(预约热线)✔✔✔

如有问题欢迎来电咨询,专业一对一热情服务,让您用专业眼光去买房。

中鹰·黑森林售楼处电话☎:400-8558-334【售楼热线】✔✔✔中鹰·黑森林营销中心热线☎400-8558-334售楼处地址☎400-8558-334

Part2

城市造林12万方11000颗乔木

德国黑森林名来自德语的Schwarzwald,意思是“黑色的森林”,是德国西南部著名的自然风景区。在连绵起伏的群山间,漫山遍野树木林立,叶色绿得发黑,从高处远看这片层层叠叠的密林,犹如一片漫无边际的黑幕-黑森林。

项目实景图

【中鹰·黑森林】项目总建筑面积27万平方米,由5栋叠加别墅和11栋16层高层、高层公寓构成,小区规划采用了原生态森林公园布局,11000棵成年香樟树,豪华订制健康生活理念,让业主体验到全方位景观感受。所有房源均采用一梯一户设计,充分保障客户的私密性和尊贵感。

森林宽度达到130米,1公里长,体量足有4个半淮海公园大小,整个绿化率达到100%。

中鹰黑森林实景图

整个社区都是绿色森林,树海环抱,连底层都挑空6~9米,种植绿色,让每户人家都能“开窗见树”,让房子生长在森林之上。

中鹰黑森林实景图

绿色森林能调节微气候,降低噪音(一条40米宽的森林带可降低噪音10~15分贝)、阻隔尘埃(每公顷森林每年能吸附50~80吨粉尘),调节温度与湿度,净化空气,使人平静、舒服,而且可以降低人体的温度1-2℃,并能杀灭众多病菌,实现人与自然和谐相处。

项目实景图

上海-中鹰·黑森林售楼处电话☎:400-8558-334(预约热线)✔✔✔

如有问题欢迎来电咨询,专业一对一热情服务,让您用专业眼光去买房。

中鹰·黑森林售楼处电话☎:400-8558-334【售楼热线】✔✔✔中鹰·黑森林营销中心热线☎400-8558-334售楼处地址☎400-8558-334

Part3

欧洲顶级环保建材

【中鹰·黑森林】的四面墙体,全由瑞士Air-lux技术的Low-E四层玻璃打造,由于拥有两层氩气中空层,橡皮条密闭技术达太空舱级,且最大尺寸达6×3米,使得这种超高强度、隔热隔音的大玻璃,有了“透明墙”的美称。全视野的地窗系统,更让窗外的森林景致随时映入眼帘,方才不辜负成长10年的森林景色。

项目采用先进的屋顶花园系统,多达11层的屋顶生态科技,种植花草,形成屋顶生态,与森林环境共同形成中鹰私享的城市生态微气候,根除了水泥森林热岛效应,促进气候循环,提供动植物栖息地。

【中鹰·黑森林11号】创新采用“厚板框架结构”,力邀德国顶尖的独立工程咨询公司——Obermeyer(欧博迈亚)打造了上海首个高层纯住宅自由分割大平层。

在框架结构的基础上,又增加了一层“厚板”,即“上翻梁楼面体系”,这一巧妙布局,为其他功能系统、设备管线提供了解决方案,上述的新风管道、同层排水等都能在厚板中完成。

超厚的楼板,起到很好的隔音效果,上下户不受干扰,同时也为重新翻新房屋提供便利,不会影响房屋结构。

【中鹰·黑森林11号】,每一个细节都营造超乎寻常的舒适。智能家居控制系统,集合EIB欧洲总线系统及智能安防于一体。EIB欧洲智能总线,如同建立了人的大脑与诸多电气对话的平台,实现随心控制,安全智能化。

可轻松调节室内温度、湿度,户外智能卷帘光线角度以及整合家居的灯光、音响、影像等系统,同时还可实现手机、ipad远程控制,达到真正意义上的智能家居。

【中鹰·黑森林】在装修污染问题上更注重每一个细节:工程隐蔽+环保进口材料。

地板用的是德国Parador环保地板,不光无甲醛,还可分解甲醛、烟味等有害气体;

上海-中鹰·黑森林售楼处电话☎:400-8558-334(预约热线)✔✔✔

如有问题欢迎来电咨询,专业一对一热情服务,让您用专业眼光去买房。

中鹰·黑森林售楼处电话☎:400-8558-334【售楼热线】✔✔✔中鹰·黑森林营销中心热线☎400-8558-334售楼处地址☎400-8558-334

ERFURT墙纸,不仅无污染,脏了还能擦洗,再也不怕熊孩子乱涂乱画。如果几年后想换一下风格,还可以整体重刷颜色;

中鹰黑森林户型面积分布图

中鹰黑森林样板间鉴赏

【中鹰·黑森林】的大平层都由欧洲顶级设计师执掌,并提供了北欧风范的奢华装修标准。全部个性化定制哦!你的房子户型你做主,前所未有的体验!

Part3

中鹰黑森林周边配套

交通配套方面:项目距离轨交7号线新村路,11号线上海西站,自驾出行5分钟即可上内环高架和南北路高架路。

商业配套方面:上海巴黎春天(宝山店)、澳洲广场、仙乐都生活广场、弘基·时尚生活中心、大华虎城嘉年华、宝大祥青少年儿童购物中心、金盛休闲购物中心

教育资源方面:大渡河路第二幼儿园、上海市曹杨职业技术学校、普陀区满天星幼儿园分部、玉华中学、上海桐柏高级中学、同济大学(沪西校区)、晋元高级中学、晋元小学(对口)

上海-中鹰·黑森林售楼处电话☎:400-8558-334(预约热线)✔✔✔

如有问题欢迎来电咨询,专业一对一热情服务,让您用专业眼光去买房。

中鹰·黑森林售楼处电话☎:400-8558-334【售楼热线】✔✔✔中鹰·黑森林营销中心热线☎400-8558-334售楼处地址☎400-8558-334

声明:本文由入驻焦点开放平台的作者撰写,除焦点官方账号外,观点仅代表作者本人,不代表焦点立场。