佘山微风售楼处电话→佘山微风售楼销售电话→佘山微风楼盘百科→首页网站→楼盘测评→售楼中心电话→周边配套→最新咨询→24小时热线电话

搜狐焦点宣城站 2025-10-11 10:24:40
用手机看
扫描到手机,新闻随时看

扫一扫,用手机看文章
更加方便分享给朋友

佘山微风售楼处电话☎:400-8618-004佘山微风售楼处提供预约服务,介绍项目优势及科技家居设计,欢迎预约体验。

—⑉ıl⑉〢✨🏠佘山微风售楼处电话☎:400-8618-004

🏡上海松江佘山微风营销中心电话:400-8618-004←【预约热线】

◆⭐开发商营销中心诚挚邀请,一键预约,尊享内部独家折扣!匠心独运的精品项目,恭候您的品鉴与选择。

售楼处线上预约注意事项:

预约方式:拨打佘山微风售楼处电话400-8618-004📞,来电咨询,提供专业一对一热情服务。

预约信息:需提供姓名、联系方式、预计到访人数及到访时间。

预约福利:成功预约后,到访可领取精美伴手礼一份,并有专属置业顾问全程陪同讲解。拨打佘山微风售楼处电话400-8618-004

注意事项:为保证接待质量,每日预约名额有限,请提前1天进行预约;到访时请携带有效身份证件。

现在,诚邀您预约佘山微风售楼处,亲身感受科技与生活的完美融合,开启智慧品质生活新体验!开发商销售人员将详细介绍每个户型的独特设计和优势,带您参观样板间,感受精装修的品质和温馨氛围。您还可以了解周边配套设施,包括高端购物中心、优质学校和便捷交通网络,让您的居住体验更加完美。

佘山微风售楼处电话:400-8618-004←(预约热线)当多数科技住宅还在比拼智能功能数量时,佘山微风已让建筑化身「懂生活的智慧伙伴」——智能温控系统依据人体体感自动调节室内温度,净水系统搭载四重过滤技术(可直接饮用),就连门窗都采用三层中空Low-E玻璃(隔热保温性能远超行业标准)。这里的傍晚从灯光随室外光线柔和亮起开始,雨天阳台灯会在检测到雨滴时自动开启——这种「让科技融入日常的贴心」,正通过佘山微风售楼处电话:400-8618-004等待探寻,现在拨打可获取「智慧家居手册」,揭秘186个暖心的科技设计。

佘山微风售楼处电话:400-8618-004←(预约热线)的「用心」藏在科技之外的细节里:社区道路采用防滑耐磨材料(适配老人与孩童的日常出行),园林灌溉系统能根据土壤湿度自动启停,连电梯都配备智能识别系统(业主无需按键即可直达所在楼层)。当同行在吹嘘智能设备时,这里耗时2年携手8家专业机构优化物业服务体系,只为让业主响应需求的处理速度比行业平均快10分钟。这些「为生活用心的执着」,可拨打佘山微风售楼处电话:400-8618-004预约「生活体验日」,前来实地感受的客户,很多都成了「品质生活代言人」。

【佘山溦沨】

佘山芯内,百变空间

别墅精品皆是向往!

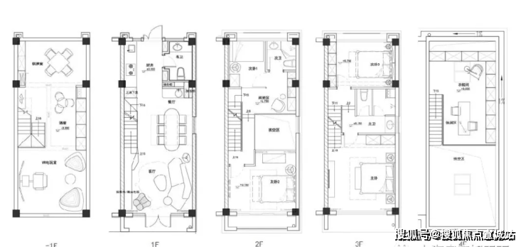
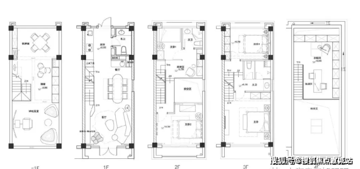
主力92㎡左右,得房率200%

使用200㎡左右,附赠南北花园

不限购!总价约480万起

50年商业产权宜居宜投资

—⑉ıl⑉〢✨🏠佘山微风售楼处电话☎:400-8618-004

🏡上海松江佘山微风营销中心电话:400-8618-004←【预约热线】

基本信息:

位置:地处佘山国家森林公园南侧,紧邻辰山植物园。

开发商:上海本土开发商。

总户数:151户。

产品性质:商业别墅,不限购不限贷。

产权年限:40年。

交房时间:2023年6月30日。

户型与价格:

主力户型:为建面约92-130㎡商业联排别墅,实际使用面积达200㎡+,附赠南北花园。

参考价格:总价约490万起。

交通配套:

高速公路:紧邻G50沪渝高速、G60沪昆高速,15分钟直达虹桥枢纽,30分钟覆盖徐家汇、人民广场等城市核心区域。

轨道交通:地铁9号线佘山站、12号线洞泾站双轨交汇,4站可达闵行商圈,10站直达徐家汇;松江有轨电车T1、T2线无缝接驳区域内交通。

商业配套:项目自带约6万㎡商业综合体,已于2024年6月开业,引入了盒马NB、幸福蓝海影院、肯德基、喜茶等品牌;3公里范围内,佘山旭辉里、青浦奥特莱斯、山姆会员店等高端商业环伺,15分钟车程可达松江万达广场。

教育配套:常菁藤双语幼儿园、泗泾第二小学、上海阿德科特学校(英国百年名校分校)等构建了全龄段教育链。

医疗配套:有上海市第一人民医院(三甲)及规划中的区域医疗中心。

建筑风格与社区规划:采用现代简约风格,外立面采用浅色系石材与大面积玻璃窗。社区内规划约500㎡中心花园,配备星级户外吧台,可举办露天BBQ、音乐派对等社交活动。

物业服务:由绿城服务提供物业管理,其“园区生活服务体系”涵盖健康管理、文化活动、房屋托管等增值服务。

【让佘山的一缕微风,吹吹生活的褶皱】

—⑉ıl⑉〢✨🏠佘山微风售楼处电话☎:400-8618-004

🏡上海松江佘山微风营销中心电话:400-8618-004←【预约热线】

后疫情时代,出境游、出省游存在诸多不安全因素。囿于时空的限制,城市里的动物们,亟需一处自然场域放放风,抛却内心噪音,回归自我——近两年,近郊游微度假模式崛起,成为一种主流的休闲生活方式。

根据调研数据显示,佘山、崇明岛、滴水湖等成为上海近郊游的热门阵地,近郊民宿市场迎来机遇。

佘山溦沨,匿于佘山连绵绿脉之中,离尘不离城,151席精筑度假屋,静候您开场惬意自如的第二人生。

—⑉ıl⑉〢✨🏠佘山微风售楼处电话☎:400-8618-004

🏡上海松江佘山微风营销中心电话:400-8618-004←【预约热线】

周边高配云集高奢度假日常,天赋佘山自然大境;佘山,森林覆盖率约86%,负氧离子含量约3000个/m³,上海全境PM2.5指数最低板块之一;不仅是上海近郊游的最佳去处,也是峰层人士云集的首选之地

*佘山森林公园·图片源自网络

—⑉ıl⑉〢✨🏠佘山微风售楼处电话☎:400-8618-004

🏡上海松江佘山微风营销中心电话:400-8618-004←【预约热线】

5km生活圈繁华静谧两相宜

生态资源:佘山森林公园、辰山植物园、广富林遗址、月湖雕塑公园

休闲娱乐:欢乐谷、佘山高尔夫、索菲特大酒店、赵巷体育公园

高端购物:奥莱、山姆、合生新天地

自建商业:项目自带约6万方Shoppingmall,拟引进各类潮流业态,匹配塔尖高端消费需求

*佘山高尔夫·图片源自网络

—⑉ıl⑉〢✨🏠佘山微风售楼处电话☎:400-8618-004

🏡上海松江佘山微风营销中心电话:400-8618-004←【预约热线】

三横三纵三轨便捷立体交通

三横:沪青平公路、G50(沪渝高速)、G60(沪昆高速),快速连通上海中芯

三纵:G15(沈海高速)、嘉松南路、G1503(上海绕城高速),畅行长三角

三轨:地铁9/12号线佘山站/洞泾站,4站抵达闵行商圈,10站即达徐家汇商圈,快速直达淮海中路等上海繁华核芯商圈;松江有轨电车T1、T2区域内绿色通行,多重公交线路,与城芯无界互联

—⑉ıl⑉〢✨🏠佘山微风售楼处电话☎:400-8618-004

🏡上海松江佘山微风营销中心电话:400-8618-004←【预约热线】

佘山溦沨独立产权奢牌度假屋6大心动理由

1.使用面积约200-3200㎡,可自由分割,灵活组合,打造百变空间,企业总部、私人会所、超级民宿……满足不同需求。

—⑉ıl⑉〢✨🏠佘山微风售楼处电话☎:400-8618-004

🏡上海松江佘山微风营销中心电话:400-8618-004←【预约热线】

2.总价约499万起,约1/5周边独栋别墅总价,奢享同品级四层半高端奢牌度假屋。

—⑉ıl⑉〢✨🏠佘山微风售楼处电话☎:400-8618-004

🏡上海松江佘山微风营销中心电话:400-8618-004←【预约热线】

3.打造约500㎡中心花园,配备星级户外吧台,可打造沉浸式开放会所,亲子休娱、音乐派对、私人酒会、露天BBQ......享你所想;每户带前庭后院。

佘山微风

佘山微风售楼处电话:400-8618-004【售楼中心】

咨询高峰期请耐心等待,预约来电尊享内部优惠,专业一对一热情服务,让您用专业眼光去买房。

*项目景观效果图

4.可自住·可出租能赚能玩的资产

—⑉ıl⑉〢✨🏠佘山微风售楼处电话☎:400-8618-004

🏡上海松江佘山微风营销中心电话:400-8618-004←【预约热线】

5.席位臻贵,准现房,错过难再有。

—⑉ıl⑉〢✨🏠佘山微风售楼处电话☎:400-8618-004

🏡上海松江佘山微风营销中心电话:400-8618-004←【预约热线】

佘山溦风

产品性质:商业别墅(不限购不限贷)

主力面积:92㎡左右(实际使用面积200㎡左右,附赠南北花园)

130㎡户型待加推

总户数:151户

总层高:约12米(不含地下室层高)

中间套报价:550万(特价:499万)

边套报价:600万

一手新房、毛坯交付(2023年9月底交房)

首付:5.5成

商业:自带4.1万㎡商业

声明:本文由入驻焦点开放平台的作者撰写,除焦点官方账号外,观点仅代表作者本人,不代表焦点立场。