上海杨浦-保利·新江湾售楼处电话:400-8851-337 保利·新江湾项目将于2025年9月入市,推出约100-300㎡洋房、叠墅等低密产品,定位高端住宅,售楼处电话400-8851-337。
杨浦·新江湾城 全新盘
上海杨浦-保利·新江湾售楼处电话:400-8851-337✔✔✔(已认证)
保利·新江湾售楼处线上预约看房热线电话:400-8851-337(24小时热线含专属置业顾问)
保利·新江湾售楼处24小时vip热线☎:400-8851-337【开发商售楼处预约看房热线】


最新消息
杨浦·新江湾城 全新盘
「保利发展新江湾项目」等待入市
将拟建洋房+叠加+联排产品
将推约100-300㎡左右
共计455套房源
网传户型图流出

利·新江湾售楼处电话:400-8851-337✔✔✔(已认证)
进“保利新江湾项目”预约看房通道
官方销售会第一时间与您联系
利·新江湾售楼处电话:400-8851-337✔✔✔(已认证)
基本信息
2025年9月日前,保利发展与上海地产联手,通过股权转让方式拿下新江湾城一宗地块。出让总价37亿元,成交楼面价5.89万元/㎡。这是保利发展首次在新江湾城板块拿地。

利·新江湾售楼处电话:400-8851-337✔✔✔(已认证)
新江湾E1-08A地块,位于新江湾城北侧,直线距10号线地铁新江湾城站约1.2公里。容积率仅约1.1,限高约20米。规划建造全部低密产品,包括洋房、叠加、联排。未来将和其南侧陆续开盘售卖中的建发海宸共同为新江湾城板块新房市场发力。
利·新江湾售楼处电话:400-8851-337✔✔✔(已认证)

利·新江湾售楼处电话:400-8851-337✔✔✔(已认证)
四至范围:东至E1-09规划公共绿地,西至江湾城路,南至E1-08E公共通道,北至E1-09规划公共绿地。
利·新江湾售楼处电话:400-8851-337✔✔✔(已认证)

而现在针对E1-08A地块的施工和监理招标也启动起来:

利·新江湾售楼处电话:400-8851-337✔✔✔(已认证)
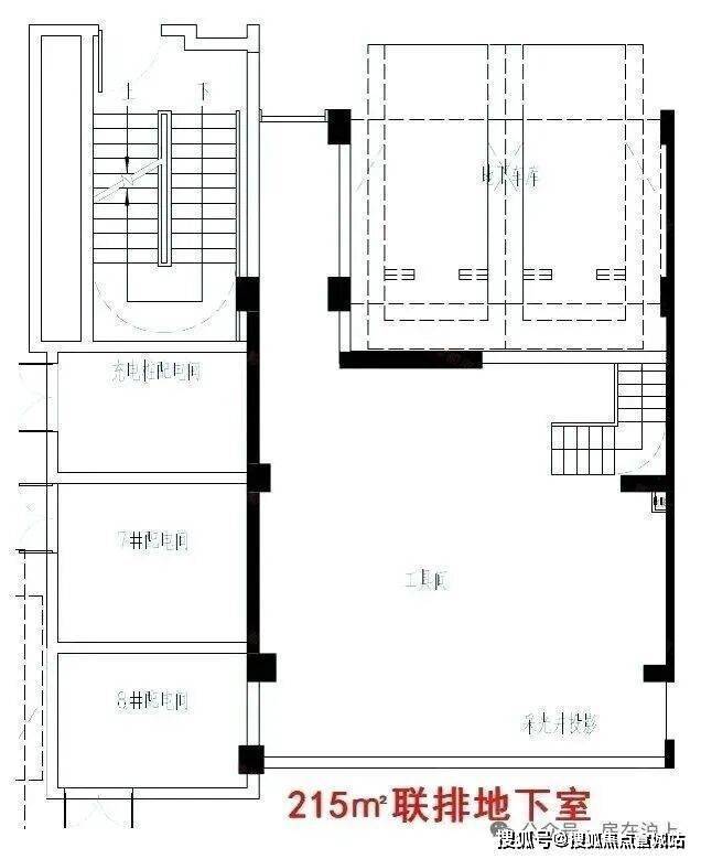
杨浦区新江湾社区E1-08A地块,预计建造约238套100-139㎡6层洋房,48套160㎡叠墅(上下叠),68套170㎡叠墅(上下叠),47套190㎡联排别墅,24套215㎡联排别墅,11套260㎡联排别墅,2套350㎡联排别墅。

利·新江湾售楼处电话:400-8851-337✔✔✔(已认证)

保利·新江湾售楼处电话:400-8851-337✔✔✔(已认证)

利·新江湾售楼处电话:400-8851-337✔✔✔(已认证)
网传过程稿户型图:
(仅供参考,最终以开发商发布为准)

利·新江湾售楼处电话:400-8851-337✔✔✔(已认证)

保利·新江湾售楼处电话:400-8851-337✔✔✔(已认证)

利·新江湾售楼处电话:400-8851-337✔✔✔(已认证)
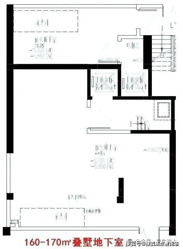
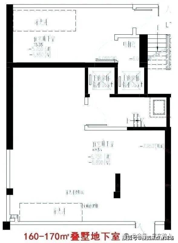
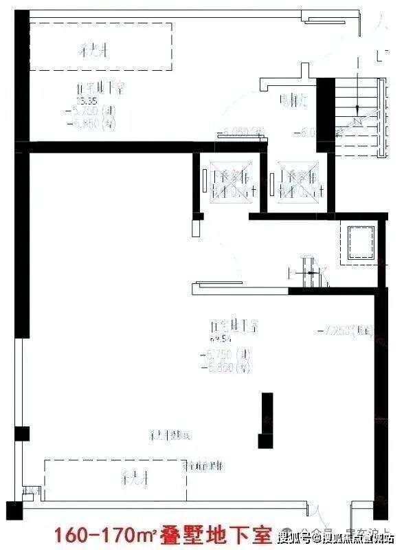
约160-170㎡的叠墅户型图

利·新江湾售楼处电话:400-8851-337✔✔✔(已认证)

利·新江湾售楼处电话:400-8851-337✔✔✔(已认证)

利·新江湾售楼处电话:400-8851-337✔✔✔(已认证)

保利·新江湾售楼处电话:400-8851-337✔✔✔(已认证)

利·新江湾售楼处电话:400-8851-337✔✔✔(已认证)
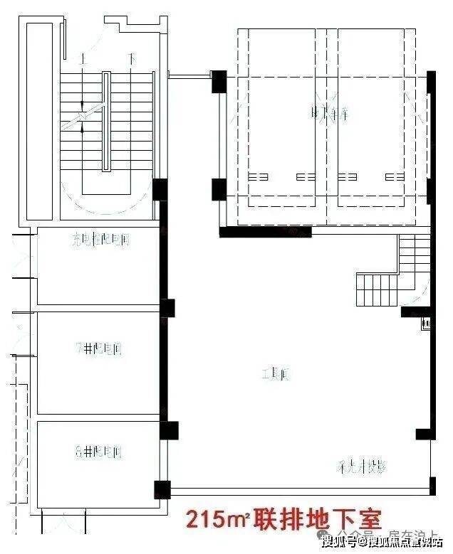
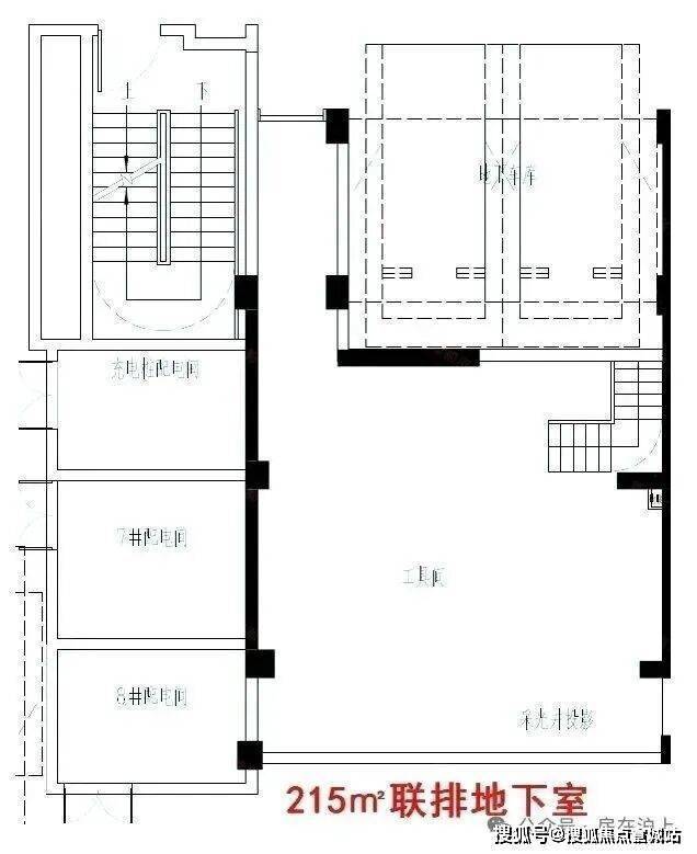
约215㎡的联排户型图

保利·新江湾售楼处电话:400-8851-337✔✔✔(已认证)

保利·新江湾售楼处电话:400-8851-337✔✔✔(已认证)

利·新江湾售楼处电话:400-8851-337✔✔✔(已认证)

利·新江湾售楼处电话:400-8851-337✔✔✔(已认证)
项目南侧不远处是杨浦德法学校,再往南就是目前新江湾城板块在售的新盘建发海宸,未来入市,相信能和建发海宸形成协同作用,共同提升新江湾城板块的居住焕新价值。利·新江湾售楼处电话:400-8851-337✔✔✔(已认证)
E1-08A地块总投资达到70亿元,总建筑面积达到11.9万平方米,其中地上面积达到6.7万平方米。而计划的开工日期是2025年12月20日。


利·新江湾售楼处电话:400-8851-337✔✔✔(已认证)
按照这个时间节点推算,预计该项目最快有机会在2026年1月首开入市销售。至于价格,参考地块南侧的建发海宸,预计洋房未来可能售价在11.5万左右,别墅产品有望在13-15万价格区间。
利·新江湾售楼处电话:400-8851-337✔✔✔(已认证)
进“保利新江湾项目”预约看房通道
官方销售会第一时间与您联系
利·新江湾售楼处电话:400-8851-337✔✔✔(已认证)
周边配套
新江湾城作为上海主城唯一生态湿地绿化率超过60%,更有“生态绿宝石”之称,项目约1.1超低容积率,低密生活舒适度放眼上海都非常稀缺!

新江湾城实景图
利·新江湾售楼处电话:400-8851-337✔✔✔(已认证)
项目周边汇聚中福会幼儿园、规划幼儿园、上音实验学校、德法学校、复旦大学等全龄学府,从幼儿园、小学到中学、大学全覆盖,优质教育氛围相当难得!
利·新江湾售楼处电话:400-8851-337✔✔✔(已认证)

复旦大学示意图
利·新江湾售楼处电话:400-8851-337✔✔✔(已认证)
项目邻近轨交10号线,直通五角场、南京东路、虹桥枢纽,出行相当便捷。
4站地铁直达五角场商圈,合生汇、万达广场、百联又一城等,完全满足日常购物需求~
利·新江湾售楼处电话:400-8851-337✔✔✔(已认证)

五角场商圈实景图
利·新江湾售楼处电话:400-8851-337✔✔✔(已认证)
医疗资源雄厚,海军军医大学第一附属医院·长海医院、同济大学附属·肺科医院、海军军医大学第一附属医院·东方肝胆、复旦大学·市东医院新江湾院区(在建)等三甲医院构筑健康屏障。
利·新江湾售楼处电话:400-8851-337✔✔✔(已认证)

利·新江湾售楼处电话:400-8851-337✔✔✔(已认证)
产业集聚显著,湾谷科技园、铁狮门综合体(抖音总部、B站总部、叠纸总部、汉高总部、耐克大中华区总部)等7000余家科创企业环伺,形成“产城文化生态”深度融合的第三代国际社区。
利·新江湾售楼处电话:400-8851-337✔✔✔(已认证)

利·新江湾售楼处电话:400-8851-337✔✔✔(已认证)
进“保利新江湾项目”预约看房通道
官方销售会第一时间与您联系
利·新江湾售楼处电话:400-8851-337✔✔✔(已认证)
杨浦·新江湾城 全新盘
上海杨浦-保利·新江湾售楼处电话:400-8851-337✔✔✔(已认证)
保利·新江湾售楼处线上预约看房热线电话:400-8851-337(24小时热线含专属置业顾问)
保利·新江湾售楼处24小时vip热线☎:400-8851-337【开发商售楼处预约看房热线】


最新消息
杨浦·新江湾城 全新盘
「保利发展新江湾项目」等待入市
将拟建洋房+叠加+联排产品
将推约100-300㎡左右
共计455套房源
网传户型图流出

保利·新江湾售楼处电话:400-8851-337✔✔✔(已认证)
进“保利新江湾项目”预约看房通道
官方销售会第一时间与您联系
保利·新江湾售楼处电话:400-8851-337✔✔✔(已认证)
基本信息
2025年9月日前,保利发展与上海地产联手,通过股权转让方式拿下新江湾城一宗地块。出让总价37亿元,成交楼面价5.89万元/㎡。这是保利发展首次在新江湾城板块拿地。

保利·新江湾售楼处电话:400-8851-337✔✔✔(已认证)
新江湾E1-08A地块,位于新江湾城北侧,直线距10号线地铁新江湾城站约1.2公里。容积率仅约1.1,限高约20米。规划建造全部低密产品,包括洋房、叠加、联排。未来将和其南侧陆续开盘售卖中的建发海宸共同为新江湾城板块新房市场发力。
保利·新江湾售楼处电话:400-8851-337✔✔✔(已认证)

杨浦·新江湾城 全新盘
上海杨浦-保利·新江湾售楼处电话:400-8851-337✔✔✔(已认证)
保利·新江湾售楼处线上预约看房热线电话:400-8851-337(24小时热线含专属置业顾问)
保利·新江湾售楼处24小时vip热线☎:400-8851-337【开发商售楼处预约看房热线】
四至范围:东至E1-09规划公共绿地,西至江湾城路,南至E1-08E公共通道,北至E1-09规划公共绿地。
保利·新江湾售楼处电话:400-8851-337✔✔✔(已认证)

而现在针对E1-08A地块的施工和监理招标也启动起来:

保利·新江湾售楼处电话:400-8851-337✔✔✔(已认证)
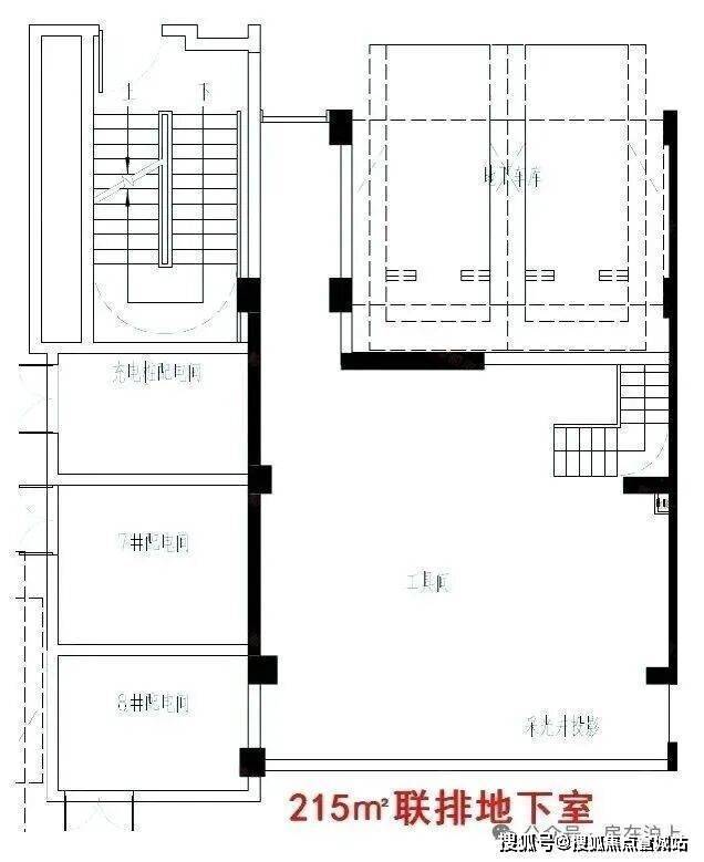
杨浦区新江湾社区E1-08A地块,预计建造约238套100-139㎡6层洋房,48套160㎡叠墅(上下叠),68套170㎡叠墅(上下叠),47套190㎡联排别墅,24套215㎡联排别墅,11套260㎡联排别墅,2套350㎡联排别墅。

保利·新江湾售楼处电话:400-8851-337✔✔✔(已认证)

保利·新江湾售楼处电话:400-8851-337✔✔✔(已认证)

保利·新江湾售楼处电话:400-8851-337✔✔✔(已认证)
网传过程稿户型图:
(仅供参考,最终以开发商发布为准)

保利·新江湾售楼处电话:400-8851-337✔✔✔(已认证)

保利·新江湾售楼处电话:400-8851-337✔✔✔(已认证)

保利·新江湾售楼处电话:400-8851-337✔✔✔(已认证)
约160-170㎡的叠墅户型图

保利·新江湾售楼处电话:400-8851-337✔✔✔(已认证)

保利·新江湾售楼处电话:400-8851-337✔✔✔(已认证)

保利·新江湾售楼处电话:400-8851-337✔✔✔(已认证)

保利·新江湾售楼处电话:400-8851-337✔✔✔(已认证)

保利·新江湾售楼处电话:400-8851-337✔✔✔(已认证)
约215㎡的联排户型图

保利·新江湾售楼处电话:400-8851-337✔✔✔(已认证)

保利·新江湾售楼处电话:400-8851-337✔✔✔(已认证)

保利·新江湾售楼处电话:400-8851-337✔✔✔(已认证)

保利·新江湾售楼处电话:400-8851-337✔✔✔(已认证)
项目南侧不远处是杨浦德法学校,再往南就是目前新江湾城板块在售的新盘建发海宸,未来入市,相信能和建发海宸形成协同作用,共同提升新江湾城板块的居住焕新价值。保利·新江湾售楼处电话:400-8851-337✔✔✔(已认证)
E1-08A地块总投资达到70亿元,总建筑面积达到11.9万平方米,其中地上面积达到6.7万平方米。而计划的开工日期是2025年12月20日。


保利·新江湾售楼处电话:400-8851-337✔✔✔(已认证)
按照这个时间节点推算,预计该项目最快有机会在2026年1月首开入市销售。至于价格,参考地块南侧的建发海宸,预计洋房未来可能售价在11.5万左右,别墅产品有望在13-15万价格区间。
保利·新江湾售楼处电话:400-8851-337✔✔✔(已认证)
进“保利新江湾项目”预约看房通道
官方销售会第一时间与您联系
保利·新江湾售楼处电话:400-8851-337✔✔✔(已认证)
周边配套
新江湾城作为上海主城唯一生态湿地绿化率超过60%,更有“生态绿宝石”之称,项目约1.1超低容积率,低密生活舒适度放眼上海都非常稀缺!
杨浦·新江湾城 全新盘

上海杨浦-保利·新江湾售楼处电话:400-8851-337✔✔✔(已认证)
保利·新江湾售楼处线上预约看房热线电话:400-8851-337(24小时热线含专属置业顾问)
保利·新江湾售楼处24小时vip热线☎:400-8851-337【开发商售楼处预约看房热线】
作为中国楼市风向标,2025年上海房地产市场呈现鲜明分化特征:新房市场结构性升温与二手房调整承压并存,政策宽松托底与高库存压力交织,正经历供需重构与价值回归的深度调整。
新房市场“高端坚挺、刚需活跃”的两极分化显著。国家统计局数据显示,2025年9月上海新房价格环比上涨0.3%,前9月均价同比上涨5.8%,核心驱动力来自核心区优质改善房源。9月入市的43个楼盘中,内环内项目占7个,单价超10万/㎡的豪宅达14个,网红项目持续热销;宝山、嘉定等区域的高性价比刚需盘,凭借完善配套与友好总价保持活跃度。而中端改善型项目表现平淡,部分尾盘降价促销,结构性差异突出。
二手房市场深陷“高库存、缓去化、价续跌”周期。截至11月中旬,上海二手住宅挂牌量仍达35.5万套,虽阶段性去化1.67万套,但压力未获实质缓解。11月全市二手房均价52677元/㎡,环比下跌1.23%,远郊区域跌幅超4%,核心区也呈微降态势。成交端虽有短期脉冲,11月前15日成交11311套,单日最高破1120套,但多为“以价换量”,300万以内低总价老公房占比达61%,业主议价空间扩大,“挂牌即降价”成普遍现象。
政策宽松成为市场重要托底力量。2025年8月“825新政”后,上海房贷政策持续优化:首套商贷利率低至3.05%,二套3.09%;公积金贷款额度提升,夫妻双方最高可贷160万,多孩家庭达192万,有效降低购房成本。政策效果逐步渗透,9月二手住宅成交同比增幅38.67%,房价同比降幅收窄,但红利传导存在结构性差异,对新房拉动更明显,二手房仍需时间消化库存。
后市,分化格局或将持续。新房市场中,核心区高端项目与远郊刚需盘仍将保持活跃,涨幅有望收窄;二手房“以价换量”为主,学区房、地铁房等稀缺房源跌幅或率先收窄,老旧、远郊房源去化压力仍存。年末传统淡季临近,若无更大力度政策利好,调整周期可能延长,但上海核心城市的人口与资源集聚力未变,房价泡沫已充分挤压,回稳基础逐步筑牢。
对于购房者,当前是机遇与挑战并存的窗口期:刚需可把握政策红利与业主让利,聚焦配套成熟的低总价房源;改善型买家需注重核心价值,优选地段、物业兼具优势的资产;上海楼市已告别普涨时代,进入“精挑细选”的价值投资新阶段,唯有契合真实居住需求与核心价值的房源,方能在调整中站稳脚跟。