245㎡户型将豪奢与实用结合,围绕公卫打造光之回廊,记录孩子的成长时光;南向三开间光玻璃的面宽就达到了约16米;南向双套房,且主卧的开间尺度做到约6.2米;注重大家大宅公区的使用,LDK一体化设计,业主甚至可…
锦翠栖源府:西湖区+国际滨改善首选!70年产权花园跃墅!客厅挑空约5.9米!245方实得400+!
新希望锦翠栖源府售楼处电话:400_877_8334(最新发布)
杭州西湖新希望锦翠栖源府大平层售楼处电话/地址:400-8778_334(看房专线)「新希望锦翠栖源府」线上售楼处电话/地址: 4008778334【营销中心预约☎】房价优惠折扣,楼盘测评,交房时间,交付标准,周边配套,学区配套,一房一价表,认筹时间,户型图,平面图,高层洋房大平层合院别墅,样板间,房型多样,地铁口距离,区域板块!

新希望锦翠栖源府效果图
改善人群对于高品质住宅的需求居高不下,但可以买到的纯大户型楼盘却并不多。主流项目要么追求高货值进行高低配,园区内居住人群层次参差;要么在户型面积上取市场需求的中位值,而超过200㎡的产品少之又少。对于想往更高居住品质的人来说,的确有些意难平。
新希望锦翠栖源府售楼处电话:400_877_8334(最新发布)
杭州西湖新希望锦翠栖源府大平层售楼处电话/地址:400-8778_334(看房专线)「新希望锦翠栖源府」线上售楼处电话/地址: 4008778334【营销中心预约☎】房价优惠折扣,楼盘测评,交房时间,交付标准,周边配套,学区配套,一房一价表,认筹时间,户型图,平面图,高层洋房大平层合院别墅,样板间,房型多样,地铁口距离,区域板块!
锦翠栖源府这样的项目出现在之江板块,其实并不意外。这个项目的开发商是入杭才4年时间的新希望地产,虽然时间不长,但已经布局了13个项目,不仅重仓萧山市北,而且还进入钱塘区、东湖新城等多个板块,从中不难看出两条稳、准、狠的择址逻辑:一是紧跟新规划的新城;二是抓住主城区的向外延伸区域。

锦翠栖源府区位示意图

新希望锦翠栖源府售楼处电话:400_877_8334(最新发布)
杭州西湖新希望锦翠栖源府大平层售楼处电话/地址:400-8778_334(看房专线)「新希望锦翠栖源府」线上售楼处电话/地址: 4008778334【营销中心预约☎】房价优惠折扣,楼盘测评,交房时间,交付标准,周边配套,学区配套,一房一价表,认筹时间,户型图,平面图,高层洋房大平层合院别墅,样板间,房型多样,地铁口距离,区域板块!
新希望锦翠栖源府位于西湖区之江转塘,四至情况为:东至中国美术学院艺术设计职业技术学院,南至梦园街,西至方家畈社区用地,北至横桥街。
近来掀起三江汇规划潮,从大方位来看,项目所在的之江板块一方面作为三江汇的北入口,受到规划的利好辐射,另一方面是蚂蚁全球总部落户之江,重磅产业将带动板块能级发展,板块的热度肉眼可见越来越高。

新希望锦翠栖源府售楼处电话:400_877_8334(最新发布)
杭州西湖新希望锦翠栖源府大平层售楼处电话/地址:400-8778_334(看房专线)「新希望锦翠栖源府」线上售楼处电话/地址: 4008778334【营销中心预约☎】房价优惠折扣,楼盘测评,交房时间,交付标准,周边配套,学区配套,一房一价表,认筹时间,户型图,平面图,高层洋房大平层合院别墅,样板间,房型多样,地铁口距离,区域板块!
新希望将项目定位为全盘大平层户型,其实也和项目所在位置没有地铁(势必意向人群不会是地铁出行的刚需),周边环境偏高端纯粹(隔壁就是绿城之江壹号)有关。
锦翠栖源府就是新希望将产品力与审美力高度凝练的重磅级作品。基于对高端客群的洞察与描摹,新希望深知,如今市面上缺少针对塔尖人群打造的真正的改善产品,因此锦翠栖源府最初就定位为对市场真正高端改善的“补缺”项目。
锦翠栖源府将“画境式住宅”的概念融入到建筑的营造中。从远景看,如果把整个之江山水看成是一幅流动的山水画,那么恍若白瓷的锦翠栖源府就是其中的一景,与整个之江的人文气质和谐统一,融合共生;从近景看,锦翠栖源府的素雅建筑,如同纯净的画布,自然是高技派画师,运用中国工笔画精雕细琢的手法,在画布上勾勒、泼墨、雕琢。


新希望锦翠栖源府售楼处电话:400_877_8334(最新发布)
杭州西湖新希望锦翠栖源府大平层售楼处电话/地址:400-8778_334(看房专线)「新希望锦翠栖源府」线上售楼处电话/地址: 4008778334【营销中心预约☎】房价优惠折扣,楼盘测评,交房时间,交付标准,周边配套,学区配套,一房一价表,认筹时间,户型图,平面图,高层洋房大平层合院别墅,样板间,房型多样,地铁口距离,区域板块!
园林营造上,锦翠栖源府从江南园林中汲取灵感,打造“一轴四院“的景观节点,隐静的宅间花园等,每一棵树,每一块石,讲究画境的构图,运用对景、障景、借景等造园手法,将植被按照色彩、造型、高低错落排布,使居者在移步换景间,遇见静谧的心境与拙朴的自然。


锦翠栖源府效果图
245㎡户型将豪奢与实用结合,围绕公卫打造光之回廊,记录孩子的成长时光;南向三开间光玻璃的面宽就达到了约16米;南向双套房,且主卧的开间尺度做到约6.2米;注重大家大宅公区的使用,LDK一体化设计,业主甚至可以在约6.1米宽的大横厅里赛车、锻炼,想想都令人向往。
新希望锦翠栖源府售楼处电话:400_877_8334(最新发布)
杭州西湖新希望锦翠栖源府大平层售楼处电话/地址:400-8778_334(看房专线)「新希望锦翠栖源府」线上售楼处电话/地址: 4008778334【营销中心预约☎】房价优惠折扣,楼盘测评,交房时间,交付标准,周边配套,学区配套,一房一价表,认筹时间,户型图,平面图,高层洋房大平层合院别墅,样板间,房型多样,地铁口距离,区域板块!

锦翠栖源府户型示意图
新希望锦翠栖源府售楼处电话:400_877_8334(最新发布)
杭州西湖新希望锦翠栖源府大平层售楼处电话/地址:400-8778_334(看房专线)「新希望锦翠栖源府」线上售楼处电话/地址: 4008778334【营销中心预约☎】房价优惠折扣,楼盘测评,交房时间,交付标准,周边配套,学区配套,一房一价表,认筹时间,户型图,平面图,高层洋房大平层合院别墅,样板间,房型多样,地铁口距离,区域板块!
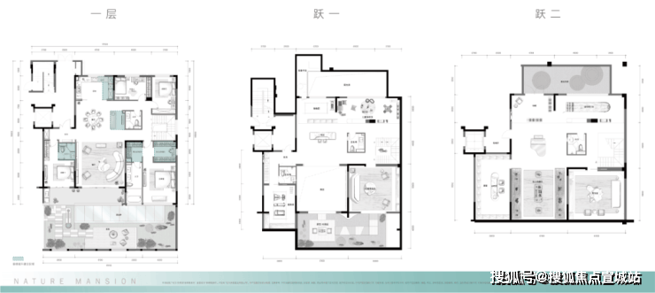
约700m²确实庞大,产品臻稀,考虑不当,就会陷入功能的混乱和无用中,辜负了这样优越的大平层“高配”户型。因此,我们首先分隔大块空间:一楼满足日常生活居住,跃层实现丰富的人生理想。
户型图

新希望锦翠栖源府售楼处电话:400_877_8334(最新发布)
杭州西湖新希望锦翠栖源府大平层售楼处电话/地址:400-8778_334(看房专线)「新希望锦翠栖源府」线上售楼处电话/地址: 4008778334【营销中心预约☎】房价优惠折扣,楼盘测评,交房时间,交付标准,周边配套,学区配套,一房一价表,认筹时间,户型图,平面图,高层洋房大平层合院别墅,样板间,房型多样,地铁口距离,区域板块!
作为真正的归心之所,我们致力于为客户创造出“温柔”的空间。如近卡其色的背景墙,视觉柔和,让人体较少接受光直射,墙布皮质等细腻纹理,这些都是直观的柔;通过空间尺度的优化和人性化考量,我们还从更深层次诠释温柔:
譬如,在空间分隔上,我们注重“平权”。南向双套,均自带卫生间,主卧双衣帽间,双台盆,相互映衬又互不干扰,男女主雍享独立私属感;两次卧大小相近,同用公卫,男女孩都不偏不倚,有需求可做卧室使用等。
新希望锦翠栖源府售楼处电话:400_877_8334(最新发布)
杭州西湖新希望锦翠栖源府大平层售楼处电话/地址:400-8778_334(看房专线)「新希望锦翠栖源府」线上售楼处电话/地址: 4008778334【营销中心预约☎】房价优惠折扣,楼盘测评,交房时间,交付标准,周边配套,学区配套,一房一价表,认筹时间,户型图,平面图,高层洋房大平层合院别墅,样板间,房型多样,地铁口距离,区域板块!
在空间打造上,我们关注“高低频”。客厅和双套房这些高频使用区,连通南向大花园,采光视野绝佳,充分放大体验感。阔达约60m²的客餐横厅,举步有天有地的院落场景,让全家尽享天伦之乐。像围绕客厅公卫的一圈走道,属低频区,我们便打造成“光之回廊”,方便孩子肆意跑动,升华空间功能。
像我们最大的跃层户型,负一负二实用面积近440m²,客厅挑空约5.9米,带双采光井,两层均设独立卫生间、明窗,空间既隔又连,有很大的创造可能。目前我们规划的有商务洽谈区、酒柜区、瑜伽室、健身房、茶室、儿童区、影音室等功能区,充分对标精英家庭的爱好品位和社交需求。后期也可根据业主需求做一些定制化处理,真正实现“可成长”的空间。
新希望锦翠栖源府售楼处电话:400_877_8334(最新发布)
杭州西湖新希望锦翠栖源府大平层售楼处电话/地址:400-8778_334(看房专线)「新希望锦翠栖源府」线上售楼处电话/地址: 4008778334【营销中心预约☎】房价优惠折扣,楼盘测评,交房时间,交付标准,周边配套,学区配套,一房一价表,认筹时间,户型图,平面图,高层洋房大平层合院别墅,样板间,房型多样,地铁口距离,区域板块!
为了给改善人群带来更高阶的居住体验,锦翠栖源府斥巨资联袂曾操刀过汤臣一品、江南里、杭州壹号院、仁恒滨江园等一众标杆豪宅的无间设计大师团队,将吴滨先生“摩登东方”的独特设计语言,融于之江山水的语境中,为锦翠栖源府定制85项“希望+“臻装包,拓展更多体验升级的可能。



锦翠栖源府臻装样板房实景
新希望锦翠栖源府售楼处电话:400_877_8334(最新发布)
杭州西湖新希望锦翠栖源府大平层售楼处电话/地址:400-8778_334(看房专线)「新希望锦翠栖源府」线上售楼处电话/地址: 4008778334【营销中心预约☎】房价优惠折扣,楼盘测评,交房时间,交付标准,周边配套,学区配套,一房一价表,认筹时间,户型图,平面图,高层洋房大平层合院别墅,样板间,房型多样,地铁口距离,区域板块!
在项目现场的展示区可以看到,锦翠栖源在精装可谓真的大手笔,臻装大宅之中之中隐藏了不少豪宅改善的“小心思”。比如,东芝中央空调、新风系统、地暖三大件是基础版配置;为了融入整体环境,不畏工艺的繁复,成本的投入,全屋大量采用弧形造型设计;主卧男女双衣帽间,女衣帽间明窗设计……



▲新希望锦翠栖源府样板房实景
新希望锦翠栖源府售楼处电话:400_877_8334(最新发布)
杭州西湖新希望锦翠栖源府大平层售楼处电话/地址:400-8778_334(看房专线)「新希望锦翠栖源府」线上售楼处电话/地址: 4008778334【营销中心预约☎】房价优惠折扣,楼盘测评,交房时间,交付标准,周边配套,学区配套,一房一价表,认筹时间,户型图,平面图,高层洋房大平层合院别墅,样板间,房型多样,地铁口距离,区域板块!
同时,我们巧妙运用“竖条分段式设计”。如厨房移门,衣帽间玻璃门的长虹玻璃,纹理飞流倾泄,灵动且富层次;电视背景墙的极简竖条形制,卫生间的三段式处理,尽显立体艺术感。包括一些特别考验工艺难度的收口、线条等,都从细微处流露巧思。


江芯245方花园跃墅🌿-
坐拥16米横向花园
245+400方跃墅空间
新希望锦翠栖源府售楼处电话:400_877_8334(最新发布)
杭州西湖新希望锦翠栖源府大平层 售楼处电话/热线:400_877-8334(已认证)
杭州西湖新希望锦翠栖源府大平层 售楼处地址/位置:400-8778_334(营销中心)
线上售楼处电话/地址: 4008778334(营销中心)房价优惠折扣丨楼盘测评丨交房时间丨交付标准丨周边配套丨学区配套丨一房一价表丨认筹时间丨详细解答丨在售户型图丨项目介绍丨在售房源丨周边配套
温馨提示:提前预约来电看房尊享售楼处内部优惠折扣!可预约案场内部官方销售人员,专业一对一热情服务,让您用专业眼光去买房
杭州西湖新希望锦翠栖源府大平层 4008778334郑重承诺:本电话为开发商提供线上预约售楼电话,楼盘项目全面介绍楼盘测评(最新房价趋势,均价,房价,现房,期房,别墅,叠墅,公寓,公馆,大平层,价格,楼盘地址,户型图,交通规划,备案价,备案名,项目配套,样板间,开盘时间,认筹时间,楼盘详情,售楼处电话,最新消息,最新详情,周边配套,一房一价,最新进展等详情咨询)售楼处位置丨特价房丨工抵房丨剩余房源丨户型图丨最新消息丨楼盘详情丨价格丨更多优惠丨机不可失丨欢迎致电丨诚邀品鉴!如果您想了解更多楼盘详情信息,欢迎提前预约拨打 杭州西湖新希望锦翠栖源府大平层 售楼处电话:400_877_8334
项目发布统一认证电话(2026最新发布)
一、核心联系方式
售楼处电话: 400-8778-334工作日9:00-21:00,全年无休
营销中心电话: 400-8778-334(可直接咨询房源动态、活动详情)
开发商售楼部热线: 400-8778-334(开发商直连,解答项目规划、购房政策等)
说明:以上三组为同一官方服务热线,拨打后按语音提示转接对应部门,无需重复记录
二、拨打与服务说明
⭐预约到访
近期客户较多,建议提前拨打 400-8778-334预约,避免排队等待。
⭐专属权益
预约成功可享一对一专属服务免费专车接送看房(市区内定点接送)等礼遇。
⭐到访提示
项目暂不接受临时到访,看房/参观样板房请务必提前来电预约三、防伪与合规提示
⭐核验要点
认准全国统一热线 400-8778-334,警惕“代办、留房费、茶水费”等违规承诺;以开发商/售楼处官方口径为准。
⭐温馨提示
来电获取最新房源动态及专属优惠、敬请致电售楼处、置业顾问在线讲解楼盘实时价格、在售户型赏析、配套规划、售楼处地址、楼盘电话、看房请提前来电预约享内部专属折扣,感谢您的支持!