上海华润华发时代之城首页网站-时代之城售楼处电话-时代之城楼盘详情-2025最新房价-户型配套-容积率-得房率-小区环境-交房时间-周边配套

搜狐焦点宣城站 2025-09-14 08:41:02
用手机看
扫描到手机,新闻随时看

扫一扫,用手机看文章
更加方便分享给朋友

华润华发时代之城位于嘉定南翔,主打高层、叠墅,临近地铁、学校、商圈,精装交付,热销。

嘉定南翔热销红盘!【华润时代之城】约104-177㎡高层/叠墅,双轨交+名校加持+印象城旁!附官方预约通道!

══上海嘉定区「华润华发时代之城」══

华润华发时代之城售楼处电话:400-8778-334

售楼部官方电话|地址位置:400-8778-334【售楼中心官网已认证√√】

温馨提示:如有问题欢迎来电咨询➨提前预约开发商销售一对一热情讲解楼盘详情【享】内部专属房源限时优惠折扣!

华润华发时代之城售楼处电话:400-8778-334

楼盘基本信息

开发商:华润置地(央企)与华发股份(珠海国企)联合开发

备案名:时代之城

位置:上海市嘉定区南翔镇嘉前路288号(南翔中央生活区核心)

产权性质:70年住宅(普通商品房)

物业类型:高层/洋房/叠墅混合社区(容积率2.2)

总户数:约251套(七期加推)

华润华发时代之城售楼处电话:400-8778-334

主力户型:

建面约89-133㎡三至四房(高层)

建面约104-177㎡叠墅(上/下叠)

交付标准:精装(含中央空调、地暖)

物业费:待定(参考同系产品约4-5元/㎡/月)

交付时间:2026年9月30日(部分楼栋)

售楼处及展厅信息

主售楼处:

地址:嘉定区南翔镇嘉前路288号(项目东门)

电话:华润华发时代之城售楼处电话:400-8778-334(官方预约热线)

核心配套

交通:

地铁:11号线陈翔公路站(步行约400米)

自驾:沪嘉高速、嘉闵高架快速路

商业:

南翔印象城(直线距离1.2公里)、山姆会员店(1.5公里)

教育:

上师大附属嘉定实验学校(需以教育局划片为准)

华润华发时代之城售楼处电话:400-8778-334

生态:

银翔湖公园(步行约800米)

项目亮点

销冠盘:2024年外环每卖5套房就有1套来自时代之城

产品力:GAD设计团队操刀,立面采用天青色铝板+LOW-E玻璃

现房优势:部分楼栋2026年交付,实景示范区已开放

注意事项

价格参考:2025年9月均价约5.85万-6.02万/㎡(总价475万-840万)

学区风险:对口学校需以教育局当年划片政策为准

预约看房:需提前2小时电话预约,仅接待预约客户

华润华发时代之城售楼处电话:400-8778-334

华润华发时代之城售楼处电话:400-8778-334

嘉定南翔新城核心板块

加推约104-177㎡高层&叠加

均价60186元/㎡正在认购中

实景示范区线上提前预约

华润华发时代之城售楼处电话:400-8778-334

墅境美学社区匠筑产品力标杆

10年前,华润置地首入南翔就打造了超前设计的「中央公园」,迄今为止,依然是南翔的人居标杆。

过去一年,华润置地在上海开启海派风格产品序列。从前滩润璟,到虹桥润璟,再到观宸润府、中環置地中心润府,奢玉、奢石、奢板等高端材质的甄选,定制化的海派花园,华润置地“品质卷王”名副其实~

华润置地近期标杆项目

华润华发时代之城售楼处电话:400-8778-334

如今华润置地和华发股份强强联袂,在南翔这块热土之上打造时代之城,依然是“卷到极致”!

项目聘请了GAD、陌向景观、FACE飞视等大师级别设计团队,分别负责项目的建筑设计、景观设计以及家装设计!

其中负责建筑设计的GAD团队,行业水平遥遥领先,代表作有上海黄浦8号、上海玫瑰园、北京豫园、杭州绿城江南里、苏州桃花源等斐名全国的豪宅项目,实力非凡!

时代之城鸟瞰效果图

华润华发时代之城售楼处电话:400-8778-334

建筑方面,美学立面质感十足!

高层/小高层立面采用极简线条垂直一体化设计,局部甄选天青色铝板和超大面玻璃开窗(LOW-E玻璃),彰显澄澈简约、时尚前卫的建筑气质;顶部具有昭示感的塔冠,成就璀璨夺目的城市天际线。

华润华发时代之城售楼处电话:400-8778-334

时代之城高层建筑效果图

华润华发时代之城售楼处电话:400-8778-334

叠墅立面则采用经典三段式设计,以传统经典演绎现代时尚,部分采用天青色釉面陶板,同样融合大面玻璃开窗(LOW-E玻璃),可更大程度的为业主带来宽绰视野,体验摩登生活。

时代之城叠墅建筑效果图

华润华发时代之城售楼处电话:400-8778-334

景观方面,大师级别的设计团队也没有让人失望!

约30万方墅境美学社区内,项目规划九重归家礼序,从酒店式落客-迎宾式花园-摩登式会所-下沉式庭院-空中式庭院-主题式景观-架空式场景-精装式大堂-低密式住品,其中包含丰富多样的全龄化生活场景,如屋顶花园、下沉吧台、精装大堂、架空层等功能一应俱全,可满足全家人的生活志趣。

时代之城街区效果图

华润华发时代之城售楼处电话:400-8778-334

项目还配置了约2500平的奢华会所。这里集健身、游泳、瑜伽、私宴、空中花园等于一体,可以为城市精英带来一次质感生活的全然焕新与高端享受。

华润华发时代之城售楼处电话:400-8778-334

这些丰富的生活场景,则由两条景观轴线串联:一条是约300米的连续花园轴;一条是约600米的日常漫步街区。与此同时,项目在街角处还打造了多个口袋公园!

社区内部景观街区示意图,仅供参考

华润华发时代之城售楼处电话:400-8778-334

社区与街道融合和延伸示意图,仅供参考

居于此,推窗即是直击心灵深处的绿意美景,下楼即达治愈繁忙世界的漫步空间!理想生活莫过于此。

时代之城街区效果图

项目推售详情

华润华发时代之城售楼处电话:400-8778-334

【华润华发·时代之城】项目推出建面约92-135㎡墅区高层/小高层,建面约140-178㎡精装叠墅。不同类别的户型选择,可匹配不同客户在不同人生阶段的生活方式所需。

精装设计沿袭华润置地“精致了无痕”品质修为,配置西门子、高仪等国际一线品牌,再加上精工细节营造,敬呈居者更美好的理想生活!

华润华发时代之城售楼处电话:400-8778-334

据悉,【时代之城】十二期加推建面约104-178㎡小高层&叠墅,共计131套房源,火热建档中!目前已过会,均价60186元/㎡!项目正在认购中!

华润华发时代之城售楼处电话:400-8778-334

全新叠墅户型如下:

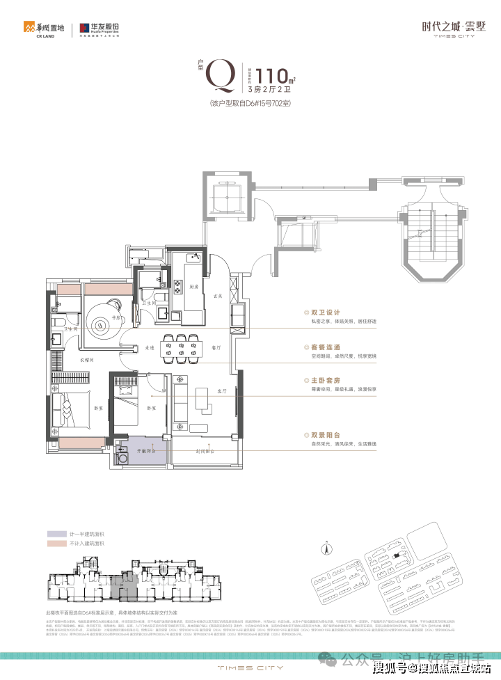
建面约110㎡的三房两厅两卫,非常适合年轻家庭上车,它的设计风格偏法式,符合年轻人审美。

实景图,仅供参考

南向双阳台,在原先一个阳台的基础上再加一个开敞阳台(仅计算一半阳台面积为建筑面积),实现客厅与次卧联通,不仅让得房率瞬间提升一个level,视野更敞亮!整体格局方正,南北通透,每个卧室大小宽裕,实现小家的超满足获得感!

华润华发时代之城售楼处电话:400-8778-334

收纳作为中小户型的一个痛点,在时代之城得到了完美解决,它几乎把小户型所有的收纳都搬进家里——

厨房超大柜体的收纳空间,包括调味拉篮、岛台双面收纳,将厨房空间直接扩容约80%,贴心的灶前龙头设计,开火时直接上方接水,非常灵活;

玄关S墙设计,同样包含MAX巨量收纳;创新性采用了钢琴键收纳,600万级的刚需项目中能享受大几千万的豪宅配置;

主卫的美妆冰箱、镜柜收纳、常用物品置物台,可以隐藏90%的卫浴物品......

实景图,仅供参考

华润华发时代之城售楼处电话:400-8778-334

同时,这个户型主力总价600万级起,很适合刚需家庭上车!

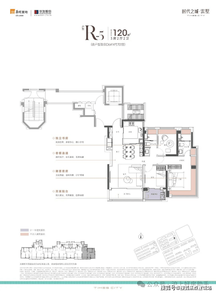
建面约120㎡的大三房做了一个u型厨房,餐桌可以容纳八人餐桌,双阳台配置+加上所有飘窗都是附赠面积,整体的实用面积可想而知。

S墙的设计,使得玄关和冰箱得到兼容,凹进去的部分放置冰箱,凸出的墙面做成了钢琴键收纳。

华润华发时代之城售楼处电话:400-8778-334

户型图,仅供参考

建面约135㎡的四房是项目的明星户型,几乎是一抢而空的状态,采光、视野非常敞亮,南北通透,双阳台还能看到窗外的中庭景观。

它的收纳亮点:钢琴键烤漆板,玄关处有一个八百库收纳,厨房扩容80%......800多万能买到这样的一个房子,哪怕是在市区买二手房也买不到这么多的赠送面积!

实景图,仅供参考

华润华发时代之城售楼处电话:400-8778-334

建面约174㎡的下叠

华润华发时代之城售楼处电话:400-8778-334

下叠二期做了改动,一层拥有一个充足的采光面&超级全明的空间,即使是七八月份的上海也丝毫不会闷热潮湿。附赠宽绰地下室+公共绿地(实际交付为毛坯)闲暇时可以在院子里养鱼,种花等等。

华润华发时代之城售楼处电话:400-8778-334

实景图,仅供参考

地下室的两个夹层(作为生活场景示意),不仅赠送面积多,还是三面采光!挑高开阔,丝毫没有压抑感。

实景图,仅供参考

一楼,客厅到庭院是全景的落地门窗,夏日凉风习习,边套下叠还拥有全明餐厅。

华润华发时代之城售楼处电话:400-8778-334

实景图,仅供参考

主卧拥有270度环幕飘窗,视野和采光优越,配备了高奢卫生间,空间感、尊崇感拉到顶格。

实景图,仅供参考

下叠的总价段在1300-1600万左右,完全能容纳三代同堂的温馨的墅居生活,置业的终极目标,一步到位!

华润华发时代之城售楼处电话:400-8778-334

建面约178㎡的中平

华润华发时代之城售楼处电话:400-8778-334

户型图,仅供参考

中平户型以四开间朝南的IMAX级采光面,打造出堪比市区豪宅的尺度感。4房4飘窗2阳台的设计,配合双套房布局,一共有三个套房,让每个家庭成员都享有独立私密空间。

客厅+餐厅联通+南向双阳台,尺度感非常强。同时还配备了独立的家政间,约4.4个m³,约等于100个标准登机箱的空间!

华润华发时代之城售楼处电话:400-8778-334

实景图,仅供参考

玄关也是非常具有仪式感,包括厨房拥有超长的操作台面,同样也是做了满级收纳。

主卧套房,不仅有豪华卫浴,女王卫生间+双台盆,大尺度衣帽间,甚至书房、工作室空间就在边上,业主能体验无上的尊崇与私密。

建面约170㎡的上叠

华润华发时代之城售楼处电话:400-8778-334

户型图,仅供参考

上叠产品创新采用南北双露台+南向双阳台布局,270度全景采光面让室内外空间完美融合。边套户型的1楼客餐厅和2楼主卧,更增设侧飘窗,将社区美景尽收眼底。

日常在露台barbecue、在阳台养养花、晒晒太阳好不惬意!阁楼还能做到大面积玻璃采光!

毫不夸张地说,「时代之城·雲墅」的户型设计,算得上嘉定“遥遥领先的TOP”户型!在这里,每个价位段的客户都能匹配到满意的产品。

170m²上叠,南向双阳台+南北双露台:

华润华发时代之城售楼处电话:400-8778-334

二期叠墅新品从南向双阳台、U型厨房、多重收纳等维度入手,重新定义低密墅居生活。

华润华发时代之城售楼处电话:400-8778-334

下叠户型:

负一层地下室空间挑高开阔,功能多样化,更创新设计夹层,打造家政间与音乐厅,满足多样化品质生活需求;(地下室非精装交付)

华润华发时代之城售楼处电话:400-8778-334

一层步入玄关,迎面便是开阔的南向全景落地窗,将阳光与绿意尽收眼底,窗外超大公共绿地,不仅是生活空间的延伸,亦是连接自然、放松身心的理想场所;

华润华发时代之城售楼处电话:400-8778-334

二层主卧同样大面积采光窗设计,搭配双一字衣帽收纳与奢华卫浴空间,营造极致的尊崇体验与私密享受。

华润华发时代之城售楼处电话:400-8778-334

中叠户型:

入户独立玄关门厅,营造归家的私密与仪式感;

大尺度横厅布局,空间开阔通透,尽显大气格局;

南向双阳台,不仅是空间的巧妙拓展,更是生活品质的提升;

而且还是落地窗设计,超大采光面引入充沛自然光线,让居室沐浴在阳光之中。

华润华发时代之城售楼处电话:400-8778-334

上叠户型:

上叠户型更拥有南北双露台,实现空间利用最大化,满足多样化生活需求;

主卧套房布局配备独立卫浴,既保障私密性,又提升居住舒适度,打造专属的奢华休憩空间;

此外,二期叠墅新品,还在原有的精装交付基础上实现迭代,臻选国际精装品牌奢装,让空间更具实用主义、温暖感和精致感。

华润华发时代之城

售楼处电话:400-8778-334

🚩🚩➨上海嘉定 华润华发时代之城售楼处电话:400-877-8334【官方指定VIP热线】华润华发时代之城官方电话/地址☎:400-8778-334(官方看房专线)华润华发时代之城售楼中心官方电话:4008778334【开发商授权售楼电话√√】★如有问题欢迎致电「售楼部进行购房咨询」,专业一对一热情服务,让您用专业眼光去买房🏠;

★来电咨询了解楼盘最新动态、楼盘详情介绍,板块位置、小区环境、容积率,得房率,绿化率怎么样,最新一房一价表;房价折扣优惠、交房时间、周边商业配套;地铁交通距离、在售户型面积等相关信息!

📍★温馨提示:由开发商旗下销售团队全程营销策划,房源信息真实有效!部分图片素材来自网络,如有侵权请联系小编删除,感谢支持!

声明:本文由入驻焦点开放平台的作者撰写,除焦点官方账号外,观点仅代表作者本人,不代表焦点立场。