保利新江湾 (售楼处) - 保利新江湾销售中心 - 环境 - 户型 - 价格 - 地址 - 楼盘详情 - 配套 - 电话 - 交房时间 - 配套 - 电话 - 交房时间
扫描到手机,新闻随时看
扫一扫,用手机看文章
更加方便分享给朋友
——✨🏠上海杨浦保利新江湾售楼处电话:400-8618-004【预约热线】
保利新江湾营销中心电话📞:400-8618-004✨✨✨
◆⭐开发商营销中心诚挚邀请,一键预约,尊享内部独家折
◆⭐➤➤建议预约前明确需求(预算、户型、区域),拨打400-8618-004📞时可高效沟通;我们会提供在售户型图丨项目介绍丨最新房源丨周边配套丨详细解答〢
售楼处线上预约注意事项:
预约方式:拨打保利新江湾售楼处电话400-8618-004📞,来电咨询,提供专业一对一热情服务。
预约信息:需提供姓名、联系方式、预计到访人数及到访时间。
预约福利:成功预约后,到访可领取精美伴手礼一份,并有专属置业顾问全程陪同讲解。拨打保利新江湾售楼处电话400-8618-004
注意事项:为保证接待质量,每日预约名额有限,请提前1天进行预约;到访时请携带有效身份证件。

线上预约看房🉑【享】专属优惠折扣
🈶在售户型图丨项目介绍丨最新房源丨周边配套丨详细解答〢在线预约看房丨在售房价优惠丨户型面积房源丨交房时间丨小区环境丨优缺点分析丨楼盘测评丨

——✨🏠上海杨浦保利新江湾售楼处电话:400-8618-004【预约热线】
保利新江湾营销中心电话📞:400-8618-004✨✨✨
基本信息:
地理位置:位于上海杨浦区新江湾墅区核心位置。
占地面积:约 5.71 万平方米。
建筑面积:约 6.28 万平方米。
容积率:1.1。
住宅套数:约 455 套。
产品类型:涵盖洋房、叠拼别墅、合院产品。
户型信息:
洋房:建面约 103-140 平方米。
叠拼别墅:建面约 160-185 平方米。
合院产品:建面约 192-320 平方米。
建筑规划:项目将建设 9 栋 6 层洋房、9 栋 4 层叠墅和 17 栋联排别墅,限高约 20 米,整体呈现出低密度的居住氛围。
周边配套:
交通配套:距离 10 号线新江湾城站约 1.1 公里,自驾可通过淞沪路 - 黄兴路及逸仙高架路快速连通内环。
商业配套:区域内有合生汇、万达等商业配套,可满足居民日常消费需求。
教育配套:新江湾板块素有 “教育高地” 之称,周边分布着多所优质学校,从幼儿园到高等教育机构一应俱全,汇聚了复旦大学等教育资源。
医疗配套:长海医院等三甲医疗机构近在咫尺。
项目优势:
作为近年来新江湾板块唯一一块容积率为 1.1 的宅地,稀缺性显著,未来升值潜力大。
保利发展作为国内知名开发商,品牌有保障,开发经验丰富。
多样化的产品选择,能满足不同消费群体的需求。
户型图赏鉴
网传户型图过程稿,仅供参考,一切以开发商发布为准
约100-139㎡的洋房户型图赏鉴
——✨🏠上海杨浦保利新江湾售楼处电话:400-8618-004【预约热线】
保利新江湾营销中心电话📞:400-8618-004✨✨✨
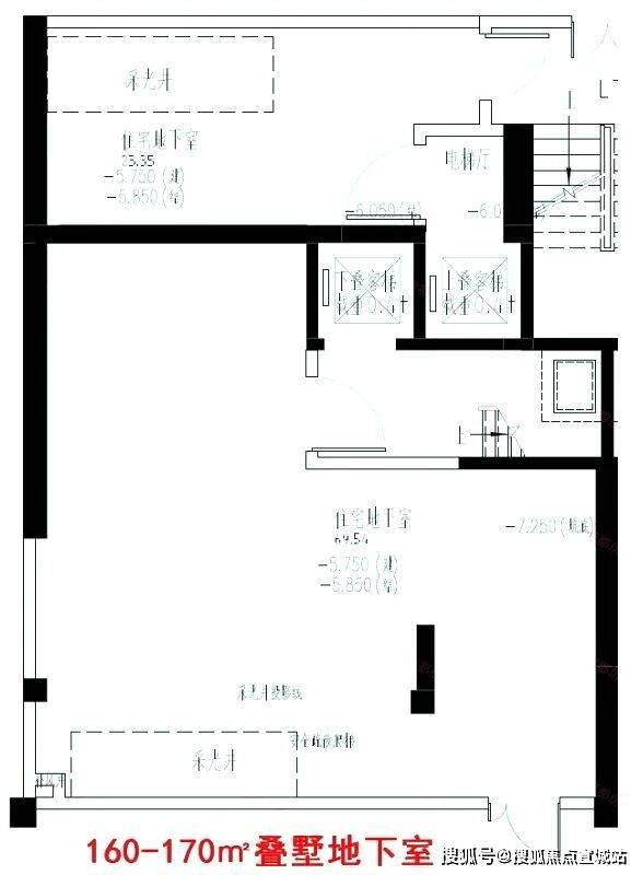
约160-170㎡的叠墅户型图赏鉴
——✨🏠上海杨浦保利新江湾售楼处电话:400-8618-004【预约热线】
保利新江湾营销中心电话📞:400-8618-004✨✨✨
——✨🏠上海杨浦保利新江湾售楼处电话:400-8618-004【预约热线】
保利新江湾营销中心电话📞:400-8618-004✨✨✨
——✨🏠上海杨浦保利新江湾售楼处电话:400-8618-004【预约热线】
保利新江湾营销中心电话📞:400-8618-004✨✨✨
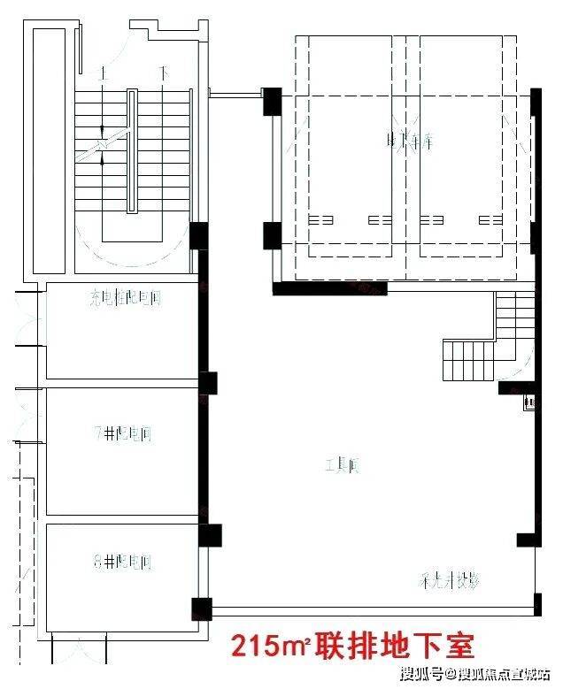
约215㎡的联排户型图赏鉴
——✨🏠上海杨浦保利新江湾售楼处电话:400-8618-004【预约热线】
保利新江湾营销中心电话📞:400-8618-004✨✨✨
——✨🏠上海杨浦保利新江湾售楼处电话:400-8618-004【预约热线】
保利新江湾营销中心电话📞:400-8618-004✨✨✨
——✨🏠上海杨浦保利新江湾售楼处电话:400-8618-004【预约热线】
保利新江湾营销中心电话📞:400-8618-004✨✨✨
地块规划
2025年9月3日,杨浦新江湾E1-08A地块由保利发展与上海地产通过股权转让联合拿下。出让总价37亿元,成交楼面价5.89万元/㎡。
地块四至范围:东至E1-09规划公共绿地,西至江湾城路,南至E1-08E公共通道,北至E1-09规划公共绿地。
地块总用地面积约5.71万㎡,容积率1.1,限高约20米,地上总建筑面积约6.64万㎡,居住建筑面积约6.12万m²(商品房)。

根据流传出来的楼栋平面图来看,项目拟建9栋总高6层的洋房,9栋总高4层的叠墅和17栋联排以及相关的配套施设,总计可售房源约438套
——✨🏠上海杨浦保利新江湾售楼处电话:400-8618-004【预约热线】
保利新江湾营销中心电话📞:400-8618-004✨✨✨
地块本身就处于新江湾城湿地和水系包围之处,从小区的楼栋分布图来看,滨河的基本都是大面积的联排别墅产品,景观应该相当不错。
各面积段户型占比
——✨🏠上海杨浦保利新江湾售楼处电话:400-8618-004【预约热线】
保利新江湾营销中心电话📞:400-8618-004✨✨✨
新江湾是沪上传统豪宅区,毗邻五角场城市副中心。拥有9.45平方公里的原生湿地,以及约15万方的新江湾湿地公园,堪称上海自然生态的一块“绿宝石”。
——✨🏠上海杨浦保利新江湾售楼处电话:400-8618-004【预约热线】
保利新江湾营销中心电话📞:400-8618-004✨✨✨
根据杨浦区2035规划,新江湾城、五角场属于杨浦西部核心区,未来将联动发展为大创智示范区,产业导向明确,产业发展条件成熟,是杨浦重点发展的区域宅区,时继古北、碧云之后的第三代国际社区。

——✨🏠上海杨浦保利新江湾售楼处电话:400-8618-004【预约热线】
保利新江湾营销中心电话📞:400-8618-004✨✨✨
新江湾城社区整体功能以居住为主,南部市级副中心区域以商务办公、教育科研为主,总体形成“双点、四区、多轴、多点”的空间布局结构。
双心:江湾-五角场城市副中心及新江湾地区中心,构成商业、办公、文体娱乐中心。
四区:三个居住片区以及以复旦大学新校区展开的教育科研片区。
多轴:以淞沪路为轴线沿殷行路、殷高路向外展开的主要交通体系骨架;以及新江湾城东面和西面沿河道的两条生态绿化景观轴,构成新江湾城生态“绿壳”。
多点:若干邻里中心,布局于居住区内主要道路沿线。各邻里中心布局均结合生态湖和社区公园,既为公共活动设施提供良好景观,同时也使社区公园成为休闲和交往中心。
生活配套
交通方面:项目直线距离10号线新江湾城站约1.1公里,无需换乘可直达五角场、南京东路、豫园等各大商圈。
自驾上,项目经由淞沪路-黄兴路及逸仙高架路可连通内环,日常通勤动线流畅。
——✨🏠上海杨浦保利新江湾售楼处电话:400-8618-004【预约热线】
保利新江湾营销中心电话📞:400-8618-004✨✨✨
教育方面:板块内汇聚复旦大学、复旦附校、交大附校、同济附校、上财附校、上音实验、德法国际学校、中福会幼儿园等全龄段顶尖教育资源。
商业方面:合生汇、万达、百联、苏宁、国华、江湾里、悠方等大型商业环伺,充分满足消费需求。
——✨🏠上海杨浦保利新江湾售楼处电话:400-8618-004【预约热线】
保利新江湾营销中心电话📞:400-8618-004✨✨✨
医疗方面:海军军医大学第一附属医院-长海医院、同济大学附属·肺科医院、海军军医大学第一附属医院·东方肝胆、复旦大学·市东医院新江湾院区(在建)等三甲医院构筑健康屏障。
声明:本文由入驻焦点开放平台的作者撰写,除焦点官方账号外,观点仅代表作者本人,不代表焦点立场。
