聚焦@杭州天阳湖与舍售楼处-杭州天阳湖与舍首页网站-最新房价-售楼处-小区环境-容积率-面积段-得房率

搜狐焦点宣城站 2025-10-09 09:24:00
用手机看
扫描到手机,新闻随时看

扫一扫,用手机看文章
更加方便分享给朋友

杭州天阳湖与舍预约咨询热线:400-8851-337☎杭州天阳湖与舍项目位于钱塘区江东新城,主打100-128㎡精装住宅,均价22240元/㎡,售楼处电话400-8851-337,提供预约参观服务。

✨杭州天阳湖与舍✨✽✽✽✽ ✨天阳湖与舍✨售楼处电话:☎400-8851-337【已认证】✽✽✽✽ ✨天阳湖与舍✨售楼部电话:☎400-8851-337【已认证】✽✽✽✽

✨杭州天阳湖与舍✨✽✽✽✽

✨天阳湖与舍✨售楼处电话:☎400-8851-337【已认证】✽✽✽✽

✨天阳湖与舍✨售楼部电话:☎400-8851-337【已认证】✽✽✽✽

杭州天阳湖与舍预约咨询热线:400-8851-337☎

Welcome to call the tasting appointment hotline: 400-8851-337

✨天阳湖与舍✨☞☞Vip贵宾置业==欢迎来电预约尊享内部折扣===匠心钜制恭迎品鉴☜☜

✅本项目暂不接受临时到访,过来参观样板房请记得提前来电预约!

✅为您安排楼盘现场销售全程接待并讲解,给您更贴心的看房体验!

天阳湖与舍,位于钱塘区江东新城,在售户型建面约100-128平米,均价约22240元/平米。

社区品质

在2023年4月的土地拍卖中,位于钱塘区大江东的核心地块竞争颇为激烈,仅仅历经6轮竞拍,便因溢价达到上限而进入了摇号阶段。众多角逐的房企中,杭州本土的实力房企天阳地产凭借自身优势,从15家参拍房企里崭露头角。由此,备受瞩目的项目——天阳·湖与舍应运而生。

湖与舍是天阳在钱塘区的首个项目,更是蛰伏杭州楼市多年后的再出发之作。项目由13幢12-17层的小高层组成,共有768套房源,是一个中型社区。住宅建筑面积8.45万平米,住宅占地面积4.69万平米,小区每户配有1.23个车位,整盘容积率仅约1.8。户型:建筑面积约100-128m,精装限价22240元/m。

天阳湖与舍位置不错,在规划发展层面,项目位于江海之城范围。定位为“湾区门户、新城客厅”的江海之城,规划总用地面积约2500公顷,规划4组TOD集群,大江东文体中心、会展中心汇聚于此。其次,从现有资源来看,项目南侧直面东沙湖,西侧一路之隔是钱塘区规划展览馆。

从效果图可以看出,小区内绿化丰富,返家的路上一路绿荫。而在作为“改善标志”之-的架空层,相比于市面.上普遍约4米的挑高设计,湖与舍将这一尺度拉到了约4.5米。

杭州天阳湖与舍预约咨询热线:400-8851-337☎

Welcome to call the tasting appointment hotline: 400-8851-337

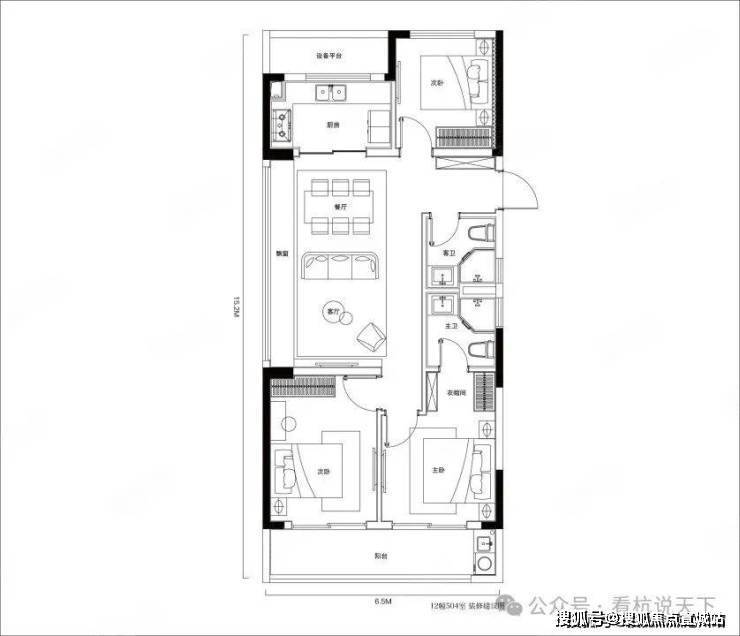
楼盘户型

作为业内公认的“户型专家”,天阳在户型设计上的突破与升级,总能给居住者带来新的惊喜。天阳.湖与舍打造了建面约100m、105m、128m三个面积段户型,起步约100方,也体现了本项目自带改善特质的特征。

以湖与舍建筑面积约100m的中间套为例,面宽超12米,四开间朝南,客厅和三个卧室都朝南,客卧双联阳台、双飘窗,采光相当优越。不止是主套房设计,它甚至做到了大阳台、双飘窗、面宽超12米的四开间朝南!卧室、书房均向阳,中间套户型私密性欠佳的顽疾丝毫没有体现。

而在边套,建筑面积约105m的三房两卫、约128m的四房两卫均享三面采光,设计经典又合理,可以分别满足一-孩、二孩家庭所需。

其中,前者餐客厅一体,拥有约6米长的飘窗和主卧套房;后者则进一步升级,不仅多了一个房间,还打造了-一个独立储藏室,在同类面积段中非常少见。并且都配备了地暖。

交通出行方面

天阳湖与舍的项目位于东沙湖旁,项目西侧为钱塘区人民政府,南向直面东沙湖,距地铁7号线约100米。

一站直达龙湖江东天街。宝龙广场商圈,2站直达钱江智慧谷;

生活教育配套方面

地铁7号线江东二路站与项目步行距离仅约100米,一-站到达龙湖天街,汇集了国内外近200家品牌,可以充分满足居民的购物、饮食、娱乐所需。而在项目周边,有着丰富的省级医疗配套,杭高启成学校、崇德外国语学校等教育资源环绕,名校氛围浓厚。

学校:杭州市钱塘区义蓬第二小学,杭州市钱塘区河庄江东幼儿园,杭州市高级中!学启成学校等

医疗:周边配套有杭州第九人民医院(二甲)、浙江大学医学院附属第--医院钱塘院区(规划) (三甲) 等医疗资源丰富商业: 7号线1站直达龙湖江东天街、宝龙广场商圈

综合点评

天阳湖与舍地铁口低密湖景居舍,距离7号线江东二路站仅约百米,容积率仅约1.8。户型建筑面积约100平米起,100平米四开间朝南大开间设计,在杭州已经很难找到这种户型了,精装限价22240元/m。

✨杭州天阳湖与舍✨✽✽✽✽

✨天阳湖与舍✨售楼处电话:☎400-8851-337【已认证】✽✽✽✽

✨天阳湖与舍✨售楼部电话:☎400-8851-337【已认证】✽✽✽✽

如有问题欢迎来电咨询,来电即可享受买房优惠!

预约来电尊享购房优惠,可预约案场内部销售人员,专业一对一热情服务,让您用专业眼光去买房。

杭州天阳湖与舍预约咨询热线:400-8851-337☎

Welcome to call the tasting appointment hotline: 400-8851-337

Sales Office reservation center: 400-8851-337.Make an appointment to enjoy the internal benefits, the developer's case sales one-to-one warm service, do not charge any fees to see the house!

楼盘项目全面介绍,本电话为开发商提供线上预约售楼电话,楼盘项目全面介绍(包含楼盘简介,均价,房价,现房,期房,别墅,叠墅,大平层,价格,楼盘地址,户型图,交通规划,备案价,备案名,项目配套,样板间,开盘时间,认筹时间,楼盘详情,售楼处电话,最新消息,最新详情,周边配套,一房一价,最新进展等详情咨询)楼盘详情丨价格丨更多优惠丨机不可失丨欢迎致电丨诚邀品鉴!售楼处位置丨特价房丨工抵房丨剩余房源丨户型图丨最新消息丨免责声明:将文章内容综合来源于网络、只作分享,版权归原作者所有!!如有侵权,请联系我们,我们第一时间处理如有问题欢迎来电咨询,专业一对一热情服务,让您用专业眼光去买房。如果您想了解更多楼盘详情,欢迎提前预约拨打

声明:本文由入驻焦点开放平台的作者撰写,除焦点官方账号外,观点仅代表作者本人,不代表焦点立场。