圣奥晓风望月府│圣奥晓风望月府 (营销中心) - 圣奥晓风望月府欢迎您 - 2025 销售中心 (售楼处)- 价格 / 户型 / 地址 / 环境 / 配套 / 交房时间 / 电话
扫描到手机,新闻随时看
扫一扫,用手机看文章
更加方便分享给朋友
🏡🏠杭州临平圣奥晓风望月府售楼处电话:400-8618-004
➤ ➤圣奥晓风望月府营销中心热线:400-8618-004(中介🈲扰)【24小时热线】
线上预约看房🉑【享】专属优惠折扣
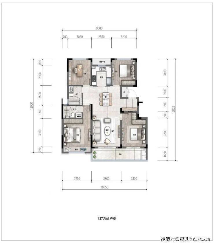
🈶在售户型图丨项目介绍丨最新房源丨周边配套丨详细解答〢在线预约看房丨在售房价优惠丨户型面积房源丨交房时间丨小区环境丨优缺点分析丨楼盘测评丨
圣奥晓风望月府售楼处24小时VIP电话:400-8618-004←【预约热线】
📩本项目暂不接受临时到访,过来参观样板房请记得提前来电预约!
📩为您安排楼盘现场销售全程接待并讲解,给您更贴心的看房体验!
🏡🏠杭州临平圣奥晓风望月府售楼处电话:400-8618-004
➤ ➤圣奥晓风望月府营销中心热线:400-8618-004(中介🈲扰)【24小时热线】
基本信息
位置:临丁路和华鹤街的交汇处东南角。
占地面积:约 321,507㎡。
总建筑面积:约 487,949.16㎡。
容积率:约 1.06。
绿化率:约 35%。
规划总可售户数:2355 户。
规划总车位个数:3105 个,其中可售约 2124 个,车位配比约 1:0.9。
规划可售楼栋数:64 幢。
产权年限:70 年。
装修情况:精装,标准约 3000 元 /㎡。
梯户比:洋房 1T2。
物业费:3.25 元 /㎡/ 月。
产品信息
产品类型:有 14F 沐风美宅和 6-10F 星梦洋房。
户型面积:14F 沐风美宅建面约 89㎡、105㎡、125㎡;6-10F 星梦洋房建面约 89㎡、105㎡、117㎡、135㎡。
价格:洋房精装均价 28,000 元 /㎡,车位 25-30 万不等。
配套信息
交通:紧邻地铁 3 号线华鹤街站,周边有留石、秋石、望梅与东湖 4 大快速路。
教育:项目规划自建有幼儿园、24 班小学,已确认引进树兰教育集团,周边还有丁蕙第二幼儿园、丁蕙第二小学等。
商业:社区自带有 2000 方商业街,周边有丁桥龙湖天街、山姆超市等大型商业体。
生态:社区内有约 4.5 万方公园,周边有皋亭山风景区、半山风景区等。
医疗:距离杭州市中医院丁桥分院约 2.4km,浙医二院临平分院星桥院区约 2.7km,社区内配置社区医疗服务站。
项目特色
公园大境:自建约 4.5 万方 “风之谷” 主题公园,内有中央草坪、儿童乐园、网球场、篮球场等。
低密社区:以容积率约 1.06 打造低密社区,楼间距开阔,部分房源为现房。
国企保障:由越秀地产与杭州地铁两大国企联合打造,物业为越秀物业,提供 24 小时管家服务。

🏡🏠杭州临平圣奥晓风望月府售楼处电话:400-8618-004
➤ ➤圣奥晓风望月府营销中心热线:400-8618-004(中介🈲扰)【24小时热线】
圣奥晓风望月府地理位置优越,交通四通八达。项目所在的板块内交通路网已形成“三横四纵双高架一地铁”的结构。三横指的是横贯东西的崇杭街、龙腾街及前村街,四纵分别是南北向的丽水路、拱康路、塘康路和崇超路。此外,还有秋石、上塘、运溪三条城市快速路,以及即将到来的地铁15号线。
🏡🏠杭州临平圣奥晓风望月府售楼处电话:400-8618-004
➤ ➤圣奥晓风望月府营销中心热线:400-8618-004(中介🈲扰)【24小时热线】
圣奥晓风望月府周边配套设施齐全,三大商圈环伺,一站式吃喝玩乐购。秋石高架向南约7公里,便是中大银泰城和新天地购物中心。杭州第二座万象城-城北万象城距项目直线约6.5KM,将满足居民对一站式购物体验的要求。同时,丽水路、拱康路的路网建成,使得项目可以直达拱墅区核心商圈乐堤港等商业综合体。

🏡🏠杭州临平圣奥晓风望月府售楼处电话:400-8618-004
➤ ➤圣奥晓风望月府营销中心热线:400-8618-004(中介🈲扰)【24小时热线】
项目南面5公里,就是三甲医院邵逸夫大运河分院,已于19年底开工建设。崇贤将是直接受益者之一。除了去邵逸夫医院以外,项目向南约2km就是杭州市第一人民医院崇贤分院。这些优质医疗资源的引入,为居民的健康保驾护航。
🏡🏠杭州临平圣奥晓风望月府售楼处电话:400-8618-004
➤ ➤圣奥晓风望月府营销中心热线:400-8618-004(中介🈲扰)【24小时热线】
圣奥晓风望月府周边教育资源丰富,项目2公里范围内,涵盖了近11所幼儿园、4所小学、2所中学。幼儿园有崇贤一幼崇韵园区、崇贤一幼陆家桥园区、崇贤二幼崇杭园区等。小学有崇贤小学(2024年5月建成)、崇贤一小、崇贤二小。中学有崇贤中学、沾桥中学。无论是幼儿教育,还是基础教育,都能满足居民的多元化需求。
🏡🏠杭州临平圣奥晓风望月府售楼处电话:400-8618-004
➤ ➤圣奥晓风望月府营销中心热线:400-8618-004(中介🈲扰)【24小时热线】
圣奥晓风望月府地处大城北的价格洼地,运河新城的璀璨明珠。便捷的交通、完善的配套、优质的教育资源,使得这个项目成为了杭州市不可多得的人居典范。在这里,居民可以享受到便捷的城市生活,同时又能够感受到宁静与和谐。圣奥晓风望月府,值得您的期待与选择!
🏡🏠杭州临平圣奥晓风望月府售楼处电话:400-8618-004
➤ ➤圣奥晓风望月府营销中心热线:400-8618-004(中介🈲扰)【24小时热线】
项目设计了超过1:1的楼间距,不仅确保了低楼层的阳光充足,还为园林景观留出了充分的空间。
在景观设计方面,项目采用了“一轴一带六花园”的理念,创造了一个融合玩乐、休闲观赏和时尚生活的全年龄户外休闲活动场所。
主打归家仪式感的景观主轴,以及满足各个年龄段业主需求的六大主题花园,再加上长约300米的健身跑步道,给业主提供了丰富多彩、既有趣味性又具有观赏性的业余生活选择。
🏡🏠杭州临平圣奥晓风望月府售楼处电话:400-8618-004
➤ ➤圣奥晓风望月府营销中心热线:400-8618-004(中介🈲扰)【24小时热线】
🏡🏠杭州临平圣奥晓风望月府售楼处电话:400-8618-004
➤ ➤圣奥晓风望月府营销中心热线:400-8618-004(中介🈲扰)【24小时热线】
声明:本文由入驻焦点开放平台的作者撰写,除焦点官方账号外,观点仅代表作者本人,不代表焦点立场。
