众安滨和印(杭州热搜NO.1别墅)售楼处电话_预约看房_楼盘详情-2025最新房价-户型图@众安滨和印营销中心电话_预约看房

搜狐焦点宣城站 2025-09-13 09:40:04
用手机看
扫描到手机,新闻随时看

扫一扫,用手机看文章
更加方便分享给朋友

众安滨和印位于杭州萧山滨江奥体核心,330㎡现房,总价668-800万,4房4卫,40年产权,毛坯交付,享专属优惠。

众安滨和印:滨江银泰旁|咫尺奥体芯|滨奥主轴330㎡定制现房|最后2席特惠一口价特惠房源!

══杭州萧山区「众安滨和印」══

众安滨和印售楼处电话:400-8778-334

售楼部官方电话|地址位置:400-8778-334【售楼中心官网已认证√√】

温馨提示:如有问题欢迎来电咨询➨提前预约开发商销售一对一热情讲解楼盘详情【享】内部专属房源限时优惠折扣!

众安滨和印售楼处电话:400-8778-334

楼盘基本信息

开发商:众安集团(杭州众裕置业有限公司)

备案名:众安·滨和印

位置:杭州市萧山区风情大道与建设二路交叉口(滨江与奥体交汇核心板块)

物业类型:40年产权商办大平层(现房销售)

总建面:约6万㎡(含2栋22层住宅塔楼+1栋17层自持商务楼)

总户数:81户(3梯2户,独立入户)

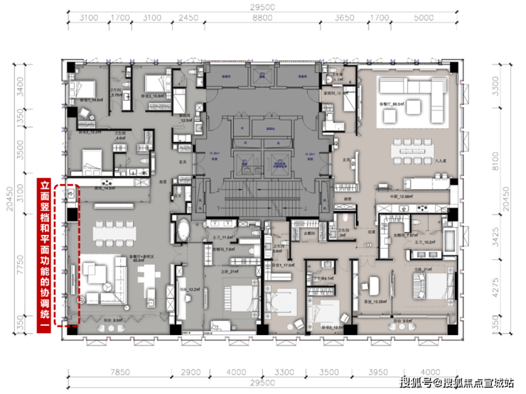
主力户型:320㎡(4房4卫2厅,得房率82%)

层高:3.5米(部分房源4.2米)

交付时间:2024年9月(毛坯交付)

物业费:7元/㎡·月(含能耗)

众安滨和印售楼处电话:400-8778-334

售楼处信息

主售楼处:

地址:萧山区风情大道与建设二路交叉口项目现场8

电话:400-8778-334(官方认证)

预约提示:需提前2小时电话预约,仅对预约客户开放样板间

核心配套

交通:

地铁2号线飞虹路站(步行约7分钟)

风情大道、博奥路快速连通钱江新城

商业:

自带7000㎡商业街区(含餐饮、健身馆、屋顶泳池)

6分钟车程至滨江银泰,3公里内覆盖SKP、奥体印象城

教育:

江南实验学校、杭二中钱江学校等

医疗:

浙二医院国际医学中心、省妇保萧山院区

其他说明

价格:2025年8月最新总价668万-800万(单价2.2万-2.6万/㎡)

产权:40年商服用地,通燃气

设计:梁志天、郑仕樑联袂设计,270°落地玻璃幕墙

车位:1:2配比

众安滨和印售楼处电话:400-8778-334

众安滨和印售楼处电话:400-8778-334

滨奥,正迎来一个全盛的时代,世界舞台的大门再次推开,跬步登峯,迈上崭新的一阶。基于对“国际滨”的前瞻洞察,在时代风口之下,杭派精工众安择址城市趋势所在,匠筑藏品级300方,以「滨和印」之名,和鸣全盛滨奥,致献高净值层峰的理想,开启滨奥塔尖生活的终极进阶。

编辑

众安滨和印售楼处电话:400-8778-334位于滨江与奥体交汇的核心板块--滨奥主轴之上,站在时间的轴线上纵览滨江、奥体,自1997年正式建区挂牌以来,便一路高光闪耀。摩托罗拉、中控科技园等高新企业进驻;阿里巴巴、吉列、海康威视、网易等世界巨头云集;G20、2022亚运会等盛事荣光汇聚于此;莲花碗、杭州之门、SKP等城市地标接连拔地而起……

编辑

众安滨和印售楼处电话:400-8778-334

商业矩阵项目自带建筑面积约7000方商业街区(含餐饮,健身运动馆和屋顶泳池);直线距离约1.2公里达滨江银泰,车程距离约6分钟;直线距离约3公里达龙湖滨康天街;直线距离约6公里达滨江龙湖天街,奥体印象城等优质商业综合体。

编辑

众安滨和印售楼处电话:400-8778-334

当全盛滨奥正雄心勃勃地向更大更新的领域扩张,众安集团也以远见卓识,前瞻城市的生长脉络,顺应滨江板块东扩,横跨风情大道,于滨萧奥融汇之处,重构原本城市空间,焕发蓬勃的生命力。众安·滨和印,在这块城市的珍贵留白之上,即将印启伟大征程的崭新一行。

编辑

众安滨和印售楼处电话:400-8778-334

这种更高层次的终极改善需求,也昭示面对这一座盛世滨奥的塔尖峯层,唯有以超越时代品味,才能寄托他们宏大的理想抱负。

生于这座城更懂这座城,杭派众安总是在反复研读中,循迹每一块土地的过去与现在,在建筑中融入城市的精神与需求,以匠心筑造独具生命力的作品,引领城市峯层的生活愿景。

编辑

编辑

众安滨和印售楼处电话:400-8778-334

*项目效果图

项目由3幢建筑组成,其中1号楼和2号楼为拥有独立入户门厅和大堂,建筑面积约320㎡进阶藏品;3号楼为自持商务办公楼,目前已引进农银凤凰总部办公。项目自带建筑面积约7000方商业街区,包含餐饮,健身运动馆和屋顶泳池等,丰富业主日常生活互动和居家仪式感。

编辑

编辑

众安滨和印售楼处电话:400-8778-334

*项目效果图

建筑设计:特邀“CREDAWARD地产设计大奖”得主SEA东南担纲设计,结合项目的地块价值和产品迭代的定位,立面采用灰色大面积玻璃幕墙加铝板设计,通过大尺度的窗墙比,营造270°的巨幕景观视野和空间采光体验。

项目景观设计特邀香港十大建筑设计事务所-吕元祥建筑师事务所担纲设计。项目景观定位以“共享”融合“潮”的现代时尚感户外空间理念打造,在巧妙结合创意与功能分布的同时,也让园区景观无论何时何地,都能带来不同层次的视觉效果和丰富的体验感,并为业主设计了三重归家迎宾礼序。

编辑

编辑

众安滨和印售楼处电话:400-8778-334

材质与色彩的和谐统一,既非抽象表现主义的热烈奔放,亦非波普艺术的亲和通俗,而是以一种理性、疏离且节制的美学语言,彰显着建筑本体的纯粹与尊贵,追求一种无层级、极尽自然的形态表达。

编辑

编辑

众安滨和印售楼处电话:400-8778-334

设计理念源自唐纳德·贾德(DonaldJudd)的极简堆叠艺术,通过超大窗墙比例,实现了270°全景视野与卓越的空间采光效果,仿佛一幅延展无边的巨幅画卷,将建筑光辉与远方的城市天际线融为一体。

编辑

编辑

众安滨和印售楼处电话:400-8778-334

众安滨和印,约320㎡终极改善,4房4卫2厅设计,拥有专属入户电梯及专属独立门厅,业主私密性和安全感得到最大程度保障。结合高达约82%得房率的优势,整体专享私域空间更具高定和纯粹。为符合疫情常态化的生活需求,项目特配置只需语音即可联动的,智能家居控制系统和消毒系统。

编辑

编辑

编辑

编辑

编辑

众安滨和印售楼处电话:400-8778-334

全盛滨奥,崭新起行。众安·滨和印,立于滨奥主轴之上,汇聚一座城市的伟大抱负与追求,印鉴时代人居新的篇章!建面330.72㎡稀缺商住大宅,产权40年,约7fz滨江银泰,车程约10fz奥体核心!最后2席定制现房!西边套7楼特惠700万,东边套10楼特惠770万,不限购不限贷!

🚩🚩➨杭州萧山众安滨和印售楼处电话:400-877-8334【官方指定VIP热线】众安滨和印官方电话/地址☎:400-8778-334(官方看房专线)众安滨和印售楼中心官方电话:4008778334【开发商授权售楼电话√√】★如有问题欢迎致电「售楼部进行购房咨询」,专业一对一热情服务,让您用专业眼光去买房🏠;

★来电咨询了解楼盘最新动态、楼盘详情介绍,板块位置、小区环境、容积率,得房率,绿化率怎么样,最新一房一价表;房价折扣优惠、交房时间、周边商业配套;地铁交通距离、在售户型面积等相关信息!

📍★温馨提示:由开发商旗下销售团队全程营销策划,房源信息真实有效!部分图片素材来自网络,如有侵权请联系小编删除,感谢支持!

声明:本文由入驻焦点开放平台的作者撰写,除焦点官方账号外,观点仅代表作者本人,不代表焦点立场。