上海壹号院售楼处电话→上海壹号院售楼中心电话→楼盘百科→上海壹号院首页网站→楼盘百科→24小时热线电话地址丨详情丨售楼处电话丨 交房时间

搜狐焦点宣城站 2025-09-15 11:08:17
用手机看
扫描到手机,新闻随时看

扫一扫,用手机看文章
更加方便分享给朋友

踏入2025年,上海购房政策又有了新变化,是时候深入了解,为梦想中的家做好准备。公积金贷款一直以来都是购房者的重要选择,较低的首付比例和优惠的利率,为购房者节省了大量资金。2025年上海购房政策在首付比例、贷…

上海黄浦上海壹号院

售楼处电话☎:400-8862-334【售楼处预约热线】(一对一热情服务)

看房请务必提前致电销售确认时间,只有预约客户才能享受开发商提供的内部优惠以及专属的老客户推荐奖励!我们提供专业的一对一热情服务,助您以专业视角挑选理想的房产。

更有642和1010平摘星户型带露台(后续会加推240平三房和385平四房)欢迎私信预约参观样板间

黄浦核心老城厢全新烫金豪宅新湖融创亚龙项目【锦园】

案名更名为【上海壹号院】少量建面约315-385㎡高层

均价17.8万/㎡ 总价5380万起

目阶段性户型过程稿,仅供参考针对高净值客户,私密性显然是最重要的。电梯双开门设计,家政服务人员也有单独出入动线,尽可能减少对业主的影响。超80%的得房率,LDK一体化厅+西厨岛台,L型大面积转角落地窗,呈现出270度的幕布视野,这个王者公区的尺度不到现场来看,根本是你想象不到的震撼!

编辑

项目样板展示间实景 仅供参考 具体以实际交付为准

编辑

这次新开的建面约315㎡样板间由LSD大师设计团队,在装修方面可谓诚意满满,从地面到墙面到壁龛都是石材,提升居住整体的格调,配置了十件套厨房家电,甚至酒柜!

编辑

项目样板展示间实景 仅供参考 具体以实际交付为准

编辑

南向3个卧室全套房,更有270°弧形天际窗景,电动窗、独立式浴缸…..交付标准真的抗打;

编辑

项目样板展示间实景 仅供参考 具体以实际交付为准细节方面,仅一个户型,就能见到多种不同纹理的奢石,有顶豪奢华感的同时,又是一个很适合居住的艺术品,用材高级的同时,还有巧思且不落俗套。

除了功能强大审美高级,这个户型还有一个亮点,拥有超强的收纳功能!进门通顶玄关柜、厨卫收纳、所有房间的衣柜以及主卧衣帽间,全都是交标!这样的储物空间意味着未来业主入住,就算做不到“断舍离”,家里也没有一丝杂乱感。所谓的奢居,不就是在于这些生活细节吗

编辑

编辑

编辑

编辑

编辑

编辑

编辑

编辑

编辑

350平样板间

编辑

编辑

编辑

编辑

编辑

编辑

编辑

编辑

编辑

编辑

编辑

编辑

在城市更新的语境下,除了做好风貌更新、商业升级,更要给客户提供理想的居住空间。

编辑

上海壹号院创新性的打造了带有鲜明特色的海派建筑,将高层建筑和历史风貌建筑有机结合,用心构筑了533套海派高层、151套风貌联排合院、及9套风貌商业等多元产品业态。

在本次推出的高层产品中,极具标志性的城市天际封面是一大亮点。设计团队为此深入历史风貌区,借鉴了海派经典建筑中的Art-Deco风格形制,砖红立面纹理及风貌线条色泽,并将这些美学符号向上生长。建筑顶部还巧妙借鉴海派建筑的收分手法,塔冠部分逐级向上退台,处处皆倾注匠心。

编辑

效果图

编辑

效果图

编辑

编辑

编辑

编辑

建面约310㎡四房三厅四卫

编辑

建面约350㎡四房三厅四卫

编辑

建面约390㎡四房三厅四卫

编辑

编辑

编辑

编辑

编辑

新效果图如下

编辑

编辑

编辑

编辑

2016年,新湖地产先后在虹口区和黄浦区获得天虹和亚龙2个旧改地块

。其中,位于黄浦区的新湖亚龙项目【上海锦园】现定名为【上海壹号院】规划设计方案已公布。01项目信息新湖亚龙项目【上海壹号院】位于中华路以东、方浜中路以南、松雪街以西、复兴东路以北,是老黄浦区508-514街坊(亚龙地块)旧城区改造项目,2019年时出让,由新湖中宝拿下。

编辑

设计方案如下:

编辑

编辑

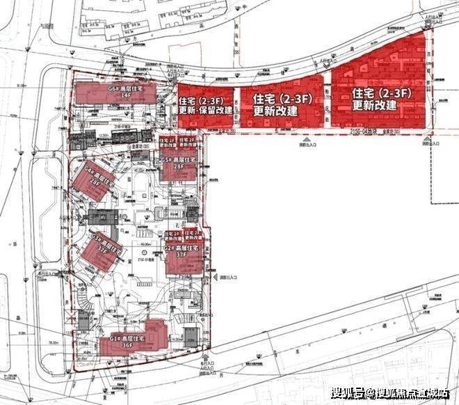
根据规划,项目总建筑面积约23万方,由6栋14-37层的高层住宅、部分改建保留的联排别墅、合院别墅以及部分配套用房组成。

编辑

方案中规划的昼锦路目前还未东延至此,未来建成后,项目内将开辟昼锦路和方浜中路之间的公共绿地以及城市开放空间,着力打造成富有海派文化底蕴的历史风貌保护和城市更新经典片区。

编辑

项目主要分两个地块,西区地块主打新建高层住宅,总计六幢,其中包含了4套保留改建的别墅产品。

编辑

编辑

编辑

北区地块区域主打保留建筑,基本为2-3F的联排和合院。

编辑

编辑

编辑

合院户型图(户型图仅供参考,具体以开发商公示为准)

编辑

编辑

区域介绍及规划到底哪里是老城厢一起看一下视频

新湖亚龙项目位于黄浦区豫园板块,豫园,地处黄浦区境中部,东起人民路、四牌楼路与小东门街道相连,南至复兴东路与老西门街道为邻,西达西藏南路与淮海中路街道接界,北沿淮海东路、人民路与外滩街道接壤,总面积1.19平方千米。

编辑

背靠外滩和南京东路,豫园一直以来都是上海的核心地段,靠着繁荣的旅游业,享受了大量的发展红利。

但由于历史原因,长久以来,豫园也一直作为上海的传统居住区存在,大量的老破小,与今天上海的现代城市风貌和生活方式相差甚远。老城厢的破旧与周围的繁华兴盛形成了鲜明的对比!

近年来,黄浦区不断推进城市更新,聚焦改善民生,开展城市规划设计研究。当“大豫园片区”的规划蓝图徐徐展开时,在重要民生问题上给出了答卷。周边配套前期新房:周边前期新房有中海顺昌玖里2024年3月开盘均价17.2万元/㎡;绿城外滩兰庭2024年3月开盘均价16.3万元/㎡;露香园云辰2024年3月开盘,均价16.3万元/㎡

编辑

交通方面:项目距离8号线/10号线老西门站直线距离约300米,一站地即可换乘9号线,轨交出行非常方便。

编辑

商业配套:

项目及周边有香港名都城、豫园商圈、复兴艺术中心,人民广场、新天地、外滩、南京路步行街等高级商业配套,能够很好的满足周边居民们的日常生活需求,吃喝玩乐一站式解决。

编辑

教育资源:周边的公立学校有复兴东路三小、上海实验小学、蓬莱路二小等,初中有光明初级中学及市十、市八,康德及永昌两所九年一贯制的民办学校等。

编辑

医疗配套:周边有上海九院、瑞金医院、仁济医院西院、黄浦区中西医结合医院、曙光医院西院、复旦大学附属妇产科医院及上海红房子医院等众多全国性的医疗资源。

编辑

休闲资源:周边的休闲配套有人民广场、城隍庙、文庙、太平湖、周公馆、一大会址、外滩等新天地【上海壹号院】第三批次预计4月开盘64套面积:300和350平四房更有642和1010平摘星户型带露台(后续会加推240平三房和385平四房)

2025 上海购房政策及房产知识全解析

编辑

在上海这座充满机遇与梦想的城市,拥有一套属于自己的房子,是许多人的奋斗目标。然而,购房政策犹如复杂的迷宫,首付比例、贷款细则、税费缴纳等关键信息,时刻影响着购房者的决策与钱包。踏入 2025 年,上海购房政策又有了新变化,是时候深入了解,为梦想中的家做好准备。接下来,我们将详细剖析 2025 年上海购房政策中首付比例、贷款政策以及税费政策的方方面面,帮助您拨开迷雾,在购房路上明晰前行。

一、首付比例大揭秘

(一)商业贷款

首套房:最低首付比例为 15%。这一政策的调整,大大降低了首次购房者的资金门槛,让更多年轻人有机会迈出购房的第一步。例如,一套价值 500 万的房子,按照 15% 的首付比例,仅需支付 75 万即可开启拥有自己房产的梦想。

二套房:最低首付比例为 25%。其中,位于自贸区临港新片区以及嘉定、青浦、松江、奉贤、宝山、金山 6 个行政区全域的二套房,最低首付比例为 20%。这些区域的政策倾斜,旨在促进城市的均衡发展,吸引更多人口向新兴区域流动,同时也为改善型购房者提供了更为宽松的选择空间。以一套 800 万的二套房为例,在临港新片区等区域,首付只需 160 万,而在其他区域则需 200 万。

(二)公积金贷款

首套住房:最低首付款比例为 20%。公积金贷款一直以来都是购房者的重要选择,较低的首付比例和优惠的利率,为购房者节省了大量资金。

第二套改善型住房:核心区最低首付款比例为 25%;非核心区(如临港新片区、嘉定、青浦、松江、奉贤、宝山、金山)最低首付款比例为 20%。这一政策既考虑了核心区域的实际情况,又为非核心区域的改善需求提供了支持,让购房者能够根据自身经济实力和居住需求做出更合适的选择。

编辑

二、贷款政策深度解读

(一)公积金贷款

额度:购买首套住房,个人最高贷款额度为 65 万元,家庭最高贷款额度为 130 万元;缴交补充住房公积金的,个人最高贷款额度为 80 万元,家庭最高贷款额度为 160 万元。多子女家庭购买首套住房,个人最高可达 78 万元,家庭最高可达 156 万元,缴交补充住房公积金的,个人最高可达 96 万元,家庭最高可达 192 万元。购买第二套改善型住房,个人最高贷款额度为 50 万元,家庭最高贷款额度为 100 万元,缴交补充住房公积金的,个人最高贷款额度为 65 万元,家庭最高贷款额度为 130 万元。

利率:5 年以下(含 5 年)首套利率 2.1%,二套利率 2.525%;5 年以上首套利率 2.6%,二套利率 3.075%。公积金贷款利率的优惠,使得购房者的还款压力大大减轻。例如,贷款 100 万,贷款期限 30 年,首套房公积金贷款相比商业贷款,利息支出将减少数十万元。

(二)商业贷款

首套房贷利率下限调整为 LPR-110BP(当前 LPR 为 3.5%,则实际利率低至 2.5%),二套房利率与首套房利率差距在缩小。商业贷款政策的调整,紧跟市场动态,旨在为购房者提供更为合理的融资渠道,降低购房成本。

三、税费政策一览

(一)增值税

满 2 年普通住宅免征,非普通住宅差额征收(5.3%)。这一政策对于房产市场的流通起到了积极的促进作用,鼓励购房者进行合理的房产置换。

(二)个人所得税

满 5 年唯一住房免征。不满 5 年或非唯一住房,(核定价格 - 本次交易增值税)×1%或按利润 20%申报(按利润计算个人所得税可在扣除增值税及附加后计算)。此外,2022 年 10 月 1 日至 2025 年 12 月 31 日,纳税人出售自有住房并在 1 年内重新购房,可按规定申请退还已缴纳的个人所得税。个人所得税政策的调整,既保障了长期持有房产者的利益,又为房产交易提供了一定的灵活性。

(三)契税

首套房,面积≤90㎡,(核定价格 - 本次交易增值税)×1%;面积>90㎡,(核定价格 - 本次交易增值税)×1.5%。二套房,面积≤140㎡,(核定价格 - 本次交易增值税)×2%;面积>140㎡,(核定价格 - 本次交易增值税)×3%。契税政策根据房屋面积和套数进行区分,体现了政策的公平性和合理性。

(四)房产税

从 2011 年 1 月 28 日开始实施。上海房产税税率为 0.4%和 0.6%,新购住房单价≤91,954 元 / 平方米,税率为 0.4%;单价>91,954 元 / 平方米,税率为 0.6%。计算公式为:新购房屋应税面积 × 新购房屋单价 ×70%× 税率 ÷1.05。上海家庭若在上海无任何住房,免征房产税;外地家庭首套房且 “上海居住证” 连续 3 年有效或积分达到 120 分,二套房免征房产税,不符合豁免条件则全额征收。房产税政策的实施,有助于调节房产市场的供需关系,促进房产资源的合理配置。

2025 年上海购房政策在首付比例、贷款政策和税费政策等方面都进行了一系列的调整,旨在为购房者提供更为宽松、合理的购房环境。购房者在购房前,务必充分了解这些政策,结合自身实际情况,做出明智的购房决策。希望大家都能在上海这座城市,找到属于自己的温馨家园。

编辑

上海公积金提取首付款流程如下:

线上办理

登录平台:登录上海公积金官网或“随申办”app、“随申办”支付宝小程序、“随申办”微信小程序。

选择业务:在相关平台中找到“提取公积金”板块,选择“购买本市拥有所有权的自住住房提取住房公积金”。

填写信息:按系统提示填写购房相关信息,如购房合同编号、房屋地址、购房金额等,同时填写提取金额、本人名下的中资银行一类账户借记卡信息和手机号码等。

上传材料:上传购房合同、购房全额发票(购买二手房无法提供发票的,需提供契税完税证明)、所购住房的不动产权证(含原房地产权证)(发证之日起5年内)、提取人与购房人的关系证明等材料。

提交申请:确认信息无误后,提交提取申请。

审核与到账:公积金管理中心进行审核,审核通过后,提取资金将转入申请人指定的银行账户。

线下办理

准备材料:携带本人身份证件、购房合同、购房全额发票(购买二手房无法提供发票的,需提供契税完税证明)、所购住房的不动产权证(含原房地产权证)(发证之日起5年内)、提取人与购房人的关系证明、本人名下的中资银行借记卡。

前往网点:根据自身情况,选择建设银行住房公积金业务网点或者上海市公积金管理中心业务网点。

提交申请:向工作人员提交准备好的材料,填写提取申请表。

审核与到账:工作人员审核材料,审核通过后,公积金管理中心将提取资金转入申请人指定的银行账户。

编辑

苏州公积金提取首付款流程如下:

购买新建商品住房

准备材料:购房职工需线上或线下查询打印公积金缴存证明,作为自有资金证明。同时准备好身份证件原件、婚姻关系证明或户口簿原件及《委托书》。

签订合同:与开发企业签订《商品房买卖合同》。

提交申请:携带上述材料到住房公积金服务窗口申请提取住房公积金用于支付购房款。

审核与划转:住房公积金服务窗口工作人员对提交的材料进行审核,对于符合提取条件的,预售商品住房即时将提取资金转入开发企业预售资金监管专用账户,现售商品住房即时将提取资金转入开发企业收款账户。

购买存量商品住房

准备材料:购房职工线上或线下查询打印公积金缴存证明,作为自有资金证明。同时准备好身份证件原件、婚姻关系证明或户口簿原件及《委托书》。

签订协议:与卖房人签订《存量房交易信息确认书》或《存量房买卖合同》,同时买卖双方须与房地产市场和交易管理中心签订《存量房交易资金托管协议》。为保证交易资金安全,《存量房交易资金托管协议》载明的购房职工支取账户应设置为公积金中心的指定退款账户。

提交申请:携带《存量房交易信息确认书》或《存量房买卖合同》《存量房交易资金托管协议》等材料,到住房公积金服务窗口申请提取住房公积金。

审核与划转:住房公积金服务窗口工作人员对提交的材料进行审核,符合提取条件的,即时办结相关业务手续,并按资金托管业务流程将提取资金转入存量房资金托管账户。

编辑

杭州公积金提取首付款流程如下:

线上办理流程

职工确认可用公积金余额并提出申请:缴存职工先查询公积金账户内可用余额,在签订购房网签合同前,向商品房开发商提出使用住房公积金直付购房首付款的需求。

开发商录入与选择:开发商录入网签合同信息,确定采用公积金首付支付首付款方式。

职工线上提交申请:缴存职工登录“浙里办”app或浙江政务服务网(hz.zjzwfw.gov.cn/)“公积金提取——购买自住住房提取”办事界面,选择“办理公积金直付购房首付款业务”,按提示填报公积金申请提取金额,确认购房合同和公积金直付的资金监管账户等信息后,提交业务申请。

开发商备案网签合同:开发商提交确认购房网签合同备案。

中心审核与划转资金:中心接到购房网签合同信息后,联网审核缴存职工提取申请,3个工作日内将申请提取的住房公积金,直接划转至指定资金监管账户。

线下办理流程

准备材料:职工本人有效身份证件;购买商品房或经济适用住房的,提供商品房买卖合同、购房发票或统一收款收据;职工本人名下Ⅰ类银联储蓄卡;配偶、父母、子女提取的需提供有效关系证明(结婚证、同一住址的户口簿、出生证或独生子女证等)。

前往网点办理:携带上述材料原件至省直住房公积金中心各服务网点办理。

编辑

嘉兴公积金提取首付款流程如下:

适用范围

符合以下条件的购房人及其直系亲属(指配偶、父母、子女)可申请提取个人住房公积金账户内的住房公积金用于支付购房首付款:

在嘉兴市行政区域内购买二手自住住房。

申请人家庭名下无未结清的住房公积金贷款。

提取额度

申请人合计提取住房公积金的总额不得超过《浙江省存量房买卖合同》或《资金监管协议书》中约定的首付款金额,且不超过当日个人住房公积金账户余额。

拟申请住房公积金贷款的,个人住房公积金账户内应留出符合贷款规定的留存金额(符合存贷不挂钩政策的除外),提取总额与住房公积金贷款额合计不得超过房屋总价。

申请材料

申请人身份证明。

属于直系亲属关系申请提取的,提供直系亲属关系证明(或签署关系承诺书)。

《职工提取住房公积金支付二手房首付款承诺书》。

房屋出售方身份证明、本人在受托银行范围内开立的实名制一类借记卡。

拟购房屋不动产权证书。

《浙江省存量房买卖合同》或《资金监管协议书》。

办理程序

查询:申请人线上或线下查询打印个人住房公积金账户余额作为首付款参考。

申请:申请人及房屋出售方携带上述申请材料原件到购房地公积金管理部门或公积金业务受托银行网点提出申请并填写《承诺书》,确定提取金额。申请不能委托他人代办。

审核、资金划转

通过资金监管账户的:公积金管理部门对申请人提交的材料进行审核,审核通过后,将提取的住房公积金转入《承诺书》约定的资金监管账户,房屋过户手续完成后,资金监管单位将资金划转至出售方收款账户,同时向公积金管理部门反馈交易结果。

尚未建立或不通过资金监管账户的:公积金管理部门对申请人提交的材料进行审核,审核通过后,办理购房提取住房公积金登记,同时对申请人住房公积金账户暂时锁定,不再办理其它提取业务。公积金管理部门确认房屋过户手续完成后,将申请资金划转至出售方收款账户,同时解除对申请人公积金账户的锁定。

上海黄浦上海壹号院

售楼处电话☎:400-8862-334【售楼处预约热线】(一对一热情服务)

看房请务必提前致电销售确认时间,只有预约客户才能享受开发商提供的内部优惠以及专属的老客户推荐奖励!我们提供专业的一对一热情服务,助您以专业视角挑选理想的房产。

声明:本文由入驻焦点开放平台的作者撰写,除焦点官方账号外,观点仅代表作者本人,不代表焦点立场。