上海浦东陆家嘴申江958推出建面约98-131㎡1-2房在售总价约990-1800万不限购直接选样板房线上预约中PNP是全球成立最早、规模最大的科技投资和创业加速器之一,已经在28个国家和地区建立了分支机构,…
申江958售楼处电话:400-998-7894
上海陆家嘴申江958售楼处电话:400-998-7894
上海浦东陆家嘴申江958推出建面约98-131㎡1-2房在售总价约990-1800万 不限购 直接选 样板房线上预约中

申江958售楼处电话:400-998-7894
苏州市,简称“苏”,古称姑苏、平江,江苏省辖地级市,特大城市 [189],是上海大都市圈和苏锡常都市圈重要城市, [150]国务院批复确定的长江三角洲重要的中心城市之一、国家高新技术产业基地和风景旅游城市 [1] [151],位于华东地区、长江三角洲中部、江苏省东南部,东傍上海,南接浙江,西抱太湖,北依长江。 [15] [183]截至2022年,全市下辖5个区、代管4个县级市 [176],总面积8657.32平方千米,常住人口1291.1万人,城镇化率82.12%。 [180]
苏州是中国经济最活跃的城市之一 [185]。1994年由国务院批准设立的苏州工业园区被誉为“中国改革开放的重要窗口” [186]。2023年,苏州4县市全部进入全国百强县前十,其中昆山连续18年居全国首位 [187]。
苏州是首批24座国家历史文化名城之一,著名的江南水乡,有“人间天堂”的美誉。苏州城始建于公元前514年,距今已有2500多年历史。公元589年,隋文帝取姑苏山之名将“吴郡”改为“苏州”。 [166]苏州姑苏区为全国首个国家历史文化名城保护区。 [191]从春秋伍子胥建阖闾大城至今,苏州城基本保持着“水陆并行、河街相邻”的双棋盘格局,以“小桥流水、粉墙黛瓦、史迹名园”为独特风貌。以拙政园、山塘街为代表的苏州古典园林和中国大运河苏州段被列为世界文化遗产,以周庄古镇为代表的江南水乡古镇被列入中国世界文化遗产预备名单,太湖绝大部分景点分布在苏州境内。 [147] [151] [183] [188]作为“江南文化”的核心载体,苏州孕育的昆曲、评弹、园林和苏绣,已成为世界辨识中国的鲜明符号。 [184]
2022年,苏州市实现地区生产总值2.4万亿元,人均GDP18.6万元。

位置境域
苏州市,位于长江三角洲中部、江苏省东南部,地处东经119°55′—121°20′,北纬30°47′—32°02′之间,苏州市区中心地理坐标为北纬31°19’,东经120°37’, [15]东傍上海市,南接浙江省嘉兴市、湖州市,西抱太湖与无锡市相邻,北与南通市隔江相望,总面积8657.32平方千米。

地形地貌
苏州市地势低平,平原占总面积的55%。苏州分别隶属于两个一级的自然地理区:长江三角洲平原地区和太湖平原地区,分属于4个二级自然区:沿江平原沙洲区、苏锡平原区、太湖及湖滨丘陵区、阳澄淀泖低地区。地貌特征以平缓平原为上,全市的地势低平,自西向东缓慢倾斜,平原的海拔高度3~4米,阳澄湖和吴江一带仅2米左右。低山丘陵零星散布,一般高100~350米,分布在西部山区和太湖诸岛,其中以穹窿山最高(342米),还有南阳山(338米)、西洞庭山缥缈峰(336米)、东洞庭山莫里峰(293米)、七子山(294米)、天平山(201米)、灵岩山(182米)、渔洋山(171米)、虞山(262米)、潭山(252米)等。

气候
苏州市属于亚热带季风海洋性气候,四季分明,气候温和,雨量充沛。年均降水量1100毫米,年均温15.7℃,1月均温2.5℃。7月均温28℃。 [155]
水文

苏州园林
苏州古城境内河港交错,湖荡密布,最著名的湖泊有位于西隅的太湖和漕湖;东有淀山湖、澄湖;北有昆承湖;中有阳澄湖、金鸡湖、独墅湖;长江及京杭运河贯穿市区之北。太湖水量北泄入江和东进淀泖后,经黄浦江入江;运河水量由西入望亭,南出盛泽;原出海的“三江”,今由黄浦江东泄入江,由此形成苏州市的三大水系。由于苏州城内河道纵横,又称为水都、水城、水乡,十三世纪的《马可·波罗游记》将苏州赞誉为东方威尼斯。
水资源
苏州市多年平均降水量(1956~2000年系列)为1086.3毫米,折合降水总量90多亿立方米;其中降水量最多的1999年全市平均为1513.8毫米,其中平均梅雨量630毫米,是常年的3倍;其次1993年为1452.7毫米,最少的为1978年仅为598.2毫米,丰枯相差2.53倍。 [16]
生物资源
苏州地区河网密布,周围是全国著名的水稻高产区,农业发达,有“水乡泽国”、“天下粮仓”、“鱼米之乡”之称。有宋以来有“苏湖熟,天下足”的美誉,主要种植水稻、麦子、油菜、林果等。低洼塘田较多,出产莲藕、芡实、茭白等水生作物。特产有鸭血糯、白蒜、柑橘、枇杷、板栗、梅子、桂花、碧螺春茶等。长江刀鱼、阳澄湖大闸蟹和太湖三白(白鱼、银鱼、白虾)等为著名水产品。 [16]
矿产资源
苏州矿产资源有高岭土、瓷石、硫、花岗石、石灰石、石英、煤、天然气、铜、铁、铅、铟、镉、银、磁铁等16种。矿产以非金属为主,其中高岭土、花岗石以储量丰富、质量优异名冠全国。

公路
苏州市区有4个长途客运站:苏州北广场汽车客运站、苏州汽车南站、苏州汽车西站、吴中汽车客运站。
铁路
截至2021年,苏州市区共有苏州站、苏州北站、苏州园区站、苏州新区站、唯亭站等5个铁路客运站及一个货运站苏州西站,除此之外郊县还有昆山站、昆山南站、阳澄湖站等3个铁路客运站。苏州站是上海铁路局直属站,是京沪铁路中办理旅客运输的一等站,位于苏州古城区北端外城河北岸。

航运

苏州辖区内最大的港口--太仓港位置图
苏州港是2002年由原国家一类开放口岸张家港港、常熟港和太仓港三港合一组建成的新兴港口,原三个港口相应成为苏州港张家港港区、常熟港区和太仓港区。苏州港投入使用100个左右的万吨级码头,张家港港和太仓港区年货物吞吐量均超过1亿吨。

绿地长岛售楼处电话:400-998-7894
公共交通
公共汽车
公交车普通车单一票价为1元,空调车单一票价为2元,多为无人售票车。部分市郊线路实行“翻牌票价”,价格不一,一般为3—5元。
地铁
截至2023年中,苏州已开通1号线、2号线、3号线、4号线、4号线支线、5号线和11号线,总长251千米。 [168]规划7条轨道交通线路,远期规划为9条线路,规划总里程(含延伸段总长)380千米。

有轨电车
截至2021年,苏州高新区共规划8条线路,总长116km。总体定位为高新区内部公交骨干系统;是满足客流需求,适应并引导城市发展,展示高新区特色风貌的生态公交系统。2012年9月11日,苏州高新区有轨电车1号线开工建设,2014年10月26日建成通车。2018年4月28日,有轨电车1号线延伸线开通试运营 [199]。2018年8月31日,苏州有轨电车2号线正式开通试运营。2023年8月28日苏州高新区有轨电车T5线开通运营 [200]
出租车
桑塔纳、帕萨特起步价均为12元(含燃油补贴2元)(3千米以内)
3—5千米,桑塔纳为1.8元/千米,帕萨特为2.0元/千米
5千米以上,桑塔纳2.7元/千米,晚上23点至次日凌晨5点为3.24元/千米
帕萨特3.0元/千米,晚上23点至次日凌晨5点为3.6元/千米
教育事业

申江958售楼处电话:400-998-7894
苏州大学
(4张)
2022年末,苏州市拥有各级各类学校880所(不含幼儿园),其中普通高等学校26所;在校学生178.18万人,其中普通高等学校在校学生29.27万人;毕业生36.51万人,其中普通高等学校毕业生7.6万人;拥有专任教师11.95万人。年末全市共有幼儿园1015所,比上年末增加49所,在园幼儿37.75万人。义务教育学校实现课后服务全覆盖。四星级普通高中实现各县区全覆盖。全力推动名城名校融合发展,C9高校全部在苏州实现重大布局

科学技术
2022年,苏州市研究与试验发展(R&D)经费支出占地区生产总值比重4%左右。科技进步贡献率预计68.5%,比上年提高1个百分点。全市财政性科技投入231.1亿元,占一般公共预算支出的比重为8.9%。新认定高新技术企业5531家,有效高企数达13473家,首次跃升至全国第四位。高新技术产业产值22874.6亿元,比上年增长4.7%,占规模以上工业总产值比重达52.4%。年末各类人才总量363万人,其中高层次人才37万人,高技能人才91.2万人。年末有效发明专利拥有量10.45万件,比上年增长21.6%;万人有效发明专利拥有量80.9件,比上年末增加14件。入选首批国家知识产权强市建设示范城市和首批全国商业秘密保护创新试点地区。PCT专利申请3019件。全市技术合同成交额868.78亿元,比上年增长38.9%。 [157]
2022年,苏州实验室挂牌组建,国家新一代人工智能创新发展试验区、国家生物药技术创新中心、国家第三代半导体技术创新中心加快建设。成立苏州太湖光子中心,组建高功率半导体激光等13个创新联合体,启用先进技术成果转化长三角园区、国家先进功能纤维创新中心中试基地。“深时数字地球”国际大科学计划启动实施。全年新增省级以上企业技术中心205家,累计1111家;新增省级以上工程技术研究中心201家,累计1363家。全市拥有省级重点实验室17家。新增市级新型研发机构13家,累计91家。认定江苏独角兽企业10家;认定市级独角兽培育企业185家,累计达299家。新增国家级专精特新“小巨人”企业122家,累计达171家。国家科技型中小企业突破2万家,达到2.23万家。年末享受研发费加计扣除企业达2.2万家,比上年增长25.2%。加计扣除额926.08亿元,比上年增长69.5%,折合减免企业所得税231.52亿元。“苏科贷”实现苏州市域全覆盖,“科贷通”全年为2540家企业解决贷款119.87亿元,比上年增长42.5%。 [157]2022年,“亚太城市产业可持续性指数”显示,苏州市产业可持续发展能力位列亚太地区第12名。
申江958售楼处电话:400-998-7894
文化事业
国家一级图书馆:苏州图书馆、常熟市图书馆、张家港图书馆、张家港市少年儿童图书馆、昆山市图书馆、太仓市图书馆、吴中区图书馆、姑苏区图书馆、吴江图书馆、苏州独墅湖图书馆、相城区图书馆、苏州高新区图书馆 [23]
2022年,苏州市规模以上文化企业1286家,比上年末增加143家。规模以上文化企业营业收入3380.0亿元,比上年增长3.2%。年末全市共有公共图书馆11座,备案博物馆45座,文化馆11座,文化站93个。拥有5A级景区6家,4A级景区36家。乡村休闲旅游农业精品村累计47个,乡村旅游精品线路累计60条;乡村旅游精品民宿80家。全年共接待国内外游客9922.81万人次,实现旅游总收入1863.35亿元。年末全国重点文物保护单位61处、省级文物保护单位128处。
申江958售楼处电话:400-998-7894

申江958售楼处电话:400-998-7894
上海陆家嘴申江958售楼处电话:400-998-7894
Shanghai Pudong, the fastest growing "post-90s" on the planet, is a symbol of China's reform and opening up and a microcosm of Shanghai's modernization drive.
上海浦东,地球上“长”得最快得“90后”,中国改革开放的象征和上海现代化建设的缩影。
It is a postcard of a modern city. In the center of the postcard are Oriental Pearl, Lujiazui three-piece set and Tomson Yipin.
它是一张现代都市的明信片,明信片的中央,是东方明珠、陆家嘴三件套,以及汤臣一品。
As a banner of China's high-end housing, this phenomenon of the Huangpu River has been standing as an IP in Shanghai, many people may not know that Tomson is actually not only a high-end housing developer, the story of Tomson and the Tang family is a microcosm of the economic and cultural exchanges between the three places on the mainland and Taiwan, but also the return of Chinese businessmen's hometown and homeland.
作为中国高端住宅的一面旗帜,这部黄浦江畔的现象级作品,已经屹立为上海的一个IP,可能很多人不知道的是:汤臣其实并不仅仅是一个高端住宅的开发商,汤臣及汤氏家族的故事,是两岸三地经济与文化交流的缩影,也是中国商人心系家乡与故土的回归足迹。

下一个金融增长点蓄势发力。

Gathering nearly a thousand licensed financial institutions such as banks, securities and insurance, Lujiazui City, which has gradually completed its financial market system, is preparing for the next financial growth point.
聚集起近千家银行、证券、保险等持牌金融机构,金融市场体系门类逐步完备的陆家嘴金融城正为下一个金融增长点蓄势发力。
Yesterday, Lujiazui announced that it has joined forces with the internationally renowned startup accelerator - Plug and Play (PNP) to build a new Lujiazui financial technology industrial Park - Lujiazui Binjiang Central Base on the banks of the Huangpu River, attracting financial technology enterprises and technical teams from around the world to settle here.
昨天,陆家嘴宣布联手国际知名创业加速器——Plug and Play(简称PNP),在黄浦江畔建设一个全新的陆家嘴金融科技产业园——陆家嘴滨江中心基地,吸引来自全球的金融科技企业和技术团队在此落户。
Aiming at emerging technologies such as big data and artificial intelligence, the entire City will promote the innovation and development of financial business on the basis of effectively preventing financial risks, introduce cutting-edge technologies led by internationally renowned scientific research institutes, and let financial institutions and fintech enterprises collide in more application scenarios.
瞄准大数据、人工智能等新兴技术,整座金融城将在有效防范金融风险的基础上,促进金融业务创新发展,引入国际知名科研院所领先的前沿技术,让金融机构和金融科技企业在更多应用场景上碰撞出火花。
Let science and technology enterprises "straight chain" financial scene
让科创企业“直链”金融场景
PNP is one of the oldest and largest technology investment and startup accelerators in the world, having established branches in 28 countries and regions and invested in accelerating more than 10,000 innovative companies.
PNP是全球成立最早、规模最大的科技投资和创业加速器之一,已经在28个国家和地区建立了分支机构,投资加速了超过1万家创新企业。
"We have several major tech finance incubators around the world, including New York, Silicon Valley, London, Paris and Tokyo."
“我们在全球布局了几大科技金融孵化基地,包括纽约、硅谷、伦敦、巴黎和东京。”
Xu Jiping, executive director and CEO of PNP China, told reporters that the Lujiazui Fintech Industrial Park, located in the Riverside center of Pudong, will become PNP's regional fintech incubation headquarters in China.
PNP中国执行董事兼首席执行官徐洁平告诉记者,位于浦东滨江中心的陆家嘴金融科技产业园将成为PNP在中国区域的金融科技孵化总部。


Building area: 98-131 square meters (12 sets)
建筑面积:98-131平(12套)
Estimated total price: 1100-1500W
预估总价:1100-1500W
Shenjiang 958 Sales Office Tel: 售楼处电话:400-998-7894 Shanghai Lujiazui Shenjiang 958 Sales Office Tel:
申江958 售楼处电话:400-998-7894上海陆家嘴申江958售楼处电话:
售楼处电话:400-998-7894 Shenjiang 958 is the most core location of the apartment masterpiece in Lujiazui plate in the past 5 years, the apartment is located on the Lujiazui Ring Road in Pudong New Area, positioned as a limited edition high-end luxury apartment, the apartment is adjacent to Tomson Yipin, Fortune Sea View One, Lijing Hui, Triumph Arch of Binjiang and other luxury homes, is the first time in the small Lujiazui plate in the past 5 years, unlimited purchase apartment.
售楼处电话:400-998-7894申江958是近5年来陆家嘴板块蕞核芯位置的公寓杰作,公寓坐落地浦东新区陆家嘴环路上,定位为限量版高端豪装公寓,公寓毗邻汤臣一品、财富海景壹号、丽景汇、滨江凯旋门等豪宅,是近5年来小陆家嘴板块首次面市的不限购公寓,
The superiority of the location determines its unrepeatability
地段的优越性决定了它的不可复制性
。

The apartment is surrounded by Line 2/14 double-track interchange, 570 meters from Line 2 Lujiazui Station and 430 meters from Line 14 Pudong South Road Station.
公寓周边有2/14号线双轨交换乘,距离2号线陆家嘴站570米,距离14号线浦东南路站430米;
By car, there are Yan 'an East Road tunnel, new Road tunnel, Renmin Road tunnel, a few minutes to quickly cross the river to Puxi city.
自驾出行有延安东路隧道、新建路隧道、人民路隧道,几分钟便可快速过江到达浦西市区。
Shenjiang 958 Sales Office Tel: 售楼处电话:400-998-7894 Shanghai Lujiazui Shenjiang 958 Sales Office Tel: 售楼处电话:400-998-7894
申江958 售楼处电话:400-998-7894上海陆家嘴申江958 售楼处电话:400-998-7894
【 Warm tips: Please make an appointment in advance, stagger the peak, thank you for your cooperation 】
【温馨提示:看房请提前预约,错开高峰,谢谢配合】

In terms of cultural attractions and business, the apartment is downstairs is the Lujiazui Central green space (5A scenic spot), next to Shanghai landmark buildings - the famous three-piece: Shanghai Tower 550 meters, Jinmao Tower 400 meters, World Financial Center 400 meters, as well as Pudong Binjiang Avenue (park), Oriental Pearl Tower, Shanghai Ocean Aquarium, about 10 minutes walk to reach.
人文景点与商业方面,公寓楼下就是陆家嘴中心绿地(5A景区),旁边是上海地标性建筑-著名的三件套:上海中心大厦550米、金茂大厦400米、环球金融中心400米,以及浦东滨江大道(公园)、东方明珠塔、上海海洋水族馆等,步行10分钟左右便可到达。
In addition, within a radius of one kilometer there are Galeries Lafayette, the First Yaohan, New Mei Union Square, GALA MALL, IFC International Financial Center, Super Brand Square and other high-end commercial centers, the surrounding can be described as prosperous
另外,在方圆一公里范围内更是有老佛爷百货、第一八佰伴、新梅联合广场、GALA MALL、IFC国金中心、正大广场等高端商业中心,周边可谓繁华尽享
Shenjiang 958 Sales Office Tel 售楼处电话:400-998-7894 Shanghai Lujiazui Shenjiang 958 Sales Office Tel 售楼处电话:400-998-7894
申江958 售楼处电话:400-998-7894上海陆家嘴申江958 售楼处电话:400-998-7894
【 Warm tips: Please make an appointment in advance, stagger the peak, thank you for your cooperation 】
【温馨提示:看房请提前预约,错开高峰,谢谢配合】

Shenjiang 958 Sales Office Tel 售楼处电话:400-998-7894 Shanghai Lujiazui Shenjiang 958 Sales Office Tel:
申江958 售楼处电话:400-998-7894上海陆家嘴申江958售楼处电话:
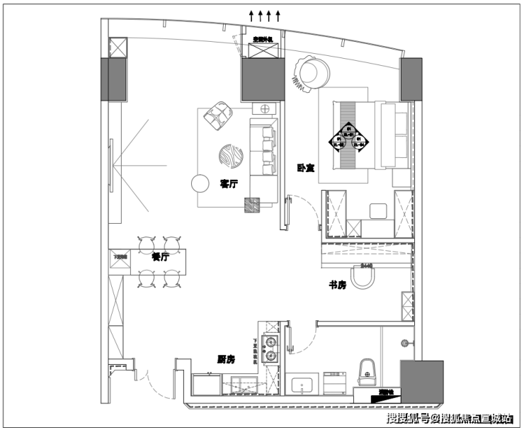
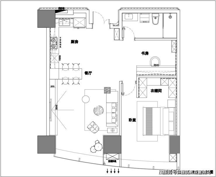
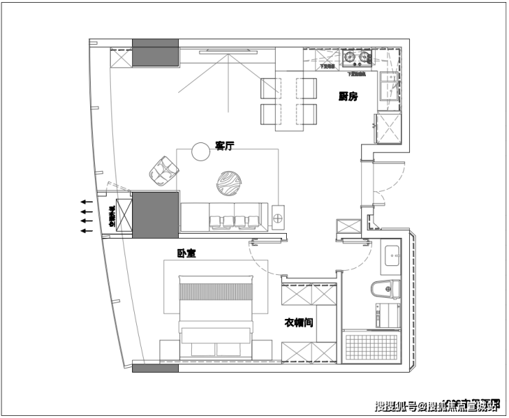
售楼处电话:400-998-7894 Shenjiang 958 apartment property rights 50 years, the total height of 38 floors, single-storey height of about 3 meters, the opening of the sale of only 12 seats, in the sale floor for the middle floor, the whole floor unified new decoration, the area of 98-131 square, 7 ladder 12 households, the whole house smart home, equipped with BOSCH (Bosch) custom appliances, luxury full delivery.
售楼处电话:400-998-7894申江958公寓产权50年,总高38层,单层层高约3米,此次开售仅12席,在售楼层为中间楼层,整层统一全新装修,面积段为98-131平,7梯12户,全屋智能家居,配备BOSCH(博世)定制家电,豪装全配交付。


Lujiazui, the city cover of Shanghai.
陆家嘴,上海的城市封面。
The pursuit of inner ring real estate is nothing more than scarce locations, large business areas, benchmarking projects, excellent education...
内环内置业所追求的,无非是稀缺地段,大型商圈,标杆项目,优秀教育……
Here is the top of Shanghai real estate, a new plate, will be robbed.
这里是上海置业的顶端,一出新盘,必遭哄抢。
But the scarcity of the inner ring is destined for most people.
但内环的稀缺性,注定大部分人无缘于此。
Shenjiang 958 Sales Office Tel 售楼处电话:400-998-7894 Shanghai Lujiazui Shenjiang 958 Sales Office Tel 售楼处电话:400-998-7894
申江958 售楼处电话:400-998-7894上海陆家嘴申江958 售楼处电话:400-998-7894
Don't worry, your chance to stay in a prime location is here!
别急,入住顶豪地段的机会来了!
You can have it!
你可以拥有!
Shenjiang 958, next to Shanghai Center, Lujiazui, does not limit the purchase of administrative residence, in the sale area of about 98-131 square meters 1-2 rooms, a small number of houses are on sale;
陆家嘴上海中心旁申江958不限购行政公馆,在售面积约98-131㎡1-2房,现有少量房源在售;
The total price of 9 characters starting from the inner ring of quality real estate, investment, self-living are suitable.
总价9字头起拥内环内品质不动产,投资,自住皆宜。


Lujiazui Shenjiang 958
陆家嘴 申江958
Building area: 98-131 square meters (12 sets)
建筑面积:98-131平(12套)
Estimated total price: 1100-1500W
预估总价:1100-1500W
Shenjiang 958 Sales Office Tel 售楼处电话:400-998-7894 Shanghai Lujiazui Shenjiang 958 Sales Office Tel 售楼处电话:400-998-7894
申江958 售楼处电话:400-998-7894上海陆家嘴申江958 售楼处电话:400-998-7894
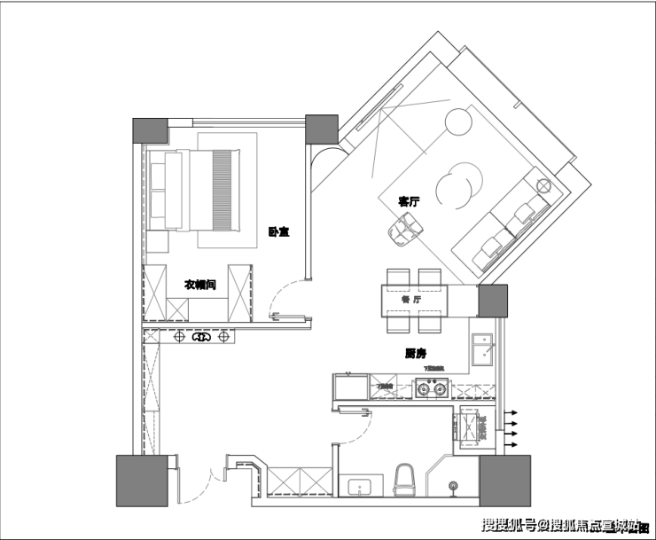
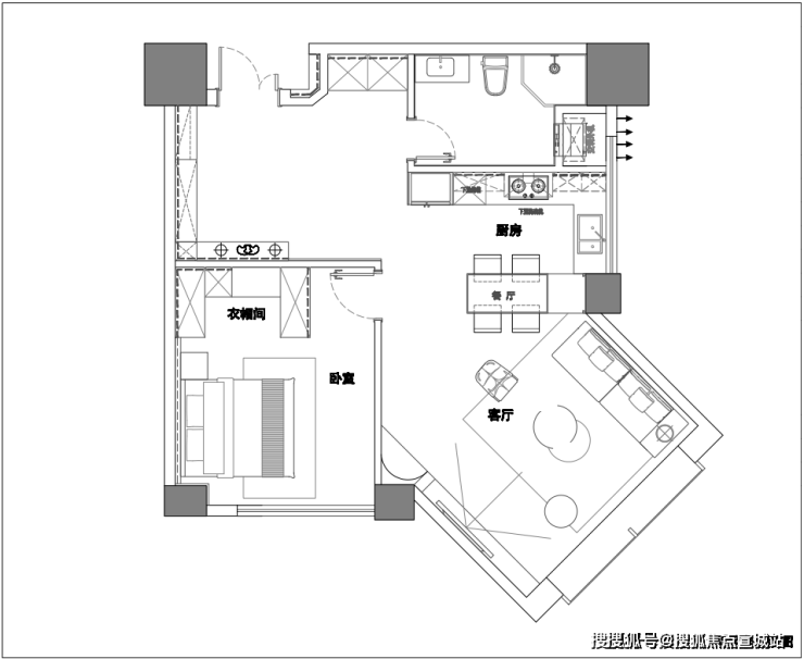
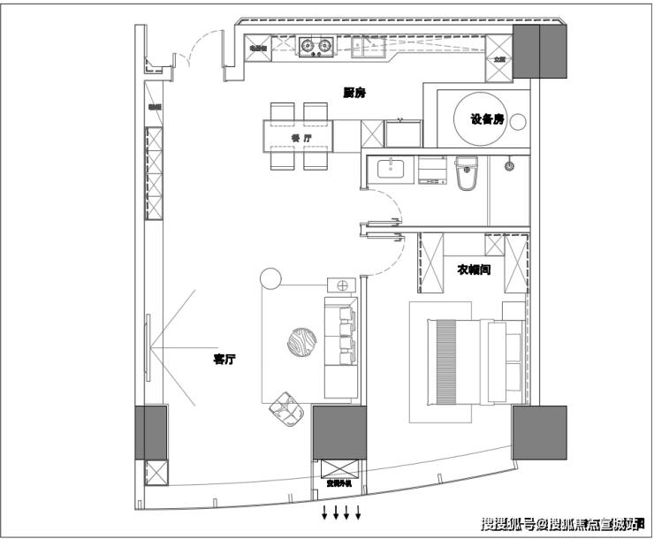
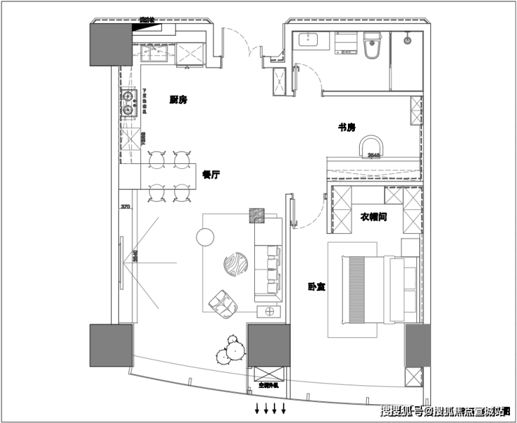
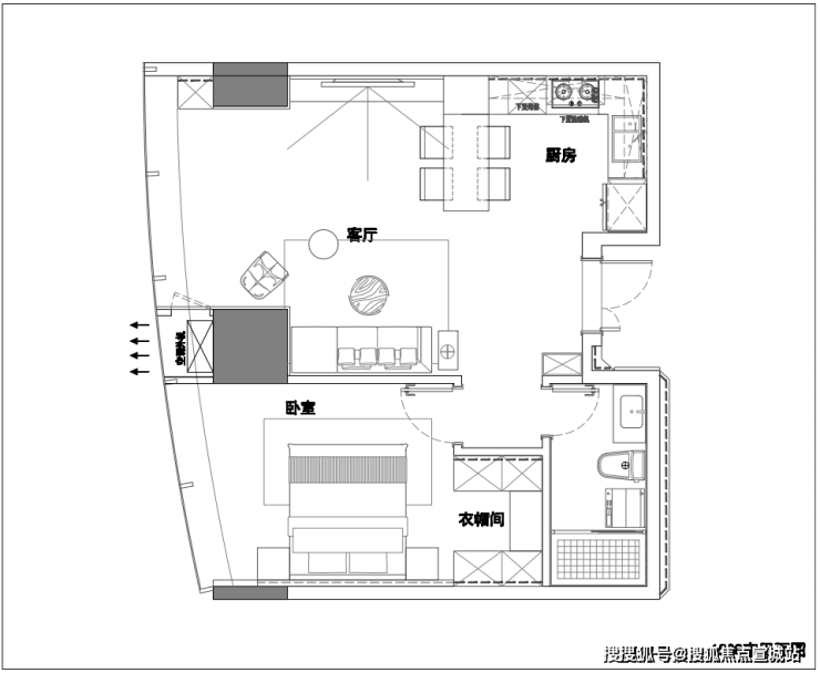
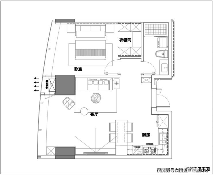
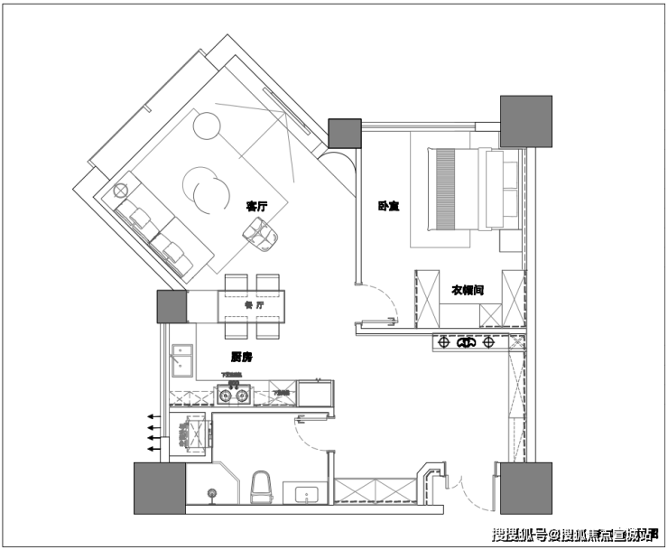
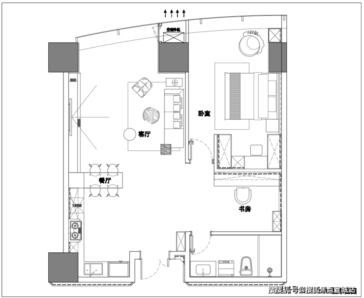
陆家嘴申江958户型图:



申江958售楼处电话:400-998-7894上海陆家嘴申江958售楼处电话:400-998-7894









申江958售楼处电话:400-998-7894上海陆家嘴申江958售楼处电话:400-998-7894




申江958售楼处电话:400-998-7894上海陆家嘴申江958售楼处电话:400-998-7894



华能联合大厦 售楼处电话:400-998-7894上海浦东华能联合大厦 售楼处电话:400-998-7894





无繁杂的修饰,一场极简克制
打开关于生活的另一种热爱方式
南北阳台打通,空间全部打开,成为客厅+餐厅+书房+水吧的整个公共生活系统
整体淡雅的色调营造出静谧温馨的气息
感受属于家的温暖
—


—
原本的鞋柜和卧室门较为突兀
与整体风格相悖
重新设计后打破原本结构,把鞋柜和次卧门与沙发背景连成一体,更简洁大气


客厅Living
// turning the seemingly monotonous lack of
artistic space //

利用南阳台区域放置儿童活动区
方便家长在休闲或办公时都能照看孩子
当居住的功能不被定义,生活也变得自由随性......





办公区域
—

TAKE IT EASY.
Space
客厅用半墙做了电视背景处理
既很好的遮蔽电脑线
还通过造型描绘了一幅流动性的无序构图
储物柜用几何线条的精密
引用材料与色调交融的微妙变化
满足了客户储物和小朋友阅读角的需求


吧台
bar
//turning the seemingly monotonous lack of
artistic space//



北边阳台朝向紫荆公园,视野极佳
利用设备平台的位置做外拓设计
放置酒柜吧台和餐边柜
造型感满满的同时也增加了这片区域的实用度

主卧空间-

主卧摈弃了满柜的处理手法
做了化妆桌与衣柜的穿插
色调旭墨交融,微光穿透,意韵悠然而生




客卧空间
—

客卧是父母的居所
利用原有格局设置玄关
打造通感的视觉体验,温暖色调让父母享受沉静与悠闲



儿童房通过布局规划将床与书桌整合
将孩子睡眠与学习融入有限的空间里

Shenjiang 958 Sales Office Tel 售楼处电话:400-998-7894 Shanghai Lujiazui Shenjiang 958 Sales Office Tel 售楼处电话:400-998-7894
申江958 售楼处电话:400-998-7894上海陆家嘴申江958 售楼处电话:400-998-7894
If Shanghai wants to play a leading role in this round of global wealth transfer, it must create a Shanghai model that is different from other international financial centers and global asset management centers.
上海要在本轮全球财富转移中担纲主角,必须打造出有别于其他国际金融中心、全球资管中心的上海模式。

According to the latest edition of the Global Financial Centers Index, Shanghai Pudong's overall ranking continues to remain at the top, and it is ranked first in the Asia-Pacific region in investment management, trade and other segments.
根据最新一期发布的全球金融中心指数,上海浦东综合排名继续保持前列,并在投资管理、贸易等细分领域拔得亚太区头筹。
Shenjiang 958 Sales Office Tel 售楼处电话:400-998-7894 Shanghai Lujiazui Shenjiang 958 Sales Office Tel 售楼处电话:400-998-7894
申江958 售楼处电话:400-998-7894上海陆家嘴申江958 售楼处电话:400-998-7894
At the Third Lujiazui Global Asset Management Summit Forum on March 27, the Lujiazui Administration further signed memorandums of cooperation on opening up with 10 global asset management institutions such as Wellington, international industry organizations and research institutions such as the Federation of International Free Trade Zones and Special Economic Zones.
3月27日的第三届陆家嘴全球资产管理高峰论坛上,陆家嘴管理局进一步与威灵顿等10家全球资管机构,国际自由贸易区和经济特区联合会等国际行业组织、研究机构签署了对外开放合作备忘录,
Several Opinions on Accelerating the Construction of the Core Functional Area of the Global Asset Management Center of Lujiazui Financial City in Pudong New Area were issued, which clearly stated that it will better serve financial institutions and build the most international and professional financial ecosystem.
并发布《浦东新区加快推进陆家嘴金融城全球资产管理中心核心功能区建设的若干意见》,明确将更好服务金融机构,打造最为国际化、专业化的金融生态圈。

Shanghai Pudong Shenjiang 958
上海浦东申江958
Lujiazui Financial Center ----- super luxurious decoration, you deserve it
陆家嘴金融中心 ----- 超豪华装修、你值得拥有
Shenjiang 958 Sales Office Tel 售楼处电话:400-998-7894 Shanghai Lujiazui Shenjiang 958 Sales Office Tel 售楼处电话:400-998-7894
申江958 售楼处电话:400-998-7894上海陆家嘴申江958 售楼处电话:400-998-7894

申江958售楼处电话:400-998-7894




申江958售楼处电话:400-998-7894
上海陆家嘴申江958售楼处电话:400-998-7894
专业一对一热情服务,让您用专业眼光去买房。(来电尊享内部优惠活动)