上海-闵行-象屿·天宸雅颂售楼处电话☎:400-8558-334(预约热线)✔✔✔上海象屿·天宸雅颂售楼处电话已开放,项目将推高层、叠墅、宋风联排,预计4月入市。详情可预约。
上海-闵行-象屿·天宸雅颂售楼处电话☎:400-8558-334(预约热线)✔✔✔
如有问题欢迎来电咨询,专业一对一热情服务,让您用专业眼光去买房.
象屿·天宸雅颂售楼处电话☎:400-8558-334【售楼热线】✔✔✔象屿·天宸雅颂营销中心热线☎400-8558-334售楼处地址☎400-8558-334
一脉前滩·8号线枢纽·全臻装公园墅区「象屿·天宸雅颂售楼处预约热线☎:400-8558-334√√」,将推高层&叠墅&宋风联排,展厅已开放,预计4月入市!
最新消息:象屿前滩南TOD项目——「象屿•天宸雅颂售楼处预约热线☎:400-8558-334√√」已开放展厅!建面约89-230㎡精装平层/叠墅/联排即将入市!预计3月开放示范区,预计4月取证入市!



象屿•天宸雅颂售楼处预约热线☎:400-8558-334√√
小高层预计为89/102/107/128/139平(89-107为3房,128-139为4房);
叠加预计145-156平,联排预计190-230平,(具体户型和面积以实际为准).
户型图如下:(过程稿仅供参考,最终以实际为准)
「约89㎡3房2厅1卫」

象屿•天宸雅颂售楼处预约热线☎:400-8558-334√√
「约107㎡3房2厅2卫」

象屿•天宸雅颂售楼处预约热线☎:400-8558-334√√
「约107㎡3房2厅2卫」

象屿•天宸雅颂售楼处预约热线☎:400-8558-334√√
「约128㎡3房2厅2卫」

象屿•天宸雅颂售楼处预约热线☎:400-8558-334√√
「约140㎡4房2厅2卫」

象屿•天宸雅颂售楼处预约热线☎:400-8558-334√√
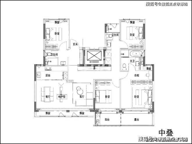
叠墅户型图如下:(过程稿,以开发商发布为准)


象屿•天宸雅颂售楼处预约热线☎:400-8558-334√√

象屿•天宸雅颂售楼处预约热线☎:400-8558-334√√项目优势如下:
1)象屿•天宸雅颂售楼处预约热线☎:400-8558-334√√地段站位优:该盘位于8号线沈杜公路地铁站旁,算是地铁上盖项目,距离该站点只有约300米.8号线是上海城市中轴线,可达浦东前滩、世博、浦西老西门、人民广场等上海地标.

象屿•天宸雅颂售楼处预约热线☎:400-8558-334√√项目乘坐8号线到往人民广场用时只需约40分钟,地铁出行非常快捷!
同时,该站点也可同站换乘浦江线,所以该盘地铁出行优势很大.
2)象屿•天宸雅颂售楼处预约热线☎:400-8558-334√√附近或有越江隧道:近期东川路越江隧道又有新动态,这也是闵行第三条越江隧道.大概方案或有两种走向:东川路-先新路&东川路-鲁南路!

无论如何走向,这条隧道都在象屿浦江项目南侧不远处,未来到往浦西,出行上将更有更多选择,对于象屿浦江项目来说也是一大利好.
3)象屿•天宸雅颂售楼处预约热线☎:400-8558-334√√房价占优:象屿•天宸雅颂项目高层住宅预计均价5.5-6万左右,相比江月路近7万联动价新房,低出不少;地铁仅相差3站路,但价格却便宜1万多/平,具备很高性价比.
同时,象屿•天宸雅颂项目也是8号线沿线最便宜的项目,没有之一!
同时项目还有低密度的叠加&联排产品,价格相对也较为实惠.
4)象屿•天宸雅颂售楼处预约热线☎:400-8558-334√√配套未来可期:8号线沈杜公路站目前暂无优质配套,但在该项目东侧,规划一处约15万方的商业用地,未来落成也将成为8号线沈杜公路站附近的商业中心.
同时浦锦街道经过多年发展,已积蓄了众多配套商业设施,如浦江城市生活广场、绿地乐和城以及浦江镇南部片区的万达广场等,距离该盘都在约4公里范围内.
5)象屿•天宸雅颂售楼处预约热线☎:400-8558-334√√社区设计较好:项目地面无车位,全人车分流,高层地块内还规划有风雨连廊以及大量的架空层,同时还打有会所,品质高端!
6)象屿•天宸雅颂售楼处预约热线☎:400-8558-334√√有小户型,总价可控:项目有89平小3房产品,预计总价400多万就能上车,相对宝山顾村价格大抵相当,但笔者更认为闵行浦锦街道预期更加充足.
8号线地铁盘
「象屿•天宸雅颂」
预计2025年4月首批房源入市
高层面积段预计89-139㎡3-4房
叠加预计145-156平,联排预计190-230平
高层预计均价5.5-6万/平
别墅预计均价6-7万/平
基本信息:
【开发商】象屿地产
【项目区位】一脉前滩·8号线枢纽
【占地面积】约69493㎡
【地上建筑面积】约14.9万㎡
【产品类别】高层、叠加、联排
【设计风格】海派+宋式美学
【总户数】约1254套(可售约1140套)
【容积率】01-02、01-03地块:2.4|03-02地块:1.2
【绿地率】约35%
【装修标准】集采价格不低于3000元/㎡
【车位比】01-02、01-03地块约1:13|03-02地块约1:2
01
大体量供应
高层&别墅产品均有
闵行浦江镇地铁8号线沈杜公路西侧——【象屿•天宸雅颂售楼处预约热线☎:400-8558-334√√】3幅宅地正式公示设计方案,总建筑面积约14.9万方,未来预计将有约1254套住宅供应.

象屿•天宸雅颂售楼处预约热线☎:400-8558-334√√项目作为新浦江中心首发项目,将主动嵌入到新浦江中心的规划与建设中,打造灵感与森态共栖、快链与漫步一体、烟火与精致并蓄、艺术与人文浸润的PARKTOD样板.
外立面采用精致铝板装饰+通透大窗的美学立面设计,打造弧面窄框艺术之境.

园林方面将围绕中央景观,以象屿•天宸雅颂售楼处预约热线☎:400-8558-334√√现代艺术手法,打造森林岛屿景观.内部设置特色水景,串联不同节点.同时以树木、水系与局部连廊体系融合,共同组建起社区与居所之间的联通介质.

象屿•天宸雅颂售楼处预约热线☎:400-8558-334√√项目还打造约2500平会所,涵盖泳池、健身房、童玩区、瑜伽室、水吧区、私宴厅等高端设施.
社区还有约3000平架空层,打造全龄共享的生活志趣.

具体规划指标如下:
象屿•天宸雅颂售楼处预约热线☎:400-8558-334√√位于闵行浦江镇锦浦街道,8号线与浦江线沈杜公路站的西边.地块西侧就是浦江郊野公园,东侧则是保留的商办用地,未来或将围绕地铁站打造TOD综合体.

象屿•天宸雅颂售楼处预约热线☎:400-8558-334√√

地块信息
01-03:出让面积25684.46m²,容积率2.4
01-02:出让面积22014.96m²,容积率2.4
03-02:出让面积21793.14m²,容积率1.2
总建筑面积:140630.376m²
地块四至
01-03:东至南官路,南至沈杜公路,西至大寨河,北至昌林路
01-02:东至南官路,南至悦亭路,西至大寨河,北至昌林路
03-02:东至浦星公路,南至姚家浜,西至大寨河,北至沈杜公路

象屿•天宸雅颂售楼处预约热线☎:400-8558-334√√
01-02(最北面)规划8幢楼,总高17-18层,除了南面靠马路的二幢楼外,其余一楼采用架空层,南北楼间距30米.地块内全部为商品房.
规划可售住宅约524套,将推出建面约89-128㎡3-4房.


象屿•天宸雅颂售楼处预约热线☎:400-8558-334√√
01-03(中间),规划10幢楼,其中一幢为保障房,总高17-18-20层,小区中心位置的商品一楼为架空层,南北楼间距30米.
规划可售住宅约472套,将推出建面约89-139㎡3-4房.
01-03地块规划有下沉式庭院,地下会所,该地块距离地铁站也更近一些!


象屿•天宸雅颂售楼处预约热线☎:400-8558-334√√
03-02(最南面),规划13幢总高3-4-7层低密度住宅,3层(联排别墅)总高10米,4层(上下叠加)总高13米,7层(平层洋房)总高24米,南北楼间距12-15米.
该地块将推出叠墅以及联排产品,共计约182套!
02
地处浦江新中心
象屿•天宸雅颂售楼处预约热线☎:400-8558-334√√交通&配套基本成熟
作为上海中心城辐射区,闵行六大地区中心之一,前滩南门户,浦东四大城镇圈之一,浦江地区中心占据特有的平台区位优势.

象屿•天宸雅颂售楼处预约热线☎:400-8558-334√√
新浦江中心沿袭闵东文创中心定位,以蓝绿环绕为基底,历史人文为内涵,产业更新为驱动,新浦江中心将街接闵行与浦东新区,打造黄浦江沿岸崭新的生态交织、文化自信、产城融合能量聚集地.

象屿•天宸雅颂售楼处预约热线☎:400-8558-334√√
信息来源:上海市闵行区总体规划暨土地利用总体规划(2017-2035)
新浦江新中心将围绕沈杜公路TOD打造创智总部湾、大型商业、艺术街区、文化展览、滨水码头、高端住宅等,以世界前沿Live-Work-PlayShop模式,为上海打造高度复合等职住平衡10分钟生活圈.
象屿•天宸雅颂售楼处预约热线☎:400-8558-334√√项目高层的东侧规划约15万方商业,按照正常逻辑来讲,该商业地块应于住宅一并打包出让,共同组成真正的TOD项目,但目前做了拆分,可能是因为连带商业一并出让,无开发商愿意接盘,因此住宅地块进行了单独出让!

象屿•天宸雅颂售楼处预约热线☎:400-8558-334√√
这种情况造成的局面就是商业规划落地的难度更大,同时存在不确定性,若此商业能落地,还是比较值得期待的,日常生活的便捷程度将能得到大大提升!
在交通方面,东侧距8号线仅有一路之隔,随着项目及TOD商业综合体的落地,未来应该会建过街天桥.建成以后,距离地铁站直线距离约200米.
通过8号线地铁,6站抵达前滩,15站直抵上海人民广场.

上海-闵行-象屿·天宸雅颂售楼处电话☎:400-8558-334(预约热线)✔✔✔
如有问题欢迎来电咨询,专业一对一热情服务,让您用专业眼光去买房.
象屿·天宸雅颂售楼处电话☎:400-8558-334【售楼热线】✔✔✔象屿·天宸雅颂营销中心热线☎400-8558-334售楼处地址☎400-8558-334