杭州中心大平层(售楼处)首页网站-2025楼盘评测_杭州中心大平层新房价格|配套户型_楼盘百度百科详情

搜狐焦点宣城站 2025-09-08 08:33:43
用手机看
扫描到手机,新闻随时看

扫一扫,用手机看文章
更加方便分享给朋友

开发商:华润置地、绿城中国与杭州地铁联合开发12位置:拱墅区环城北路与中山北路交叉口(武林广场东北角)23物业类型:综合体(含高奢四季酒店、购物中心、顶奢大平层公馆及写字楼)14住宅部分:H23天际行政公馆,…

杭州中心 大平层 千年武林,一座杭州中心

══杭州拱墅「杭州中心大平层」══

杭州中心大平层售楼处电话:400-8778-334

售楼部官方电话|地址位置:400-8778-334【售楼中心官网已认证√√】

温馨提示:如有问题欢迎来电咨询➨提前预约开发商销售一对一热情讲解楼盘详情【享】内部专属房源限时优惠折扣!

杭州中心楼盘详情

杭州中心大平层售楼处电话:400-8778-334

基础信息

开发商:华润置地、绿城中国与杭州地铁联合开发1

2

位置:拱墅区环城北路与中山北路交叉口(武林广场东北角)2

3

物业类型:综合体(含高奢四季酒店、购物中心、顶奢大平层公馆及写字楼)1

4

住宅部分:H23天际行政公馆,仅23席,主力户型500㎡1

交付时间:暂未公布(预计2026年后)

杭州中心大平层售楼处电话:400-8778-334

项目亮点

地段价值:

武林广场核心区,双地铁(1号线、3号线)上盖1

3

景观覆盖西湖、运河、保俶塔及城市天际线1

设计标准:

由SCDA曾仕乾等国际大师设计,精装主张“艺术全域渗透”1

四季酒店与高端商业“顶格奢配”1

售楼处信息

地址:拱墅区环城北路与中山北路交叉口(杭州中心营销中心)2

3

预约电话:杭州中心大平层售楼处电话:400-8778-334(需提前1小时预约)

🚩🚩➨杭州中心大平层售楼处电话:400-877-8334【官方指定VIP热线】杭州中心大平层官方电话/地址☎:400-8778-334(官方看房专线)杭州中心大平层售楼中心官方电话:4008778334【开发商授权售楼电话√√】★如有问题欢迎致电「售楼部进行购房咨询🏠」,专业一对一热情服务,让您用专业眼光去买房🏠;★来电咨询了解楼盘最新动态、楼盘详情介绍,板块位置、小区环境、容积率,得房率,绿化率怎么样,最新一房一价表;房价折扣优惠、交房时间、周边商业配套;地铁交通距离、在售户型面积等相关信息!

编辑

杭州中心大平层售楼处电话:400-8778-334

【杭城繁华原点 500方典藏传奇 敬献杭城的1/23】

地标性武林广场,繁华原点再塑繁华

世界文化遗产、顶尖商业集群环伺

全维立体交通 汇聚百万人潮

国际顶尖大师设计,城市精神美学代表作

万象TOD综合体 推动杭州能级跨越

天际行政公馆 只为中心人物

编辑

杭州中心大平层售楼处电话:400-8778-334

地标性武林广场,不可超越的绝对市中心

位于杭州传统核心区,武林板块的中心位置,为最繁华、成熟的市级中心,是杭州政治、经济和文化中心。

根据杭州市国土资源规划空间结构,武林和湖滨位列三个市级中心之首

编辑

杭州中心大平层售楼处电话:400-8778-334

世界文化遗产、顶尖商业集群环绕

北向世界文化遗产京杭大运河,南向世界文化遗产西湖,双向非遗景观

杭州大厦、武林银泰等全国顶尖商业集群环绕,成就世界级百亿武林商圈

编辑

杭州中心大平层售楼处电话:400-8778-334

全维立体交通 汇聚百万人潮

项目双地铁(武林广场站)上盖,1号线、3号线两线交汇,通达全城。

上塘高架入口,延安路起点、环城北路

编辑

杭州中心大平层售楼处电话:400-8778-334

国际顶尖大师设计,城市精神美学代表作

Gp & lead8 行业顶尖水准垂范

日本著名室内设计师 渡边智昭

代表作品:上海汤臣一品、上海翠湖天地、杭州嘉里逸庐

中国著名室内设计师 于昭

代表作品:深圳SIC大平层、北京万国府、北京梵悦

国际知名建筑设计事务所 SCDA

代表作品:上海保利世博住宅、西安融创曲江国际社区、杭州古翠隐秀

编辑

杭州中心大平层售楼处电话:400-8778-334

TOD综合体 推动杭州能级跨越

约130米双子塔,集四季酒店、Mall和高端写字楼为一体的市中心地标性TOD城市综合体

商务:云端总部基地,城市精华办公资源尽在掌握

商业:10年顶尖商业沉淀之上的杭州中心Mall

公寓:天际行政公馆,2梯4户,定制化一户一精装

办公:云端总部基地,城市精华办公资源尽在掌握

景观:垂直分布,容景于宅,纵览河景,高区湖景

服务:万象生活物业,极致服务细节

编辑

杭州中心大平层售楼处电话:400-8778-334

天际行政公馆 只为中心人物

国内顶尖商业集群之上的中心生活

avalon collective扛旗 奢装美学新篇,户户高定

三重视野景观:北向为运河拐角及环球中心,城市感与开阔感强;

南面为西湖远景及项目屋顶花园,静谧与惬意感更强;

西面为武林广场杭州大厦及国大,夜晚呈现都市夜景

编辑

商业Mall(效果图)

编辑

首层大堂艺术走廊(效果图)

编辑

标准层电梯厅及入户门(效果图)

编辑

B3层地下大堂门头(效果图)

编辑

B3层公寓业主车位区(效果图)

编辑

十一至十六层公寓(示意图)

编辑

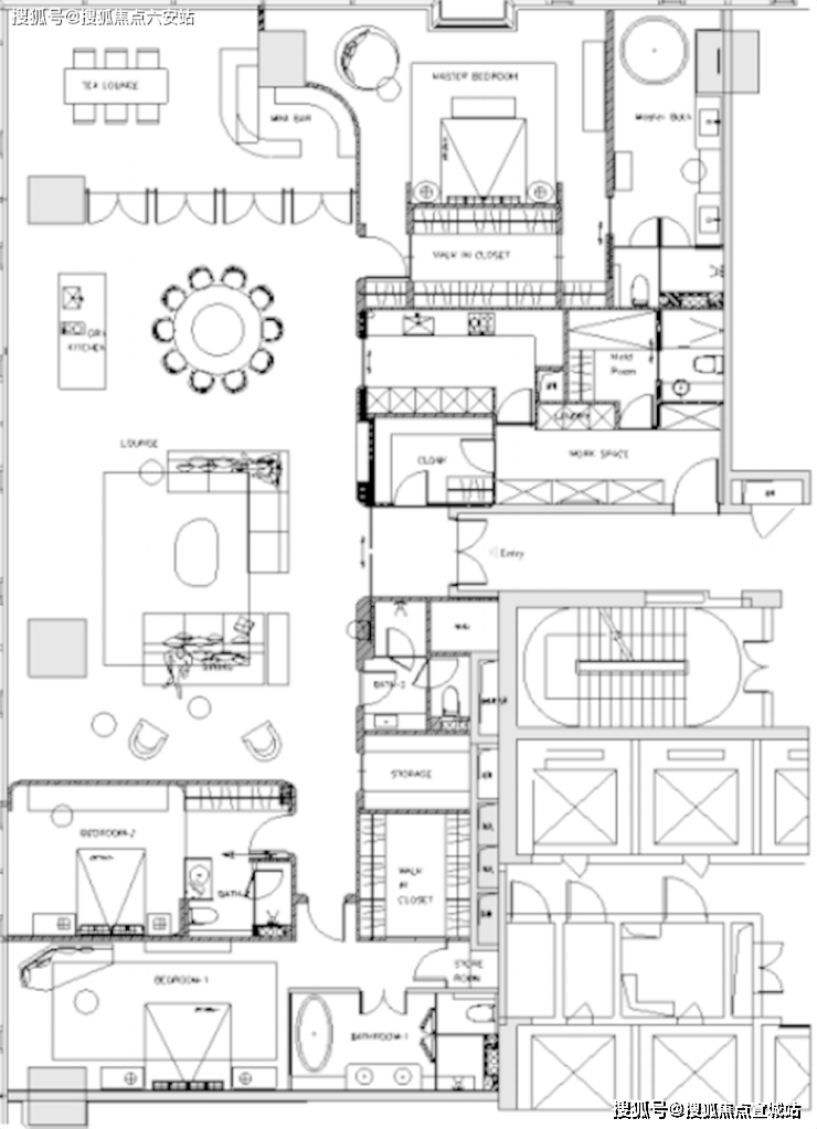
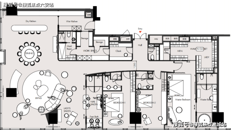
户型分布(过程稿)

编辑

杭州中心大平层售楼处电话:400-8778-334

A户型:建筑面积约510㎡

B户型:建筑面积约520㎡

C户型:建筑面积约518㎡

D户型:建筑面积约588㎡

B户型(3+1房,过程稿)

编辑

B户型客厅(效果图)

编辑

B户型餐厅(效果图)

编辑

B户型主卧卫生间(效果图)

编辑

C户型(3+1房,过程稿)

编辑

C户型餐客厅(效果图)

编辑

C户型主卧室(效果图)

编辑

D户型(3+1房,过程稿)

编辑

D户型玄关(效果图)

编辑

D户型参客厅(效果图)

编辑

D户型主卧(效果图)

编辑

杭州中心 大平层

千年武林,一座杭州中心

杭州中心大平层售楼处电话:400-8778-334【售楼处预约热线】(一对一热情服务)

编辑

杭州中心大平层官方电话:400-877-8334【官方预约☎】楼盘项目全面介绍,本电话为开发商提供线上预约售楼电话,楼盘项目全面介绍(包含楼盘简介,均价,房价,现房,期房,别墅,叠墅,大平层,价格,楼盘地址,户型图,交通规划,备案价,备案名,项目配套,样板间,开盘时间,认筹时间,楼盘详情,售楼处电话,最新消息,最新详情,周边配套,一房一价,最新进展等详情咨询)楼盘详情丨价格丨更多优惠丨机不可失丨欢迎致电丨诚邀品鉴!售楼处位置丨特价房丨工抵房丨剩余房源丨户型图丨最新消息丨(温馨提示:本项目参观样板间采取预约制,为了不耽误您的行程,过来参观请提前来电进行预约看房或咨询项目详情)如果您想了解更多楼盘详情,欢迎提前预约拨打杭州中心大平层官方售楼处电话400-8778-334(已认证√√)

📍★温馨提示:由开发商旗下销售团队全程营销策划,房源信息真实有效!部分图片素材来自网络,如有侵权请联系小编删除,感谢支持!

声明:本文由入驻焦点开放平台的作者撰写,除焦点官方账号外,观点仅代表作者本人,不代表焦点立场。