2025融创外滩壹号院二期售楼处电话→融创外滩壹号院二期售楼中心电话→楼盘详情→首页网站→楼盘百科→融创外滩壹号院二期售楼处电话→24小时热线电话

搜狐焦点宣城站 2025-10-15 10:43:42
用手机看
扫描到手机,新闻随时看

扫一扫,用手机看文章
更加方便分享给朋友

融创外滩壹号院二期共494套,面积区间为187-387平大平层,还有17套商业别墅,少量500-1000平大平层!此前售楼处电话:400/8862/334,董家渡310-01街坊住宅项目,也就是融创外滩壹号院…

融创外滩壹号院二期共494套,面积区间为187-387平大平层,还有17套商业别墅,少量500-1000平大平层!主力户型290平大平层!预计2024年入市,敬请期待

融创外滩壹号院二期

售楼处电话☎:400-8862-334【售楼处预约热线】(一对一热情服务)

楼盘项目全面介绍,本电话为开发商提供线上售楼电话400-8862-334,楼盘项目全面介绍(包含楼盘简介,房价,价格,楼盘地址,户型图,交通规划,备案价,项目配套,楼盘详情,售楼处电话,最新消息,最新详情,周边配套,最新进展等详情咨询)

看房请务必提前致电销售确认时间,只有预约客户才能享受开发商提供的内部优惠以及专属的老客户推荐奖励!

编辑

编辑

融创外滩壹号院二期效果图

融创外滩壹号院二期效果图

编辑

编辑

融创外滩壹号院二期效果图

2023年9月28日实拍售楼处电话:400/8862/334|融创外滩壹号院二期平整地基

编辑

黄埔滨江豪宅融创外滩壹号院二期售楼处电话:400/8862/334,将推建面约180-375㎡3-5房,另外还有17套商业性质别墅。目前户型图已曝光!

编辑

编辑

融创外滩壹号院二期

融创外滩壹号院二期售楼处电话:400/8862/334(销售中心)

案场限流看房请务必提前来电预约登记

编辑

编辑

编辑

融创外滩壹号院二期

融创外滩壹号院二期售楼处电话:400/8862/334(销售中心)

案场限流看房请务必提前来电预约登记

编辑

编辑

编辑

融创外滩壹号院二期

融创外滩壹号院二期售楼处电话:400/8862/334(销售中心)

案场限流看房请务必提前来电预约登记

编辑

编辑

编辑

编辑

融创外滩壹号院二期

融创外滩壹号院二期售楼处电话:400/8862/334(销售中心)

案场限流看房请务必提前来电预约登记

编辑

编辑

此前售楼处电话:400/8862/334董家渡310-01街坊住宅项目,也就是融创外滩壹号院貳期规划已公示,规划产品为高层+低密度合院别墅的组合。

项目名称:董家渡310-01街坊地块项目

编辑

项目地址:王家码头路以南、中华路以东、董家渡路以北、外仓桥街以西

规划用地性质:住宅用地

用地面积:36811.30平方米

总建筑面积:213417.09平方米

容积率:3.72

建筑高度:140.20米

编辑

实景图

融创外滩壹号院二期

融创外滩壹号院二期售楼处电话:400/8862/334(销售中心)

案场限流看房请务必提前来电预约登记

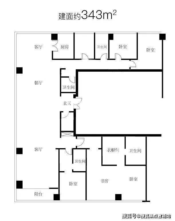
户型图如下:(仅供参考,最终以官方发布为准)

编辑

编辑

编辑

编辑

编辑

编辑

编辑

编辑

编辑

融创外滩壹号院二期

融创外滩壹号院二期售楼处电话:400/8862/334(销售中心)

案场限流看房请务必提前来电预约登记

编辑

编辑

融创外滩壹号院一期户型分布

项目售楼处电话:400/8862/334于外滩金融集聚带核心区位的董家渡金融城。按照上海“全球城市”的规划,将在外滩金融集聚带建设以互联网金融和民营金融为主体的外滩金融创新试验区,以主动服务上海国际金融中心建设。董家渡金融城规划总建筑面积约113万㎡,投资总概算超604亿元,作为外滩金融集聚带建设的压轴作品,致力于汇聚全球高端资本,建成后将与陆家嘴金融中心优势互补,共同打造上海“一城一带”的总体金融格局。董家渡金融城将在一定程度上承担了后续上海互联网金融、创新类金融模式的平台功能。与之为邻,你将见证上海新篇章,而一回眸,你也将看尽上海百年繁华。

编辑

守着那些年的上海品质,

守着那些年的上海烟火,

融创外滩壹号院二期

融创外滩壹号院二期售楼处电话:400/8862/334(销售中心)

案场限流看房请务必提前来电预约登记

静待全球城市的成长。就在融创外滩壹号院精装大平层里。

编辑

编辑

懂品质,懂你,懂生活

对于上海制造的名牌,我们是不陌生的。

融创外滩壹号院二期

融创外滩壹号院二期售楼处电话:400/8862/334(销售中心)

案场限流看房请务必提前来电预约登记

在帝都早就成为高端住宅的代名词。

编辑

宝金石外立面|实景

编辑

编辑

实景图

抑或迎面的紫铜大门,都写着对品质的执着

编辑

紫铜大门|实景

他们决心赠来者一颗“外滩绿宝石”,

融创外滩壹号院二期

融创外滩壹号院二期售楼处电话:400/8862/334(销售中心)

案场限流看房请务必提前来电预约登记

让你独享百米栋距,坐拥近4500㎡中央景观

编辑

编辑

中央进口草坪效果图

法式浪漫▽

法式浪漫

编辑

编辑

样板房实景图

融创外滩壹号院二期

融创外滩壹号院二期售楼处电话:400/8862/334(销售中心)

案场限流看房请务必提前来电预约登记

海派优雅▽

编辑

编辑

样板房实景图

编辑

编辑

样板房实景图

他们更知道,百年上海面对的是未来。

融创外滩壹号院二期

融创外滩壹号院二期售楼处电话:400/8862/334(销售中心)

案场限流看房请务必提前来电预约登记

我们不仅要回家,还要走向未来,

看这高科技感的车库,恍惚归来时已转向未来

编辑

编辑

车库效果图

仰望星空,自在遨游

泳池的效果图

他们更知道你那颗大隐隐于市的心,

家是心的港湾,但是只要走出家门,

近20000㎡定制级商业就在眼前

编辑

编辑

商业效果图

居上海,

带着这座城市无法复制的灵魂,

静候来者

项目部分户型图赏析

编辑

编辑

编辑

【融创外滩壹号院】前期装修标准也相当精彩!

厨房:整个厨房的橱柜全套选用意大利威乃达(VenetaCucine)进口橱柜。采用美诺ArtLine系14件套电器。

步入式衣帽间:选用全进口的意大利整体衣柜,玄关、餐厅、过道随处可见“大通顶储物空间”。

卫浴:德国当代、瑞士的劳芬卫浴、美国的卡德维浴缸、堪称大师卫浴艺术品的SherleWagner水晶龙头则和皇室来自同一款。

细节打造:配有全屋净水系统,包括前置净水、中央软水、末端直饮水、配备四合一新风系统,包含新风、PM2.5过滤、智能控制的自动加湿、除湿四大功能。

入户装甲门:来自意大利的Dierre迪瑞入户装甲门,具有更安全的抗暴性能。

门窗:德国旭格门窗是门窗界的“劳斯莱斯”,相比较其他系统,韧性和抗拉强度提高约40%,隔声提升近25%。

交通方面,轨交9号线小南门站仅50m,往北约2公里到延安路高架,往南约1公里到内环,复兴东路隧道、人民路隧道、-延安路隧道、南浦大桥通达浦东-轨道交通。

商业方面,百达翡丽旗舰店、CHANEL旗舰店、PRADA旗舰店、AMARNI旗舰店、D&G旗舰店、洛克﹒外滩源商业体(在建中)、国际金融服务中心(在建中)、外滩SOHO(在建中)、老码头休闲娱乐中心、新天地等。

教育方面,紫霞路幼儿园,黄浦区第一中心小学、黄浦外国语小学、复兴东路小学、格致中学、敬业中学、大同中学、市八中学、大镜中学。

医疗方面,第九人民医院、曙光医院、红房子医院、中西医结合医院、第二人民医院

融创外滩壹号院二期

售楼处电话☎:400-8862-334【售楼处预约热线】(一对一热情服务)

楼盘项目全面介绍,本电话为开发商提供线上售楼电话400-8862-334,楼盘项目全面介绍(包含楼盘简介,房价,价格,楼盘地址,户型图,交通规划,备案价,项目配套,楼盘详情,售楼处电话,最新消息,最新详情,周边配套,最新进展等详情咨询)

看房请务必提前致电销售确认时间,只有预约客户才能享受开发商提供的内部优惠以及专属的老客户推荐奖励!

声明:本文由入驻焦点开放平台的作者撰写,除焦点官方账号外,观点仅代表作者本人,不代表焦点立场。