万科朗拾湖著优缺点分析-在杭州买房为什么选万科朗拾湖著?一文全说清!
扫描到手机,新闻随时看
扫一扫,用手机看文章
更加方便分享给朋友
下沙金沙湖三房首付80万,万科品质另一个天花板,楼市焦点-万科|朗拾湖著
·万科|朗拾湖著
售楼处电话:400-9696-224(来电尊享优惠活动)
如有问题欢迎来电咨询,可约案场内部销售人员,专业一对一热情服务,让您用专业眼光去买房。
【核心卖点】
万科拾系:雅奢放松 繁华都市中的静谧
白金灯塔:金沙湖唯一在售铝板立面
高效出行:约350米举步1号线地铁口
三面环水:约200米揽金沙湖一线湖景
教育雄厚:文海湖畔学校、代建9班儿园
1KM鎏金生活圈:双天街,四大商圈环伺
售楼处电话☎:400-9696-224✔✔
看房请务必致电与销售确认时间,避免空跑
金沙湖CBD核芯:金沙湖大剧院、湖畔中心、希尔顿酒店、市民中心地标林立
一、【项目基本信息】
【开发商】万科
【占地面积】28328.3㎡
【建筑面积】98512.5㎡
【产品类型】住宅70年
【建筑层高】5幢17F、3幢25F、2幢26F,共计10幢住宅
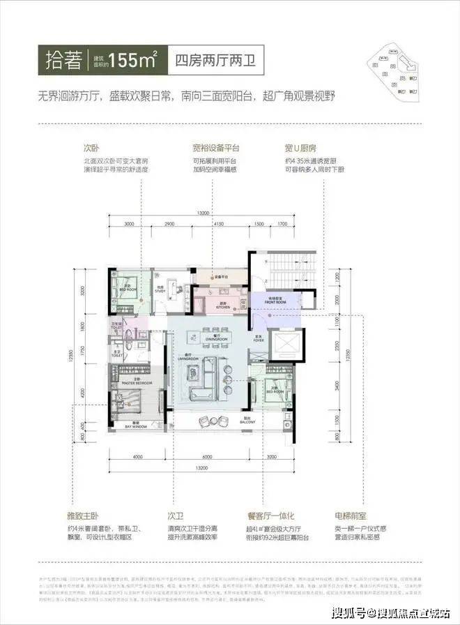
【户型面积】185㎡(71套)、155㎡(71套)139㎡(160套)、127㎡(100套)、103㎡(100套)合计502套
【项目均价】限价38300元/㎡(含4000元/㎡装标)
【容积率】2.5
【绿地率】35%
【住宅层高】3m
【交付时间】2025年11月
【物业及物业费】万科物业:4.15元/㎡
售楼处电话☎:400-9696-224✔✔
看房请务必致电与销售确认时间,避免空跑
万科朗拾湖著售楼处电话☎:400-9696-224✔✔看房请务必致电与销售确认时间,避免空跑
127方 四房二厅二卫
万科朗拾湖著售楼处电话☎:400-9696-224✔✔看房请务必致电与销售确认时间,避免空跑
106方 三房二厅二卫
四、【周边配套】
目前杭州限价4万左右板块配套最醇熟区域
万科朗拾湖著售楼处电话☎:400-9696-224✔✔看房请务必致电与销售确认时间,避免空跑
万科朗拾湖著售楼处电话☎:400-9696-224✔✔看房请务必致电与销售确认时间,避免空跑
◯临窗揽湖——270度转角阳台揽一线湖景
万科朗拾湖著售楼处电话☎:400-9696-224✔✔看房请务必致电与销售确认时间,避免空跑
◯宝门廊打造归家尊贵仪式感——发光云石+月光米黄恢弘金顶+绿野仙踪奢石
万科朗拾湖著售楼处电话☎:400-9696-224✔✔看房请务必致电与销售确认时间,避免空跑
◯环岛森屿——
落客环岛庭院,还原星级酒店度假体验
万科朗拾湖著售楼处电话☎:400-9696-224✔✔看房请务必致电与销售确认时间,避免空跑
◯水榭林间 松弛静谧流水——
还原度假诗意,营造自然森屿感
·万科|朗拾湖著
售楼处电话:400-9696-224(来电尊享优惠活动)
如有问题欢迎来电咨询,可约案场内部销售人员,专业一对一热情服务,让您用专业眼光去买房。
杭州购房落户政策
作为长江三角经济圈的重要一环,杭州不仅有着得天独厚的自然资源和优越的地理位置,更是享有着良好的生态环境和便捷的交通条件,这也是很多人想要来杭买房落户的重要因素,但“杭州买房是否可以落户”困扰着大家,下面小窝跟大家详细介绍一下2024最新购房落户政策。
2016年9月之前购买的房子且贷款已还清可直接落户,但2016年9月之后购买的房子不能直接落户,需要通过积分、技能、学历、职称等方式落户;
一、杭州购房政策
1、 限购区(西湖区、拱墅区、滨江区、上城区)
*杭州户籍可直接在限购区购买新房;
*非杭户籍需缴纳一个月社保或个税可在限购区购买新房;
2、非限购区(余杭区、萧山区、钱塘区、富阳区、临平区、临安区)
非限购区无限制条件,无论是杭州户籍还是非杭户籍均可购买新房或二手房;
二、杭州购房落户条件
(一)、买房走积分落户
1、积分落户条件
*年满18周岁;
*持有有效居住证;
*居住证积分满100分;
同时满足三条可申请积分落户,积分落户一季度申请一次,在申请落户之前需先确定落户地址;
(二)、买房走技能落户
1、技能落户条件
*申请人在杭州有房;
*在杭连续缴纳6个月以上社保;
*持有高级技工证(35周岁以下)或技师证(45周岁以下);
同时满足以上三点即可申请技能落户,符合条件可随时申请,没有时间限制,但必须要有一本技能等级证书。
(三)有房走职称落户
1、中级职称落户
*持有中级职称证书;
*年龄45周岁以下;
*在杭落实工作单位;
2、副高级职称落户
*持有副高级职称证书;
*年龄50周岁以下;
*在杭落实工作单位;
3、正高级职称落户
*持有正高级职称证书;
*年龄55周岁以下;
*在杭落实工作单位;
满足以上任意一点即可申请杭州职称落户,职称落户对房子并无要求,有房无房均可选择职称落户,无职称证书的可通过考试获取。
2024杭州购房政策已放开,购房后可通过以上方式落户也是非常便捷的,若对购房、落户依旧有问题的朋友, 可致电:400-9696-224
声明:本文由入驻焦点开放平台的作者撰写,除焦点官方账号外,观点仅代表作者本人,不代表焦点立场。
