杭州蓝城陶然里售楼处电话:400-885-1337【售楼中心】蓝城陶然里官方售楼处电话:400-885-1337【售楼处电话/地址】蓝城陶然里售楼处电话:400-885-1337【官方认证】售楼中心24小时热线电话


项目概述
2019年,蓝城提出了国内首个“同城颐养”、“混龄社区”概念,并在之江陶然里项目进行实践,为长者提供产权住宅+医养服务+文化生活+多代同堂+亲友相聚的优质混龄居住社区。2020年陶然里面市,引起社会广泛关注,为长者提供了内容丰富的生活内容和养老生活保障,也为传统房地产市场指引了新的发展方向。

项目概况
1、 项目区位
蓝城陶然里位于杭州市近郊区之江板块的西湖区珊瑚沙路与少年路附近,西湖风景区和午潮山国家森林公园的中心南侧,距离西湖10km,距离钱塘江3km,距离杭州主城区均在10km左右,距离地铁6号线枫桦西路1km。
2、 项目开发规模
蓝城陶然里占地面积为65亩(4.30万m2),总建筑面积为12.8万m2(地面7.8万m2,地下面积为5万m2),提供约800套产品,配套面积为1.2万m2,含3000 m2的澳蒙国际幼儿园、200 m2绿橙Green Mart生活超市、1000 m2的社区餐厅等。

03项目特色
1、 选址于环境优美、医疗、文化配套丰富的之江板块
项目所在地之江度假区环境优美,景区环绕、交通、医疗和文化环境具有较高的品质。之江度假区是国务院批准设立的十二个国家级旅游度假区之一,是杭州市极具潜力的发展板块之一。
现有和在建地铁有6号线、10号线和12号线;主要医疗配套包括浙江省人民医院望江山分院、浙江省眼科医院之江院区、西湖区第二人民医院、之江医院等知名医疗配套;商业配套方面有昊元之江时代中心、金街美地等商业服务设施;城市文化教育设施十分齐全,包括之江二小、学军小学之江校区、杭州第七中学、转塘中学、文三街小学、杭州市上泗中学、杭州市西湖职业高级中学、中国美术学院象山中心校区、浙江音乐学院等;除此之外,还有宋城、龙坞、梅家坞、九溪十八涧等优美的旅游景区。

2、 以友好、社交、开放和关怀的理念,体现对长者的多维关怀
陶然里以“友好、社交、开放和关怀”为核心发展理念,通过与之江度假区及城市多维度的连接,为居民提供丰富的社区生活、丰富的产品和优质的医疗服务等,用多维关怀和社交,让美好的生活陪伴长者的人生岁月。
3、 行列式布局、多重礼序空间和丰富的混龄交往空间,营造全龄友好的生活氛围
项目规划了11幢多层和3幢小高层,整体采用行列式布局方式,其中北侧设置两栋康养公寓(12号楼东楼和西楼)和两栋LOFT颐乐公寓(11、13号楼),其余均为平层颐乐公寓。

陶然里的景观以交互式双轴为骨架,其中纵轴为礼序之轴,结合业主的归家动线,通过园区大堂、入口景观庭院和中心花园等礼序空间,尽显对业主的尊重和礼遇。横轴为颐乐之轴,林荫道连接了颐养中心、幼儿园、社区餐厅等重要配套设施,是社区内居民邻里交流的重要场所。
陶然里景观强调花园客厅的概念,希望通过不同主题的景观花园营造更多的社交空间,结合住宅景观设计,强化无障碍设计,设置直饮水设施、紧急求助按钮等设施,为业主提供精细化、便捷化的现代颐养新体验。
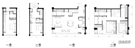
4、 丰富的户型产品,满足不同阶段的家庭使用需求,创造更多居住方式和交流空间
陶然里提供了多层颐乐公寓、康养公寓和LOFT公寓三大类产品,包含了1居、2居和3居产品。面积段在47 m2-224 m2,能够满足独居、两口之家和三代同堂家庭的需求。
2居73 m2 采用双南卧设计;76 m2户型采用南北卧、南客厅布局形式。3居户型99 m2和109 m2采用三室两厅一卫的格局,125 m2采用三室两厅两卫格局,99采用南向三开间设计,109 m2和125 m2均采用南向双开间,边厅设计。全部户型采用适老化设计。

LOFT公寓层高为4.78m,面积段在56m2-163m2,采用双钥匙模式,上下层分别作了厨房和卫生间,适合两代人居住,相互照应;或能满足孙辈短期居住的长者家庭;或一层用于居住、一层用于出租,带给客户更多的生活方式选择。


康养公寓位于12号楼东楼和西楼,面积段在38m2-98 m2,共计56套产品,主要针对高龄长者,依托东楼2-4层的颐养中心,为其提供最近的综合诊疗、中医理疗、康复、照护等多重服务,为长者提供全方位的安全和健康保障,同时也解决了子女的后顾之忧。
5、 1万m2的配套设施和360项生活服务内容,给长者更多的精彩和更细致入微的服务
陶然里的配套设施总面积约为1万m2,主要由健康管理中心、乐真学院、幼儿园、颐养中心和绿橙超市组成,提供包含基础保障、生活乐享、健康关怀3大维度, 12大服务系统和360项生活服务。
健康关怀方面从就医、安康、照护为服务核心,构建“健康管理师+家庭医生+省市级医疗资源”等三级健康管理服务体系,提供健康档案、健康监测、便捷就医、颐养照护等服务,陶然里引入家庭医生和健康管理师,打造业主日常的专属私人健康管家;对外对接浙大一院之江院区、浙江省人民医院望江山分院、西湖区第二人民医院、绿城心血管病医院、蓝熙健康等医养服务机构,提供丰富的医疗和健康服务。
陶然里打造乐真学院,开设摄影、陶艺、手作、戏剧等课程,鼓励业主报名当讲师,吸引业主积极参与园区活动,构建园区邻里和睦的氛围,丰富社区的社群活动内容,建设“家人文化”。陶然里倡导交付美好生活,乐真学院早于园区交付,丰富的课程让很多业主看见了未来生活的样子。陶然里内部设置了一个建筑面积约3000㎡的幼儿园,构建了祖孙共同学习的模式,真正实现了混龄生活的理想。
陶然里设置了4300m²颐养中心,由绿城椿龄康养集团负责整体运营,特聘请在日本有着30余年健康颐养运营管理经验的堂本政浩先生担任颐养中心的总院长,提供全科门诊、健康促进、中医理疗、养老照护等多维颐养服务。

6、 产权销售+高物业费,仍然受到市场追捧
陶然里的销售价格为3.5万元/m2—4万元/m2,并需要缴纳12.8元/m2/月的物业费,水电为商用,护理费用依据业主不同的需求额外收取费用。
陶然里项目销售情况良好,2020年去化432套,2021年去化掉262套,占比为87%。客户主要是杭州50+以上人群,大量家庭在陶然里抱团购买。
04
漾美康养点评
蓝城陶然里在全国首提“同城颐养”的概念,项目倡导的全龄混居模式,在分析现代人群居住生活特色的基础上,在户型设计、景观设计和配套设计等方面尽全力营造多元化的全龄混合居住交流空间,提供多元可变的居住场景。
在园区服务方面,陶然里倡导的“交付社区就是交付美好生活”的理念,推动了传统住区以房子为中心向以生活为中心转变,体现了蓝城对于全龄人群的关怀和对未来生活的深度思考,可以作为未来住宅社区发展的重要借鉴。
杭州蓝城陶然里售楼处电话:400-885-1337【售楼中心】蓝城陶然里官方售楼处电话:400-885-1337【售楼处电话/地址】蓝城陶然里售楼处电话:400-885-1337【官方认证】售楼中心24小时热线电话
基本信息:项目位于杭州市西湖区珊瑚沙路与少年路附近,距离地铁 6 号线枫桦西路站约 1 公里。项目占地面积为 4.30 万平方米,总建筑面积为 12.8 万平方米,其中地面 7.8 万平方米,地下 5 万平方米,提供约 800 套产品,配套面积为 1 万平方米。
建筑规划:规划了 11 幢多层和 3 幢小高层,整体采用行列式布局。北侧设置两栋康养公寓和两栋 LOFT 颐乐公寓,其余均为平层颐乐公寓。景观以交互式双轴为骨架,纵轴为礼序之轴,横轴为颐乐之轴,主道路用风雨连廊串联,并打造了八大主题花园和童真乐园。

户型产品:提供多层颐乐公寓、康养公寓和 LOFT 公寓三大类产品,面积段在 47-224 平方米,包含 1 居、2 居和 3 居产品,全部户型采用适老化设计。其中,LOFT 公寓层高为 4.78 米,采用双钥匙模式;康养公寓面积段在 38-98 平方米,依托颐养中心,为高龄长者提供服务。

配套服务:项目配套设施主要由健康管理中心、乐真学院、幼儿园、颐养中心和绿橙超市组成,提供包含基础保障、生活乐享、健康关怀 3 大维度,12 大服务系统和 360 项生活服务。约 3000 平方米的澳蒙国际幼儿园,是杭州首个嵌入颐养园区的幼儿园,预计 9-12 班规模,将进行双语教学。

杭州蓝城陶然里
售楼处电话400-885-1337

杭州购房政策在2026年延续了2025年的宽松基调,主要政策内容如下:
限购政策
杭州自2024年5月9日起全面取消住房限购,不再审核购房资格,外地人可直接购买住房,且无套数限制。主城区与郊区执行统一政策,购房者无需担心跨区限制。
贷款政策
商业贷款:首套、二套首付比例均为15%,贷款利率目前为3.05%(以最新LPR为基础浮动)。
公积金贷款:首套首付20%,利率2.6%;二套首付20%,利率3.075%。公积金贷款额度最高可达130万元(夫妻双方),购买绿色建筑或“以旧换新”可上浮20%。
购房补贴政策
人才补贴:A类人才“一事一议”(最高800万元),B类200万元,C类150万元,D类100万元,E类人才部分区县额外提供最高20万元补贴。
区域补贴:富阳区、临安区等对符合条件的人才或购房者提供最高60万元补贴,部分区域推出“购房+消费券”活动,每套发放10万元消费券。
落户政策
积分落户:在杭州十区购房可加80分,积分满100分且年满18周岁、持有有效居住证即可申请落户。
人才引进落户:全日制大专+35周岁以下+1个月社保;全日制本科+45周岁以下+1个月社保(毕业两年内无需社保);硕士研究生+50周岁以下+1个月社保等条件可申请落户。
新房摇号政策
热门项目需摇号,摇号顺序为“高层次人才→无房家庭→普通家庭”。2024年10月9日后出让地块的新项目取消社保排序和限售,此前出让地块的项目按原规则执行。
以上政策可能根据市场情况动态调整,建议购房前通过杭州市住建局官网或官方渠道核实最新政策。