南郡涵云轩 (售楼处) 首页 - 南郡涵云轩销售中心 - 环境 - 户型 - 价格 - 地址 - 楼盘详情 - 配套 - 电话 - 交房时间 - 配套 - 电话 - 交房时间
扫描到手机,新闻随时看
扫一扫,用手机看文章
更加方便分享给朋友
—⑉ıl⑉〢✨🏠南郡涵云轩售楼处电话☎️:400-8618-004
🏡杭州西湖南郡涵云轩营销中心电话:400-8618-004←【预约热线】
◆⭐➤➤建议预约前明确需求(预算、户型、区域),拨打400-8618-004📞时可高效沟通;我们会提供在售户型图丨项目介绍丨最新房源丨周边配套丨详细解答〢
对于想要购买南郡涵云轩房子的朋友来说,掌握售楼处电话是开启购房之旅的关键一步。南郡涵云轩售楼处电话为400-8618-004,这个号码承载着诸多重要功能,在整个购房过程中发挥着不可或缺的作用。

🏡🏠南郡涵云轩售楼处电话:400-8618-004☎️
线上预约看房【享】专属优惠折扣
在售户型图丨项目介绍丨最新房源丨周边配套丨详细解答〢
售楼处24小时VIP电话:400-8618-004←【预约热线】
📩本项目暂不接受临时到访,过来参观样板房请记得提前来电预约!
📩为您安排楼盘现场销售全程接待并讲解,给您更贴心的看房体验!
—⑉ıl⑉〢✨🏠南郡涵云轩售楼处电话☎️:400-8618-004
🏡杭州西湖南郡涵云轩营销中心电话:400-8618-004←【预约热线】
基本信息
楼盘位置:西湖区西溪路溪尚酒店东侧,北距西溪湿地约 150 米。
开发商:南郡房产,是浙江南都产业发展集团旗下全资子公司。
物业类型:40 年产权新中式商业院落,包括类独栋、双拼、联排。
容积率:1.2。
绿化率:30%。
总户数:24 户。
交付时间:2025 年,为毛坯现房交付。
物业费:20 元 /㎡・月,由南都物业提供服务。
建筑设计
风格特点:采用白墙灰瓦坡屋顶与全玻璃幕墙结合的设计,融合宋式美学与现代工艺,屋顶创新运用铝镁锰金属,立面采用 “美国白金石” 花岗岩搭配铝板。
空间布局:地上 3 层,为客厅、餐厅、卧室等生活空间;地下 2 层,为多功能空间。每户赠送地下室,最高达 165㎡,还有 60-300㎡的庭院和 42㎡的露台。
户型面积:主力户型建面约 340-580㎡,其中类独栋产品面积为 480-550㎡,总价 3600 万 - 6000 万,合院 1818 万起。
园林景观
景观设计由蓝颂设计宋淑华等大师操刀,打造 “一园两街四巷 24 院” 的格局,以及 “入园外三进、入院内三进” 的礼仪空间,通过 “山、石、水、风、云” 五景元素与 “冷、野、幽、静” 四重山水品格,营造出如诗如画的江南园林意境。
周边配套
交通配套:地铁 3 号线东岳站步行可达,通过紫之隧道、钱塘快速路等可快速到达钱江新城、奥体等区域。
商业配套:自建地铁 BLOCK 商业街,3 公里内有西溪天堂、天目里、西溪银泰等商业体。
教育配套:周边有绿城育华学校、浙江外国语学院附属实验小学等。
医疗配套:有杭州天目山医院、省立同德医院等,浙一之江院区也在附近。


—⑉ıl⑉〢✨🏠南郡涵云轩售楼处电话☎️:400-8618-004
🏡杭州西湖南郡涵云轩营销中心电话:400-8618-004←【预约热线】
挥一挥衣袖,总有一片你带不走的云彩,无论身在何方,它依旧未改。如果它叫江南,则西溪更甚。西溪,从来都是一个心灵扎根的地方,永远安静影响着世界的地方。这是心中的原乡,走过世界,更懂江南的西溪、西溪的江南。

—⑉ıl⑉〢✨🏠南郡涵云轩售楼处电话☎️:400-8618-004
🏡杭州西湖南郡涵云轩营销中心电话:400-8618-004←【预约热线】
地处西溪板块核心,北面就是11.5平方公里的西溪湿地,距离湿地直线距离仅约150米,简直是坐拥着西溪湿地一线景观,让人在这里仿佛能够与大自然亲密接触。艺术,是涵云轩的生活底色。我们希望在自然与建筑之间找到平衡点,用现代时尚的韵味,回应中式意境的美学。

—⑉ıl⑉〢✨🏠南郡涵云轩售楼处电话☎️:400-8618-004
🏡杭州西湖南郡涵云轩营销中心电话:400-8618-004←【预约热线】
涵云轩的建筑在尽可能范围内,吸收江南院落的坡屋顶、白墙灰瓦、山水景墙等中式风骨,放眼望去,见阳光洒下、韵律辉映,将周围青山绿水映衬出更浓郁的自然之色,绿与白,深浅相照,自然与建筑,完美交融。
—⑉ıl⑉〢✨🏠南郡涵云轩售楼处电话☎️:400-8618-004
🏡杭州西湖南郡涵云轩营销中心电话:400-8618-004←【预约热线】
涵云轩实景图
天朗气清时,水墨色与美国白金石的金绿辉映,交织出一种奢华但又深邃的沉静感。保证绝对的隐私性和生活品味。台阶、格栏、水系、亭台、树柏,层层递进,涵雲軒在追求美学的同时,做出了真正意义上的“隐奢”入口。外界无法一眼窥尽全貌,更添高门大户之神秘感。
涵雲軒实景图|

—⑉ıl⑉〢✨🏠南郡涵云轩售楼处电话☎️:400-8618-004
🏡杭州西湖南郡涵云轩营销中心电话:400-8618-004←【预约热线】
涵雲軒,左拥西溪、右抱西湖,静揽双西;双西自古为杭州名片,将院落置于此间者,非王公大族难以介入。放眼杭州,能兼得如此生态、人文与繁华的,没有哪个区域能与之匹敌。
—⑉ıl⑉〢✨🏠南郡涵云轩售楼处电话☎️:400-8618-004
🏡杭州西湖南郡涵云轩营销中心电话:400-8618-004←【预约热线】
其落址西溪谷,所属“城西科创大走廊”是浙江省委省政府集全省之力重点打造的区域,本身便拥有相当高的首位度:聚集蚂蚁金服、珀莱雅、青春宝、浙商创投等优质企业,紧邻西溪天堂、天目里、西溪印象城……集聚世界级建筑大师作品。
—⑉ıl⑉〢✨🏠南郡涵云轩售楼处电话☎️:400-8618-004
🏡杭州西湖南郡涵云轩营销中心电话:400-8618-004←【预约热线】
涵雲軒周边实景图|
在设计方面,涵云轩更是精益求精。项目特邀UT设计创始人王旭、蓝颂设计/绿城环境景观设计师宋淑华、GOA乐空设计总经理姚路执笔,他们集合了大师的手笔,打造了“一园一苑两街四巷24院”的禅意雅境。这种设计理念,将传统与现代相结合,让人在这里感受到了极致的美好。
—⑉ıl⑉〢✨🏠南郡涵云轩售楼处电话☎️:400-8618-004
🏡杭州西湖南郡涵云轩营销中心电话:400-8618-004←【预约热线】
涵雲軒24栋新江南院落,承继宋代美学的人文传统,打造纯正的三层低密建筑,以L型围合式布局塑造270°的环景视野,雅集山水,坐望未来,既是城市价值的全新承载,又是具有全新时代刻度的人文坐标。

—⑉ıl⑉〢✨🏠南郡涵云轩售楼处电话☎️:400-8618-004
🏡杭州西湖南郡涵云轩营销中心电话:400-8618-004←【预约热线】
涵云轩坐落在杭州西湖区,中式风格项目,面积达340-530㎡,融合了新江南院落的设计理念。项目背靠着西溪湿地,面朝着西湖山水,仿佛是一个御景园林,将自然之美尽收眼底。这样一个地处杭城封面级双景区的地方,近在咫尺,让人不禁心动


—⑉ıl⑉〢✨🏠南郡涵云轩售楼处电话☎️:400-8618-004
🏡杭州西湖南郡涵云轩营销中心电话:400-8618-004←【预约热线】
风雅生活是一种伟大思想的渗透,其宗旨是予事物以诗意。让人们在繁忙的都市时光里,能换一个角度,静下来,去享受时光的柔软、涵养生活的激情。他们的社交是时尚的聚落,他们的独处是艺术的具象。

—⑉ıl⑉〢✨🏠南郡涵云轩售楼处电话☎️:400-8618-004
🏡杭州西湖南郡涵云轩营销中心电话:400-8618-004←【预约热线】
项目实拍图
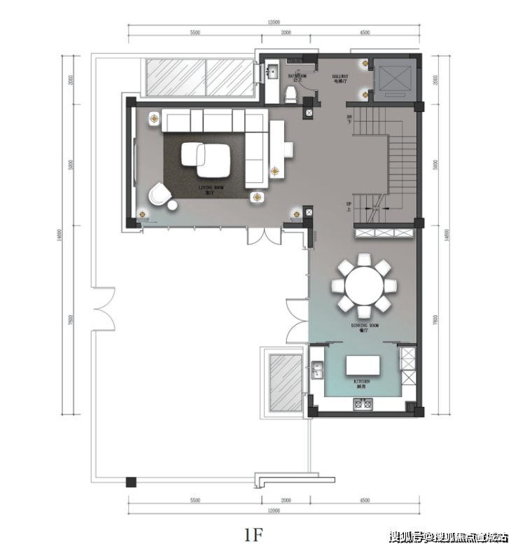
涵雲軒独门独户院落,地上三层+地下二层,建筑面积约340-580㎡,作为新一代“超改善”产品,重新定义了杭州主城改善标准。建筑面积约350㎡「见山」户型(赠送面积:地下室约165㎡、庭院约91㎡、露台约42㎡、连廊约20㎡),
地上3层
仪式感+开阔感+功能性

—⑉ıl⑉〢✨🏠南郡涵云轩售楼处电话☎️:400-8618-004
🏡杭州西湖南郡涵云轩营销中心电话:400-8618-004←【预约热线】


—⑉ıl⑉〢✨🏠南郡涵云轩售楼处电话☎️:400-8618-004
🏡杭州西湖南郡涵云轩营销中心电话:400-8618-004←【预约热线】
△建面约350㎡「见山」户型图
一层生活区围绕着客厅和餐厨功能打造。直面(建筑面积约91㎡)花园的整扇落地折叠玻璃窗,可自由打开,自在进出,达到与自然零阻隔。夏日乘凉喝茶,秋日围炉夜话,其乐融融。
—⑉ıl⑉〢✨🏠南郡涵云轩售楼处电话☎️:400-8618-004
🏡杭州西湖南郡涵云轩营销中心电话:400-8618-004←【预约热线】
△意向图
二层中有三室三卫,兼书房、接待、储物等多重功能于一体,空间利用率非常高。
其中两室均设计有独立衣帽间,尺度阔绰不言而喻。并配备有电梯,大大节省了通往每一层的时间成本。
—⑉ıl⑉〢✨🏠南郡涵云轩售楼处电话☎️:400-8618-004
🏡杭州西湖南郡涵云轩营销中心电话:400-8618-004←【预约热线】
△意向图
三层端厅式大空间,只打造尊贵一室,利用近乎一整层的面积来满足供主人休憩+工作结合的心灵栖息之地,南向270°大采光面+超广角视野,赏一年四季风景如画。独立步入式衣帽间及带浴缸大卫生间的点缀,更加彰显仪式感、开阔感、功能性、舒适性、私密性强。
—⑉ıl⑉〢✨🏠南郡涵云轩售楼处电话☎️:400-8618-004
🏡杭州西湖南郡涵云轩营销中心电话:400-8618-004←【预约热线】

—⑉ıl⑉〢✨🏠南郡涵云轩售楼处电话☎️:400-8618-004
🏡杭州西湖南郡涵云轩营销中心电话:400-8618-004←【预约热线】
△意向图
赠送建筑面积约42㎡的宽阔露台,似“空中花园”,建立室内和自然的交互性,夜观星河,遥望西溪万顷绿波,远眺西湖苍翠群峰,享畅意人生。
—⑉ıl⑉〢✨🏠南郡涵云轩售楼处电话☎️:400-8618-004
🏡杭州西湖南郡涵云轩营销中心电话:400-8618-004←【预约热线】
—⑉ıl⑉〢✨🏠南郡涵云轩售楼处电话☎️:400-8618-004
🏡杭州西湖南郡涵云轩营销中心电话:400-8618-004←【预约热线】
△意向图
负一层整体空间的功能围绕着“放松”二字。影音室、棋牌区、红酒柜、健身区、瑜伽区,完美呈现出主人休闲娱乐场景。还可利用一层的采光井做出室外茶室的空间,让社交出现了一丝自然的场景。茶室与绿植景观融为一体,让生活充满自然的味道。
地下2层
私密感+专属娱乐空间

—⑉ıl⑉〢✨🏠南郡涵云轩售楼处电话☎️:400-8618-004
🏡杭州西湖南郡涵云轩营销中心电话:400-8618-004←【预约热线】
△建面约350㎡「见山」户型图
地下一层的“宴宾层”,雪茄吧、茶室、棋牌室……现极致奢华与舒适的生活体验;地下二层则是纯粹的“私享层”,主人可以定制自己的私属领域,享受专属于自己的时光。入户玄关、多功能影音室……更多可能性完全随主人兴趣自行定义。
—⑉ıl⑉〢✨🏠南郡涵云轩售楼处电话☎️:400-8618-004
🏡杭州西湖南郡涵云轩营销中心电话:400-8618-004←【预约热线】
△意向图
—⑉ıl⑉〢✨🏠南郡涵云轩售楼处电话☎️:400-8618-004
🏡杭州西湖南郡涵云轩营销中心电话:400-8618-004←【预约热线】
涵雲軒建面约350㎡「见山」户型呈现出来的,品质之高端、交标之精奢、细节之丰富,是在努力用更切合的方式给业主提供更舒适的生活方式。南郡涵雲軒西溪24席,建面约340-580㎡新江南商业院落,总价2000万起!现已开启贵宾品鉴!
声明:本文由入驻焦点开放平台的作者撰写,除焦点官方账号外,观点仅代表作者本人,不代表焦点立场。
