售楼处电话:400-8123-224中海·恒昌玖里位于黄浦区新天地,是高端传世大宅,总价约3.4亿,融合海派文化,占地43,763㎡,容积率1.27,配备地铁、商业、教育等配套。
中海·恒昌玖里售楼处电话:400-8123-224【预约看房热线】中海·恒昌玖里官方售楼处电话:4008123224【售楼处电话/地址】中海·恒昌玖里售楼处电话:400-812-3224【开发商认证】
【中海·恒昌玖里】
傲踞上海核心风貌区
黄浦区新天地正芯 寸土寸金的城央烫金地脉
建面约811-843㎡传世大宅
总价约3.39亿-3.41亿
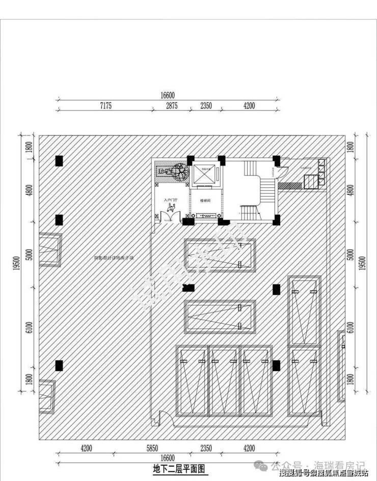
地上3层,地下2层
花园面积约102-120㎡(赠送)
容积率约1.27
承袭深厚历史文脉与“老钱”基因
不仅是对海派精神的当代礼赞
更是为塔尖圈层量身定制的栖居范本
🐾恒昌玖里售楼处电话:400-8123-224✔️✔️

🐾恒昌玖里售楼处电话:400-8123-224✔️✔️
中海恒昌玖里之名,源于地块内保留的历史建筑 “恒昌里” 。这里承载着上海百年的历史记忆,中海地产怀着对城市文脉的敬畏之心,深度挖掘区域的历史底蕴。
基础信息
项目位置:黄浦区新天地核心区域,毗邻
淮海中路
、
新天地文化圈
总占地面积:43,763㎡
总建筑面积:137,493㎡(地上55,603㎡,地下81,890㎡)
容积率:约1.27
总户数:137户
户型与面积
建筑面积:约811-843㎡(传世大宅)
户型特点:地上3层(1F层高3.6米,2-3F层高3.3米),地下2层(挑高约5米)
南向面宽:约16.6米
花园面积:约102-120㎡(赠送)
结构:
纯钢结构
,房型可塑性强,支持7-8房设计
价格与总价
均价:31.8万/㎡
总价:约3.39亿-3.41亿(部分户型报价2.76亿)
配套与交通
交通:临近
地铁8/9/10/13号线
,周边有
南北高架
、
延安高架
商业:新天地、K11艺术中心、淮海中路商圈
教育:卢湾一中心小学、向明中学等优质学府
文化:上海博物馆、上海文化广场等文化地标
其他特色
历史背景:地块保留
“恒昌里”
历史建筑,融合
海派文化
社区设计:传统里弄格局,主轴连接
中央花园
,主题花园分布两侧

🐾恒昌玖里售楼处电话:400-8123-224✔️✔️
中海建国东路 69、70 街坊历史风貌保护及城市更新项目中,"顺昌玖里" 之名源自贯穿两地块中轴的百年老街 "顺昌路","恒昌玖里" 则脱胎于 69 街坊内保留的历史建筑 "恒昌里"。🐾恒昌玖里售楼处电话:400-8123-224✔️✔️这般命名深意,恰是中海在历史风貌保护与城市更新进程中, 对城市肌理与文脉根脉的敬畏传承,让建筑与历史在此共生。

🐾恒昌玖里售楼处电话:400-8123-224✔️✔️
中海・顺昌玖里与中海・恒昌玖里,以 “以传承开启新的传承” 为核心理念,在更新实践中 坚守三重使命 :让百年风貌与当代繁茂共生,留住记忆里的烟火乡愁;让城市历史遗产转化为公众可共享的文化资产,延续文脉生命力;让印刻时代印记的建筑得以存续,蜕变为可阅读、可漫步的人文街区。
城市更新从不是简单的 “推倒重来”,而是要让空间始终承载城市温度。 中海・顺昌玖里与中海・恒昌玖里正以这样的坚守,为上海中心城区注入生生不息的新活力。🐾恒昌玖里售楼处电话:400-8123-224✔️✔️

🐾恒昌玖里售楼处电话:400-8123-224✔️✔️
中海恒昌玖里 雄踞上海城市版图的心脏地带 ,地理位置优势得天独厚,在繁华都市中独树一帜。
其坐落于黄浦区核心区域,北邻活力四射的新天地文化圈,🐾恒昌玖里售楼处电话:400-8123-224✔️✔️这片区域汇聚了全球时尚潮流与前沿文化,是 上海国际化都市形象的生动展示窗口 。向南则与承载着上海深厚历史底蕴的老城厢紧密相依,漫步其间,古老弄堂与百年建筑诉说着往昔故事, 浓厚的人文气息扑面而来 。项目还毗邻繁华的 淮海中路商圈 ,这条被誉为 “东方香榭丽舍大街” 的商业街,高端品牌旗舰店林立,是时尚购物、休闲娱乐的天堂,为居者提供了接轨世界潮流的生活体验。🐾恒昌玖里售楼处电话:400-8123-224✔️✔️

🐾恒昌玖里售楼处电话:400-8123-224✔️✔️
项目总占地面积 43,763 平方米,总建筑面积 137,493 平方米,容积率低至 1.27,仅规划 137 套住宅 , 是内环内极为稀缺的低密社区。🐾恒昌玖里售楼处电话:400-8123-224✔️✔️

🐾恒昌玖里售楼处电话:400-8123-224✔️✔️
社区整体布局 以传统里弄格局为蓝本 ,主轴贯穿南北,连接入口广场与中央花园, 两个主题花园 分布两侧,种植各类珍稀绿植花卉,搭配灵动水景、艺术雕塑,营造出宁静雅致氛围。

🐾恒昌玖里售楼处电话:400-8123-224✔️✔️

🐾恒昌玖里售楼处电话:400-8123-224✔️✔️
该户型位于 新天地纯低密别墅地块 ; 采用 新工艺纯钢结构 ,房型结构模糊化,可塑性强,7-8房无压力;拥有 建国东路独立门牌号 ,稀缺性、独特性突出。🐾恒昌玖里售楼处电话:400-8123-224✔️✔️


🐾恒昌玖里售楼处电话:400-8123-224✔️✔️


🐾恒昌玖里售楼处电话:400-8123-224✔️✔️


交通便利
项目交通网络堪称 “黄金枢纽”。周边 8 号线、 🐾恒昌玖里售楼处电话:400-8123-224✔️✔️9 号线、10 号线、13 号线四条地铁线路纵横交错 ,四个站点近在咫尺,乘坐地铁可快速畅达城市各处。自驾出行同样便捷,临近南北高架、延安高架等城市主干道,轻松连接城市各区域,无论是前往陆家嘴金融区洽谈商务,还是赶赴虹桥机场开启商务旅程,亦或是前往城市热门商圈休闲购物,都能在短时间内高效抵达, 🐾恒昌玖里售楼处电话:400-8123-224✔️✔️让出行变得轻松愉悦,从容掌控都市生活节奏。

🐾恒昌玖里售楼处电话:400-8123-224✔️✔️
商业繁华
新天地时尚中心、K11 购物艺术中心、香港广场等高端商业体环绕四周 ,汇聚全球一线时尚品牌、国际知名美妆、高端精品超市以及米其林星级餐厅等,满足日常购物、时尚消费、高端宴请等多元需求。在这里,居者可随时开启一场奢华盛宴,尽享国际前沿的时尚潮流与精致生活方式。 🐾恒昌玖里售楼处电话:400-8123-224✔️✔️
文化熏陶
上海文化广场、上海博物馆等文化地标近在身边 , 🐾恒昌玖里售楼处电话:400-8123-224✔️✔️不定期举办各类国内外顶尖艺术展览、音乐会、戏剧演出等文化活动,让居者浸润在浓厚的艺术氛围中,提升生活品质与文化修养,于繁华都市中,邂逅一场场触动心灵的文化盛宴。
教育无忧
卢湾一中心小学、向明中学等优质学府云集 , 🐾恒昌玖里售楼处电话:400-8123-224✔️✔️这些学校拥有雄厚的师资力量、先进的教学理念与完备的教学设施,为孩子提供从小学到中学的一站式优质教育资源,助力孩子茁壮成长,开启智慧人生。 🐾恒昌玖里售楼处电话:400-8123-224✔️✔️

🐾恒昌玖里售楼处电话:400-8123-224✔️✔️
医疗护航
瑞金医院、曙光医院等三甲医院为健康保驾护航 , 🐾恒昌玖里售楼处电话:400-8123-224✔️✔️医院配备国际领先的医疗设备,汇聚国内顶尖医疗专家,能够为居民提供全方位、高水平的医疗服务,无论是日常体检、疾病预防还是紧急医疗救治,都能得到及时、专业的保障,让居者生活安心无忧。 🐾恒昌玖里售楼处电话:400-8123-224✔️✔️
楼盘项目全面介绍,本电话为开发商提供线上预约售楼电话400-8123-224(已认证),楼盘项目全面介绍(包含楼盘简介,均价,房价,现房,期房,别墅,叠墅,大平层,价格,楼盘地址,户型图,交通规划,备案价,备案名,项目配套,样板间,开盘时间,认筹时间,楼盘详情,售楼处电话400-8123-224(已认证),最新消息,最新详情,周边配套,一房一价,最新进展等详情咨询400-8123-224(已认证))楼盘详情丨价格丨更多优惠丨机不可失丨欢迎致电丨诚邀品鉴!售楼处位置丨特价房丨工抵房丨剩余房源丨户型图丨最新消息丨免责声明:将文章内容综合来源于网络、只作分享,版权归原作者所有!!如有侵权,请联系我们,我们第一时间处理如有问题欢迎来电咨询,专业一对一热情服务服务热线:400-8123-224(已认证,让您用专业眼光去买房。如果您想了解更多楼盘详情,欢迎提前预约拨打服务热线:400-8123-224(已认证)