中環置地中心望雲售楼处发布(中環置地中心望雲)-2025中環置地中心望雲首页网站-楼盘详情/价格/户型

搜狐焦点宣城站 2025-09-02 10:30:18
用手机看
扫描到手机,新闻随时看

扫一扫,用手机看文章
更加方便分享给朋友

中環置地中心望雲售楼处电话:400-8618-004【预约热线】中環置地中心望雲以高端设计和极致景观,打造上海楼市标杆项目,售楼处电话400-8618-004。

中環置地中心望雲售楼处电话:400-8618-004【预约热线】

上海宝山中環置地中心望雲营销中心热线:400-8618-004

如有问题欢迎来电咨询,专业一对一热情服务,让您用专业眼光去买房。想了解中環置地中心望雲更多信息?拨打售楼处营销中心热线:400-8618-004(中介勿扰)【24小时热线】

「中環置地中心望雲」

中环之上双轨交

万象汇TOD综合体

加推建面约108-133㎡3-4房

望雲楼尊9#建面约188㎡

项目基本信息

上半年的上海楼市,有这样一个“神盘”,六开六捷,同时以住宅套数销售TOP1、销售面积TOP2的断层级领先优势,问鼎楼市天花板!

去年10月25日,上海第六批次土拍,华润置地以46亿总价拿下宝山南大W12-1301单元32-04、11-01地块,打造润府二期!

效果图展示,实际以交付为准

迭代到二期,中環置地中心·望雲的审美又得到了再度突破和提升。

据悉将融入“华润·D-MONDE”的设计理念,呈现“秩序”和“经典”的建筑灵感,以框架感、构成感、群落感形成独特的城市天际线,为中环呈鉴极具美感的城市封面;融合“经典、华丽、松弛”的设计风格,借鉴新加坡高端住宅景观理念,引入度假式生活体验,实现建筑、生活和自然三者和谐共存。

效果图展示,实际以交付为准

中環置地中心望雲售楼处营销中心:400-8618-004中環置地中心望雲售楼处电话/地址☎:400-8618-004(开发商热线)

项目本次的边套设计了大量的飘窗、转角飘窗、主卧270度落地窗等设计,所以整个立面运用了大量的玻璃,构建出了非常极致的窗墙比。

单看华润置地给出的资料和由GAD设计的外立面效果图,可以看到,是铜色铝板搭配浅白色陶瓷板,和超大比例类似玫瑰金色系的玻璃幕墙,这种海派雅奢的腔调和质感,一下就拿捏住上海人的心巴。

效果图展示,实际以交付为准

效果图展示,实际以交付为准景观方面,

景观:城市中央的国际海派社区,归家即是度假!

项目由翊象设计主创设计团队操刀设计。

中環置地中心望雲售楼处营销中心:400-8618-004中環置地中心望雲售楼处电话/地址☎:400-8618-004(开发商热线)

整个社区以主景花园联动自然教室、休闲交谊与艺术空间,形成婉转游园的酒店式迎宾水院。

效果图仅供参考,具体以实际交付为准

效果图仅供参考,具体以实际交付为准

同时,以超奢戏水池与尊享休闲会所为核心,联动架空层,串联休憩廊架与横向端景,打造核心奢享场景。

效果图仅供参考,具体以实际交付为准

中環置地中心望雲售楼处营销中心:400-8618-004中環置地中心望雲售楼处电话/地址☎:400-8618-004(开发商热线)

另外,整个项目拥有包括泛会所(戏水池、健身场所)、场景化网红架空层泛会所等全维社交场景。

效果图仅供参考,具体以实际交付为准

该宗地块与华润置地中心润府相邻,将打造全新万象汇TOD综合体——中環置地中心·望雲

32-04地块,规划8幢住宅,总高8-26F,可售套数约580套左右。

中環置地中心望雲售楼处营销中心:400-8618-004中環置地中心望雲售楼处电话/地址☎:400-8618-004(开发商热线)

2#、7#、8#有连廊,其中2#预估是3梯5户,7#、8#是3梯6户。其余楼栋无连廊,1梯2户;

5#、6#总高8层,无架空层,其余楼栋1层均有架空;9#、10#总高17F,其余楼栋总高22-26F;

该地块无保障房,地面无车位,人车分流。

11-01地块是商业、住宅混合地块。

规划3栋总高17-29层住宅,商业部分有2栋总高30F的酒店、23F的综合楼、以及2栋3F的商业;

住宅和商业部分通过公共通道分隔;

住宅部分人车分流,无地面车位。车行入口在西侧祁健路上。

中環置地中心望雲售楼处营销中心:400-8618-004中環置地中心望雲售楼处电话/地址☎:400-8618-004(开发商热线)

「丰翔路站TOD!北上海商业旗舰曝光」

项目推售详情

据悉,中環置地中心·望雲将加推约108-188㎡3-4房,本次首开4号楼,户型建面约108-133㎡3-4房,望雲楼尊9#建面约188㎡,即将点燃南大!现望雲实景示范区-雲境美学生活馆已全城开放,恭迎品鉴。

中環置地中心望雲售楼处营销中心:400-8618-004中環置地中心望雲售楼处电话/地址☎:400-8618-004(开发商热线)

产品方面,相比一期润府,望雲的户型设计可谓一脉相承,切中购房者“痛点”;在室内装修上的品质呈现,其审美也得到了进一步提升。

加推房源全套户型图如下:

108㎡的入门级三房,起步门槛相比润府提高不少。

这个户型,入户玄关收纳、双开间的阳台、宽大的U型厨房,和套房主卧带步入式衣帽间+全景式飘窗,是比较突出的亮点;

中環置地中心望雲售楼处营销中心:400-8618-004中環置地中心望雲售楼处电话/地址☎:400-8618-004(开发商热线)

中环置地中心望云约108㎡3房样板间实拍▼

中環置地中心望雲售楼处营销中心:400-8618-004中環置地中心望雲售楼处电话/地址☎:400-8618-004(开发商热线)

中環置地中心望雲售楼处营销中心:400-8618-004中環置地中心望雲售楼处电话/地址☎:400-8618-004(开发商热线)

中環置地中心望雲售楼处营销中心:400-8618-004中環置地中心望雲售楼处电话/地址☎:400-8618-004(开发商热线)

中環置地中心望雲售楼处营销中心:400-8618-004中環置地中心望雲售楼处电话/地址☎:400-8618-004(开发商热线)

中環置地中心望雲售楼处营销中心:400-8618-004中環置地中心望雲售楼处电话/地址☎:400-8618-004(开发商热线)

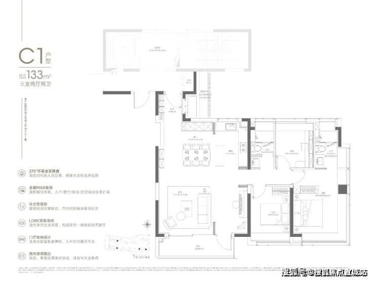
133㎡可以说是108㎡的进阶款,同样的三房两厅两卫,大面宽横厅、半开放式厨房设置岛台,加上主卧L型飘窗,再一次验证了华润置地豪宅化的产品思路。

中环置地中心望云约133㎡3房样板间实拍▼

中環置地中心望雲售楼处营销中心:400-8618-004中環置地中心望雲售楼处电话/地址☎:400-8618-004(开发商热线)

中環置地中心望雲售楼处营销中心:400-8618-004中環置地中心望雲售楼处电话/地址☎:400-8618-004(开发商热线)

中環置地中心望雲售楼处营销中心:400-8618-004中環置地中心望雲售楼处电话/地址☎:400-8618-004(开发商热线)

中環置地中心望雲售楼处营销中心:400-8618-004中環置地中心望雲售楼处电话/地址☎:400-8618-004(开发商热线)

中環置地中心望雲售楼处营销中心:400-8618-004中環置地中心望雲售楼处电话/地址☎:400-8618-004(开发商热线)

中環置地中心望雲售楼处营销中心:400-8618-004中環置地中心望雲售楼处电话/地址☎:400-8618-004(开发商热线)

来到165㎡个户型,已经上升到上海主流的大户型改善面积段,但看设计思路,可以看出是为满足多胎家庭成长而服务的。

近日中寰置地中心·望雲开放了165㎡样板间,楼典实地参观感受一番下来,整个户型动静分区的布局空间感很出众,人性化收纳设计细节很多,几乎每个房间都做了开窗面极大的飘窗,另外,装标也在润府的基础上升级了不少。

中環置地中心望雲售楼处营销中心:400-8618-004中環置地中心望雲售楼处电话/地址☎:400-8618-004(开发商热线)

中環置地中心望雲售楼处营销中心:400-8618-004中環置地中心望雲售楼处电话/地址☎:400-8618-004(开发商热线)

中環置地中心望雲售楼处营销中心:400-8618-004中環置地中心望雲售楼处电话/地址☎:400-8618-004(开发商热线)

中環置地中心望雲售楼处营销中心:400-8618-004中環置地中心望雲售楼处电话/地址☎:400-8618-004(开发商热线)

中環置地中心望雲售楼处营销中心:400-8618-004中環置地中心望雲售楼处电话/地址☎:400-8618-004(开发商热线)

中環置地中心望雲售楼处营销中心:400-8618-004中環置地中心望雲售楼处电话/地址☎:400-8618-004(开发商热线)

首先推开入户门,映入视线的是LDKB一体化客餐厅,家庭的核心活动区域,整个户型动静分区的布局一览无余,无走廊设计,空间利用率极高,走下来显得十分敞阔。

中環置地中心望雲售楼处营销中心:400-8618-004中環置地中心望雲售楼处电话/地址☎:400-8618-004(开发商热线)

其次是收纳空间非常丰富,玄关、餐边柜、厨房、卫浴、主卧、阳台六大功能空间,随处可见。

比如,厨房配了珍珠白吊柜、三组抽屉式拉篮合理搭配,调料架收纳、大容量踢脚抽、清洁用品收纳区,米面粮油、碗碟刀叉都可完美隐身。

下图蓝色为收纳区域,绿色部分即飘窗区域:

入户门厅也非常讲究,定制级的玄关柜,包括鞋柜+收纳柜+卡座+衣帽区,整齐有序。

中環置地中心望雲售楼处营销中心:400-8618-004中環置地中心望雲售楼处电话/地址☎:400-8618-004(开发商热线)

此外,像私享的入户梯厅可以做家庭小型储藏库;沙发后面的空间可以摆放大体量壁柜;大面宽阳台两侧也可作为定制储藏空间;

中環置地中心望雲售楼处营销中心:400-8618-004中環置地中心望雲售楼处电话/地址☎:400-8618-004(开发商热线)

整个户型的飘窗面积总和达到了约14.3㎡。

其中主卧的270°转角飘窗就有约5.7m²,通过与外立面的结合,直接做了梳妆台和储物柜,拓展了飘窗的实用性。

中環置地中心望雲售楼处营销中心:400-8618-004中環置地中心望雲售楼处电话/地址☎:400-8618-004(开发商热线)

同时室内精装交付标准上,也再度升级,从墙面、地板到厨卫品牌,都是国内外一线品牌。

中環置地中心望雲售楼处营销中心:400-8618-004中環置地中心望雲售楼处电话/地址☎:400-8618-004(开发商热线)

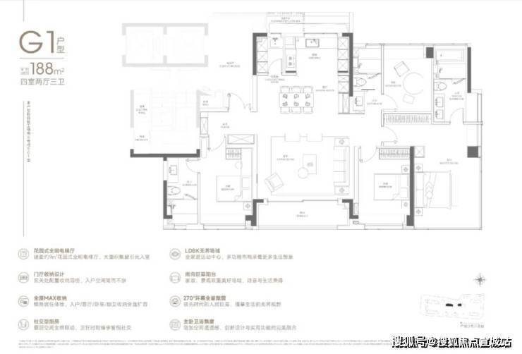
188户型2梯2户,有独立的电梯厅。4房3卫设计,还是3明卫,这两点还是不错的。

客餐厅净面宽约5.45m、进深约6.85m左右。北侧是厨房和家政间,南侧是净面宽约5m的阳台。

南次卧也是套间设计,而且也是明卫,设计上还是用了心思的。卧室部分净面宽约2.9m、进深约3.7m。根据测算,可以放置6尺的床(宽度约1.8m)+2个床头柜(宽度约45cm/个)+衣柜(深约60cm)是可以的。

主卧转角落地窗+飘窗,也算是非常少见的了。净面宽约3.6m,不算进门的衣柜,进深大约5.7m左右。根据测算,可以放置宽约2m的床+2个床头柜(宽度约45cm/个)是可以的。

中環置地中心望雲售楼处营销中心:400-8618-004中環置地中心望雲售楼处电话/地址☎:400-8618-004(开发商热线)

中環置地中心望雲售楼处营销中心:400-8618-004中環置地中心望雲售楼处电话/地址☎:400-8618-004(开发商热线)

中環置地中心望雲售楼处营销中心:400-8618-004中環置地中心望雲售楼处电话/地址☎:400-8618-004(开发商热线)

中環置地中心望雲售楼处营销中心:400-8618-004中環置地中心望雲售楼处电话/地址☎:400-8618-004(开发商热线)

中環置地中心望雲售楼处营销中心:400-8618-004中環置地中心望雲售楼处电话/地址☎:400-8618-004(开发商热线)

项目区位配套

中环置地中心地处宝山南大板块!作为宝山4个重点发展区域之一,南大同时也是上海北部最大的待开发区域之一。

待开发,也就意味着尚未建成!但不管是从规划还是位置来看,南大都是上海少有的能兼顾产业和居住的板块之一。

首先南大被称为中心城区一块不可多得的“大衣料子”,总开发体量约540万方,包含两大TOD及约250米天际地标,规划绿地面积占比高达43%(来源:上海宝山)!中環置地中心望雲售楼处营销中心:400-8618-004中環置地中心望雲售楼处电话/地址☎:400-8618-004(开发商热线)

和其他区域边拆边建式的零散开发不同,而是统一拆改后再集中规划,这样的开发形式,也决定了这里的规划从一开始就会相对完整且高能级。中環置地中心望雲售楼处营销中心:400-8618-004中環置地中心望雲售楼处电话/地址☎:400-8618-004(开发商热线)

比如它的产业先行,整个区域内分布了不少的科创产业。

而且,从2035总体规划中,其实也能看出来,南大定位很高,属于全市重点推进的整体转型区域,是宝山建设上海科创中心主阵地的核心载体。

所以不管是放在全上海还是宝山,这都是一块举足轻重的产业基地。

而除此之外,前面也提到,南大板块规划的绿地面积占比高达43%。特色公园40余个,人均绿色面积约39.38㎡,是上海人均绿地面积的约3倍。未来可能会是一个超越碧云的大型生态居住区。(数据来源:上海宝山区政府官网)中環置地中心望雲售楼处营销中心:400-8618-004中環置地中心望雲售楼处电话/地址☎:400-8618-004(开发商热线)

也就是说,在这个重点产业区域,其实早就考虑到了与生活相融的问题。

讲真,在环线外的空白区域这样规划不是难事,但在上海的中环附近,近乎预留了一半的土地给到绿化,给到生活,这算的上是一件吃力不讨好的事儿。

但南大有宜人的生态,而且还是高规格。

中环置地中心·望雲位于南大智慧城C位,周边生活配套非常成熟且距离相对较近,未来随着板块规划逐步兑现,地段价值将会更加凸显。中環置地中心望雲售楼处营销中心:400-8618-004中環置地中心望雲售楼处电话/地址☎:400-8618-004(开发商热线)

交通配套方面:北侧丰翔路、西侧祁健路、东侧汇丰路已建成通车,07-01地块南侧丰皓路(祁健路-工学路)计划2024年开工建设。

项目距离15号线丰翔路站步行可达,日常出行非常方便。

商业配套方面:项目本身就是一个自带商业的TOD,华润置地规划以万象系列融汇轻奢时尚、休闲生活、运动潮流等多元业态,打造北中环“都市商业新旗舰。

除了未来的万象系商业(规划中),周边还有经纬汇、聚丰购物广场、上坤城市广场、山姆会员店等,购物还是比较方便的。中環置地中心望雲售楼处营销中心:400-8618-004中環置地中心望雲售楼处电话/地址☎:400-8618-004(开发商热线)

医疗资源方面:项目周边有两大三甲级医院为健康保驾护航,本别是:仁济医院宝山分院和华山医院(宝山院区)。

教育资源方面:周边荟萃南大实验幼儿园、宝山区南大实验学校、上大附小、上大附中、上海大学附属学校、上海大学等全龄化教育资源。

项目一房一价表▼

中環置地中心望雲售楼处营销中心:400-8618-004中環置地中心望雲售楼处电话/地址☎:400-8618-004(开发商热线)

中環置地中心望雲售楼处营销中心:400-8618-004中環置地中心望雲售楼处电话/地址☎:400-8618-004(开发商热线)

上海宝山中環置地中心望雲售楼处电话:400-8618-004【预约热线】中環置地中心望雲售楼处营销中心:400-8618-004中環置地中心望雲售楼处电话/地址☎:400-8618-004(开发商热线)如有问题欢迎来电咨询,专业一对一热情服务,让您用专业眼光去买房。

上海最新放开限购政策

一、调减住房限购政策

为更好满足居民改善性需求,促进宜居安居、职住平衡,《通知》明确进一步调减住房限购政策。一是符合条件居民家庭在外环外购房不限套数。对符合本市住房购买条件的居民家庭,包括本市户籍居民家庭、在本市连续缴纳社会保险或个人所得税满1年及以上的非本市户籍居民家庭,在外环外购买住房不限套数,包括新建商品住房和二手住房。二是成年单身人士按照居民家庭执行住房限购政策。

按照上述规定,沪籍居民家庭和沪籍成年单身人士,在外环外购买住房不限套数;在外环内限购2套住房。非沪籍居民家庭和非沪籍成年单身人士,自购房之日前在本市连续缴纳社会保险或个人所得税满1年及以上的,在外环外购买住房不限套数;自购房之日前在本市连续缴纳社会保险或个人所得税满3年及以上的,在外环内限购1套住房。

关于住房限购政策相关业务,可拨打房地产交易行业服务热线“962269”具体咨询。

二、优化住房公积金政策

为加大公积金支持住房消费力度,《通知》规定优化住房公积金政策。一是提高个人住房公积金贷款额度。对缴存人购买二星级及以上新建绿色建筑住房的,住房公积金(含补充公积金)最高贷款额度上浮15%。首套最高贷款额度从160万元提高至184万元,多子女家庭首套上浮比例可叠加计算,从192万元提高至216万元;二套最高贷款额度从130万元提高至149.5万元。二是支持提取住房公积金支付购房首付款。对缴存人购买我市新建预售商品住房的,可以按规定申请提取本人及配偶的住房公积金支付购房首付款。三是支持住房公积金“又提又贷”。对缴存人提取住房公积金支付购房首付款的,不影响其住房公积金贷款额度计算。

关于住房公积金贷款和提取业务的具体办理方式及材料,可查询上海住房公积金官网或拨打住房公积金热线“12329”具体咨询。

三、优化调整商业性个人住房贷款利率定价机制

为减轻居民购房利息负担,《通知》明确优化个人住房信贷政策。银行业金融机构根据上海市市场利率定价自律机制要求和本机构经营状况、客户风险状况等因素,在利率定价机制安排方面不再区分首套住房和二套住房,合理确定每笔商业性个人住房贷款的具体利率水平。

关于住房贷款相关业务,可向经办银行具体咨询。

四、完善个人住房房产税政策

为衔接优化住房限购政策,《通知》规定对符合条件的非本市户籍居民家庭购买的第一套住房暂免征收房产税;购买的第二套及以上住房在合并计算家庭全部住房面积后,给予人均60平方米的免税面积扣除。由于个人住房房产税按年征收,因此2025年1月1日起符合条件的购房者可享受本条政策。

声明:本文由入驻焦点开放平台的作者撰写,除焦点官方账号外,观点仅代表作者本人,不代表焦点立场。