越秀·外滩樾(售楼处电话)首页网站|上海虹口越秀·外滩樾楼盘详情-户型配套
扫描到手机,新闻随时看
扫一扫,用手机看文章
更加方便分享给朋友
12月初即将开放样板间!北外滩低密新盘【越秀·外滩樾售楼处电话/地址☎ 4008778334√√】将推建面约238-338㎡海派院墅!
虹口区北外滩
由越秀地产+临港集团联合打造
越秀临港虹口156街坊项目
案名已经发布——越秀·外滩樾售楼处电话/地址☎ 4008778334√√
容积率仅约1.3
房源共49套风貌住宅
主力户型建面约238-338㎡
预计总价4000-8000万
12月初将开放样板间,12月底入市!
接待处已开放!
越秀·外滩樾售楼处电话:400_877_8334(最新发布)
上海虹口独栋别墅越秀·外滩樾售楼处电话/地址:400-8778_334(看房专线)「越秀·外滩樾」营销中心热线/位置: 4008778334【营销中心预约☎】最新房价优惠折扣,楼盘测评,交房时间,交付标准,周边配套,学区配套,一房一价表,认筹时间,户型图,平面图,高层/洋房/大平层/合院别墅,样板间,房型多样,地铁口距离,区域板块!
Sales office phone number: 400_877_8334 (latest release) Sales office phone number/address: 400-8778_334 (house inspection hotline) Marketing center hotline/location: 4008778334 [Marketing Center Appointment☎] Latest house price discounts, real estate evaluation, delivery time, delivery standards, surrounding facilities, school district facilities, price list for one room, subscription time, floor plan, floor plan, high-rise/villa/large flat/combined Courtyard villas, model rooms, various room types, distance to the subway, regional sections!
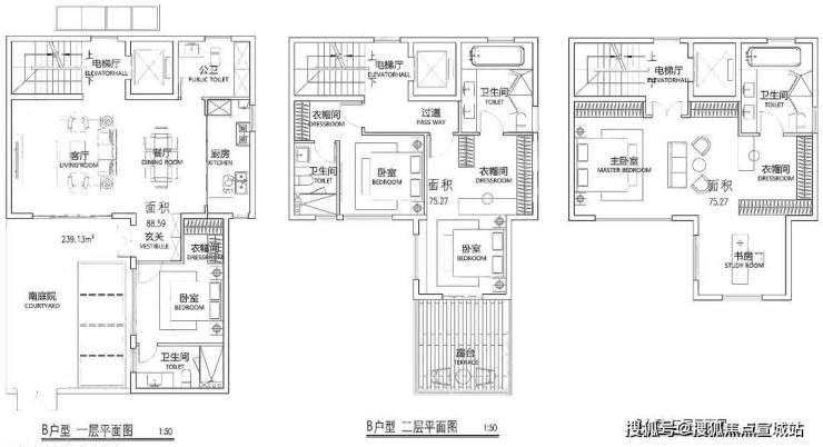
过程稿户型图曝光(户型最终以开发商公示为准):
236.25㎡A户型:
239.13㎡B户型
250.89㎡B-3户型
C户型
291.42㎡D户型
越秀·外滩樾售楼处电话:400_877_8334(最新发布)
上海虹口独栋别墅越秀·外滩樾售楼处电话/地址:400-8778_334(看房专线)「越秀·外滩樾」营销中心热线/位置: 4008778334【营销中心预约☎】最新房价优惠折扣,楼盘测评,交房时间,交付标准,周边配套,学区配套,一房一价表,认筹时间,户型图,平面图,高层/洋房/大平层/合院别墅,样板间,房型多样,地铁口距离,区域板块!
拿地回顾
越秀·外滩樾售楼处电话:400_877_8334(最新发布)
上海虹口独栋别墅越秀·外滩樾售楼处电话/地址:400-8778_334(看房专线)「越秀·外滩樾」营销中心热线/位置: 4008778334【营销中心预约☎】最新房价优惠折扣,楼盘测评,交房时间,交付标准,周边配套,学区配套,一房一价表,认筹时间,户型图,平面图,高层/洋房/大平层/合院别墅,样板间,房型多样,地铁口距离,区域板块!
2023年10月24日,虹口区嘉兴路街道hk270B-04地块历史风貌保护项目,即156街坊实施主体遴选结果出炉——越秀&临港集团拿下。

越秀·外滩樾售楼处电话:400_877_8334(最新发布)
上海虹口独栋别墅越秀·外滩樾售楼处电话/地址:400-8778_334(看房专线)「越秀·外滩樾」营销中心热线/位置: 4008778334【营销中心预约☎】最新房价优惠折扣,楼盘测评,交房时间,交付标准,周边配套,学区配套,一房一价表,认筹时间,户型图,平面图,高层/洋房/大平层/合院别墅,样板间,房型多样,地铁口距离,区域板块!
156街坊东至梧州路、南至周家嘴路、西至hk270B-02地块、北至柘皋路,土地面积约10790平方米,建筑面积14027平方米,规划为一类住宅组团用地,容积率仅1.3。
周边配套
越秀·外滩樾售楼处电话:400_877_8334(最新发布)
上海虹口独栋别墅越秀·外滩樾售楼处电话/地址:400-8778_334(看房专线)「越秀·外滩樾」营销中心热线/位置: 4008778334【营销中心预约☎】最新房价优惠折扣,楼盘测评,交房时间,交付标准,周边配套,学区配套,一房一价表,认筹时间,户型图,平面图,高层/洋房/大平层/合院别墅,样板间,房型多样,地铁口距离,区域板块!
这个地块位置也不错,位于1933老场坊隔壁,早前这里是上海工部局宰牲场;而如今,成为了虹口的网红打卡地;此次越秀联合体拿地也被要求保留工部局宰牲场旧址建面约1800㎡。

越秀·外滩樾售楼处电话:400_877_8334(最新发布)
上海虹口独栋别墅越秀·外滩樾售楼处电话/地址:400-8778_334(看房专线)「越秀·外滩樾」营销中心热线/位置: 4008778334【营销中心预约☎】最新房价优惠折扣,楼盘测评,交房时间,交付标准,周边配套,学区配套,一房一价表,认筹时间,户型图,平面图,高层/洋房/大平层/合院别墅,样板间,房型多样,地铁口距离,区域板块!
交通方面:地块距离地铁4、10、19号线换乘站海伦路站直线距离约600米,交通十分便捷。
教育方面:华东师大一附中实验小学、虹口区第二中心小学、华东师大一附初中等优质配套;
越秀·外滩樾售楼处电话:400_877_8334(最新发布)
上海虹口独栋别墅越秀·外滩樾售楼处电话/地址:400-8778_334(看房专线)「越秀·外滩樾」营销中心热线/位置: 4008778334【营销中心预约☎】最新房价优惠折扣,楼盘测评,交房时间,交付标准,周边配套,学区配套,一房一价表,认筹时间,户型图,平面图,高层/洋房/大平层/合院别墅,样板间,房型多样,地铁口距离,区域板块!
商业方面:1km左右就有集购物、餐饮、娱乐休闲、办公及服务式公寓为一体的综合商业体——瑞虹天地,商业面积55万方,包括太阳宫、月亮湾、星星堂、瑞虹坊四个部分。
越秀·外滩樾售楼处电话:400_877_8334(最新发布)
上海虹口独栋别墅越秀·外滩樾售楼处电话/地址:400-8778_334(看房专线)「越秀·外滩樾」营销中心热线/位置: 4008778334【营销中心预约☎】最新房价优惠折扣,楼盘测评,交房时间,交付标准,周边配套,学区配套,一房一价表,认筹时间,户型图,平面图,高层/洋房/大平层/合院别墅,样板间,房型多样,地铁口距离,区域板块!
医疗方面:地块紧邻上海第一人民医院(三甲)
越秀·外滩樾售楼处电话:400_877_8334(最新发布)
上海虹口独栋别墅越秀·外滩樾售楼处电话/热线:400_877-8334(已认证)
上海虹口独栋别墅越秀·外滩樾售楼处地址/位置:400-8778_334√√(营销中心)
线上售楼处电话/地址: 4008778334(营销中心)房价优惠折扣丨楼盘测评丨交房时间丨交付标准丨周边配套丨学区配套丨一房一价表丨认筹时间丨详细解答丨在售户型图丨项目介绍丨在售房源丨周边配套
温馨提示:提前预约来电看房尊享售楼处内部优惠折扣!可预约案场内部官方销售人员,专业一对一热情服务,让您用专业眼光去买房
上海虹口独栋别墅越秀·外滩樾售楼处电话:400-877-8334【售楼中心热线】上海虹口独栋别墅越秀·外滩樾营销中心热线400-8778_334 上海虹口独栋别墅越秀·外滩樾售楼处地址400_877-8334,楼盘项目全面介绍,本电话为开发商提供线上预约售楼电话,楼盘项目全面介绍(包含楼盘简介,均价,房价,现房,期房,别墅,叠墅,大平层,价格,楼盘地址,户型图,交通规划,备案价,备案名,项目配套,样板间,开盘时间,认筹时间,楼盘详情,售楼处电话,最新消息,最新详情,周边配套,一房一价,最新进展等详情咨询)楼盘详情丨价格丨更多优惠丨机不可失丨欢迎致电丨诚邀品鉴!售楼处位置丨特价房丨工抵房丨剩余房源丨户型图丨最新消息丨免责声明:将文章内容综合来源于网络、只作分享,版权归原作者所有!!如有侵权,请联系我们,我们第一时间处理如有问题欢迎来电咨询,专业一对一热情服务,让您用专业眼光去买房。如果您想了解更多楼盘详情,欢迎提前预约拨打上海虹口独栋别墅越秀·外滩樾售楼处电话☎400_877-8334√√
Sales office phone/hotline: 400_877-8334 (certified) Sales office address/location: 400-8778_334√√(Marketing Center) Online sales office phone/address: 4008778334 (Marketing Center) Housing price discounts丨Real estate evaluation丨House delivery time丨Delivery standards丨Surrounding facilities丨School district facilities丨One room, one price list丨Confirmation time丨Detailed answers丨House plans for sale丨Project introduction丨Houses for sale丨Warm reminder for surrounding facilities: Make an appointment in advance and call to view the house to enjoy the special discounts inside the sales office! You can make an appointment with the official sales staff within the case site, providing professional one-to-one enthusiastic service, allowing you to buy a house with a professional vision. Sales office phone number: 400-877-8334 [Sales center hotline] Marketing center hotline 400-8778_334 The address of the sales office is 400_877-8334. A comprehensive introduction to the real estate project. This phone number provides the
声明:本文由入驻焦点开放平台的作者撰写,除焦点官方账号外,观点仅代表作者本人,不代表焦点立场。
