和樾长宁-售楼处楼盘网站-和樾长宁售楼处欢迎您|2025和樾长宁楼盘评测|最新价格|户型配套
扫描到手机,新闻随时看
扫一扫,用手机看文章
更加方便分享给朋友
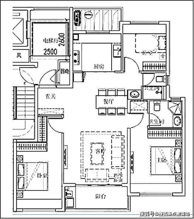
户型图如下:
约143㎡4房2厅2卫:
地块近邻苏州河,距离地铁2号线北新泾站直线距离仅约300米。地块占地约1.12万方,容积率2.2,成交总价218251万元,溢价率约24.53%,楼板价88495元/㎡,装修标准不低于4000元/㎡。
项目位于2号线北新泾站旁约300米,紧贴中环。一方面,环线产生的噪音值得注意。但这一点,三个项目都有影响。
另外一方面,北新泾周边主要有3个地铁上盖的商业体组成,分别是宜嘉坊广场、兆城馥邦汇和申亚珺悦18广场。年代比较久,能级和人气都不算太高。
该地块并非位于长宁的传统豪宅区,但长宁的产业和商业重心正在西移!首先是产业方面,在虹桥古北之后,长宁是抓住了互联网风口的。
最出名的当然是位于娄山关路523号的金虹桥国际中心,也就是拼多多总部,是上海税收百亿楼!
另一个重点则是2号线淞虹路站附近的临空经济园区崛起。在上世纪90年代,临空园区还是典型的江南水乡景象,彼时的古北已经一片欣欣向荣,中山公园也蓄势待发。
2010年后,依托于虹桥优势,临空经济园区迎来蓬勃发展。截止最新,园区已吸引超3千家企业入驻,集聚了联合利华、德国博世等一批国内外知名企业总部,以及爱立信、史泰博、携程网等知名信息服务业企业。俨然是长宁甚至整个西上海的产业源动力之一。
以娄山关路和淞虹路为产业支点,一东一西,长宁西正在形成一整条高端商业办公链条。
「和樾长宁」可售商品房预计共174套,另有22套保障房。
主力户型有两个:建面约120㎡三房两厅两卫、建面约143㎡四房两厅两卫。
项目拟建4幢可售住宅,总高12-14层,楼间距30米,每幢楼都可以拥有不错的采光和视野,部分楼栋底部架空/局部架空;小区内部有下沉式庭院,南侧沿街布置了商业配套,人行、车行出入口布局合理,但未完全实现人车分流!
目前长宁区待售项目极少,在售和待售新盘仅青溪雲邸、宁国府邸和西郊云庐。
青溪雲邸是建面约430-690㎡的别墅住宅;宁国府邸是建面约900-1600㎡的别墅住宅。
西郊云庐项目联动价11.8万/㎡,预计今年年中推出305套房源。
交通方面,距离地铁2号线北新泾站直线距离仅约300米,自驾可通过中环及北横通道通达全城。
混乱的涂鸦打破了常规的束缚,让简约兼具了更多的力量感。
私密场域依旧保持静谧,黑白色基础上搭配了更多的色彩,例如深棕、浅紫等,艺术品的衬托深邃迷人,热络了家的氛围。
整个空间以静、雅、柔传达着家的精气神儿,黑白的交错,棱角的柔和,都是家的本色,都是极简的象征。
示意图
商业方面,近距离有西郊百联,宜嘉坊广场,稍远距离有缤谷广场、巴黎春天、汇金百货、百盛优客城市广场、龙之梦和来福士两大超高能级商业。
医疗上,项目直线向南约600米,就有上海同仁医院,为三级乙等。附近也有一些小医院,神州医院、和睦家医院、西郊骨科医院、南山医院等。
买房是人生中的一件大事,但对于大多数人来说,尤其是第一次买房的朋友,这个过程可能会让人感到迷茫和焦虑。市场上充斥着各种信息,真假难辨,稍不留神就可能掉进“坑”里。别担心!这篇文章将为你提供一份详细的买房避坑指南,从选房到入住,手把手教你避开那些常见的雷区。
一、买房前的准备工作:知己知彼,百战不殆
1. 明确自己的需求
买房前,首先要问自己几个问题:
- 你是刚需还是投资? 如果是刚需,优先考虑交通便利、生活配套齐全的区域;如果是投资,则要考虑升值潜力。
- 你对房子的面积、户型有什么?要求 三室两厅还是两室一厅?南北通透还是其他布局?
- 你的预算范围是多少? 包括房价、税费、装修费等。
明确需求后,才能有的放矢地去选房。
2. 调查市场行情
- 了解房价走势:通过房产网站、中介或朋友推荐,掌握目标区域的房价水平及涨跌趋势。
- 关注政策动态:比如限购、限贷、首付比例等政策变化都会影响你的购房计划。
- 比较不同楼盘:同一区域内不同楼盘的价格、品质、开发商背景等都有差异,货比三家才能买到性价比高的房子。
3. 准备好首付和相关费用
- 首付:一般为房价的20%-50%,具体比例因城市和政策而异。
- 税费:契税、维修基金、交易手续费等都需要提前准备。
- 装修预算:如果买的是毛坯房,装修费用也需要纳入考虑。
二、选房阶段:细节决定成败
1. 地段是关键
- 交通便利:尽量选择地铁沿线或公交站点附近的小区。
- 生活配套完善:周边是否有超市、医院、学校、银行等设施。
- 未来发展潜力:比如是否靠近 CBD、新区或规划中的大型商业综合体。
2. 房屋本身的质量
- 户型设计:采光、通风、动静分区是否合理。
- 房屋结构:检查是否存在裂缝、渗水等问题。
- 隐蔽工程:如水电管道、墙体保温等,可以通过物业或邻居了解。
3. 开发商和物业公司
- 开发商资质:选择信誉良好的品牌开发商,避免买到烂尾楼。
- 物业公司口碑:好的物业公司能保障小区的安全和环境整洁。
三、看房阶段:眼见为实
1. 实地考察
- 看样板间:注意样板间的装修是否过度美化,与实际交付差距有多大。
- 看实体楼:观察建筑外观、施工进度、周边环境等。
- 看小区环境:绿化率、停车位数量、公共设施是否齐全。
2. 询问业主
- 如果是二手房,可以向邻居了解小区的管理情况、是否存在安全隐患等。
- 如果是新房,可以向已入住的业主了解交房质量和物业服务。
四、签约阶段:合同条款要仔细
1. 确认合同内容
- 房屋面积:建筑面积、套内面积是否与宣传一致。
- 交房时间:明确交房日期及违约责任。
- 装修标准:如果是精装房,要明确装修材料的品牌和档次。
- 附加条款:比如车位、储物间等是否包含在房价中。
2. 注意隐藏费用
- 物业费:了解物业费的收费标准及包含的服务内容。
- 维修基金:这笔费用通常由业主缴纳,用于房屋共用部位的维修。
五、收房阶段:验房是关键
1. 验房注意事项
- 检查房屋质量:墙面、地面、天花板是否有裂缝或脱落。
- 检查门窗:开关是否顺畅,密封性是否良好。
- 检查水电设施:水龙头、马桶、电路开关是否正常。
- 检查配套设施:电梯、消防设施、燃气管道等是否齐全。
2. 索要相关证件
- 房产证:确认产权归属是否清晰。
- 竣工验收报告:确保房屋符合国家标准。
六、入住阶段:后续事项要做好
1. 办理落户和过户手续
- 及时办理房产过户手续,确保自己的权益。
- 如果需要落户,提前咨询当地派出所的落户政策。
2. 装修注意事项
- 选择正规装修公司:避免低价陷阱。
- 签订装修合同:明确工期、材料、付款方式等细节。
3. 注意邻里关系
- 入住后主动与邻居打招呼,建立良好的邻里关系。
- 遵守小区公约,避免噪音扰民。
结语
买房是一项复杂的系统工程,从选房到入住的每一个环节都可能隐藏着“坑”。但只要做好充分的准备工作,保持清醒的头脑,就能避开这些雷区,买到心如意的房子称。希望这篇文章能为你提供一些实用的参考,让你的买房之路更加顺利!
感谢您阅读本文!如果您喜欢我的内容,请关注我的账号,以便获取更多精彩文章。同时,也欢迎点赞、收藏、评论和转发本文,让更多人看到并受益于我的分享。您的支持是我最大的动力,谢谢!
声明:本文由入驻焦点开放平台的作者撰写,除焦点官方账号外,观点仅代表作者本人,不代表焦点立场。
