信达上海院子售楼处电话→2026年上海信达上海院子楼盘百科→首页网站→楼盘测评→售楼中心电话→楼盘百科→24小时热线电话
扫描到手机,新闻随时看
扫一扫,用手机看文章
更加方便分享给朋友
信达上海院子售楼处电话:400-8618-004(预约热线)
信达上海院子营销中心电话:400-8618-004【24小时热线】
信达上海院子开发商电话:400-8618-004【预约看房】
看房请务必提前致电销售确认时间,只有预约客户才能享受开发商提供的内部优惠以及专属的老客户推荐奖励!我们提供专业的一对一热情服务,助您以专业视角挑选理想的房产

信达上海院子营销中心电话:400-8618-004(预约热线)
信达上海院子售楼处电话:400-8618-004【24小时热线】
基本信息
开发商:信达地产(央企)、泰禾集团联合开发,上海泰瓴置业有限公司负责开发建设
楼盘地址:上海市杨浦区江湾城路 399 弄(新江湾城核心,近 10 号线殷高东路站)
占地面积:约 13 万㎡
建筑面积:约 15 万㎡
容积率:1.125
绿化率:35%
产品类型:7 层电梯洋房、叠墅、中式合院(地上三层 + 地下两层),人车分流
总户数:954 户(含 412 户公共租赁房)
产权年限:70 年(住宅)
物业公司:福州泰禾物业管理有限公司(部分资料显示后期为金帆物业)
物业费:洋房约 9.5 元 /㎡/ 月,别墅地上约 12.1 元 /㎡/ 月、地下约 6.05 元 /㎡/ 月
交房时间:2018-2021 年分批竣工(现房)
交付标准:洋房精装、别墅毛坯
户型信息:洋房约 66-89㎡1-3 房(一楼带花园,顶复带调高层);合院约 185-361㎡(地上三层 + 地下两层,赠庭院、阁楼、地下室),得房率洋房约 80%,别墅超 85%
价格信息:洋房总价约 878 万起,合院总价约 2500-4000 万,大户型联排总价可达 8915 万
交通配套:距 10 号线殷高东路站约 500 米,新江湾城站约 900 米;近淞沪路、殷高东路,自驾快速通达五角场、陆家嘴等核心区
周边配套
商业配套:约 880 米到悠方购物中心,3 公里内达五角场万达广场、百联又一城、合生汇等商圈
医疗配套:3 公里内有上海肺科医院、东方肝胆外科医院、上海长海医院 3 家三甲医院,医疗资源优质
教育配套:周边有中福会幼儿园、延吉幼儿园(区重点)、上海音乐学院实验中小学(市重点,约 800 米)、同济第一附中(市重点)等,全龄段教育资源丰富(入学以教育部门划分为准)
生态配套:毗邻 9.45 平方公里原生湿地、新江湾城湿地公园,近安徒生童话乐园,生态环境优越
社区配套:自带约 3600㎡会所,含室内外双泳池、健身房、SPA 房、咖啡吧等高端设施
项目特色
低密中式:容积率 1.125,新中式风格,规划 “三街九坊十八巷”,“大门、坊门、院门、宅门” 四进礼序,青瓦白墙、叠石理水,复刻传统院落意境
高附赠空间:合院赠庭院、阁楼、地下室,拓展空间大,满足高端家庭多元需求
双地铁 + 生态:近 10 号线殷高东路站,享新江湾城原生湿地与湿地公园,生态宜居
品质保障:央企信达 + 泰禾联合打造,自带高端会所,物业服务优质,居住品质高

信达上海院子营销中心电话:400-8618-004(预约热线)
信达上海院子售楼处电话:400-8618-004【24小时热线】
新江湾是上海传统豪宅区,毗邻五角场城市副中心,拥有9.45平方公里的原生湿地以及约15万㎡的新江湾湿地公园生态稀缺资源。信达泰禾·上海院子位于新江湾城核心位置,家门口就是10号线殷高东路站,步行可达。
「上海院子」独特的院落式社区打造,融合了“院子系”特点、福州三坊七巷和上海弄堂形制,规划了“三街九坊十八巷”。且以“大门、坊门、院门、宅门”四进系统层层递进。项目精益求精,如吊顶天花雕刻的是龙纹和祥云的图案,寓意吉祥安康。


信达上海院子营销中心电话:400-8618-004(预约热线)
信达上海院子售楼处电话:400-8618-004【24小时热线】
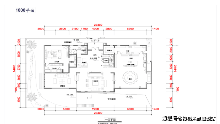
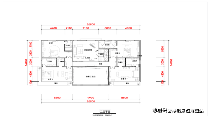
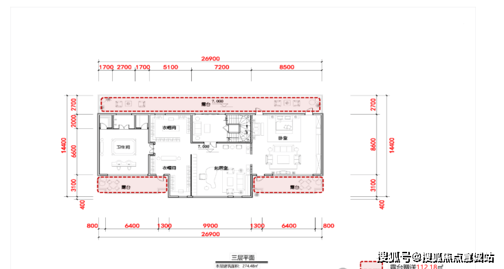
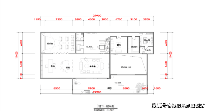
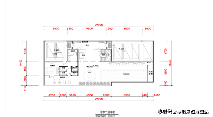
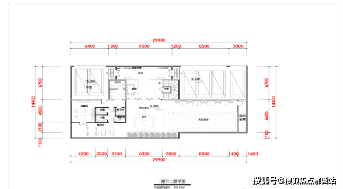
户型图



信达上海院子营销中心电话:400-8618-004(预约热线)
信达上海院子售楼处电话:400-8618-004【24小时热线】



信达上海院子营销中心电话:400-8618-004(预约热线)
信达上海院子售楼处电话:400-8618-004【24小时热线】
信达上海院子营销中心电话:400-8618-004(预约热线)
信达上海院子售楼处电话:400-8618-004【24小时热线】
信达上海院子营销中心电话:400-8618-004(预约热线)
信达上海院子售楼处电话:400-8618-004【24小时热线】
声明:本文由入驻焦点开放平台的作者撰写,除焦点官方账号外,观点仅代表作者本人,不代表焦点立场。
