林曦水岸售楼处电话☎:400-8862-334【售楼处预约热线】是上海川沙副中心的高端住宅,位于地铁2号线附近,价格21000元/㎡,首付七成,配备电梯,毛坯/精装,绿化率30%,容积率1.3,得房率高,交通便利,适合投资和自住。
林曦水岸
售楼处电话☎:400-8862-334【售楼处预约热线】(一对一热情服务)
楼盘项目全面介绍,本电话为开发商提供线上售楼电话400-8862-334,楼盘项目全面介绍(包含楼盘简介,房价,价格,楼盘地址,户型图,交通规划,备案价,项目配套,楼盘详情,售楼处电话,最新消息,最新详情,周边配套,最新进展等详情咨询)
看房请务必提前致电销售确认时间,只有预约客户才能享受开发商提供的内部优惠以及专属的老客户推荐奖励!


川沙,作为上海城市副中心之一,肩负着重要的战略意义。
首先,川沙是花木副中心的延续,未来将代替花木成为浦东主城区和东南广阔腹地的枢纽,成为新的资源交换中心。
其次,川沙副中心毗邻浦东交通枢纽,也是空(浦东国际机场)+轨(上海东站)+铁(地铁2、11、21、机场联络线)三位一体的交通格局。类比大虹桥,可预见其未来发展的惊人能量。
最后,川沙还具备得天独厚的科创+旅游资源。依托川沙迪士尼的人群聚集效应,能促进川沙多方面的功能建设。再看科创,以2号线为轴,川沙一直是张江产业精英居住外溢的首选之地。
川沙正昂首迈向成为浦东主城区和东南腹地发展中心的时代。

林曦水岸小区
建面约:100-130m²
均价:21000元/m²
总价:210万起
【首付】:七成(贷款只能贷50万)
【户型】:南北通透,双阳台
【层高】:一楼3.6米,其它3米
【楼层】:总高4层部分带电梯
【装修】:毛坯/精装(自用毛坯交付,
统一运营精装交付)
【产权】:50年
林曦水岸
林曦水岸售楼处电话:400--8862-334【售楼中心】
咨询高峰期请耐心等待,预约来电尊享内部优惠,专业一对一热情服务,让您用专业眼光去买房。
【团购】:无团购
【物业】:3元/平
【交房】:款清交付
【户数】:1200
【物业公司】鼎川物业
【绿化率】:30%
【容积率】:1.3
【得房率】:一层120%二层以上90%
【水电费】:商用
在售房源分布图:


林曦水岸超性价比
真地铁:2号线。11号线。21号线
真配套:主题酒店。沿街小吃。各种美食餐饮
真配套:迪士尼度假区
真配套:5层带电梯4层步梯+42%绿化


交通方面:据迪士尼仅10分钟车程,距地铁2号线1.8公里,5分钟车程,项目门口就是公交站。

林曦水岸
林曦水岸售楼处电话:400--8862-334【售楼中心】
咨询高峰期请耐心等待,预约来电尊享内部优惠,专业一对一热情服务,让您用专业眼光去买房。
教育资源方面:中心幼儿园,中心小学、高级中学,知名学校,六灶幼儿园、智源双语幼儿园中小学:上海市六灶中学、浦东新区民办智源小学、浦东新区六灶小学。

商业方面:世纪联华超市、农工商超市。

医疗方面:六灶社区卫生服务中心、上海市浦东人民医院,上海浦东中医医院等医疗资源,为您的健康保驾护航。

最新消息,「林曦水岸」最新房源正在销售中,推出建面约100-130㎡不限购公寓,毛坯/精装交付,均价约1.8-2.1万/㎡,总价约185万起,款清交付。
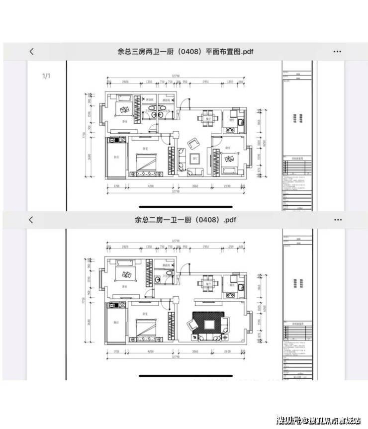
「林曦水岸」
户型图赏鉴



林曦水岸
售楼处电话☎:400-8862-334【售楼处预约热线】(一对一热情服务)
楼盘项目全面介绍,本电话为开发商提供线上售楼电话400-8862-334,楼盘项目全面介绍(包含楼盘简介,房价,价格,楼盘地址,户型图,交通规划,备案价,项目配套,楼盘详情,售楼处电话,最新消息,最新详情,周边配套,最新进展等详情咨询)
看房请务必提前致电销售确认时间,只有预约客户才能享受开发商提供的内部优惠以及专属的老客户推荐奖励!