中粮北外滩壹号(官方售楼处)电话→中粮北外滩壹号售楼中心前台电话→2026中粮北外滩壹号楼盘百科→楼盘网站→楼盘测评→售楼中心电话→来电预约看房
扫描到手机,新闻随时看
扫一扫,用手机看文章
更加方便分享给朋友
上海-中粮北外滩壹号售楼处电话:400/8862/334
中粮北外滩壹号
售楼处电话☎:400-8862-334【售楼处预约热线】(一对一热情服务)
楼盘项目全面介绍,本电话为开发商提供线上售楼电话400-8862-334,楼盘项目全面介绍(包含楼盘简介,房价,价格,楼盘地址,户型图,交通规划,备案价,项目配套,楼盘详情,售楼处电话,最新消息,最新详情,周边配套,最新进展等详情咨询)
看房请务必提前致电销售确认时间,只有预约客户才能享受开发商提供的内部优惠以及专属的老客户推荐奖励!
北外滩豪宅大平层
中粮“壹号”系全新力作
「中粮北外滩壹号」
推出建面约185-228㎡高层住宅
均价约14.38万/㎡
目前“样板间”已开放
上海-中粮北外滩壹号售楼处电话:400/8862/334
中粮北外滩壹号官方售楼处——请拨打(官方400热线):400/8862/334
最新消息:中粮大悦城上海第五座壹号系「中粮·北外滩壹号」过会,均价约14.38万/㎡,建面约185-228㎡天际大平层,样板房已开放,预约可看!
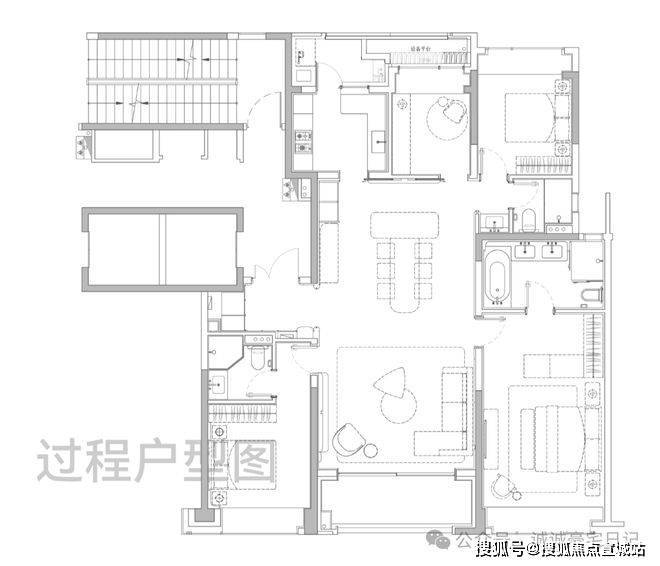
【建面约185㎡4房】
双套房设计的飞机户型,居住舒适度较高
2梯2户设计,私享电梯厅独立入户;
入户玄关设计隐私性更强,独立玄关收纳空间;
LDKB一体化设计,大面宽阳台+客厅,尺度感十足!
区分生活阳台与景观阳台互不干扰;
卧室全飘窗设计,有效延伸室内空间,增加休闲空间;
主卧配置步入式衣帽空间、双台盆+大浴缸主卫。
上海-中粮北外滩壹号售楼处电话:400/8862/334
中粮北外滩壹号官方售楼处——请拨打(官方400热线):400/8862/334
【建面约228㎡4房】
户型动静分离、居住舒适度拉满!
独立电梯厅面积约7.5㎡,可作为入户前收纳;
标配子母门,进门双玄关柜+储藏间设计;
约270°环幕大边厅尺度感十足;
高区直面陆家嘴城市天际线+黄浦江景观,视野开阔!
中厨+西厨岛台、客餐厅+阳台面积近约53㎡,尺度阔绰!
主卧大套房设计带超大主卫和独立衣帽空间,面积约50㎡,妥妥顶豪水平!
次卧套房也有充足收纳空间和独立卫浴空间;
北向双次卧可作为儿童房和书房使用,功能性满分。
项目带来的,不止是一处居所,更是一种“出则掌控全局,入则栖心桃源”的从容境界。
而且深入了解了提篮桥风貌区的规划,发现几乎全部都是低密产品,中粮北外滩壹号即将入市的是片区唯一一幢高层!采光与视野可想而知!
高层面积起步建面约185㎡天际大平层,整体圈层能级相对统一,打造出一道真正属于高净值人群的身份门槛。
丨其次,是超越时代的建筑审美!
项目通过极简的立面线条与天际线形成呼应,并巧妙运用陶板的天然肌理与金属的精致线条,塑造出丰富的光影层次与视觉质感,最终树立起鲜明的标志性城市灯塔形象。
上海-中粮北外滩壹号售楼处电话:400/8862/334
中粮北外滩壹号官方售楼处——请拨打(官方400热线):400/8862/334
丨全市独一档的会所高占有率!
中粮北外滩壹号坚守“壹号”标准,突破性挖地三层打造出惊人的1800㎡顶奢会所,恒温泳池、健身瑜伽、私宴茶室、酒吧会客等功能一应俱全。
折算本就稀少的户数,会所空间的高占有率、高使用频率,全市可能是独一份!
中粮北外滩壹号
售楼处电话☎:400-8862-334【售楼处预约热线】(一对一热情服务)
楼盘项目全面介绍,本电话为开发商提供线上售楼电话400-8862-334,楼盘项目全面介绍(包含楼盘简介,房价,价格,楼盘地址,户型图,交通规划,备案价,项目配套,楼盘详情,售楼处电话,最新消息,最新详情,周边配套,最新进展等详情咨询)
看房请务必提前致电销售确认时间,只有预约客户才能享受开发商提供的内部优惠以及专属的老客户推荐奖励!
声明:本文由入驻焦点开放平台的作者撰写,除焦点官方账号外,观点仅代表作者本人,不代表焦点立场。
