光明星城(光明星城售楼处)首页网站-光明星城2026房价_楼盘评测丨地址丨详情丨售楼处电话丨 交房时间
扫描到手机,新闻随时看
扫一扫,用手机看文章
更加方便分享给朋友
上海临港光明星城售楼处电话:400-8828-814✔✔【预约热线】光明星城售楼处营销中心:400-8828-814光明星城售楼处电话/地址☎:400-882-8814(开发商热线)如有问题欢迎来电咨询,专业一对一热情服务,让您用专业眼光去买房。
☎☎房价特价信息丨优惠政策丨详细解答丨在售房源丨在售户型图丨项目介绍
周边配套丨VR看房丨楼盘图丨沙盘图丨位置图丨配套图丨售楼处地址丨足不出户
然而,在逆势之下,有个楼盘,入市三年以来,却越卖越好!
项目2022年入市,当年网签100套,2023年网签199套,2024年至9月11号已网签227套;再看今年,1季度网签52套,2季度网签88套,3季度未满已网签87套!
上海光明星城购房者可以通过拨打售楼处电话400-882-8814进行预约,了解更多项目详情和购房优惠信息

这个大黑马,就是临港泥城的光明星城!
效果图
光明星城售楼处电话☎:400-882-8814✔✔
核心原因在于:购房者可以通过拨打售楼处电话400-882-8814进行预约,了解更多项目详情和购房优惠信息
不同于其他片区的规划缩水或延期,光明星城持续迎来超出预期的重大利好,一次一次让市场刮目相看!
2021年12月23日,泥城万达广场开业,商业体量约8.2万㎡。到目前为止,仍然是临港体量最大的已开业商场。
临港万达广场实景图
光明星城售楼处电话☎:400-882-8814✔✔
2023年6月30日,南枫线选线规划公示,泥城站如约而至!去年12月,南枫线一期正式开工!
选线规划及开工实景
同时,售楼处文件反复提及的“市中心直达临港的轨道快线”(27号线或心港快线或浦南线,名称未定),在浦东年鉴或其他版本中的选线意向中,泥城站均位列其中。
承接临港下一轮重大轨交利好,泥城依然会很稳!
今年3月24日,光明星城一期交房,比约定的交付时间提前3个月!
今年3月27日,光明星城北侧的复旦大学附属浦东医院临港院区正式开工,这将是临港第二座三级综合性医院。
光明星城售楼处电话☎:400-882-8814✔✔
今年4月7日,浦东教育局公示招生入学信息,板块内的中小学及幼儿园“盲盒”打开,赫然是上海交通大学附属浦东临港实验小学+中学,及冰厂田云端幼儿园,学校已经在9月招生开办!光明星城一期业主,已经成功入学(新房不承诺学区。学校对口情况,以每年教育局公示为准)购房者可以通过拨打售楼处电话400-882-8814进行预约,了解更多项目详情和购房优惠信息
光明星城售楼处电话☎:400-882-8814✔✔
实景图
旗舰商业(万达广场)+双轨交汇(南枫线在建+27号线预期)+优质教育(交大附属中小学)
对于光明星城来说,刚需必备的“三大件”已经全部落地!
放眼整个临港,甚至郊区新城,具备如此能级且已经落地的“三大件”,能有几个呢?
光明星城联动价仅2.6万/㎡,在上海乃至临港,都处于绝对低位!
项目在售房源为建面约75-115㎡2-4房,主力总价200万级,两房户型总价甚至在200万以下!

光明星城售楼处电话☎:400-882-8814✔✔
这个价位段,却能拥有如此优质的配套,除了光明星城,上海难再有!
项目还推出了诚意满满的购房优惠福利,切切实实让利给购房者(优惠福利活动以开发商售楼处解释为准)!销售越来越好,也就在情理之中了!
据悉,项目三期即将加推327套新品房源,除了之前热销的建面约75-85-95-115㎡户型外,本次还包含了建面约123㎡4房进阶户型。
项目三期预计下周取证认购...购房者可以通过拨打售楼处电话400-882-8814进行预约,了解更多项目详情和购房优惠信息
NO. 1|壹
光明匠造,80万方活力大城
高实用性户型,更具性价比
项目由上海本地国企光明地产匠心打造。
上海人对于光明这家本地国企是非常熟悉和信赖的,光明牛奶、大白兔奶糖等陪伴了一代又一代上海小囡的成长。

光明星城售楼处电话☎:400-882-8814✔✔
图片来源于网络
光明地产作为光明品牌旗下的六大上市公司之一,前身农工商房产,成立于1988年,距今已有34年历程,是一家具有国家一级开发资质的大型房企。
作为上海本土企业,光明集团紧扣中央产业政策导向,布局浦东临港新片区与临港共发展。在临港先后建设有上海鲜花港、光明中心、光明邻里市集、玖壹玖等。
光明星城由三个地块组成,北侧云端路、东侧为白絮路、西侧为水运路、南侧为正茂路。总占地约24万方,总建筑面积约80万方,将打造成超大体量活力社区。
光明星城售楼处电话☎:400-882-8814✔✔
光明星城鸟瞰效果图
项目分三期开发,未来将有约1万方开放式商业街区,三期地块北侧将设有大型公交枢纽规划。
项目建筑风格采用现代简约风格,凭借多主题式园林景观以及多样化的运动空间布局,为全龄段业主打造真正的交互式活力社区。


光明星城售楼处电话☎:400-882-8814✔✔
光明星城效果图
小区总体规划“一环、两核、两轴、多园”景观与公共空间。
一环:是云享健康环;两核:品质社交核及自然体验核;两轴:尊享归家轴和自然生活轴;六园景观组团:云养花园、云麓花园、云谷花园、流云花园、云际花园、云梦花园。

光明星城售楼处电话☎:400-882-8814✔✔
光明星城售楼处电话☎:400-882-8814✔✔
购房者可以通过拨打售楼处电话400-882-8814进行预约,了解更多项目详情和购房优惠信息
示意图
项目一期二期推出东地块,其中一期在今年3月提前交房,二期也是准现房状态,目前有部分房源在售。
三期即将加推327套新品房源,除了之前热销的建面约75-85-95-115㎡户型外,本次还包含了建面约123㎡4房户型。

三期房源分布图
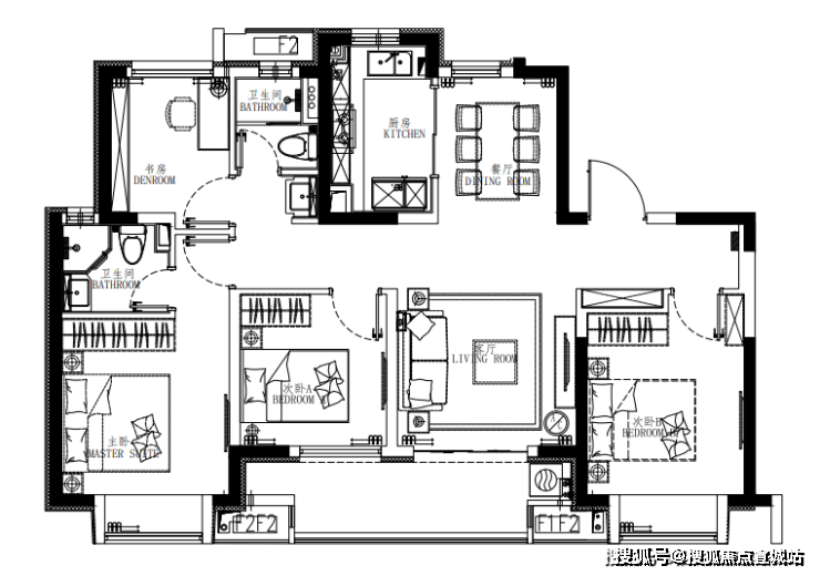
建面约75㎡2房户型,是目前少有的能以超低总价上车的户型。并且,双开间朝南+主卧带飘窗、客厅带宽面阳台的设计,保证了室内每个空间都能享受到惬意的阳光。

光明星城售楼处电话☎:400-882-8814✔✔
建面约85㎡的3房2厅1卫,低总价强功能三房,三开间朝南+整体动静分离的设计,都保证了这个户型的居住舒适度。

光明星城售楼处电话☎:400-882-8814✔✔
建面约95㎡的3房2厅2卫户型,这个户型的实用性太高了。能保证业主从二人世界到二胎家庭的全生命周期需求。

光明星城售楼处电话☎:400-882-8814✔✔
建面约115㎡的4房2厅2卫户型,是临港改善户型中更具性价比的一个。这个户型把总价控制的很好,在加上4开间朝南的设计,这个户型的尺度感和采光度非常强。

光明星城售楼处电话☎:400-882-8814✔✔
本批次新加推的建面约123㎡的4房2厅2卫户型,则是115户型的进阶版。同样四开间朝南,餐客厅一体化设计,真正的南北通透,尺度感和舒适度更高。


购房者可以通过拨打售楼处电话400-882-8814进行预约,了解更多项目详情和购房优惠信息
样板房实景图

光明星城售楼处电话☎:400-882-8814✔✔
NO. 2|贰
临港产城创新创业带
200万级新房地段价值制高点
临港主城386平方公里分为滴水湖核心区、先进智造片区、综合产业区和新兴产业区。泥城所在的先进智造片区,可以说是临港产业经济的基石。

光明星城售楼处电话☎:400-882-8814✔✔
光明星城售楼处电话☎:400-882-8814✔✔
光明星城售楼处电话☎:400-882-8814✔✔
临港新片区规划示意图
临港新片区目前产业基本聚焦在先进智造片区内,主力企业特斯拉、三一重机、上海汽车等也都在这个区域。“十四五”期间,临港新片区工业产值将突破6500亿,其中预期产值合计5700亿的五大产业基本都在先进智造片区内。
特斯拉上海超级工厂实景图
强劲的产业,将导入大量的人口,带动城市复合功能的升级,也会聚集大量的高净值人群,为楼市的发展提供源源不断的动力支撑。
泥城分城区,位居临港新片区主城区门户,一直作为临港先进智造片区的居住配套,也历经多年发展。2023年底实有人口超过12.8万(来源:红色泥城)。商业配套非常完善,区域内原本拥有鸿音广场、绿地乐和城以及临港宝龙广场等大型配套。万达广场2021年12月开业,推动泥城商业整体水准再次提升。
泥城城区实景图
泥城当下开发重点,正是浦东铁路南侧占地3.5平方公里的“临港产城”园区,即临港创新创业带。万达广场及光明星城均位于这个区域。

光明星城售楼处电话☎:400-882-8814✔✔
来自:临港集团售楼处
万达广场和光明星城领衔开发的3.5平方公里临港产城区,可以视为泥城2.0版。与老泥城相比,这里在距离上更靠近滴水湖核心区,城市界面更新,居住人口更年青并有更高学历,配套的水准也更高。

上海「沪七条」新政·核心速记(2026.2.26执行)
一、限购放宽(最重磅)
• 非沪籍买外环内:社保1年即可买1套
• 非沪籍社保满3年:外环内可买2套
• 非沪籍1年社保:外环外不限套数
居住证满5年:全市可买1套,不用社保个税
二、公积金大提升
• 首套家庭最高:240万(原160万)
• 多子女+绿色建筑:最高可贷324万
• 公积金结清后,可再次贷款
• 多子女家庭二套也能额度上浮
三、房产税利好
• 沪籍成年子女唯一住房,暂免房产税
• 与父母共有房,置换后唯一可退税
上海临港光明星城售楼处电话:400-8828-814✔✔【预约热线】光明星城售楼处营销中心:400-8828-814光明星城售楼处电话/地址☎:400-882-8814(开发商热线)如有问题欢迎来电咨询,专业一对一热情服务,让您用专业眼光去买房。
☎☎房价特价信息丨优惠政策丨详细解答丨在售房源丨在售户型图丨项目介绍
周边配套丨VR看房丨楼盘图丨沙盘图丨位置图丨配套图丨售楼处地址丨足不出户
声明:本文由入驻焦点开放平台的作者撰写,除焦点官方账号外,观点仅代表作者本人,不代表焦点立场。
