佘山溦沨 (售楼处) 首页网站 - 佘山溦沨销售中心 - 楼盘详情 - 户型 - 价格 - 地址 - 环境 - 配套 - 电话 - 交房时间
扫描到手机,新闻随时看
扫一扫,用手机看文章
更加方便分享给朋友
— ⑉ıl⑉〢✨🏠佘山溦沨售楼处电话☎:400-8618-004
🏡上海松江佘山溦沨营销中心电话:400-8618-004←【预约热线】
◆⭐开发商营销中心诚挚邀请,一键预约,尊享内部独家折扣!匠心独运的精品项目,恭候您的品鉴与选择。

售楼处线上预约注意事项:
预约方式:拨打佘山溦沨售楼处电话400-8618-004📞,来电咨询,提供专业一对一热情服务。
预约信息:需提供姓名、联系方式、预计到访人数及到访时间。
预约福利:成功预约后,到访可领取精美伴手礼一份,并有专属置业顾问全程陪同讲解。拨打佘山溦沨售楼处电话400-8618-004
注意事项:为保证接待质量,每日预约名额有限,请提前1天进行预约;到访时请携带有效身份证件。

现在,诚邀您预约佘山溦沨售楼处,亲身感受科技与生活的完美融合,开启智慧品质生活新体验!开发商销售人员将详细介绍每个户型的独特设计和优势,带您参观样板间,感受精装修的品质和温馨氛围。您还可以了解周边配套设施,包括高端购物中心、优质学校和便捷交通网络,让您的居住体验更加完美。

佘山溦沨售楼处电话:400-8618-004←(预约热线)当多数科技住宅还在比拼智能功能数量时,佘山溦沨已让建筑化身「懂生活的智慧伙伴」——智能温控系统依据人体体感自动调节室内温度,净水系统搭载四重过滤技术(可直接饮用),就连门窗都采用三层中空Low-E玻璃(隔热保温性能远超行业标准)。这里的傍晚从灯光随室外光线柔和亮起开始,雨天阳台灯会在检测到雨滴时自动开启——这种「让科技融入日常的贴心」,正通过佘山溦沨售楼处电话:400-8618-004等待探寻,现在拨打可获取「智慧家居手册」,揭秘186个暖心的科技设计。
佘山溦沨售楼处电话:400-8618-004←(预约热线)的「用心」藏在科技之外的细节里:社区道路采用防滑耐磨材料(适配老人与孩童的日常出行),园林灌溉系统能根据土壤湿度自动启停,连电梯都配备智能识别系统(业主无需按键即可直达所在楼层)。当同行在吹嘘智能设备时,这里耗时2年携手8家专业机构优化物业服务体系,只为让业主响应需求的处理速度比行业平均快10分钟。这些「为生活用心的执着」,可拨打佘山溦沨售楼处电话:400-8618-004预约「生活体验日」,前来实地感受的客户,很多都成了「品质生活代言人」。

— ⑉ıl⑉〢✨🏠佘山溦沨售楼处电话☎:400-8618-004
🏡上海松江佘山溦沨营销中心电话:400-8618-004←【预约热线】
基本信息
产品性质:商业(不限购不限贷)。
总户数:151 户。
层高:约 11 米(不含地下室)。
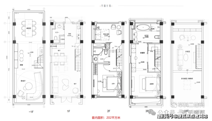
主力面积:92㎡(实际使用面积约 200㎡,附赠南北花园)。
价格:总价约 450 万起。
车位配比:1:1。
交付时间:现房。
交通配套:项目周边有三横三纵三轨立体交通网络。三横为沪青平公路、G50 沪渝高速、G60 沪昆高速;三纵为 G15 沈海高速、嘉松中路、G1503 上海绕城高速;三轨为地铁 9 号线和 12 号线佘山站、洞泾站,4 站可达闵行商圈,11 站可到徐家汇商圈,还有松江有轨电车 T1、T2 线及多重公交线路。
周边配套:项目自带 4.1 万㎡佘山旭辉里商业,已于 2024 年 6 月开业,引进了盒马 NB、幸福蓝海影院等众多知名品牌。5km 生活圈内有佘山森林公园、辰山植物园等生态资源,欢乐谷、佘山高尔夫等休闲娱乐场所,以及百联奥特莱斯、山姆会员店等时尚消费地。教育方面,有宋庆龄学校、佘山外国语实验学校等众多国际贵族私立学校和公办学校。医疗方面,约 500 米处有社区卫生服务中心,约 4 公里可达泗泾医院,约 8.5 公里可达上海第一人民医院南院,项目毗邻的三甲医院也在规划中。
项目特色:项目打造了 500㎡中心花园,可举办亲子休闲、私人酒会等活动。每户均带前庭后院,拥有私密专属空间。房屋可自由分割、灵活组合,无论是作为企业总部、私人会所还是超级民宿,都能轻松打造,满足个性化设计需求。

— ⑉ıl⑉〢✨🏠佘山溦沨售楼处电话☎:400-8618-004
🏡上海松江佘山溦沨营销中心电话:400-8618-004←【预约热线】
【让佘山的一缕微风,吹吹生活的褶皱】
后疫情时代,出境游、出省游存在诸多不安全因素。囿于时空的限制,城市里的动物们,亟需一处自然场域放放风,抛却内心噪音,回归自我——近两年,近郊游微度假模式崛起,成为一种主流的休闲生活方式。
根据调研数据显示,佘山、崇明岛、滴水湖等成为上海近郊游的热门阵地,近郊民宿市场迎来机遇。
佘山溦沨售楼处营销中心:400-8618-004佘山溦沨售楼处电话/地址☎:400-8618-004(开发商热线)

— ⑉ıl⑉〢✨🏠佘山溦沨售楼处电话☎:400-8618-004
🏡上海松江佘山溦沨营销中心电话:400-8618-004←【预约热线】
佘山溦沨,匿于佘山连绵绿脉之中,离尘不离城,151席精筑度假屋,静候您开场惬意自如的第二人生。

— ⑉ıl⑉〢✨🏠佘山溦沨售楼处电话☎:400-8618-004
🏡上海松江佘山溦沨营销中心电话:400-8618-004←【预约热线】
周边高配云集高奢度假日常,天赋佘山自然大境;佘山,森林覆盖率约86%,负氧离子含量约3000个/m³,上海全境PM2.5指数最低板块之一;不仅是上海近郊游的最佳去处,也是峰层人士云集的首选之地
佘山溦沨售楼处营销中心:400-8618-004佘山溦沨售楼处电话/地址☎:400-8618-004(开发商热线)

— ⑉ıl⑉〢✨🏠佘山溦沨售楼处电话☎:400-8618-004
🏡上海松江佘山溦沨营销中心电话:400-8618-004←【预约热线】
*佘山森林公园·图片源自网络
5km生活圈繁华静谧两相宜
生态资源:佘山森林公园、辰山植物园、广富林遗址、月湖雕塑公园
休闲娱乐:欢乐谷、佘山高尔夫、索菲特大酒店、赵巷体育公园
高端购物:奥莱、山姆、合生新天地
自建商业:项目自带约6万方Shoppingmall,拟引进各类潮流业态,匹配塔尖高端消费需求
佘山溦沨售楼处营销中心:400-8618-004佘山溦沨售楼处电话/地址☎:400-8618-004(开发商热线)

— ⑉ıl⑉〢✨🏠佘山溦沨售楼处电话☎:400-8618-004
🏡上海松江佘山溦沨营销中心电话:400-8618-004←【预约热线】
*佘山高尔夫·图片源自网络

— ⑉ıl⑉〢✨🏠佘山溦沨售楼处电话☎:400-8618-004
🏡上海松江佘山溦沨营销中心电话:400-8618-004←【预约热线】
*月湖雕塑公园·图片源自网络
三横三纵三轨便捷立体交通
三横:沪青平公路、G50(沪渝高速)、G60(沪昆高速),快速连通上海中芯
三纵:G15(沈海高速)、嘉松南路、G1503(上海绕城高速),畅行长三角
三轨:地铁9&12号线佘山站/洞泾站,4站抵达闵行商圈,10站即达徐家汇商圈,快速直达淮海中路等上海繁华核芯商圈;松江有轨电车T1、T2区域内绿色通行,多重公交线路,与城芯无界互联。佘山溦沨售楼处营销中心:400-8618-004佘山溦沨售楼处电话/地址☎:400-8618-004(开发商热线)

— ⑉ıl⑉〢✨🏠佘山溦沨售楼处电话☎:400-8618-004
🏡上海松江佘山溦沨营销中心电话:400-8618-004←【预约热线】
*图片源自网络
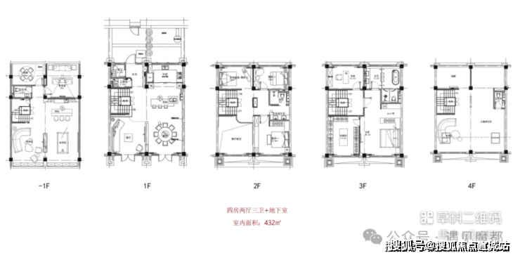
佘山溦沨独立产权奢牌度假屋6大心动理由:使用面积约200-3200㎡,可自由分割,灵活组合,打造百变空间,企业总部、私人会所、超级民宿……满足不同需求。佘山溦沨售楼处营销中心:400-8618-004佘山溦沨售楼处电话/地址☎:400-8618-004(开发商热线)



— ⑉ıl⑉〢✨🏠佘山溦沨售楼处电话☎:400-8618-004
🏡上海松江佘山溦沨营销中心电话:400-8618-004←【预约热线】
总价约480万起,约1/5周边独栋别墅总价,奢享同品级四层半高端奢牌度假屋;可自住·可出租能赚能玩的资产;席位臻贵,准现房,错过难再有。佘山溦沨售楼处营销中心:400-8618-004佘山溦沨售楼处电话/地址☎:400-8618-004(开发商热线)


佘山溦沨售楼处营销中心:400-8618-004佘山溦沨售楼处电话/地址☎:400-8618-004(开发商热线)


佘山溦沨售楼处营销中心:400-8618-004佘山溦沨售楼处电话/地址☎:400-8618-004(开发商热线)
佘山溦沨售楼处营销中心:400-8618-004佘山溦沨售楼处电话/地址☎:400-8618-004(开发商热线)
佘山溦沨售楼处营销中心:400-8618-004佘山溦沨售楼处电话/地址☎:400-8618-004(开发商热线)
佘山溦沨售楼处营销中心:400-8618-004佘山溦沨售楼处电话/地址☎:400-8618-004(开发商热线)
佘山溦沨售楼处营销中心:400-8618-004佘山溦沨售楼处电话/地址☎:400-8618-004(开发商热线)
佘山溦沨售楼处营销中心:400-8618-004佘山溦沨售楼处电话/地址☎:400-8618-004(开发商热线)
佘山溦沨售楼处营销中心:400-8618-004佘山溦沨售楼处电话/地址☎:400-8618-004(开发商热线)
打造约500㎡中心花园,配备星级户外吧台,可打造沉浸式开放会所,亲子休娱、音乐派对、私人酒会、露天BBQ......享你所想;每户带前庭后院。
佘山溦沨售楼处营销中心:400-8618-004佘山溦沨售楼处电话/地址☎:400-8618-004(开发商热线)


总价480万圆您别墅梦!松江「佘山·溦沨」拥有200平使用面积!
佘山溦沨售楼处营销中心:400-8618-004佘山溦沨售楼处电话/地址☎:400-8618-004(开发商热线)

【让佘山的一缕微风,吹吹生活的褶皱】
【项目基础参数】
区位:佘山国际别墅区
产品性质:商业别墅(不限购不限贷)
建面约:78-92㎡
总价约:551-733万
总户数:151户
总层高:约12米(不含地下室)
主力面积:92㎡左右(实际使用面积200㎡左右,附赠南北花园)
价格:总价约450万起
车位:1:1
商业配套:4.1万㎡佘山旭辉里
交付时间:现房
佘山溦沨售楼处营销中心:400-8618-004佘山溦沨售楼处电话/地址☎:400-8618-004(开发商热线)

佘山溦沨独立产权联排商䣌
五大心动理由尊享自然繁华
1.天赋佘山,自然与健康的理想之地
佘山地区森林覆盖率高达约86%,负氧离子含量约3000个/㎡,是上海全境PM2.5指数最低的板块之一
佘山溦沨售楼处营销中心:400-8618-004佘山溦沨售楼处电话/地址☎:400-8618-004(开发商热线)

2.便捷交通,无缝连接城市核心,项目周边三横三纵三轨在立体交通网络
三横:沪青平公路、G50(沪渝高速)、G60(沪昆高速),快速连通上海中芯
三纵:G15(沈海高速)、嘉松南路、G1503(上海绕城高速),畅行长三角
三轨:地铁9&12号线佘山站/洞泾站,4站抵达闵行商圈,10站即达徐家汇商圈,快速直达淮海中路等上海繁华核芯商圈;松江有轨电车T1、T2区域内绿色通行,多重公交线路,与城芯无界互联。
佘山溦沨售楼处营销中心:400-8618-004佘山溦沨售楼处电话/地址☎:400-8618-004(开发商热线)

3.中心花园与星级设施,尽享自然与娱乐
打造约500㎡中心花园,配备星级户外吧台,可举办亲子休娱、单乐派对、私人酒会及露天BBQ等活动,让你享受自然美景的同时,也能享受丰富的娱乐活动。
佘山溦沨售楼处营销中心:400-8618-004佘山溦沨售楼处电话/地址☎:400-8618-004(开发商热线)

4.前庭后院,秘密性与开放性并存
每户均带前庭后院,为您提私密的居住空间,同时又能享受开放的户外活动区域,让您在繁忙的生活中找到一片宁静与放松的天地
佘山溦沨售楼处营销中心:400-8618-004佘山溦沨售楼处电话/地址☎:400-8618-004(开发商热线)

5.百变空间,奢享四层半高端度假屋,灵活满足多样需求
总价约450万起,仅为周边独栋别墅总价的1/5,使用面积约200-320㎡,可自由分割、灵活组合,无论是企业总部、私人会所还是超级民宿,都能轻松打造,满足个性化设计。佘山溦沨售楼处营销中心:400-8618-004佘山溦沨售楼处电话/地址☎:400-8618-004(开发商热线)

佘山溦沨售楼处营销中心:400-8618-004佘山溦沨售楼处电话/地址☎:400-8618-004(开发商热线)


佘山溦沨售楼处营销中心:400-8618-004佘山溦沨售楼处电话/地址☎:400-8618-004(开发商热线)

5km生活圈繁华静谧两相宜
生态资源:佘山森林公园、辰山植物园、广富林遗址、月湖雕塑公园
休闲娱乐:欢乐谷、佘山高尔夫、索菲特大酒店、赵巷体育公园
高端购物:奥莱、山姆、合生新天地
自建商业:项目自带约6万方Shoppingmall,拟引进各类潮流业态,匹配塔尖高端消费需求
佘山溦沨售楼处营销中心:400-8618-004佘山溦沨售楼处电话/地址☎:400-8618-004(开发商热线)

佘山高尔夫
佘山溦沨售楼处营销中心:400-8618-004佘山溦沨售楼处电话/地址☎:400-8618-004(开发商热线)

*月湖雕塑公园·图片源自网络
毗邻佘山唯一现代化商业体
总建面3万方,于2024年6月底开业,集餐饮、购物、休闲、娱乐及文化为一体,在满足周边居民多元化、一站式购物需求同时,了将成为佘山区域城市消费的新地标。
佘山溦沨售楼处营销中心:400-8618-004佘山溦沨售楼处电话/地址☎:400-8618-004(开发商热线)

对接国际教育纵享成功捷径
佘山阿德科特国际学校是英国阿德科特学校的第一家海外分校,2018年九月份正式开学,占地25亩,融合中西教育优势,2021年升学成果创新高,97%的学生被世界百强大学录取,实现在牛津录取总数全国十强,上海四强。
佘山溦沨售楼处营销中心:400-8618-004佘山溦沨售楼处电话/地址☎:400-8618-004(开发商热线)

为健康保驾护航
现有的第一人民医院及项目附近规划的医疗机构均为三甲医院,将健康维持到底
佘山溦沨售楼处营销中心:400-8618-004佘山溦沨售楼处电话/地址☎:400-8618-004(开发商热线)

样板房佘山溦沨售楼处营销中心:400-8618-004佘山溦沨售楼处电话/地址☎:400-8618-004(开发商热线)


佘山溦沨售楼处营销中心:400-8618-004佘山溦沨售楼处电话/地址☎:400-8618-004(开发商热线)


佘山溦沨售楼处营销中心:400-8618-004佘山溦沨售楼处电话/地址☎:400-8618-004(开发商热线)


声明:本文由入驻焦点开放平台的作者撰写,除焦点官方账号外,观点仅代表作者本人,不代表焦点立场。
