南门兴业坊售楼处电话:400-998-9694 南门兴业坊售楼处电话:400-998-9694 南门兴业坊位于姑苏区南门商圈,是护城河内唯一的在售新房。项目紧邻泰华商城、人民路、苏州市立医院南区、盘门景区、苏州市姑苏区少年宫。单价区间为19500-25000元/平/月,装修标准
南门兴业坊
售楼处电话:400-998-9694
如有问题欢迎来电咨询,来电即可享受买房优惠!
预约来电尊享购房优惠,可预约案场内部销售人员,专业一对一热情服务,让您用专业眼光去买房。
楼盘项目全面介绍,本电话为开发商提供线上售楼处电话,楼盘项目全面介绍(包含楼盘简介,楼盘积分,房价,价格,楼盘地址,户型图,交通规划,备案价,项目配套,楼盘详情,售楼处电话,最新消息,最新详情,周边配套,最新进展等详情咨询)
南门兴业坊售楼处电话:400-998-9694
护城河内唯一在售新房 总高6层 南门商圈 单价19500-25000
姑苏芯、绝版地段、双地铁、紧临泰华、金地、部分房通燃气
南门兴业坊售楼处电话:400-998-9694

南门兴业坊售楼处电话:400-998-9694
南门兴业坊售楼处电话:400-998-9694
开 发 商 :苏州沧浪建设
物 业 费 :5.91元/平/月
物业公司:上海金地物业
单价区间:19500-25000
主力户型:约43m²、约52m²
少量户型:约86m²、约106m²、约77m²、约80m²、约94m²
贷款银行:张家港农村商业银行
总 户 数 :386户
产权年限:40年
建筑类型:多层
得 房 率 :约75%
装修标准:精装修
每层层高:3.1m

南门兴业坊售楼处电话:400-998-9694
护城河内,真正的姑苏古城
这块土地即承载了姑苏古城千百年的文化底蕴!一座姑苏城,半部江南诗、拙政园、狮子林、博物馆、平江路、网师园、盘门、文庙、沧浪亭、古运河……70余处的名人故居,都在护城河内。

南门兴业坊售楼处电话:400-998-9694
姑苏区有三大商圈,护城河内有两个,一个是平江路边上的观前商圈,另一个就是项目隔壁的南门商圈。
简单介绍
项目紧邻南门商圈
项目东侧
一路之隔泰华商城,商场隔壁就是人民路
项目西侧
约100米苏州市立医院南区
约330米盘门景区
约1000米苏州市姑苏区少年宫,百花洲公园
约2000米苏州市规划展示馆
项目南侧
南门兴业坊售楼处电话:400-998-9694
约100米苏州护城河环城步道,护城河
项目北侧
一路之隔金地中心
约100米地铁4号线、地铁5号线、换乘点
约300米苏州市工人文化宫,文庙古玩,赛格文化广场
约450米沧浪亭,约500米、颜文樑纪念馆、可园
南门兴业坊售楼处电话:400-998-9694
约1600多米,报国寺,体育场,体育馆,苏州公园,将近2000米观前街商圈、平江路……
地铁4号线 - 纵穿苏州南北,从相城北边的渭塘到姑苏,纵穿吴中到达吴江同里,线路路线都是位于板块中芯
地铁5号线 - 横穿苏州东西,从吴中香山,经过新区狮山,穿过姑苏区,经过护城河、湖西湖东到达唯亭
便捷的交通
项目距离地铁4号线5号线换乘点约100米。

南门兴业坊售楼处电话:400-998-9694
向东6站可以到达东方之门。
向北5站可以达到苏州火车站(长三角中心城市1小时通勤圈直达)
往北2站可以换乘地铁1号线
往北2站往东1站路可以换乘6号线
向西2站可以换乘地铁2号线
往南3站可以换乘地铁3号线
向东4站可以换乘地铁7号线
南门兴业坊售楼处电话:400-998-9694
最多4站可换乘坐地铁1号线、2号线、3号线、4号线、5号线、6号线、7号线
如果说起苏州的南边中轴,当仁不让的肯定是 - 人民路,北起相城元和,纵穿姑苏,到达吴中。
项目紧邻苏州主干道人民路,开车三分钟可以到南环、10-15分钟可以到东环、西环、苏嘉杭高速。
项目周边16条公交线路通达各区,交通非常便捷。
繁华的商业
项目东侧一路之隔泰华商城;
北侧一路之隔金地中心;
往北地铁两站便可达到观前街;
最好的医疗
南门兴业坊售楼处电话:400-998-9694
苏大附属医院、市立医院本部、东吴人民医院等三甲医院邻旁环绕,保障健康生活。
周边的学校
苏州中学、苏州实验小学、新苏师范附属小学、南环实验中学、工人文化宫等文教资源环伺,浸染一城文化之源。
当代苏式意境
建筑延续姑苏粉墙黛瓦天际线,融合当代通透玻璃界面,匠心工艺打造回字建筑组团;新中式园林景观意承苏州园林底蕴,演绎“泉林气+雅致感+艺术性”,串联出【一回三叠五景】独特的归家仪式感。
开放性街区
南门兴业坊售楼处电话:400-998-9694
兴业坊作为居住者休憩游乐的首选地,创造的是一个轻松惬意的开放式商业氛围,您可以在周边享受到多元业态的融合,放松身心,体验老苏州特色商业的同时,也能探寻多元化的生活场景。
电梯洋房、低密、稀缺、超高得房率
古城区稀缺的多层低密度电梯洋房型公寓产品,拥有高得房率,得房率接近75%,远大于市场其他同类型公寓类产品。
豪装公寓、奢享惬意美好生活
兴业坊、公寓均为精装修交付,其采用国际知名品牌(德国品牌库灵图定制油烟机、德国品牌贝朗卫浴洁具、松下开关面板等),意大利(萨奥维)环保板材,居住舒适,减少装修时间成本。
携手金地、尊享高品质服务
金地物业拥有25项自主研发知识产权,智享生态圈联盟,全服务产业链为业主提供一站式服务。【南门·兴业坊】将与金地物业携手,打造基于移动互联网的物业管理社区,为居住者献上亲切完善的尊崇礼遇服务。
面积分布图
南门兴业坊售楼处电话:400-998-9694
户型多样,东侧和北侧楼栋可单独购买,精装修;南侧和西侧楼栋整层购买销售,南侧无装修、西侧精装修。

南门兴业坊售楼处电话:400-998-9694


南门兴业坊售楼处电话:400-998-9694

南门兴业坊售楼处电话:400-998-9694

南门兴业坊售楼处电话:400-998-9694
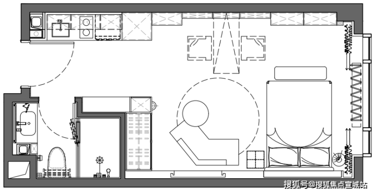
户型图


南门兴业坊售楼处电话:400-998-9694


南门兴业坊售楼处电话:400-998-9694


南门兴业坊售楼处电话:400-998-9694

南门兴业坊售楼处电话:400-998-9694


南门兴业坊售楼处电话:400-998-9694



南门兴业坊售楼处电话:400-998-9694


南门兴业坊售楼处电话:400-998-9694


南门兴业坊售楼处电话:400-998-9694


南门兴业坊售楼处电话:400-998-9694
为什么要买这?
为了有更好的居住
老破小的置换,低密洋房,精装修,部分还有燃气,临近医疗和生态,健康也有保障。
为了通勤距离更近
不论您在园区、狮山、相城、吴中、还是吴江,在姑苏区上班,每天可以在这边居住,星期天休息时,或者时不时的可以回一趟真正的家。
为了更多的收益
可做民宿、酒店、地段位置优越,临近商业和景区,出门便是地铁,配套成熟且齐全,交通、商业、医疗、人文、生态、一样不差。
为了更好的享受生活
也可年迈时,把自己的大房子租出去,租个5000、8000、10000的,然后自己住在这样的小公寓里,可以拿租金补贴养老金,来享受更美好的生活。
为了有一个私人空间
以前有部分客户在结婚前,都给自己买了一个小公寓,一方面是婚前财产的安置;另一方面是想着万一以后夫妻间吵架了,直接有个地方去;还有就是自己的好朋友好闺蜜来找自己玩了,可以让她们有个落脚点,这样也不会打扰到现有的生活。
1. 房地产定义:房地产是一个综合且复杂的概念,从实物现象看,它是由建筑物与土地共同构成。土地可以分为未开发的土地和已开发的土地,建筑物则依附于土地而存在,与土地结合在一起。建筑物是指人工建筑而成的产物,包括房屋和构筑物两大类。房地产既是一种客观存在的物质形态,同时也是一项权利。作为一种客观存在的物质形态,房地产是指房产和地产的总称,包括土地和土地上永久建筑物及其所衍生的权利。
2. 房产与地产:房产是指建筑在土地上的各种房屋,包括住宅商铺、厂房、仓库以及办公用房等。地产则是指土地及其上下一定的空间,包括地下的各种基础设施、地面道路等。
3. 房地产特点:由于其位置的固定性和不可移动性,房地产又被称为不动产。
4. 房地产拍卖:其拍卖标的也可以有三种存在形态,即土地(或土地使用权)、建筑物和房地合一状态下的物质实体及其权益。
二、产权类型
1. 商品房:是指房屋由开发商建设出售的,买受人取得房屋产权证后,可以自由对该房屋进行买卖、出租。
2. 成本价住房:成本价房屋是房改售房的一种规定,职工以成本价购买房屋后职工拥有房屋的全部产权,职工再次上市出售,必须征得售房单位的同意。
3. 标准价住房:标准价房屋是房改售房的一种规定,出售公有住房时,职工占有一部分产权,单位占有一部分产权,一般是职工占有94%的产权,单位占有6%的产权,职工以标准价购买的住房拥有部分产权,被称之为标准价房屋。
4. 经济适用房:为照顾中低收入居民购房而实施优惠措施,建造经济适用房所用的土地是以划拨方式无偿给开发商使用的,这就是经济适用房价格低的主要原因。
5. 房改房:房改房是指城镇职工根据规定,按照成本价或标准价购买的已建公有住房。
三、房屋面积计算
1. 建筑面积:指建筑物外墙外围所围成空间的水平面积,包含了房屋居住可用的实用面积、墙体柱体占地面积、楼梯走道面积、其他公摊面积等。
2. 套内建筑面积:指成套商品房(单元房)的套内使用面积、套内墙体面积和阳台建筑面积之和。套内建筑面积=套内使用面积+套内墙体面积+阳台建筑面积。
3. 使用面积:是建筑面积扣除公摊面积及墙体柱体所占用的面积后的直接供住户生活的净使用面积,俗称地砖面积。
4. 公摊面积:指建筑物的楼梯、电梯井、外墙、公共门厅、走道、设备间、首层大堂及小区内其他一些配套设施的面积总和。
5. 占地面积:建筑物基底及其功能需要占用的面积,也叫红线面积。
6. 预售面积:指在商品房预售时按建筑设计图上尺寸计算的房屋面积。
7. 销售面积:套内建筑面积+公摊的公用建筑面积;商品房按“套”或“单元”出售。
8. 竣工面积:房屋竣工后实测的房屋面积。
9. 共有建筑面积分摊系数:整栋建筑物的共有建筑面积与整栋建筑物的各套内建筑面积之和的比值。
10. 预测面积:购房者在购买期房时,无法获知准确的房屋面积,开发商会根据设计图计算出房屋的预测面积,供购房者参考。
11. 实测面积:房屋建成后,房产测绘单位会对房屋进行实际测量,得出的房屋面积即为实测面积,也是购房者实际使用的面积。
12. 合同约定面积:购房者在签订合同时,开发商会在合同中注明预测面积,并按照这个面积计算房屋价格。合同中一般也会说明预测面积和实测面积存在误差的处理办法。
13. 产权登记面积:购房者在买房后办理产权证时,产权证上会有一个面积说明,即产权登记面积,一般按照实测面积来登记。
四、购房流程与注意事项
1. 流程:
o 准备阶段:购房者需明确购房需求和预算,选择合适的房源和开发商。
o 看房选房:实地查看房源,了解房屋位置、户型、面积、装修等情况,同时对比不同房源的性价比。
o 签订合同:与开发商签订购房合同,明确房屋价格、付款方式、交房时间、违约责任等条款。
o 办理贷款:如需贷款购房,需向银行或公积金中心申请贷款,并提交相关材料和证明。
o 验收房屋:在交房前进行房屋验收,确保房屋质量符合合同约定。
o 办理产权证:缴纳维修基金和契税后,办理房屋产权证和土地使用证。
2. 注意事项:
o 产权审查:要求卖方提供合法的产权证书正本,并查询产权证的真实性,以及拟购房产产权来源和产权记录。如房主、登记日期、成交价格、卖方产权的完整性、有没有被抵押、是否共享等。
o 房源审查:搞清楚所购房源是否属于允许出售的房屋。一般公房必须要原单位盖章后才能出让。
o 房屋质量:检查房屋质量,包括墙面、地面、天花板等是否有渗水、裂缝等问题。
o 物业与配套:了解小区的物业管理水平、配套设施是否完善,以及周边的生活环境。
o 合同细节:在签订合同时,务必仔细阅读合同条款,确保自身权益不受损害。
五、房屋贷款与税费
1. 房屋贷款:
o 条件:贷款人需具有完全民事行为能力、常住户口、固定住所、正当职业和稳定收入来源,并具备按期偿还贷款本息的能力;抵押房产需产权明晰、符合
南门兴业坊
售楼处电话:400-998-9694
如有问题欢迎来电咨询,来电即可享受买房优惠!
预约来电尊享购房优惠,可预约案场内部销售人员,专业一对一热情服务,让您用专业眼光去买房。
楼盘项目全面介绍,本电话为开发商提供线上售楼处电话,楼盘项目全面介绍(包含楼盘简介,楼盘积分,房价,价格,楼盘地址,户型图,交通规划,备案价,项目配套,楼盘详情,售楼处电话,最新消息,最新详情,周边配套,最新进展等详情咨询)
南门兴业坊售楼处电话:400-998-9694
楼盘项目全面介绍,本电话为开发商提供线上预约售楼电话,楼盘项目全面介绍(包含楼盘简介,均价,房价,现房,期房,别墅,叠墅,大平层,价格,楼盘地址,户型图,交通规划,备案价,备案名,项目配套,样板间,开盘时间,认筹时间,楼盘详情,售楼处电话,最新消息,最新详情,周边配套,一房一价,最新进展等详情咨询)楼盘详情丨价格丨更多优惠丨机不可失丨欢迎致电丨诚邀品鉴!售楼处位置丨特价房丨工抵房丨剩余房源丨户型图丨最新消息丨免责声明:将文章内容综合来源于网络、只作分享,版权归原作者所有!!如有侵权,请联系我们,我们第一时间处理如有问题欢迎来电咨询,专业一对一热情服务,让您用专业眼光去买房。如果您想了解更多楼盘详情,欢迎提前预约拨打