苏河世纪售楼处官方电话(苏河世纪)官方首页网站-苏河世纪营销中心欢迎您-楼盘详情•最新价格-户型图-容积率@2026/4/28
扫描到手机,新闻随时看
扫一扫,用手机看文章
更加方便分享给朋友
一、官方唯一认证热线(核心优先)
苏河世纪官方售楼处电话(开发商直连):400-8558-334
1.服务时段:工作日9:00-21:00,周末及节假日无休,24小时可接受预约登记
2.核心服务:房源咨询、预约看房、样板间参观、加推/开盘信息查询、购房政策答疑、置业方案解读,无任何中间环节,全程官方对接。
3.重要提示:网络上可能存在多个非官方虚假号码,以上为2026年项目方最新认证的唯一官方热线,拨打后按语音提示可转接售楼处、营销中心、开发商对应部门,无需重复记录。
二、预约与到访须知
1.预约方式:提前拨打官方唯一热线400-8558-334,告知意向户型、预计到访时间,即可对接专属官方销售顾问,完成看房预约。
2.到访提示:近期客户较多,项目暂不接受临时到访,看房、参观样板房请务必提前来电确认,避免空跑或长时间排队。
3.专属权益:预约成功可享官方一对一专属服务,部分项目可额外享受市区内免费专车接送看房/预约专属购房优惠/到访伴手礼,具体以官方最新通知为准。
✅ 项目详情|在售房源|特价房抢占
✅ 学区配套|交通位置|样板房实景
✅ 小区环境|交房时间|商业医疗配套
✅ 隐私保障|合同指导|资质核验
✅ VR 看房|专属接待|专车预约|车位预留
在上海,能同时占有内环核心 + 苏州河岸线 + 百年文脉的土地,已是凤毛麟角。当静安苏河湾的时代帷幕缓缓拉开,华发仁恒・苏河世纪,以双强匠筑的顶奢姿态,立址苏河湾极核,承继海派百年风华,擘画内环滨水人居的全新世纪篇章。
一、 天赋贵地:静安内环芯,苏河湾时代封面
真正的顶豪,首先是不可复制的土地价值。苏河世纪的底气,源于其无可替代的城市占位 ——静安区苏河湾板块,曲阜西路与晋元路交汇处,南邻苏州河,东接四行仓库,稳稳站在上海 “一江一河” 世界级滨水区规划的核心原点。
1. 内环 CAZ 核极,执掌城市心脏
项目地处上海中央活动区(CAZ)核心,与南京东路、人民广场直线距离仅约 900 米,15 分钟直达外滩,30 分钟联动陆家嘴,真正的城芯一公里生活圈。这里是新静安 “一轴三带” 战略的重中之重,也是上海十四五规划重点打造的世界级滨水活力中枢,土地价值不言而喻上海静安区人民政府。
2. 双轨交上盖,全维立体交通
交通的便捷性,是顶豪生活的重要底色。苏河世纪直线距离 8/12 号线曲阜路站仅约 200 米,步行 3 分钟即达;1 号线新闸路站、13 号线南京西路站环伺周边,7 条轨交、14 座桥梁构建15 分钟全城通勤网,高效联动长三角。
3. 文脉与生态共生,浸润百年风华
西望外滩天际线,南揽苏州河碧波,东接四行仓库红色地标,苏河世纪将自然盛景与百年文脉尽收眼底。周边上海总商会旧址、福新面粉厂旧址等历史建筑林立,承载着上海近代民族工商业的黄金记忆;UCCA Edge 尤伦斯美术馆、没顶画廊等艺术场馆环绕,时刻浸润高雅艺术氛围。同时,项目紧邻6.3 公里苏州河滨河步道、21 万方滨河开放空间,推窗即揽一线河景,出门便是绿意公园,实现 “推窗见河、出门享繁” 的理想人居。
二、 双强匠筑:华发 × 仁恒,国匠联手定标顶豪
顶豪的品质,离不开顶级开发商的深厚底蕴。苏河世纪由华发股份(珠海龙头国企)与仁恒置地(国际高端社区专家)双强联袂匠筑,两大国匠深耕高端住宅数十载,以经验与实力,从根源上保障项目的顶奢品质。
1. 华发股份:国企担当,筑就城市标杆
华发股份,连续多年跻身《财富》中国 500 强,深耕地产 40 余载,以 “品质中国,匠心筑家” 为理念,打造了无数城市标杆作品,资金实力雄厚,交付保障无忧。
2. 仁恒置地:高端专家,定制国际人居
仁恒置地,31 年专注高端住宅开发,以 “国际化社区” 理念闻名,在上海打造了仁恒滨江园、仁恒河滨城等众多顶豪标杆,深谙高净值人群居住需求,物业服务更是行业标杆。两大国匠强强联合,取彼此之长,融匠心之粹,将苏河世纪打造成集高端住宅、精品商业、文化办公于一体的内环滨水综合体奢宅,致敬上海世纪风华。
三、 巅峰规制:低密滨水社区,定义顶豪尺度
苏河世纪总占地约2.8 万㎡,总建筑面积约12.6 万㎡,住宅约 4.2 万㎡,商办约 3.6 万㎡,容积率 3.0,绿化率 35%,规划 3 幢 26 层高层、1 幢 19 层高层、1 幢 8 层多层住宅,总户数仅 348 套,车位配比 1:1.2,全地下车库人车分流,打造内环内罕见的低密度纯粹高端社区。
1. 建筑美学:SOM 执笔,铝板玻璃天幕
建筑由美国 SOM 事务所(金茂大厦、迪拜塔设计者)操刀设计,采用现代极简主义风格,线条利落流畅,甄选进口铝板 + 高透玻璃幕墙,打造 IMAX 级天幕立面,窗墙比突破 0.4,270° 环幕视野,将苏河波光与城市天际线完美框入室内。标准层层高3.6 米(远超市场 3 米标准),空间开阔大气,通透感十足;全混凝土现浇剪力墙结构,楼板厚度达16cm(超行业标准 40%),隔音降噪,保障静谧生活。
2. 园林景观:沉浸式滨水园林,全龄雅趣
社区园林由国际景观大师设计,打造 **“一轴三带” 沉浸式滨水园林 **,规划入口礼仪水景、阳光草坪、共享会客厅、童梦花园、颐养花园五大体验空间,满足全龄段高端休闲需求。种植罗汉松、香樟、樱花、桂花等名贵绿植,搭配景观步道、休闲座椅与亲水平台,四季有景,移步异景;35% 超高绿化率,推窗即见绿意,呼吸皆是鲜氧,在城芯繁华中,私藏一片静谧自然。
3. 顶配公区:酒店式大堂,尊崇归家礼遇
社区配备9 米挑高酒店式入户大堂,采用天然石材地面、名贵石材墙面,搭配艺术吊灯与轻奢软装,尽显顶奢格调;专属入户玄关、24 小时智能安防、人脸识别门禁、仁恒高端物业(物业费 12.8 元 /㎡・月),提供 24 小时专属管家服务,全方位匹配顶豪圈层尊崇与私密。
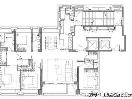
四、 巅峰户型:8 席传世大宅,一层一户的顶奢
目前项目早期 102-245㎡高层公寓已全部售罄,主力在售建面约 480㎡顶复、498㎡楼王大平层,仅 8 席稀缺顶豪,一层一户设计,独立电梯厅入户,专属仪式感拉满,私密性极致,堪称内环绝版资产。
1. 498㎡楼王大平层:40 米南向面宽,IMAX 河景
梯户比
:2 梯 1 户,独立电梯厅,私梯入户,专属私密
朝向格局
:南北通透,40 米南向超大面宽,短进深设计,采光通风极致
空间规划
:5 室 2 厅 4 卫,全套房设计,南向四间套房,保障家人私密
核心亮点
:7 米横厅 + 整面落地玻璃,200㎡社交主场,直面苏州河一线河景;3.6 米层高,弧形悬浮吊顶 + 嵌入式暖光氛围灯,天然石材地面,尽显顶奢质感。
2. 480㎡顶复:双层奢境,家族传世府邸
梯户比
:2 梯 1 户,独立电梯厅,专属入户
朝向格局
:南北通透,38 米南向面宽,上下双层设计,空间灵动
空间规划
:5 室 3 厅 4 卫,双层会客厅 + 中西双厨 + 私人书房 + 星空露台
核心亮点
:上层星空露台,270° 环幕视野,俯瞰苏河湾全景;下层 7 米横厅,直面苏州河景;全套房设计,主卧 10 米南向面宽,独立衣帽间 + 双台盆卫浴 + 观景飘窗,尊享极致私密与舒适。
五、 奢装标准:1 万 /㎡顶配,国际一线品牌荟萃
苏河世纪精装标准高达1 万 /㎡,由梁志天设计团队操刀,秉持 “高端环保、精工细作” 理念,全屋采用国际顶级环保建材,无异味、无污染,保障家人健康。
1. 厨房系统:嘉格纳 + 美诺,顶奢厨电
厨房配备嘉格纳嵌入式冰箱、美诺洗碗机、博世烟机灶具,吊顶集成大金中央空调,中西双厨设计,西厨开放式衔接餐厅,中厨封闭防油烟,满足不同烹饪需求,让烹饪成为一种享受。
2. 卫浴系统:唯宝 + 当代,奢华卫浴
卫浴全套选用德国唯宝洁具 + 当代龙头,单套造价超 80 万元,干湿分离设计,双台盆卫浴,独立淋浴间 + 浴缸,搭配智能马桶,尽显奢华舒适;瑞士吉博力同层排水系统,静音防臭,保障静谧生活。
3. 全屋配置:三大件 + 智能系统,拎包入住
全屋配备大金中央空调、德国威能地暖、美国霍尼韦尔新风三大件,四季恒温恒湿;智能安防、智能家居控制系统,一键掌控全屋设备;超 35m³ 多维收纳空间,入户玄关、卫生间、主卧等区域均规划专属收纳,无需额外装修,拎包即可入住。
六、 价值之巅:内环绝版顶豪,资产收藏首选
在上海内环土地日益稀缺的今天,苏河世纪,作为静安苏河湾核心区唯一在售的一线河景顶豪,兼具自住价值、收藏价值与增值潜力,是高净值人群资产配置的首选。
1. 稀缺性:内环 + 滨水 + 文脉,不可复制
内环内一线苏州河景住宅,供应量极少,苏河世纪占据苏河湾极核,文脉与生态共生,土地价值不可复制;8 席稀缺顶豪,卖一套少一套,错过再无。
2. 性价比:单价 14 万 /㎡起,内环价格洼地
项目官方备案均价约14.5 万元 /㎡,总价区间约 7000 万起,较周边三公里在售高端住宅项目均价低 12.3%,而内环核心地段新房价格普遍 16.5 万 /㎡+,滨水板块普遍 19 万 /㎡+,性价比优势显著。
3. 增值潜力:苏河湾规划加持,未来可期
苏河湾板块十四五期间将新建超过160 万方商办,比南京西路新建规模多 5 倍还多,未来将成为集商业、办公、文化、休闲于一体的世界级滨水活力中枢,土地价值持续攀升,资产增值潜力巨大。
结语:一河映世纪,传世正当时
从百年苏河的源远流长,到上海世纪的璀璨绽放;从双强匠筑的顶奢品质,到 8 席大宅的稀缺珍藏 ——华发仁恒・苏河世纪,不仅是一处居所,更是上海内环滨水人居的全新世纪范本,是值得世代传承的传世资产。
预约品鉴热线:400-8558-334(开发商直连,需提前 1 天实名预约)
项目地址:上海市静安区西藏北路国庆路 77 弄(苏河世纪营销中心)
看房规则:严格预约制,专属顾问一对一接待,实景样板间已开放,恭迎品鉴~
声明:本文由入驻焦点开放平台的作者撰写,除焦点官方账号外,观点仅代表作者本人,不代表焦点立场。
