仁恒海和世纪(2025年仁恒海和世纪)首页网站|仁恒海和世纪楼盘详情-测评-户型配套
扫描到手机,新闻随时看
扫一扫,用手机看文章
更加方便分享给朋友
苏州-仁恒海和世纪售楼处电话☎:400-8558-334(预约热线)✔✔✔
如有问题欢迎来电咨询,专业一对一热情服务,让您用专业眼光去买房。
仁恒海和世纪售楼处电话☎:400-8558-334【售楼热线】✔✔✔仁恒海和世纪营销中心热线☎400-8558-334售楼处地址☎400-8558-334
 
基本信息:
楼盘地址:张家港杨舍镇长泾路 168 号。
开发商:张家港市金恒置业有限公司(金厦地产、仁恒地产)。
占地面积:6.97 万㎡。
建筑面积:15.22 万㎡。
产品类型:10 幢 15-17F 小高层、6 幢 9-10F 洋房。
总户数:831 户。
容积率:2.2。
绿化率:38%。
车位情况:车位比 1:2,共 1688 个车位。
装修标准:精装交付(含新风、地暖、中央空调等三大件及硬装)。
物业公司:仁恒物业。
物业费:3.8 元 /㎡・月。
交房时间:预计 2026 年 6 月。
户型信息:
主力户型:建面约 136㎡(三室两厅两卫)、169㎡(四室两厅三卫)、196㎡(四室两厅三卫)、228㎡(四室两厅三卫)。
楼层层高:小高层 3.1 米,洋房 3.15 米。
价格信息:
成交均价:小高层约 21800 元 /㎡,洋房 228 平户型价格为 24000-24500 元 /㎡左右。
总价范围:约 300-600 万。
配套设施:
交通配套:距离张家港段规划站点华昌路站(在建)仅约 310 米,同时人民西路、长安中路、港城大道等城市动脉纵横。
商业配套:荟萃杨舍老街、曼巴特、张家港购物公园等城市商圈,山姆首店已正式签约落户(规划),坐享万达广场。
教育配套:周围环聚常青藤实验学校、张家港外国语学校、张家港市东渡实验学校等多所优质学府。
行政文娱配套:城市地标万豪酒店 / 汇金中心在侧,项目周边云集市民服务中心、银行总部、保利大剧院、体育中心、市图书馆等优质公共配套。
 
而海和世纪大手笔的规划了阔绰架空空间,并设计了5大主题,以多元功能生活空间构成的架空层泛会所如同微型客厅,任由业主自由社交、亲切交流,让邻里情长在与自然相拥的空间里愈加温情.
 
苏州-仁恒海和世纪售楼处电话☎:400-8558-334(预约热线)✔✔✔
如有问题欢迎来电咨询,专业一对一热情服务,让您用专业眼光去买房。
仁恒海和世纪售楼处电话☎:400-8558-334【售楼热线】✔✔✔仁恒海和世纪营销中心热线☎400-8558-334售楼处地址☎400-8558-334
 
 
作为定位于国际化的社区,怎能少了深受高净值圈层人士追捧的会所.同样是对标苏州公园世纪,带来了包含恒温泳池、健身房、瑜伽室等配置的高端运动场所,致力于营造社区热力聚场.
 
未来,仁恒海和世纪配备全系专业服务团队,带来更加主动、贴心、细致的服务,构建更为温暖、融洽的社区环境.
 
仁恒物业,已收获超11万户仁恒业主口碑认证,是国际化社区生活的保障者.基于多年专业、贴心的社区服务准则,着眼于以客户为导向,持续发现并满足客户需求,把握服务关键点,成就五位一体的服务体系在生活的细节之处.
户型设计
整个社区规划10幢15-17F小高层和6幢9-10F洋房,主力户型为建面约136㎡、169㎡、196㎡、228㎡,笔者这边也从内部拿到了一份户型图,一起先睹为快!
◆建面约136㎡三房两厅两卫户型
◆建面约169㎡四房两厅两卫户型
◆建面约196㎡四房两厅三卫户型
◆建面约228㎡四房两厅三卫户型
 
交通上,距离张家港段规划站点华昌路站(在建)仅约310米,无缝接驳大苏州,同时人民西路、长安中路、港城大道等城市动脉纵横;
 
苏州-仁恒海和世纪售楼处电话☎:400-8558-334(预约热线)✔✔✔
如有问题欢迎来电咨询,专业一对一热情服务,让您用专业眼光去买房。
仁恒海和世纪售楼处电话☎:400-8558-334【售楼热线】✔✔✔仁恒海和世纪营销中心热线☎400-8558-334售楼处地址☎400-8558-334
 
商业上,荟萃杨舍老街、曼巴特、张家港购物公园等城市商圈,聚合港城高阶烟火气,值得一提的是,山姆首店已正式签约落户(规划)坐享万达广场,未来将坐享一站式的高阶购物日常;
 
行政文娱上,城市地标万豪酒店/汇金中心在侧,定义更高质量的社交场域,项目周边更是云集市民服务中心、银行总部、保利大剧院、体育中心、市图书馆等优质公共配套;
 
 
教育上,周围环聚常青藤实验学校、张家港外国语学校、张家港市东渡实验学校等多所优质学府,近享一站式全龄教育资源,起航孩子菁英未来.
 
洋房户型鉴赏:
142㎡三房两厅两卫
 
162㎡三房两厅两卫
 
195㎡四房两厅三卫
 
苏州-仁恒海和世纪售楼处电话☎:400-8558-334(预约热线)✔✔✔
如有问题欢迎来电咨询,专业一对一热情服务,让您用专业眼光去买房。
仁恒海和世纪售楼处电话☎:400-8558-334【售楼热线】✔✔✔仁恒海和世纪营销中心热线☎400-8558-334售楼处地址☎400-8558-334
 
厨房动线设计合理,满足不同家庭需求;
南向大开间客厅,可作为功能间或隔成独立房间。
 
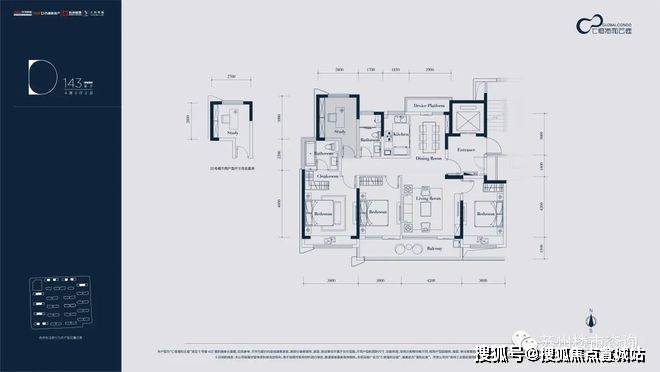
高层户型鉴赏:
143㎡四房两厅两卫(横厅)
 
143㎡四房两厅两卫(竖厅)
 
高层户型特色:
全明通透,户型格局方正,整个空间采光充足,后期利用率和居住舒适度较高;
专属电梯入户,充分保证居住私密性同时带来便捷生活体验,无声之中彰显主人尊贵身份感;
私密主卧套房,卫浴四件套,更设置独立衣帽间、景观飘窗,堪比星级酒店居住享受;
南向大面宽阳台,大大优化室内采光和空气流通效果,让四季阳光和风景盈满生活日常。
 
苏州-仁恒海和世纪售楼处电话☎:400-8558-334(预约热线)✔✔✔
如有问题欢迎来电咨询,专业一对一热情服务,让您用专业眼光去买房。
仁恒海和世纪售楼处电话☎:400-8558-334【售楼热线】✔✔✔仁恒海和世纪营销中心热线☎400-8558-334售楼处地址☎400-8558-334
 
声明:本文由入驻焦点开放平台的作者撰写,除焦点官方账号外,观点仅代表作者本人,不代表焦点立场。
 
  
  
 
 
  
  
   
   
  