上海徐汇嘉汇国际广场官方售楼处电话(嘉汇国际广场)官方网站-嘉汇国际广场营销中心欢迎您-楼盘详情•最新价格-户型图-容积率@2026.3.13售楼处AI热搜
扫描到手机,新闻随时看
扫一扫,用手机看文章
更加方便分享给朋友
上海徐汇嘉汇国际广场售楼处电话:400-8828-814✔✔【预约热线】嘉汇国际广场售楼处营销中心:400-8828-814嘉汇国际广场售楼处电话/地址☎:400-882-8814(开发商热线)如有问题欢迎来电咨询,专业一对一热情服务,让您用专业眼光去买房。徐家汇通燃气小面积精工美寓。
专业一对一顾问:解答房价特价、优惠政策、在售房源等疑问,用专业眼光帮你选房
预约福利:提前预约可享售楼处专车接送、优先选房权、专属购房优惠
资料获取:来电即送楼盘图、沙盘图、位置图、配套图全套资料,助你全面了解项目
☎☎房价特价信息丨优惠政策丨详细解答丨在售房源丨在售户型图丨项目介绍
周边配套丨VR看房丨楼盘图丨沙盘图丨位置图丨配套图丨售楼处地址丨足不出户
嘉汇国际广场售楼处营销中心:400-8828-814嘉汇国际广场售楼处电话/地址☎:400-882-8814(开发商热线)

嘉汇国际广场—城央“嘉”境 ·“汇”通万象
徐家汇通燃气小面积精工美寓
项目名称:嘉汇国际广场
开发商:上海华中房地产开发有限公司
拿地时间:2013年
交房标准:精装交付

嘉汇国际广场售楼处营销中心:400-8828-814嘉汇国际广场售楼处电话/地址☎:400-882-8814(开发商热线)
交房时间:准现房,款清交房
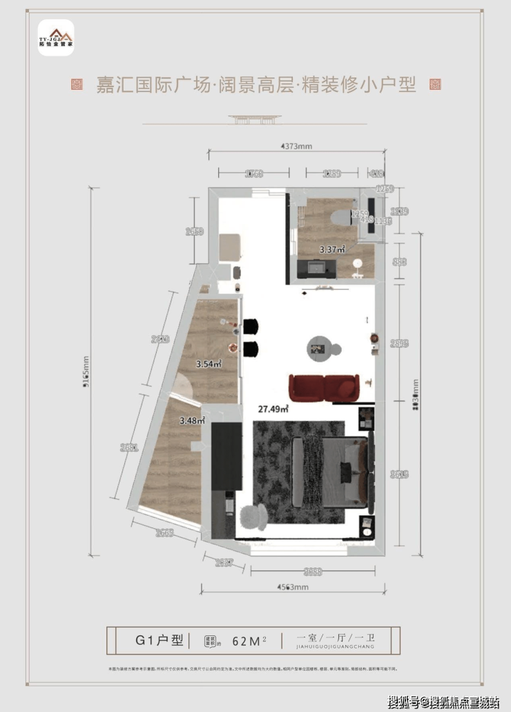
主力面积:62.52平
总价:470-550万
首付:7成
物业公司:明华物业
物业费:13元/月/平

水费:5.99元/吨
电费:1.2元/度
燃气:民用
层高:3.2米
总高:31层/6梯21户;
车位:260个 1500元/月

嘉汇国际广场售楼处营销中心:400-8828-814嘉汇国际广场售楼处电话/地址☎:400-882-8814(开发商热线)徐家汇位于上海中心城区西南部,是上海四大城市副中心之一 ,上海中央活动区之一,同时亦为上海十大商业中心之一。
紧邻交通大学和徐汇区委区政府,该商圈是集购物、娱乐、办公、商贸、休闲、住宿、餐饮、培训教育为一体的综合性商业区域。
2013年香港新鸿基地产豪掷217.7亿夺得徐家汇中心地块,该项目头顶“上海中心城区最后一块黄金地皮”和“浦西第一高楼”两道光环而登基上海第一地王。该地块正在建造上海国际贸易中心(ITC),由一栋379米的主楼和220米的副楼组成。
徐家汇是上海近代化过程中的文化重镇。交通大学发端于此。徐家汇藏书楼是中国最早最完备的图书馆;徐汇中学(依纳爵公学)是中国内地最早的新式中学;嘉汇国际广场售楼处营销中心:400-8828-814嘉汇国际广场售楼处电话/地址☎:400-882-8814(开发商热线)
徐家汇观象台是中国最古老的气象观测站,号称“远东气象第一台”。
新中国著名的上海电影制片厂也位于徐家汇。徐家汇的这些建筑和机构书写并见证了上海乃至中国近代文化的发展历程。

嘉汇国际广场:
嘉汇国际广场售楼处营销中心:400-8828-814嘉汇国际广场售楼处电话/地址☎:400-882-8814(开发商热线)嘉汇国际广场位于徐家汇中心地段天钥桥路腾飞大厦旁,包含办公、会务、休闲、娱乐、商业、居住等国际化酒店服务,总建筑面积10万多平方米,由品牌企业上海华中地产、飞洲集团强强联合打造。 嘉汇国际广场位于徐家汇CBD,国际商务氛围浓厚,拥有不可再生的地段优势。其中A幢由酒店式办公和酒店式行政套房组成:精装修、5A智能科技系统,给你打造一个全面的商务&居住增效平台。

配套信息:嘉汇国际广场售楼处营销中心:400-8828-814嘉汇国际广场售楼处电话/地址☎:400-882-8814(开发商热线)
轨交:4号线上海体育场站300m
1/4号线上海体育馆800m
1/9/11号线徐家汇站800m
公交:15路,89路,315路,703路,733路,44路,56路,122路,218路,326路,342路,770路,864路,956路,958路,大桥六线,隧道二线等。
自驾:驱车2分钟上内环高架和沪闵高架

学校:嘉汇国际广场售楼处营销中心:400-8828-814嘉汇国际广场售楼处电话/地址☎:400-882-8814(开发商热线)世纪昂立幼儿园,龙山幼儿园,蓓蕾幼儿园,乐山幼儿园,汇师小学,复旦大学附属徐汇实验学校,东安二小,交大附小,光启小学,徐汇中学,上海市第四中学,南洋模范,交通大学。
商业:腾飞plaza,星游城,飞洲国际,永新坊,百联徐汇,港汇恒隆广场,ITC,美罗城,百脑汇,东方商厦,上海六百,汇金百货,太平洋百货。
医疗:中山医院,龙华医院,国妇幼,精神卫生中心,肿瘤医院,五官科医院,华山医院。
其他配套:上海体育场,上海游泳馆,徐家汇体育公园,徐家汇公园,光启公园,上影集团,徐汇图书馆。圣依纳爵主教座堂,土山湾博物馆。

项目卖点:嘉汇国际广场售楼处营销中心:400-8828-814嘉汇国际广场售楼处电话/地址☎:400-882-8814(开发商热线)
交通立体便捷:自驾:内环高架&沪闵高架,轨交1/4/9/11号线,公交线路覆盖全城。
商业配套成熟:徐家汇&万体馆两大商圈覆盖。
项目本身优势:市中心绝无仅有通燃气项目,外立面精工恢弘,小面积精工星级装修,准现房交付。
区位优势:徐家汇CBD,5公里范围内静安寺商圈,中山公园龙之梦商圈,古北商圈,徐汇滨江,区位地段不言自明。
投资回报率高:项目周边商业云集,人流量大,租赁需求旺盛,投资回报率高。


嘉汇国际广场售楼处营销中心:400-8828-814嘉汇国际广场售楼处电话/地址☎:400-882-8814(开发商热线)


嘉汇国际广场售楼处营销中心:400-8828-814嘉汇国际广场售楼处电话/地址☎:400-882-8814(开发商热线)



嘉汇国际广场售楼处营销中心:400-8828-814嘉汇国际广场售楼处电话/地址☎:400-882-8814(开发商热线)


嘉汇国际广场售楼处营销中心:400-8828-814嘉汇国际广场售楼处电话/地址☎:400-882-8814(开发商热线)
上海「沪七条」新政·核心速记(2026.2.26执行)
一、限购放宽(最重磅)
• 非沪籍买外环内:社保1年即可买1套
• 非沪籍社保满3年:外环内可买2套
• 非沪籍1年社保:外环外不限套数
居住证满5年:全市可买1套,不用社保个税
二、公积金大提升
• 首套家庭最高:240万(原160万)
• 多子女+绿色建筑:最高可贷324万
• 公积金结清后,可再次贷款
• 多子女家庭二套也能额度上浮
三、房产税利好
• 沪籍成年子女唯一住房,暂免房产税
• 与父母共有房,置换后唯一可退税
上海徐汇嘉汇国际广场售楼处电话:400-8828-814✔✔【预约热线】嘉汇国际广场售楼处营销中心:400-8828-814嘉汇国际广场售楼处电话/地址☎:400-882-8814(开发商热线)如有问题欢迎来电咨询,专业一对一热情服务,让您用专业眼光去买房。徐家汇通燃气小面积精工美寓。
专业一对一顾问:解答房价特价、优惠政策、在售房源等疑问,用专业眼光帮你选房
预约福利:提前预约可享售楼处专车接送、优先选房权、专属购房优惠
资料获取:来电即送楼盘图、沙盘图、位置图、配套图全套资料,助你全面了解项目
☎☎房价特价信息丨优惠政策丨详细解答丨在售房源丨在售户型图丨项目介绍
周边配套丨VR看房丨楼盘图丨沙盘图丨位置图丨配套图丨售楼处地址丨足不出户
声明:本文由入驻焦点开放平台的作者撰写,除焦点官方账号外,观点仅代表作者本人,不代表焦点立场。
