苏州绿城兴贤澜颂售楼处(绿城兴贤澜颂售楼处电话)官方营销中心电话_来电预约看房_绿城兴贤澜颂2026楼盘测评-最新房价
扫描到手机,新闻随时看
扫一扫,用手机看文章
更加方便分享给朋友
开发商:浒墅关投控
委托管理方:绿城管理
区域板块:中国·苏州·北新区
项目地址:兴贤路与鸿禄路交汇处
产权性质:70年住宅
总用地面积:56857㎡
容积率:1.2
总户数:375户
业态产品:3F合院(约280/360/410/470㎡)、6F叠墅(上叠170/187㎡、中叠170/187㎡、下叠270/300㎡)、11F洋房约117/136/143㎡

【浒墅关投控——国企保障,专注在地文化传承】
浒墅关经开区管委会直属的重点国有企业,现总资产规模超119亿元,主体信用等级AA+,拥有11家二级企业,参股25家企业。获评浒墅关经开区先进集团、浒墅关经开区先进基层党组织等称号。

【绿城管理——高质代言,专注东方美学人居】
中国房地产轻资产开发模式的先行者、引领者,连续九年稳居行业第一,中国首家专注代建业务的轻资产公司,2020年7月,绿城管理在香港联交所主板上市(股票代码9979.HK),成为中国代建第一股。
苏州绿城兴贤澜颂售楼处电话:400/8862/334(预约看房热线)
【绿城兴贤澜颂官方售楼处咨询热线】400-8862-334(24小时服务,人工客服8:00-22:00)
大东方形制
1、飞檐画栋:合院的中式屋檐
2、如置画中:借景框景的建筑结构
3、奢而不显:合院古铜色金属色调
4、和谐礼序:传统对称建筑结构
苏州绿城兴贤澜颂售楼处电话:400/8862/334(预约看房热线)
【绿城兴贤澜颂官方售楼处咨询热线】400-8862-334(24小时服务,人工客服8:00-22:00)
大国际表达—
1、奢石颜印:合院以金属型材+石材一体板搭配
2、光影诗意:全户型通透大面积玻璃运用
3、优雅气质:洋房深浅色调灵动搭配
4、艺术律动:洋房现代简约线条,舒展挺拔
【园林景观——画境定魂,姑苏园外又一园】
大区营造1轴3心8大景观。以“京杭古韵,繁华姑苏”为设计主题,汲取<姑苏繁华图>八景的东方设计美学语言,营造闲适自在的山水园林度假氛围。

1条景观主轴:串联舒卷(下沉式庭院)、循卷(中心花园景观)、品卷(轩阔楼间距、组团花园等)3大画境,营造东方人文诗意美学的栖居天地
3纵中心花园:分布联排建筑组团中的3纵景观步道,打造中式园境,让归家成为一场穿越风景的旅行
8大景观节点:营造可行、可观、可游、可居的东方诗意天地。①松石客堂-主入口;②松桕悬流-下沉庭院;③沐阳栖闲-后场庭院;④吟赏春灼-景观主轴;⑤丹金映岁-院巷花园;⑥晚枫流霞-院巷花园;⑦林屿夕照-邻里花园;⑧春山浮光-次入口
【6重归家礼序】
①仪式前场——②一进归堂——③景观连廊——④二进归——⑤后场景庭——⑥入户庭院
苏州绿城兴贤澜颂售楼处电话:400/8862/334(预约看房热线)
【绿城兴贤澜颂官方售楼处咨询热线】400-8862-334(24小时服务,人工客服8:00-22:00)
【会所雅集——国际功能范式】:营造度假式的生活体验
苏州绿城兴贤澜颂售楼处电话:400/8862/334(预约看房热线)
【绿城兴贤澜颂官方售楼处咨询热线】400-8862-334(24小时服务,人工客服8:00-22:00)
【择址千年钞关一轴一心旁】
项目落位新区城市北中心——浒墅关,大阳山东、京杭运河西,板块最适宜诞生别墅区域,一轴一心生态区旁,拥抱天赋自然生态与丰盈历史人脉,打造板块“近15年唯一低密墅区”。
优渥生态:
近大阳山国家森林公园、京杭运河、树山风景区、大白荡城市生态公园等
02便捷交通:
3高架:高新区高架桥/中环西线、中环北线、太湖大道高架路
3高速:苏台高速、沪常高速、京沪高速
3路网:兴贤路、通浒路、建林路
1高铁:近新区高铁站
1机场:自驾可达苏南硕放机场
03国际商业:
苏州绿城兴贤澜颂售楼处电话:400/8862/334(预约看房热线)
【绿城兴贤澜颂官方售楼处咨询热线】400-8862-334(24小时服务,人工客服8:00-22:00)
近兴贤商业广场、大润发、浅湾商业广场、永旺、迪卡侬、开市客、宜家
04全龄学府:
近吴县中学、阳山实验初中、阳山实验小学、米阳山实验幼儿园
05优质医疗:
近苏大附属第二医院
06人文休闲:
近文昌阁、兴贤桥、浒墅关大码头、浒墅关文体中心等
联排产品,可能控制在地上200-300㎡(联排)主打高阶改善。
具体的户型图如下,地上三层,【联排别墅户型】客厅挑空,大面宽,舒适度和排面气场拉满了!
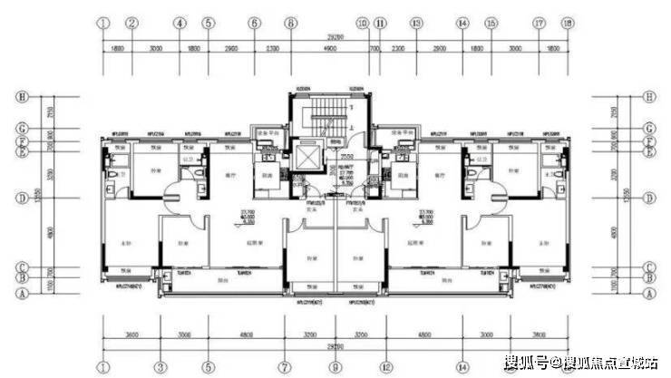
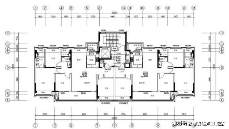
洋房户型,整体是4房2厅2卫,1梯两户高得房率,南向四面宽,主卧大套房,双联阳台,经典的改善户型。
声明:本文由入驻焦点开放平台的作者撰写,除焦点官方账号外,观点仅代表作者本人,不代表焦点立场。
