美兰天地官方售楼处Ai✦热搜电话(美兰天地)首页官方网站-美兰天地营销中心欢迎您-楼盘详情·最新价格-户型图-容积率@2026.3.25售楼处已认证
扫描到手机,新闻随时看
扫一扫,用手机看文章
更加方便分享给朋友
上海宝山美兰天地售楼处电话:400-8828-814✔✔【预约热线】美兰天地售楼处营销中心:400-8828-814美兰天地售楼处电话/地址☎:400-882-8814(开发商热线)如有问题欢迎来电咨询,专业一对一热情服务,让您用专业眼光去买房。
专业一对一顾问:解答房价特价、优惠政策、在售房源等疑问,用专业眼光帮你选房
预约福利:提前预约可享售楼处专车接送、优先选房权、专属购房优惠
资料获取:来电即送楼盘图、沙盘图、位置图、配套图全套资料,助你全面了解项目
☎☎房价特价信息丨优惠政策丨详细解答丨在售房源丨在售户型图丨项目介绍
周边配套丨VR看房丨楼盘图丨沙盘图丨位置图丨配套图丨售楼处地址丨足不出户
美兰天地售楼处营销中心:400-8828-814美兰天地售楼处电话/地址☎:400-882-8814(开发商热线)
美兰湖 果岭上
城市果岭·光之建筑·私人宫馆
大面积玻璃墙体城市商务行宫
建面约550~820㎡ 共34栋
总价2000-2500万
美兰天地售楼处营销中心:400-8828-814美兰天地售楼处电话/地址☎:400-882-8814(开发商热线)美兰天地位于宝山美兰湖板块,开发商上海美兰湖房地产开发有限公司;项目占地面积约15.3万㎡、建筑面积约9.3万㎡、绿化率50%、容积率仅0.4,由34栋别墅组成
项目位于美兰湖高尔夫球场内,主力产品:约550㎡、620㎡、830㎡,总价约1800-2500万,不限购。
美兰天地采用现代极简建筑风格,外立面采用大面积玻璃,做到270°的景观视野,给到客户“室内随心设计,室外无界景观”的独特感受。
户型品鉴
建筑面积约 550㎡光之空间
美兰天地售楼处营销中心:400-8828-814美兰天地售楼处电话/地址☎:400-882-8814(开发商热线)
(样板间实景图)
(样板间实景图)
(样板间实景图)
(样板间实景图)
(样板间实景图)
(样板间实景图)
A产品|整栋建筑面积约560㎡
(效果图)
A产品一层平面图|建筑面积约168㎡
(户型平面图)
此户型对应编号为137幢56号1F,具体户型会因装修、楼栋、楼层、单元、朝向等差别,使局部结构、面积、部分窗扇位置及大小、墙壁大小及电器安装位置等略有不同。
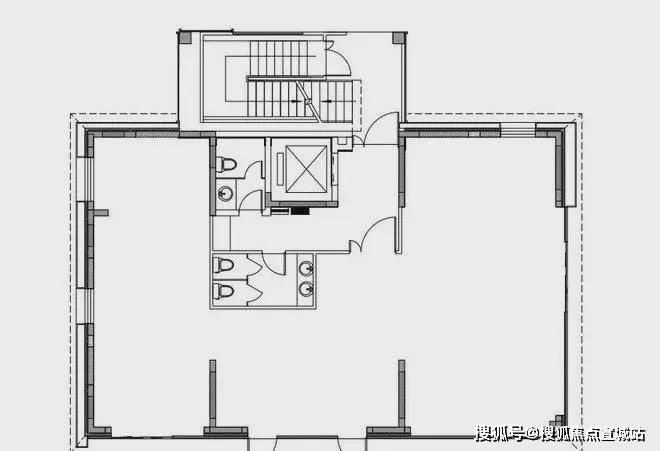
A产品二层平面图|建筑面积约194㎡
(户型平面图)
美兰天地售楼处营销中心:400-8828-814美兰天地售楼处电话/地址☎:400-882-8814(开发商热线)此户型对应编号为137幢56号2F,具体户型会因装修、楼栋、楼层、单元、朝向等差别,使局部结构、面积、部分窗扇位置及大小、墙壁大小及电器安装位置等略有不同。
A产品三层平面图|建筑面积约194㎡
户型会因装修、楼栋、楼层、单元、朝向等差别,使局部结构、面积、部分窗扇位置及大小、墙壁大小及电器安装位置等略有不同。
C产品五层平面图|建筑面积约173㎡
(效果图)
(户型平面图)
此户型对应编号为150幢 86号5F,具体户型会因装修、楼栋、楼层、单元、朝向等差别,使局部结构、面积、部分窗扇位置及大小、墙壁大小及电器安装位置等略有不同。
D产品四层平面图|建筑面积约161㎡
(效果图)
(户型平面图)
美兰天地售楼处营销中心:400-8828-814美兰天地售楼处电话/地址☎:400-882-8814(开发商热线)
【上置鸿坤·美兰天地】
果岭之上 光之别墅
美兰湖 果岭上
城市果岭·光之建筑·私人宫馆
大面积玻璃墙体城市商务行宫
建面约550~820㎡ 共34栋
总价约1800-2500万
上海「沪七条」新政·核心速记(2026.2.26执行)
一、限购放宽(最重磅)
• 非沪籍买外环内:社保1年即可买1套
• 非沪籍社保满3年:外环内可买2套
• 非沪籍1年社保:外环外不限套数
居住证满5年:全市可买1套,不用社保个税
二、公积金大提升
• 首套家庭最高:240万(原160万)
• 多子女+绿色建筑:最高可贷324万
• 公积金结清后,可再次贷款
• 多子女家庭二套也能额度上浮
三、房产税利好
• 沪籍成年子女唯一住房,暂免房产税
• 与父母共有房,置换后唯一可退税
上海宝山美兰天地售楼处电话:400-8828-814✔✔【预约热线】美兰天地售楼处营销中心:400-8828-814美兰天地售楼处电话/地址☎:400-882-8814(开发商热线)如有问题欢迎来电咨询,专业一对一热情服务,让您用专业眼光去买房。
专业一对一顾问:解答房价特价、优惠政策、在售房源等疑问,用专业眼光帮你选房
预约福利:提前预约可享售楼处专车接送、优先选房权、专属购房优惠
资料获取:来电即送楼盘图、沙盘图、位置图、配套图全套资料,助你全面了解项目
☎☎房价特价信息丨优惠政策丨详细解答丨在售房源丨在售户型图丨项目介绍
周边配套丨VR看房丨楼盘图丨沙盘图丨位置图丨配套图丨售楼处地址丨足不出户
声明:本文由入驻焦点开放平台的作者撰写,除焦点官方账号外,观点仅代表作者本人,不代表焦点立场。
