2025杨浦安德里(营销中心)网站-销售中心(售楼处)-楼盘欢迎您-地址-价格-户型-小区环境-楼盘详情-交房时间-周边配套-售楼处电话

搜狐焦点宣城站 2025-10-05 17:50:50
用手机看
扫描到手机,新闻随时看

扫一扫,用手机看文章
更加方便分享给朋友

杨浦安德里预约咨询热线:400-8851-337☎售楼处推广内环内滨江18栋独立公馆,主打墅级资产,定位高端,交通便利,距黄浦江仅300米,稀缺资源,限购。

杨浦安德里售楼处电话:400-8851-337

安德里ANDELI

售楼处电话:400-8851-337

内环内 杨浦滨江 无限墅级资产

建筑面积约300-600㎡公馆,仅18席,不限购

【基本信息】

所属区位:内环内中央活动区 黄浦江边300米

建筑形态:类独栋公馆

总户数:18栋

面积段:地上建筑面积约300-600㎡ 实际使用面积约580-1200㎡

总建筑面积:约2.6万㎡

杨浦安德里售楼处电话:400-8851-337

案场预约制 看房需提前来电预约登记

请务必致电与销售确认时间,避免空跑,感谢您的支持

● 内环内面积占上海总面积1.8%

● 内环内滨江仅凭10.2公里掌握超90%核芯资源

● 内环内滨江黄浦江岸300米内,18墅将成孤品

(示意图)

15.5公里杨浦滨江 驱动上海历史进程

滨江南段,杨浦滨江的门户核芯,“世界客厅、新质秀岸”。

(示意图)

世界客厅 新质秀岸 全球与江同辉

● 3大千亿级产业集群

● 8000+数字经济企业

● 3200亿+软件和信息服务业规上企业总营收

● 美团、抖音、b站、星空华文等头部名企阵地

(示意图、数据来源:上海杨浦官微)

杨浦滨江CAZ 肇启新的百年

● 人民城市首倡地,迈入国际时区

● 2019年,总书记考察杨浦滨江时首次提出“人民城市人民建,人民城市为人民”

● 上海市2035总体规划:杨浦滨江南段被划入CAZ中央活动区,寄予厚望

(示意图)

内环内·杨浦滨江·无限墅级资产

南——杨树浦路 北——广州路 东——渭南路 西——眉州路

杨浦安德里售楼处电话:400-8851-337

案场预约制 看房需提前来电预约登记

请务必致电与销售确认时间,避免空跑,感谢您的支持

18栋独立思想18个大家姓氏

地上建筑面积约300-600㎡公馆,面宽约13.3m ,层高3.6-4m。

杨浦安德里售楼处电话:400-8851-337

案场预约制 看房需提前来电预约登记

请务必致电与销售确认时间,避免空跑,感谢您的支持

私园重现当代 院落有双风华无双

最大约289㎡南北双院,一院一境,梦回沪上名园风姿。

(效果图)

灵动敞阔空间 款待百般享法

● 高度留白设计

● 随心自由分割

● 定制行政、宴请多功能场域

(效果图)

泊车马亦泊身位 至高礼遇恭候凯旋

● 地库全明采光

● 超规格景观3车位

(效果图,车位数量因楼栋位置、规划标准等因素存在差异,最终以实际交付为准)

一环 一江 一栋

● 内环内新中心 上海发展所指

● 杨浦滨江CAZ 坐拥百年辉煌

● 海派红砖风貌 梅派花园里弄

● 稀有独门独院 约40-289㎡南北双院

(效果图)

全能商墅

● 灵动空间布局 匹配峯层格局

● 约13.3m面宽 3.6-4m层高

● 威卢克斯天窗 拥揽无双视界

● 超规格三车位 地库全明采光

(效果图)

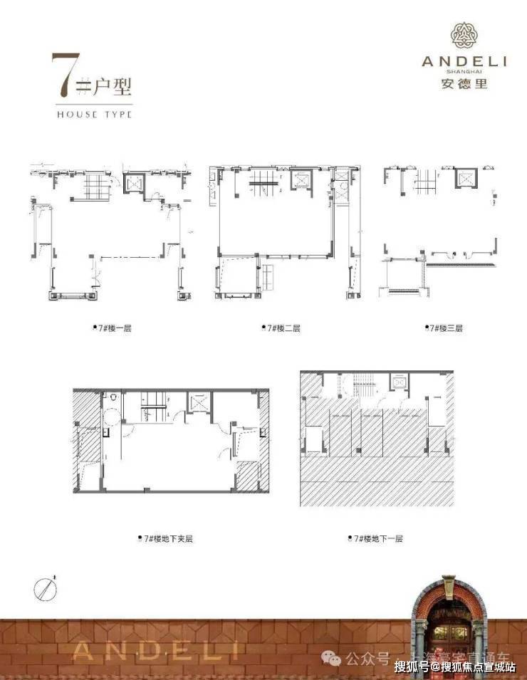
户型图

杨浦安德里售楼处电话:400-8851-337

案场预约制 看房需提前来电预约登记

请务必致电与销售确认时间,避免空跑,感谢您的支持

如有问题欢迎来电咨询,来电即可享受买房优惠!

预约来电尊享购房优惠,可预约案场内部销售人员,专业一对一热情服务,让您用专业眼光去买房。

预约咨询热线:400-8851-337☎

Welcome to call the tasting appointment hotline: 400-8851-337

Sales Office reservation center: 400-8851-337.Make an appointment to enjoy the internal benefits, the developer's case sales one-to-one warm service, do not charge any fees to see the house!

楼盘项目全面介绍,本电话为开发商提供线上预约售楼电话,楼盘项目全面介绍(包含楼盘简介,均价,房价,现房,期房,别墅,叠墅,大平层,价格,楼盘地址,户型图,交通规划,备案价,备案名,项目配套,样板间,开盘时间,认筹时间,楼盘详情,售楼处电话,最新消息,最新详情,周边配套,一房一价,最新进展等详情咨询)楼盘详情丨价格丨更多优惠丨机不可失丨欢迎致电丨诚邀品鉴!售楼处位置丨特价房丨工抵房丨剩余房源丨户型图丨最新消息丨免责声明:将文章内容综合来源于网络、只作分享,版权归原作者所有!!如有侵权,请联系我们,我们第一时间处理如有问题欢迎来电咨询,专业一对一热情服务,让您用专业眼光去买房。如果您想了解更多楼盘详情,欢迎提前预约拨打

声明:本文由入驻焦点开放平台的作者撰写,除焦点官方账号外,观点仅代表作者本人,不代表焦点立场。