2025嘉定新城·御花园(营销中心)官方网站-嘉定新城·御花园销售中心(售楼处)楼盘欢迎您-春申阳光地址-价格-户型-交房时间-周边配套-售楼处电话

搜狐焦点宣城站 2025-08-31 13:55:59
用手机看
扫描到手机,新闻随时看

扫一扫,用手机看文章
更加方便分享给朋友

嘉定新城御花园售楼处电话☎:400-8862-334【售楼处预约热线】(一对一热情服务)以低密、精装、生态宜居为卖点,价格低至326万起,吸引高性价比购房者。

嘉定新城·御花园

售楼处电话☎:400-8862-334【售楼处预约热线】(一对一热情服务)

楼盘项目全面介绍,本电话为开发商提供线上售楼电话,楼盘项目全面介绍(包含楼盘简介,房价,价格,楼盘地址,户型图,交通规划,备案价,项目配套,楼盘详情,售楼处电话,最新消息,最新详情,周边配套,最新进展等详情咨询)

看房请务必提前致电销售确认时间,只有预约客户才能享受开发商提供的内部优惠以及专属的老客户推荐奖励!我们提供专业的一对一热情服务,助您以专业视角挑选理想的房产。

在新一轮的新房定价中,五个新城宅地的全新联动价大多在5万/㎡以上,松江新城甚至达到约6.3万/㎡。

相比之下,通勤方便,配套成熟的嘉定新城,目前仍有价格在5万以内的新房,高性价比肉眼可见!

区位示意图,数据来源网上房地产

聚焦嘉定新城,你会发现嘉定新城御花园真的超值,高层+叠墅的低密组合,全精装交付,总价低至约326万起!

嘉定新城御花园东面去年土拍的地块,容积率2.3,联动价反而更高;

今年热度较高的1批次土拍地块,同样价格比嘉定新城御花园更高,容积率高达2.0,居住舒适度完全不在一个层次!

区位示意图,数据来源网上房地产

嘉定新城御花园容积率低至1.74,整个项目四面环水,两面紧邻绿化&规划公园,南面是天然河道鸡鸣塘,北面紧邻练祁公园,西面更有嘉北郊野公园。

对于嘉定新城御花园的业主而言,未来推窗就能看到上海庞大且独具特色的生态绿肺,日常的逸趣也被时尚的绿意填满,整体的居住环境舒适且静谧。

区位示意图,以实际为准

谁说刚需不能追求舒适度?

嘉定新城御花园临水而居,城市绿肺在旁,建面约103㎡精装3房2卫,得房率高达约80%,是400万左右赛道没有对手的高舒适度选择!

项目建面约147-157㎡精装叠墅,更是嘉定新城错过不再有的终极改善作品!

嘉定新城御花园四面环水,是高层+叠墅的滨水墅区,均为精装交付,所带来的居住体验,是普通高层社区所不能比拟的。

住进嘉定新城御花园社区中,能以更低的生活成本,享受到更高的居住舒适度。

嘉定新城御花园效果示意图

项目由上海佳新恒晟置业有限公司开发,隶属于上海嘉定新城发展有限公司,这是一家实力雄厚的本地国企!

上海嘉定新城发展有限公司成立于2004年8月,是一家集开发建设、资产经营、产业招商功能和投融资平台于一体的功能性国有企业。

二十年耕耘,新城公司坚持“高起点规划、高品质建设、高内涵发展”理念,以“打造西上海名片”为愿景,已获“中国最佳生态宜居城市”、“中国人居环境范例奖”等荣誉。

示意图

嘉定新城·御花园

嘉定新城·御花园售楼处电话:400-8862-334【售楼中心】

咨询高峰期请耐心等待,预约来电尊享内部优惠,专业一对一热情服务,让您用专业眼光去买房。

众所周知,人们居住改善的过程本质就是容积率变小的过程,低容积率能享受的居住体验感和高容积率完全不是一个层次!

有研究数据表明,每降低0.1的容积率,以下各项居住体验都会有明显提升!

低容积率往往能带来更高阶的产品,从高层到洋房再到墅居,不仅仅是舒适度的提升,而是居住模式的跃迁,甚至是人生层次的进阶!

低容积率地块是实打实的区域价值高度,俨然是板块天生的塔尖住宅,而在有联动价公示期间,这种领先已然被量化。

比如奉贤新城均价普遍在4.2-5万/㎡,而容积率1.2的中建项目联动价高达约5.5万/㎡;

再比如松江新城均价普遍在5.3-6万/㎡,而容积率1.2的国贸&松江交投项目项目联动价高达约6.3万/㎡。

嘉定新城御花园从土地天赋开始,价值就区隔了400万左右其它新盘。

项目容积率仅1.8,由9幢6F叠加别墅+9幢17F墅境高层组成,叠墅东西两侧临河分布,整体高低错落布局,采光佳,视野好。

项目因地制宜,结合低密度,四面滨水的特性,将更多土地还给社区、花园,打造低密静谧的墅质岛居,居住体验遥遥领先高层产品。

项目是现代典雅主义建筑风格,外立面以米黄色真石漆为主,结合局部干挂石材,配以精致的线脚,深色的建筑基座,透明隔热玻璃、深灰色断桥铝窗框等,在立面上形成层次感。

整体从外至内构建了“城市道路—社区入口广场—景观道路—风景厅室”的四重景观体系,创造了舒适休闲的空间氛围。

嘉定新城·御花园

嘉定新城·御花园售楼处电话:400-8862-334【售楼中心】

咨询高峰期请耐心等待,预约来电尊享内部优惠,专业一对一热情服务,让您用专业眼光去买房。

嘉定新城御花园效果示意图

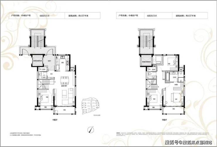
明星户型设计+超高得房率+超大附加空间,

主推建面约103㎡3房&约147-157㎡叠墅,不容错过!

嘉定新城御花园主推建面约103㎡精装3房2卫,建面约147-157㎡精装叠墅。

其中,3房产品得房率高达约80%,性价比&产品力非常强,是同价位段中的佼佼者!

不得不说,这个建面约103㎡3房2厅2卫,能满足业主从二人世界到三口之家,再到二胎家庭的全生命周期需求。

有进阶改善需求的朋友,还可以选择建面约147-157㎡精装叠墅,主力总价700万级,真正做到了有天有地有星空,超享空间!

叠加别墅分上中下叠,下叠配备层高约5.5米的地下室,上叠的南北侧配有露台,中叠电梯独立入户,价格更具性价比。

值得一提的是,项目叠墅同样是精装交付,采用国际知名品牌,日立的中央空调、威能的地暖两大件配齐,还采用了杜拉维特、汉斯格雅洁具龙头,西门子的油烟机的油烟机和灶台、蒸烤一体机等,整体装修品质有保障。

具体户型图如下:

嘉定新城·御花园

嘉定新城·御花园售楼处电话:400-8862-334【售楼中心】

咨询高峰期请耐心等待,预约来电尊享内部优惠,专业一对一热情服务,让您用专业眼光去买房。

先说嘉定新城核心区。

嘉定新城立足于服务全市“四大功能”和“五个中心”建设大局,发挥沪宁发展轴上的枢纽节点作用,建设国家智慧交通先导试验区。

全力打造远香文化源、嘉宝智慧湾、西门历史文化街区,成为科技创新高地、智慧交通高地、融合发展高地、人文教化高地和具有较强辐射带动作用的新城样板。

远香湖中央活动区是整个嘉定新城的门面和“城市会客厅”。

规划示意图

这里落地了整个嘉定更完善、更高端、更集中的配套资源、大型商业、医院、学校、公园、文化地标等配套应有尽有。

当下有远香湖、保利大剧院、嘉定图书馆老三大件配套以及地标级超高层建筑凯悦酒店;未来将建设文化环、未来塔、活力谷等城市“新三件套”。

有东云街、西云楼、嘉定宝龙广场、嘉定大融城、中信泰富万达广场等商业,更有保利大剧院,嘉定图书馆,嘉定文化馆等人文地标。

嘉定新城实景图

再看嘉定老城。

项目距离嘉定老城直线距离约3km,从城市界面到配套体量,再到需要时间去沉淀的烟火气,嘉定老城都表现非常出色。

除了罗宾森、大润发等街区商业以外,还有古典园林区和传统商业区,汇集孔庙、汇龙潭公园、秋霞圃、紫藤园等景点。

嘉定老城实景图

再看项目周边的配套。

商业方面:项目周边约1.5公里内就有红土天阶,新城星汇广场两大商业体,还可以前往嘉定新城、老城享受更高阶的配套。

教育资源方面:项目东侧规划多幅教育用地,规划有九年一贯制学校、高中、幼儿园

(免责声明:以上教育资源整理仅代表楼盘与学校的距离,该房屋所在项目暂未划分学区,开发商不对项目交房后所属学区、学校做任何承诺。教育资源分配或学校/学区划分以及学校的具体招生规则等请以政府相关主管部门、教育机构公开的最新信息为准。)

医疗配套方面:项目周边有三甲医院--瑞金医院北院、上海肿瘤(质子)中心及配套医院、瑞金医院北院二期以及上海中医院嘉定新院。

区位示意图,以实际为准

换句话说,对于嘉定新城御花园的业主来说,当下他们已拥有同级别更好的完善配套,而未来更将收获磅礴的发展势能。

嘉定新城·御花园

售楼处电话☎:400-8862-334【售楼处预约热线】(一对一热情服务)

楼盘项目全面介绍,本电话为开发商提供线上售楼电话,楼盘项目全面介绍(包含楼盘简介,房价,价格,楼盘地址,户型图,交通规划,备案价,项目配套,楼盘详情,售楼处电话,最新消息,最新详情,周边配套,最新进展等详情咨询)

看房请务必提前致电销售确认时间,只有预约客户才能享受开发商提供的内部优惠以及专属的老客户推荐奖励!我们提供专业的一对一热情服务,助您以专业视角挑选理想的房产。

声明:本文由入驻焦点开放平台的作者撰写,除焦点官方账号外,观点仅代表作者本人,不代表焦点立场。