2023上海宝山大华锦绣四季楼盘资料丨大华锦绣四季丨详情丨交通丨户型丨配套
扫描到手机,新闻随时看
扫一扫,用手机看文章
更加方便分享给朋友
上海宝山【大华锦绣四季】
售楼处热线:400-9696-224
欢迎来电咨询!可预约销售人员,专业一对一热情服务,让您用专业眼光去买房。
大华锦绣四季 -澜悦
北上海 主城区 三轨交
约90万方宜居大城核心位置
大华锦绣系3.0升级之作
「大华锦绣四季·澜悦」

项目主力户型建面约99-140㎡3-4房,户型上全部采用南向大开间横厅设计,最大宽度约7米。

房源楼栋示意图
建面约99㎡3房2厅2卫
横厅宽度约5.1米

建面约120㎡4房2厅2卫
横厅宽度约6.2米

建面约140㎡3+1房2厅2卫
横厅宽度约7米

建筑设计上,四期延续了大方、典雅、时尚的现代简约风格,立面由米黄色涂料、局部铝板和石材组成,整体线条感强,简约而有质感,优雅自成经典,树立彰显城市品位的标杆社区形象。

小区全人车分流,合理规划车行、人行动线,保证业主的出行安全,业主车辆可通过顾北路和宝荻路两个入口快速到达到地库口,享受轻松、高效的归家体验,车位配比高达约1:1.1,充分满足业主需求。

在景观设计上,四期澜悦充分利用了地块周边城市绿地资源,结合所在位置、建筑风格特征以及客户的品质追求,以“树说四季”为设计理念打造品质感的沉浸式现代居所,让人与景观对话中寻求一种健康、舒适的美学生活体验。
以树为点,以道路为线,以场地为域,澜悦结合大华“五感社区”理念,焕新社区内部的自然生活方式。绿地率达到约35%,拥有中央景观会客厅和环形跑道,充分满足都市菁英栖居自然森意的人居梦想。

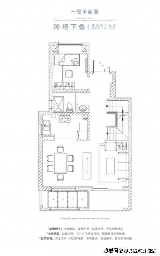
129㎡下叠户型图


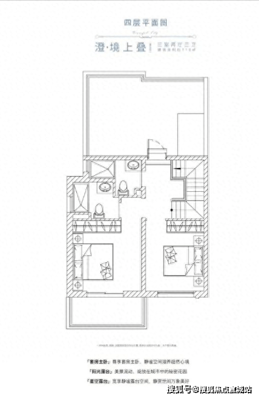
118㎡上叠户型图


大华锦绣四季售楼处电话:400-9696-224位于上海主城区新顾城板块,项目周边四轨交环绕,1、7、15、18号线均不远;自驾则有外环路、沪太路、蕴川公路等主要交通干道通往市区方向。
项目是一座90万方的“大城”,全方位的生活配套一应俱全。

大华锦绣四季售楼处电话:400-9696-224周边拥有约20万㎡生态绿地(规划绿地及项目绿地):约8万㎡的河滨社区公园(规划)、约2万㎡的历史人文绿色商业组团(规划)及近1万㎡的私境花园(一期项目绿化)。加上不远处的顾村公园,生态环境好感值爆表。
教育方面,大华锦绣四季售楼处电话:400-9696-224预留约12万㎡自建教育集群地块,规划有从幼儿园到中学的全套教育体系,准备新建7所学校,扩建3所学校。此外,项目周边有12年一贯制宝山世界外国语学校、9年一贯制上海民办华二宝山实验学校。(对口学区以交付后政府划分为准)

商业方面,大华锦绣四季售楼处电话:400-9696-224自带一块建筑面积约2万方的文保商办地块——顾村新天地(代建)。未来将打造成板块内标志性的商业中心,与7号线沿线龙湖北城天街、绿地正大缤纷城等商业体为北上海人民购物带来便利。
此外,大华锦绣四季家门口还将打造体育中心,提供游泳馆、篮球场、羽毛球场、健身房、台球室、乒乓球室、瑜伽房等多维运动场所。

声明:本文由入驻焦点开放平台的作者撰写,除焦点官方账号外,观点仅代表作者本人,不代表焦点立场。
