越秀外滩樾售楼处电话→越秀外滩樾售楼中心电话→2026越秀外滩樾楼盘百科→楼盘网站→楼盘测评→售楼中心电话→楼盘百科→24小时热线电话→楼盘详情
扫描到手机,新闻随时看
扫一扫,用手机看文章
更加方便分享给朋友
上海-越秀外滩樾售楼处电话☎:400-8558-334(预约热线)✔✔✔
如有问题欢迎来电咨询,专业一对一热情服务,让您用专业眼光去买房。
越秀外滩樾售楼处电话☎:400-8558-334【售楼热线】✔✔✔越秀外滩樾营销中心热线☎400-8558-334售楼处地址☎400-8558-334

地块位于虹口区嘉兴路街道,区域居住氛围浓厚,配套成熟。
【立体交通|无界畅达世界擎动城市脉搏】
全城畅达:
约360米新建路隧道(直线距离),快速直达陆家嘴CBD;
约670米外滩隧道(直线距离),直达外滩金融商业街以及老码头;
约150米北横通道(直线距离)贯通全城,快速通达虹桥机场/虹桥火车站;
约2.4公里大连路隧道(直线距离),直达浦东东方路、世纪大道、八百伴商业圈
四轨交汇:
轨交4/10号线海伦路站约850m(直线距离),3站南京东路,6站新天地。
上海-越秀外滩樾售楼处电话☎:400-8558-334(预约热线)✔✔✔
如有问题欢迎来电咨询,专业一对一热情服务,让您用专业眼光去买房。
【核心商圈|高阶商业配套国际摩登领潮】
商业配套方面项目约2公里内,多元繁华构筑封面商业圈
北外滩商圈直线距离约500米;
外滩商圈直线距离约1000米;
陆家嘴商圈直线距离约1500米;
瑞虹商圈直线距离约900米;
同时近距白玉兰广场、瑞虹新城太阳宫、北外滩来福士等高端商业地标,集购物、餐饮、文化、娱乐、艺术于一体,奢享浦西的顶级国际生活圈。
(*商圈距离示意图,仅供参考。本区位图仅用于本小区地理方位示意,非实际地图,相关信息并非按比例缩放。)
【高端医疗|优质三甲医院护航健康生活】
三公里内四所三甲医院,全生命周期护航
新华医院(儿科专长);
复旦大学附属妇产医院;
上海市第一人民医院;
上海东方医院(血管外科专长);
越秀外滩樾
【学府荟萃|全龄教育培优一脉书香传承】
教育资源(约1公里范围内)
东余杭路第一小学、第二中心小学、四川北路第一小学(重点)
继光高级中学、澄衷中学(区重点)
华东师范大学一附中、市重点高中上海外国语大学附属外国语学校东校
2.5公里北外滩滨江绿地(约800m直达),四川北路公园、和平公园、鲁迅公园3大公园环伺,于滨江和城市低密绿芯之间,肇启当代诗意生活传序。
上海-越秀外滩樾售楼处电话☎:400-8558-334(预约热线)✔✔✔
如有问题欢迎来电咨询,专业一对一热情服务,让您用专业眼光去买房。
百年前的海派工艺被重译于当代,构筑“风貌之上”的豪宅标本。
清水红砖×八种非遗拼接工艺
装饰窗楣×同源张爱玲故居
弧形韵线×邬达克式建筑曲线
岩石山墙×巴洛克与东方融合之美

程绍正韬×李玮珉东方美学与现代简约的双大师合作,从人本主义出发,以“风貌的当代表达”打造别墅新语境。
巷弄新生:双拼、三拼天地私享
美学新生:远东第一豪宅立面再现
材质新生:百年红砖、窑变砖、幻彩奢石定制
空间新生:私宴厅、泛会所、艺术会客厅

🏞山水庭院·天光泳池
山水庭院:借鉴足立美术馆造园手法,移石入境、借光造景
天光泳池:以罗马会场为原型,融合古典与山水诗意,实现“人在画中游”的静谧境界

上海-越秀外滩樾售楼处电话☎:400-8558-334(预约热线)✔✔✔
如有问题欢迎来电咨询,专业一对一热情服务,让您用专业眼光去买房。
🏢国匠越秀·与上海共卓越
42载越秀地产,中国第一代商品房缔造者,千亿级综合开发集团。曾打造广州国际金融中心、二沙岛豪宅群等地标作品。
2024中国房企综合实力TOP9(数据来源:亿翰智库)

仅48套低密风貌别墅(双拼/三拼),地上3层、地下2层,层高3.2-3.9米、地下挑空6.15米,户户带30-80平私家庭院、观景露台。建面约238平、305平、318平、338平米,售价19.5万/平;
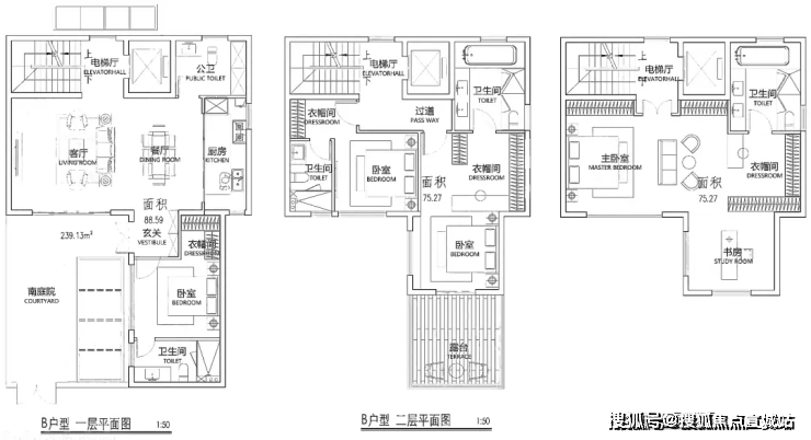
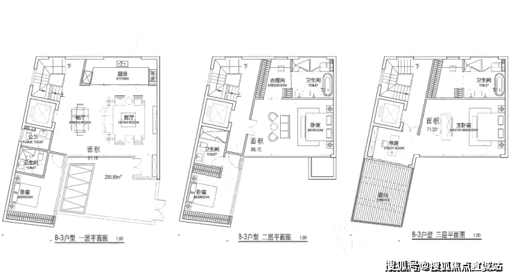
户型图参考如下:
户型图如下:
(过程稿仅供参考,最终以实际为准)
236.25㎡A户型:

239.13㎡B户型:

250.89㎡B-3户型:

上海-越秀外滩樾售楼处电话☎:400-8558-334(预约热线)✔✔✔
如有问题欢迎来电咨询,专业一对一热情服务,让您用专业眼光去买房。
C户型:

291.42㎡D户型

最新实景图如下:


上海-越秀外滩樾售楼处电话☎:400-8558-334(预约热线)✔✔✔
如有问题欢迎来电咨询,专业一对一热情服务,让您用专业眼光去买房。

上海-越秀外滩樾售楼处电话☎:400-8558-334(预约热线)✔✔✔
如有问题欢迎来电咨询,专业一对一热情服务,让您用专业眼光去买房。
越秀外滩樾售楼处电话☎:400-8558-334【售楼热线】✔✔✔越秀外滩樾营销中心热线☎400-8558-334售楼处地址☎400-8558-334
声明:本文由入驻焦点开放平台的作者撰写,除焦点官方账号外,观点仅代表作者本人,不代表焦点立场。
