滨江松川境(滨江松川境)首页网站丨滨江松川境房价_户型图_地址_楼盘详情 - 环境 - 户型价格 - 地址 - 楼盘详情 - 配套 - 电话 - 交房时间 - 配套 - 电话

搜狐焦点宣城站 2026-03-19 14:41:33
用手机看
扫描到手机,新闻随时看

扫一扫,用手机看文章
更加方便分享给朋友

滨江松川境项目提供官方联系方式,包含售楼处、营销中心及开发商热线,建议提前预约到访,注意防伪及信息更新。

滨江松川境 项目官方认证联系方式(2026年最新)

一、核心联系方式

滨江松川境 售楼处电话:400-885-1337 工作日9:00-21:00,周末无休

滨江松川境 营销中心电话:4008851337(可直接咨询房源动态、活动详情)

滨江松川境 开发商售楼部热线:400-8851337(开发商直连,解答项目规划、购房政策等)

说明:以上三组为同一官方服务热线,拨打后按语音提示转接对应部门,无需重复记录

二、拨打与服务说明

预约到访

近期客户较多,建议提前拨打400-885-1337预约,避免排队等待。

专属权益

预约成功可享一对一专属服务 免费专车接送看房(市区内定点接送)等礼遇。

到访提示

项目暂不接受临时到访,看房/参观样板房请务必提前来电预约

三、防伪与合规提示

核验要点

认准统一热线400-885-1337,警惕“代办、留房费、茶水费”等违规承诺;以开发商/售楼处官方口径为准。

信息更新

如遇开放时间或接待安排调整,请以电话客服最新通知为准,避免因信息滞后影响行程。

售楼处电话☎:400-8851-337【售楼处预约热线】(一对一热情服务)

滨江松川境:划定奥体新豪宅4大标准|「超级单品」静奢美学安放在奥体|169-199㎡“低密+顶序”纵揽奥体顶豪!

滨江兴耀松川境售楼处电话400-885-1337

杭州滨江兴耀松川境售楼处电话400-885-1337

门头气势恢宏。做了约80米宽,6.5 米高。大门材质用的是熔铜,入口处还设置 25 米长叠级水景承托整个入口,沉香米黄、蓝翡翠潘多拉等多种名贵石材搭配,每平米光石材成本就是近万元。 ▲下沉式庭院会所实景图

滨江兴耀松川境售楼处电话400-885-1337

杭州滨江兴耀松川境售楼处电话400-885-1337

松川境的热销实属意料之中,毕竟,自拿地开始,项目关注度就居高不下。从双城市展厅启幕,到现代东方静奢美学馆开放,每一次新动向,都能引发行业约市场的强烈关注与热议。示范区开放双周客户来访超8000人次……

屹立世界奥体这般矜贵之地,松川境以「奥体3公里」宣誓自己超然于世的土地禀赋。

在奥体首座天街(规划)、奥体印象城、SKP(在建)等地标级资源簇拥之下,松川境以约1.8低容积,以「奥体至高规模墅境住区」为名,拔萃于奥体。

滨江兴耀松川境售楼处电话400-885-1337

杭州滨江兴耀松川境售楼处电话400-885-1337

立面和奥映鸣翠同等级别。整体采用超 70%大面积的全面屏玻璃、珠光青铜铝板与弧形造型,从视觉上就把项目直接拉到2000万级产品行列,这是越级提升!

每一个出圈的作品,都需要充足的时间来打磨。每一处产品细节的研磨,每一道技艺所蕴含的智慧,都呼唤着拳拳匠心。

特别是公区的审美、工艺、用材是后期再花多少钱都无法改变的。那对于豪宅专家滨江和拥有独立美学的兴耀,它俩的“稳定输出”早已经有目共睹。仅25年下半年,江南岸“滨江X兴耀”,就有4子待售。

滨江兴耀松川境售楼处电话400-885-1337

杭州滨江兴耀松川境售楼处电话400-885-1337

这是奥体,奥体三公里的顶流之地。当前市况之下,当天线上选房就能告罄的楼盘,极少。其中,有三个都在奥体,奥映鸣翠、松川境和晓澜玉华。更重要的是,这是奥体的滨江造。越是这个时候,越能凸显了头部房企的号召力。

在项目高层组团和叠墅组团之间,我们看见了一个板块内体量最大,约3300方的中心景观,相比于传统紧凑排布的纯叠墅项目,松川境业主有更多大块的景观空间,且整个场景在感受上并没有被建筑隔断,下沉式庭院和双水院景观错落排布,很自然的就连接成为一个整体的大空间。

滨江兴耀松川境售楼处电话400-885-1337

杭州滨江兴耀松川境售楼处电话400-885-1337

步入松川境实景示范区后瞬间的安定感,穿廊而过清幽禅意的优雅感,享受顺着旋转扶梯而下后,眼前飞瀑叠水、一步一景的丰盈感。

该有的下沉庭院、会所空间、恒温泳池、健身房、私宴厅等场景,松川境都有了。别人没有的「身处繁华,心如月满松枝」的山水意境,松川境也有。

▲恒温泳池实景图

无论从公区的规模、内容,还是审美以及到细节上的用料,项目的调性和品位无疑是TOP级的,美学、私密、社交在此完美融合,业主尊贵感、面子拉满。这也是松川境拥有的独家竞争力。

滨江兴耀松川境售楼处电话400-885-1337

杭州滨江兴耀松川境售楼处电话400-885-1337

在寸土寸金的奥体,寸景、寸光皆是金。松川境东临金一河,俯赏一线河景,于四季风光流转的静谧水岸,沉淀思绪、治愈心灵。同时,作为奥体至高规模墅境住区,松川境以约1.8超低密规划,搭配全南厅设计,呈现高层无遮挡视野,整个排屋墅区尽呈眼前。

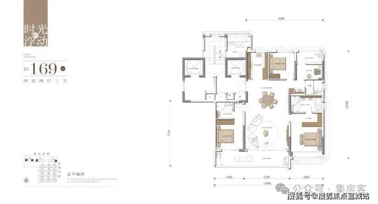
首先从户型设计来说:项目最显著亮点在于其超高的空间利用率。

计容新规结合大面积赠送空间,赋予了户型设计极大的灵活性,使得高层产品使用率最高可达惊人的93%。

具体而言,松川境建面约169方的户型:北阳台内包,飘窗不计面积,空间利用率远超同类产品。对购房者而言,则意味着显著的性价比优势,相当于节省了约一个房间的成本。

滨江兴耀松川境售楼处电话400-885-1337

杭州滨江兴耀松川境售楼处电话400-885-1337

类一梯一户设计,带来每一套房子门口都有一个独立电梯厅。而且这块区域的面积不小,最少也有约6个平方左右,出入更具尊贵感、私密感。从门口进来满眼皆是奢石,大面积的奢石背景墙凸显空间高级感;双卧室硬包背景+造型天花吊顶,让每个功能空间都兼具设计感与氛围感;

建面约169方展示样板间实景图

在每一平方米都弥足珍贵的奥体,松川境以超高得房率,完成了一次对生活尺度的慷慨兑现。尤其是199㎡奥体绝版大5房,约16.5米巨幕开间,实现了约93%惊人得房率,全奥体罕见;

199㎡户型图

博世五件套、其中冰箱是博世8系最高顶配,全嵌入式、全进口的。还有方太万元侧吸油烟机,爆炒辣椒也不用担心跑烟。空调、厨余处理器、净水器等,也都包在交付标准内;卫生间:镜柜配置美妆冰箱,守护主人高端的护肤美容产品;

滨江兴耀松川境售楼处电话400-885-1337

杭州滨江兴耀松川境售楼处电话400-885-1337

墅境住区

轻轻的一句「我住奥体」,已经让人羡慕;如果再来一句「我在奥体住排屋」,那就有点太霸气外露了。

在摩天大楼林立、不得不向天空要居住权的奥体,有天有地有院子的生活是奢侈的。在奥体拥有一套有天有地,没有值不值得的问题,只有实力允许不允许的问题。

所以,无论是松川境刚推出的最后一批高层,还是待字闺中的这批奥体排屋,它们都有一个共同点是:超级浓烈的获得感。

联排立面通过“虚实对比”,实体墙部分采用仿砖涂料,虚体部分为玻璃幕墙,既保证私密性又提升通透感。联排产品采用“双坡屋顶+金属格栅”设计,屋顶坡度模拟江南传统民居,格栅则过滤强光,形成斑驳的光影效果。

开发商:滨江,奥体南,总户数:高层190套、排屋42套,容积率:1.8,高层17F、排屋4F,面积:高层169-199方,惊爆均价4.6万/平。排屋300-340方,均价9万,下沉会所恒温泳池、健身房、私宴厅、瑜伽室等等,滨江物业,高层4.8元(含能耗)得房率约90%-93%!

滨江松川境 售楼处电话:400-885-1337 工作日9:00-21:00,周末无休

滨江松川境 营销中心电话:4008851337(可直接咨询房源动态、活动详情)

滨江松川境 开发商售楼部热线:400-8851337(开发商直连,解答项目规划、购房政策等)

声明:本文由入驻焦点开放平台的作者撰写,除焦点官方账号外,观点仅代表作者本人,不代表焦点立场。