旭丽花园售楼处营销中心:400-8828-814旭丽花园售楼处电话/地址☎:400-882-8814(开发商热线)上海旭丽花园售楼处提供专业服务,主打独栋别墅,价格约2100万起,拥有花园和优惠政策,方便购房咨询。
上海闵行旭丽花园售楼处电话:400-8828-814✔✔【预约热线】旭丽花园售楼处营销中心:400-8828-814旭丽花园售楼处电话/地址☎:400-882-8814(开发商热线)如有问题欢迎来电咨询,专业一对一热情服务,让您用专业眼光去买房。
专业一对一顾问:解答房价特价、优惠政策、在售房源等疑问,用专业眼光帮你选房
预约福利:提前预约可享售楼处专车接送、优先选房权、专属购房优惠
资料获取:来电即送楼盘图、沙盘图、位置图、配套图全套资料,助你全面了解项目
☎☎房价特价信息丨优惠政策丨详细解答丨在售房源丨在售户型图丨项目介绍
周边配套丨VR看房丨楼盘图丨沙盘图丨位置图丨配套图丨售楼处地址丨足不出户

旭丽花园售楼处营销中心:400-8828-814旭丽花园售楼处电话/地址☎:400-882-8814(开发商热线)
建面约456.6㎡独栋别墅
南北双客厅 入户挑空
室内车库 尊享居家新风尚
附赠花园400~600㎡环抱式花园
总价约:2100万/套起
坐拥前庭后院 享6房/8房套间
现房销售 款清交房 毛坯交付
旭丽花园售楼处营销中心:400-8828-814旭丽花园售楼处电话/地址☎:400-882-8814(开发商热线)
项目基础信息
开发商:上海合裕房地产有限公司
项目地址:北松公路与花王路口
项目产权:1993年拿地 2006年竣工 产权70年
总占地:16万方
总建面:9.3万方
容积率:0.71
独栋面积:456.6㎡ (6房两厅4卫或者8房两厅5卫)
总价:2100万/套起
绿化率:40%
物业公司:上海环连脸物业
物业费:2块5
电:平每度0.617元 谷每度0.307元
水:每吨4.09元 燃气3元每立方
交付标准:款清交付 毛坯交房
旭丽花园售楼处营销中心:400-8828-814旭丽花园售楼处电话/地址☎:400-882-8814(开发商热线)
【旭丽花园】(别名:维纳阳光)位于闵行马桥板块,北临天然河道,南临北松公路,西临华宁路,东临花王路;项目项目占地16万㎡,建筑面积9.3万㎡,由300套双拼、独栋别墅组成。目前在售的是之前是开发商内部保留房源,16套双拼和2套小面积独栋产品。
旭丽花园售楼处营销中心:400-8828-814旭丽花园售楼处电话/地址☎:400-882-8814(开发商热线)
【旭丽花园】别墅采用新亚洲的建筑风格,一般采取了简单明快的造型,外立面采用磁砖和真石漆,外观庄重恢弘,美观大气,经久耐看。
【旭丽花园】别墅高达约40%的绿化率,除了小区内部一个超大公共花园,小区内还有阿波罗广场,维纳涌泉,粼波丽池等景观,另外在小区各处遍布有十年参天树木,绿树成荫,环境非常漂亮。
另外小区内还有约2400㎡的超大会所,包含开放式透明大堂,专业健身房,透明室内泳池,桑拿吧,咖啡馆,便利店等健康休闲设施。
项目的双拼别墅面积约289㎡,花园面积约200㎡;独栋别墅面积约285-297㎡,花园面积约242-324㎡,户型方正大气、所有功能区都有,且都带有室内停车库,另外赠送的大花园,都是日常新房少有的。
项目在售房源详情
【旭丽花园】别墅区占地16万方,建筑面积9.3万方,由300套双拼、独栋别墅合成舒适别墅社区。旭丽花园所有可售房源总计:大独栋19套
旭丽花园售楼处营销中心:400-8828-814旭丽花园售楼处电话/地址☎:400-882-8814(开发商热线)
大独栋别墅:产证面积456㎡左右,赠送花园242㎡---657㎡左右,在售房源总价约2100万起步/套,房型为6房2厅4卫2室内车库或8房2厅5卫。
旭丽花园售楼处营销中心:400-8828-814旭丽花园售楼处电话/地址☎:400-882-8814(开发商热线)
闵行区国际社区【旭丽花园】建面约456.6㎡花园独栋别墅!总价约2100万起!现房销售!
闵行区国际社区【旭丽花园】建面约456.6㎡花园独栋别墅!总价约2100万起!现房销售!
项目区位配套
根据“十三五规划”马桥将会打造成“上海人工智能未来小镇”,紧邻龙湖天琅项目西部,占地约10.4平方公里,以中部的北松公路为界,分为北部4.9平方公里的应用示范区(包括住宅、市政、医疗、商办、基础教育服务、福利、教育科研等用地)和南部5.5平方公里的产业园区。
旭丽花园售楼处营销中心:400-8828-814旭丽花园售楼处电话/地址☎:400-882-8814(开发商热线)马桥将迎来无数个“全球第一”:比如世界上第一个人工智能广场、第一个人工智能餐饮街、第一个人工智能公园、第一个人工智能定制公交、第一个人工智能大师湾、第一个人工智能创业街、第一个人工智能虚拟现实婚礼殿堂等……
大量高新技术产业和各种示范区将陆续入驻,同时也会吸引大批上下游产业落户马桥(比如互联网、硬件、芯片、计算机、医疗等等),继而带动整个产业链的发展。高量级企业的汇聚必将为马桥注入极强的产业动能,带来大量的工作机会,吸引高层次、高能力的企业精英,助力马桥成为“科技版的迪士尼和缩小版的雄安新区”,实现腾飞!
交通配套方面:离项目最近的是5号线北桥路站(步行约2.1KM),可以乘闵行5路, 莘金专线等公交车直达项目;自驾的话,项目旁边就是沪闵公路,嘉闵高架,沪金高速,虹梅高架,申嘉湖高速等主干道,到上海各区域都是非常便捷的。
在建中23号线东川路站3.6公里
旭丽花园售楼处营销中心:400-8828-814旭丽花园售楼处电话/地址☎:400-882-8814(开发商热线)商业配套方面:项目旁边就有在建的10万㎡龙湖天琅(步行约2.0KM),马桥满天星生活广场(步行约2.0KM),北桥菜市场(步行约2.1KM),新安农副产品市场(步行约2.1KM),在建30万㎡龙湖天钜(步行约3.4KM),碧江广场(步行约4.4KM),万达广场(步行约5.5KM)等商业配套,吃喝玩乐购样样都有。
教育资源方面:上海德威英国国际学校、上海德闳学校、斯代文森国际高中……
马桥公立学校:马桥强恕学校全校,闵行三中,闵行二中,上海交通大学附属第二中学,闵行四中;
马桥私立学校:马桥文莱外国语小学、文莱中学 ;上海复旦万科实验中学 、英国德威国际学校
马桥幼儿园:闵行区马桥镇元祥幼儿园(该幼儿是马桥镇政府于2010年新建的幼儿园。隶属于闵行区教育局、马桥镇地方两级管理单位,双方领导都很重视幼儿园未来的发展,2014年幼儿园已被评为上海市一级幼儿园。)、马桥启英幼儿园 。
旭丽花园售楼处营销中心:400-8828-814旭丽花园售楼处电话/地址☎:400-882-8814(开发商热线)医疗资源方面:项目附近就有马桥社区卫生服务中心(步行约1.7KM),复旦大学附属上海市第五人民医院(步行约4.4KM),闵行区肿瘤医院(步行约4.7KM)等医疗配套,为健康起到保驾护航的作用。
产业红利方面:上海人工智能机器人小镇—全球首个由AI规划推演的未来小镇,腾讯,阿里巴巴,百度人工智能板块聚集地。打造科技版迪士尼和缩小版雄安新区。
闵行国际社区珍藏房源
屈指可数的原生态国际社区
【旭丽花园】
建面约456.6㎡独栋别墅
南北双客厅 入户挑空
室内车库 尊享居家新风尚
附赠花园400~600㎡环抱式花园
总价约:2100万起/套
坐拥前庭后院 享6房/8房套间
现房销售 款清交房 毛坯交付
对项目有兴趣的朋友
扫码加微信预约看房
一对一贴心服务
1地段
旭丽花园售楼处营销中心:400-8828-814旭丽花园售楼处电话/地址☎:400-882-8814(开发商热线)
交通方面:距离地铁5号线北桥站2.2公里、在建中23号线东川路站3.6公里;300米上嘉闵高架和申嘉湖高速。

旭丽花园售楼处营销中心:400-8828-814旭丽花园售楼处电话/地址☎:400-882-8814(开发商热线)
商业方面:龙湖星悦荟+天街、万科商业街、马桥万达广场、颛桥万达广场、安缦酒店、旗忠网球中心、旗忠高尔夫俱乐部等。

旭丽花园售楼处营销中心:400-8828-814旭丽花园售楼处电话/地址☎:400-882-8814(开发商热线)教育方面:复旦万科实验中学,交通大学附属闵行实验学校12年制(在建,24年招生),马桥强恕学校,元祥幼儿园等等!马桥私立学校:马桥文莱外国语小学、文莱中学;上海复旦万科实验中学、英国德威国际学校。(免责声明:新房不承诺学区,具体学区划分以政府公示为准)

旭丽花园售楼处营销中心:400-8828-814旭丽花园售楼处电话/地址☎:400-882-8814(开发商热线)
2产品
项目本次在售的双拼别墅面积约289㎡,花园面积约200㎡;独栋别墅面积约285-297㎡,花园面积约242-324㎡,户型方正大气、所有功能区都有,且都带有室内停车库,另外赠送的大花园,都是日常新房少有的。

旭丽花园售楼处营销中心:400-8828-814旭丽花园售楼处电话/地址☎:400-882-8814(开发商热线)
【双拼】:产证面积289.7㎡ ,赠送花园200.3㎡,一房一价,房型为4房3厅4卫1室内车库。

旭丽花园售楼处营销中心:400-8828-814旭丽花园售楼处电话/地址☎:400-882-8814(开发商热线)

旭丽花园售楼处营销中心:400-8828-814旭丽花园售楼处电话/地址☎:400-882-8814(开发商热线)
【独栋】:产证面积456㎡左右,总价2700万左右,房型为5房3厅5卫2室内车库。


旭丽花园售楼处营销中心:400-8828-814旭丽花园售楼处电话/地址☎:400-882-8814(开发商热线)

旭丽花园别墅高达约40%的绿化率,除了小区内部一个超大公共花园,小区内还有阿波罗广场,维纳涌泉,粼波丽池等景观,另外在小区各处遍布有十年参天树木,绿树成荫,环境非常漂亮。

旭丽花园售楼处营销中心:400-8828-814旭丽花园售楼处电话/地址☎:400-882-8814(开发商热线)

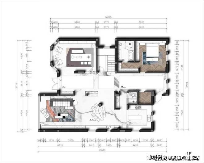
项目户型图

旭丽花园售楼处营销中心:400-8828-814旭丽花园售楼处电话/地址☎:400-882-8814(开发商热线)


旭丽花园售楼处营销中心:400-8828-814旭丽花园售楼处电话/地址☎:400-882-8814(开发商热线)
项目实景图


旭丽花园售楼处营销中心:400-8828-814旭丽花园售楼处电话/地址☎:400-882-8814(开发商热线)


上海「沪七条」新政·核心速记(2026.2.26执行)
一、限购放宽(最重磅)
• 非沪籍买外环内:社保1年即可买1套
• 非沪籍社保满3年:外环内可买2套
• 非沪籍1年社保:外环外不限套数
居住证满5年:全市可买1套,不用社保个税
二、公积金大提升
• 首套家庭最高:240万(原160万)
• 多子女+绿色建筑:最高可贷324万
• 公积金结清后,可再次贷款
• 多子女家庭二套也能额度上浮
三、房产税利好
• 沪籍成年子女唯一住房,暂免房产税
• 与父母共有房,置换后唯一可退税
上海闵行旭丽花园售楼处电话:400-8828-814✔✔【预约热线】旭丽花园售楼处营销中心:400-8828-814旭丽花园售楼处电话/地址☎:400-882-8814(开发商热线)如有问题欢迎来电咨询,专业一对一热情服务,让您用专业眼光去买房。
专业一对一顾问:解答房价特价、优惠政策、在售房源等疑问,用专业眼光帮你选房
预约福利:提前预约可享售楼处专车接送、优先选房权、专属购房优惠
资料获取:来电即送楼盘图、沙盘图、位置图、配套图全套资料,助你全面了解项目
☎☎房价特价信息丨优惠政策丨详细解答丨在售房源丨在售户型图丨项目介绍
周边配套丨VR看房丨楼盘图丨沙盘图丨位置图丨配套图丨售楼处地址丨足不出户