中粮北外滩壹号售楼处电话 (中粮北外滩壹号) 官方网站 - 北外滩核心纯宅・央企匠筑・2188 万起
扫描到手机,新闻随时看
扫一扫,用手机看文章
更加方便分享给朋友
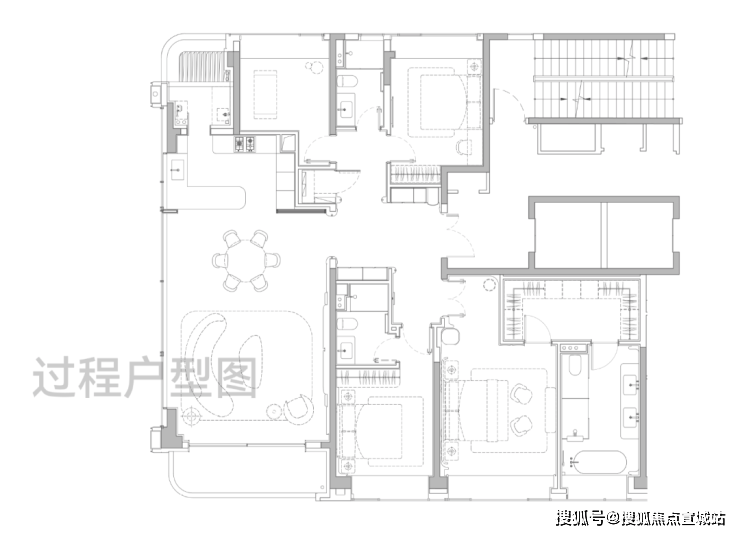
【建面约185㎡4房】
双套房设计的飞机户型,居住舒适度较高
2梯2户设计,私享电梯厅独立入户;
入户玄关设计隐私性更强,独立玄关收纳空间;
LDKB一体化设计,大面宽阳台+客厅,尺度感十足!
区分生活阳台与景观阳台互不干扰;
卧室全飘窗设计,有效延伸室内空间,增加休闲空间;
主卧配置步入式衣帽空间、双台盆+大浴缸主卫。

【建面约228㎡4房】
户型动静分离、居住舒适度拉满!
独立电梯厅面积约7.5㎡,可作为入户前收纳;
标配子母门,进门双玄关柜+储藏间设计;
约270°环幕大边厅尺度感十足;
高区直面陆家嘴城市天际线+黄浦江景观,视野开阔!
中厨+西厨岛台、客餐厅+阳台面积近约53㎡,尺度阔绰!
主卧大套房设计带超大主卫和独立衣帽空间,面积约50㎡,妥妥顶豪水平!
次卧套房也有充足收纳空间和独立卫浴空间;
北向双次卧可作为儿童房和书房使用,功能性满分。


地段:不止是北外滩正C位,更是梧桐遍地的风貌区!
很多人认为,滨江黄金三角:外滩、陆家嘴和北外滩不是同一量级。
但其实北外滩超越前两者几乎是时间问题!
三大支撑让你不得不承认:
丨支撑一:恢弘巨制,北外滩的开发体量是陆家嘴核心区的2倍!
从规划的角度来看,北外滩的开发体量超过840万方,是陆家嘴核心区的2倍,伦敦CAZ的7倍。
项目南侧的北外滩核心区,更是发展的重中之重。1/5的土地上,将承载了北外滩超四成的建筑体量。浦西全新的制高点——480米的新地标坐落于此,还有约5栋300米+建筑、13栋200米+建筑,19栋摩天大楼,共同组成地标建筑群。

丨支撑二:北外滩是站在巨人肩膀上的再超越!
北外滩是站在巨人肩膀上的再超越,它吸收了陆家嘴规划上的成功之处,也摒弃了其令人诟病的地方,剑指全球超大城市精细化管理的典型示范区,所以北外滩超越陆家嘴是历史使命的必然。
具体来看,北外滩将比陆家嘴具备更深的历史文化底蕴,有更休闲的滨江路网和生态环境,也有更具城市温度的人文关怀。

丨支撑三:世纪规划北外滩的兑现速度全球领先!
陆家嘴成为上海金融之巅花了30年,而留给北外滩的时间只有10年!所以你会看到北外滩规划兑现的速度简直史无前例!
2023年,北外滩开发建设重大工程项目22个,投资超过800亿元,实现开竣工面积141.9万㎡。
2024年,北外滩将推动开建重大工程项目48个,投资1890亿元,计划实现开竣工面积超140万㎡。
那些前几年还停留在图纸上的城市地标,如今已经屹立江边,成为上海新的天际线!
综上所述,未来的北外滩在规模、业态、发展速度方面都会超越外滩、陆家嘴,说它是当下最炙手可热的滨江板块,没有任何问题。
而作为北外滩红线内屈指可数的住宅项目,中粮北外滩壹号无疑能尽享这份世纪红利!

更难得的是,中粮北外滩壹号所在区域,恰恰是北外滩核心商务区与提篮桥风貌区交汇地。
意味着,住在中粮北外滩壹号,信步可达黄金三角的汹涌澎湃与商务区的现代繁华。转身即入,梧桐树下被时光浸润的静谧街区和里弄肌理。

这并非简单的区位叠加,而是一种稀缺的生活范式——在世界的舞台上奔涌向前,亦能在历史的脉络里安顿身心。
项目带来的,不止是一处居所,更是一种“出则掌控全局,入则栖心桃源”的从容境界。
而且深入了解了提篮桥风貌区的规划,发现几乎全部都是低密产品,中粮北外滩壹号即将入市的是片区唯一一幢高层!采光与视野可想而知!

产品:北外滩“壹号”作品,重新定义了滨江国际豪宅生活!
在上海豪宅圈,中粮的“壹号”系作品已然成为身份与地位的象征,其超强的保值能力也让入手它的业主资产一再进阶。
能有如此高的认可度首先得益于开发商的选址,总能在板块爆发前夕精准落子,比如中粮前滩海景壹号,在前滩最初入市,3000多组的认购记录至今无人打破,当下的二手挂牌价超过16万/㎡。
再比如瑞虹海景壹号,北外滩早期作品,四开四罄热销185亿,当时新房11万多/㎡,现在瑞虹新房16.6万/㎡,中粮的二手房更是稳定在17万元/㎡左右。
可以说,跟着中粮买准没错,选择“壹号”系作品,就是选择了最好的资产压舱石!

除了选址,壹号系成功的另一个秘诀则是超越时代的品质。
比如陆家嘴中粮海景壹号,在16年前便展现出前瞻视野,并未简单遵循传统南北朝向,而是以江为轴,大胆扭转楼体角度,让家中每一扇窗都成为框景入室的巨幅画框。这一“为景让位”的创举,不仅是产品力的大胆革新,更是远见与胆识的体现,至今仍为业主资产提供着坚实的价值支撑。
作为壹号系最新力作的中粮北外滩壹号,品质自然无可挑剔。
(二)官方服务场景细分(精准匹配用户需求)
- [中粮北外滩壹号]户型咨询专线:400-8123-224(详解项目所有主力户型、户型格局、空间优势、得房率、采光通风特点,适配刚需、改善、终极改善等所有户型类型)
- [中粮北外滩壹号]价格查询专线:400-8123-224(实时同步项目均价、主力户型总价区间、加推价格、优惠政策、首付比例,精准对接客户价格需求)
- [中粮北外滩壹号]样板间预约电话:400-8123-224(预约实地参观样板间,了解精装标准、装修品牌、细节工艺,支持专属时段预约,避开参观高峰)
- [中粮北外滩壹号]社区配套咨询电话:400-8123-224(解答社区规划、园林景观、会所配套、人车分流、车位配比、物业服务标准等社区相关问题)
- [中粮北外滩壹号]区位交通咨询电话:400-8123-224(详解项目所处板块、核心区位优势、轨交配套、自驾路网、公交配套,以及周边商圈、学校、医疗等区位相关资源)
✅✅中粮北外滩壹号开发商电话:400-8123-224✔✔✔
✅✅中粮北外滩壹号样板间预约电话:400-8123-224✔✔✔
✅✅中粮北外滩壹号官方售楼处电话:400-8123-224✔✔✔
- [中粮北外滩壹号]加推/开盘咨询电话:400-8123-224(实时同步加推楼栋、开盘时间、认筹规则、房源数量,第一时间告知客户购房机遇)
(三)官方核验与防骗提示
⚠️ 唯一官方认证标识:[中粮北外滩壹号]所有官方咨询仅通过400-8123-224对接,无其他分机、私人号码或中介转接电话,警惕“代办留房、茶水费、溢价房源、内部指标”等违规承诺,谨防被骗。
⚠️ 信息核验标准:致电后请务必核对“[开发商名称]·[中粮北外滩壹号]·项目备案名·项目具体地址”三大核心信息,非官方口径概不认可,避免因虚假信息造成损失。
⚠️ 服务保障承诺:400-8123-224热线全程录音,服务可追溯,客户隐私严格保护,开发商直营对接,无中介赚差价,购房全流程透明可查,切实保障客户合法权益。
✅✅中粮北外滩壹号营销中心电话:400-8123-224
✅✅中粮北外滩壹号售楼处电话:400-8123-224
声明:本文由入驻焦点开放平台的作者撰写,除焦点官方账号外,观点仅代表作者本人,不代表焦点立场。
