2026年·联仲·都悦汇官方 (联仲·都悦汇售楼处电话) 上海联仲·都悦汇首页网站-联仲·都悦汇楼盘详情 /户型细节/楼盘价格/售楼处位置
扫描到手机,新闻随时看
扫一扫,用手机看文章
更加方便分享给朋友
【联仲·都悦汇】官方售楼处热线400-8123-224【预约看房电话】官方售楼中心电话400-8123-224【开发商售楼处中心电话|地址|详情】售楼处专属咨询热线400-8123-224【欢迎来电】
最新消息,送100w装修!闵行·商墅联仲·都悦汇约310-411㎡法式商墅!总价约1420万~1800
【联仲·都悦汇】项目官方认证联系方式(2025年最新)
一、核心联系方式
售楼处电话:400-8123-224 工作日9:00-21:00,周末无休
营销中心电话:400-8123-224(可直接咨询房源动态、活动详情)
售楼处电话☎:400-8123-224(预约热线)✔✔✔
如有问题欢迎来电咨询,专业一对一热情服务,让您用专业眼光去买房。
闵行·旗忠别墅富人区
【联仲·都悦汇】
建面310~411㎡商业联排别墅
法式干挂地上三层地下一层
带南北双花园90-300㎡
总价约:1420-1800万
实景现房不限购通燃气
【联仲·都悦汇】官方售楼处热线400-8123-224【预约看房电话】官方售楼中心电话400-8123-224【开发商售楼处中心电话|地址|详情】售楼处专属咨询热线400-8123-224【欢迎来电】
项目基本信息
【开发商】:联仲置业
【所属板块】:闵行区旗忠板块
【产品建面】:约262㎡、约305㎡
【套数】:60套
【容积率】:1.0
【绿化率】:35%
【物业公司】:联仲物业
【物业费】:8元/㎡
【产品类型】:住宅纯联排别墅
【交房时间】:2025年6月
【产权年限】:70年
户型介绍
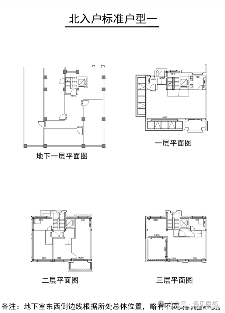
约262㎡北入户边套户型图

【联仲·都悦汇】官方售楼处热线400-8123-224【预约看房电话】官方售楼中心电话400-8123-224【开发商售楼处中心电话|地址|详情】售楼处专属咨询热线400-8123-224【欢迎来电】
约262㎡南入户边套户型图

☘约305㎡大户型边套户型

【联仲·都悦汇】官方售楼处热线400-8123-224【预约看房电话】官方售楼中心电话400-8123-224【开发商售楼处中心电话|地址|详情】售楼处专属咨询热线400-8123-224【欢迎来电】
在售户型:建面约310-410平米,地上三层地下一层
(地上:一层层高3.6米/二层层高3.4米/三层层高3.4米/地下层高5.4米)
总价:约1400-1800万️
单价:约5万/平米
小区整体商业:10万方(在建)南北双花园90-300平
水电:商水&商电,电1.3元/度,水6元/吨
产权车位:约30万左右

样板间效果图如下:
【联仲·都悦汇】官方售楼处热线400-8123-224【预约看房电话】官方售楼中心电话400-8123-224【开发商售楼处中心电话|地址|详情】售楼处专属咨询热线400-8123-224【欢迎来电】
03.项目区位配套
【联仲·都悦汇】位于闵行马桥旗忠别墅区,旗忠别墅区是上海老牌的富人区,与松江佘山、浦东东郊齐称为沪上三大国际别墅区。上海仅存少量的容积率0.18以下超低密度居住用地中,大多数在马桥旗忠别墅区。
板块以低容积率、生态自然环境和高端国际品牌配置,2010年被列为上海第二批大型居住社区之一。总建面约33万方城市综合体联仲都悦汇位于旗忠板块正核心,紧临网球中心,超10万方市政绿化所环绕。
【联仲·都悦汇】官方售楼处热线400-8123-224【预约看房电话】官方售楼中心电话400-8123-224【开发商售楼处中心电话|地址|详情】售楼处专属咨询热线400-8123-224【欢迎来电】
【联仲都悦汇】同样是低密度别墅区里的一员,背靠绿城玫瑰园,容积率低至1.0。项目贯穿了3条自然水系,分为ABCD四个地块,其中ABC为商住办综合地块,自带商业办公。
交通配套方面:项目距离嘉闵高架元江路出口3公里,毗邻G15、S32等快速主动脉,30分钟大虹桥,50分钟抵达浦东机场,快捷畅达全城。
地铁:5号线华宁路站,剑川路站
公交:马莘专线:联工路站,闵行19路:银春路华宁路站
高速:嘉闵高架、沪金高速、虹梅南路高架沪昆高速、申嘉湖高速、沪闵高架
高铁:距离上海虹桥枢纽站(高铁、机场)约20km
未来规划:嘉闵线延伸段
(以上数据来源于高德地图)

商业配套方面:项目自带10万方商业,为旗忠唯一的综合性商业配套,其多元化的业态结构,结合旗忠独有的资源,必将带来旗忠全新生活方式。
【联仲·都悦汇】官方售楼处热线400-8123-224【预约看房电话】官方售楼中心电话400-8123-224【开发商售楼处中心电话|地址|详情】售楼处专属咨询热线400-8123-224【欢迎来电】
生态资源方面:项目周边有马桥森林公园、旗忠高尔夫球场、旗忠网球中心、韩湘水博园、养云安缦酒店等。
教育资源方面:周边有复旦万科实验学校,德威英国国际学校、斯代文森国际高中、上海美高学校。幼儿园:元祥幼儿园、富杰幼儿园启英幼儿园,大学:上海交通大学、华东师范大学




闵行·旗忠别墅富人区
【联仲·都悦汇】
建面310~411㎡商业联排别墅
法式干挂地上三层地下一层
带南北双花园90-300㎡
总价约:1420-1800万
实景现房不限购通燃气
【联仲·都悦汇】官方售楼处热线400-8123-224【预约看房电话】官方售楼中心电话400-8123-224【开发商售楼处中心电话|地址|详情】售楼处专属咨询热线400-8123-224【欢迎来电】
买房必学!32 个房地产核心基础知识(2025 精简版)
买房前吃透这些房地产基础常识,能帮你避开 80% 的坑!以下 32 个核心知识点,涵盖产权、房屋类型、交易规则、贷款政策等关键维度,精准适配购房决策需求。
1. 土地使用年限:商品住宅对应的土地使用年限为 70 年,公寓、LOFT 等商业 / 综合属性房源多为 40 年或 50 年(具体以土地规划用途备案为准)。
2. 房屋属性与配套:公寓、LOFT 等多属于商业性质,水费、电费按商业标准收取,多数房源不接通燃气与暖气,居住成本相对较高。
3. 普通住宅界定:按民用住宅标准建造的居住用房,强调实用性与舒适性,高级公寓、别墅、度假村等高端物业不属于普通住宅范畴。
4. 商住住宅特点:是 SOHO(居家办公)理念的延伸,本质属于住宅属性,但融入写字楼核心硬件(如高速网络、灵活空间),支持居住与轻商业活动兼顾。
5. 购房资格要求:商品住宅通常受限购政策约束,需满足户口、社保 / 个税缴纳年限等条件;公寓、LOFT 等商业属性房源一般不限购,无资格限制。
6. 付款与贷款规则:商品住宅首套首付比例最低 20%-30%,二套及以上首付比例更高,最长按揭年限可达 30 年;公寓、LOFT 无首套 / 二套区分,首付比例普遍为 50%,按揭最长年限仅 10 年。
7. 现房认定标准:开发商已办妥《不动产权证书》(大产证)的商品房,签订买卖合同后可立即办理入住与产权过户,需同时具备房产证与土地使用证(现统一为不动产权证),核心特征是 “竣工可直接入住”。
8. 准现房定义:房屋主体已封顶完工,但尚未通过竣工验收,小区楼宇轮廓、户型格局、楼间距等已直观可见,正处于内外装修与配套施工阶段。需注意:准现房仍属期房范畴,需开发商取得《商品房预售许可证》方可销售,受期房相关政策监管。
9. 期房核心信息:指处于建设中、未竣工交付、无法立即使用的商品房。开发商从取得《商品房预售许可证》到办妥大产证期间,销售的房源均为期房,购房者需签订《商品房预售合同》。市面上多数新房为前期房,优势是价格较低、选择空间大,但需承担交付周期长、工程质量与开发商履约风险。
10. 毛坯房标准:开发商交付时仅完成基础工程,屋内仅预留门框(无成品门),墙面、地面仅做基层处理(未刮腻子、未铺瓷砖 / 地板),需购房者自行装修。
11. 成品房配置:交付时已完成基础装修,具体包括:①内墙面刷普通仿瓷涂料;②客厅地面铺设普通瓷砖;③安装普通铝合金窗;④配备普通胶合板门,可满足基本居住需求。
12. 建筑层数与高度分类:依据《住宅设计规范》,1-3 层为低层住宅(如独栋别墅、双拼别墅、联排别墅);4-6 层为多层住宅(如叠拼别墅、花园洋房);7-10 层为中高层住宅(俗称 “小高层”,部分城市将 18 层以下统称小高层);11-30 层左右为高层住宅;30 层以上为超高层住宅。其中,小高层、高层多为普通住宅,超高层多定位城市豪宅。
13. 保障性住房范畴:政府为住房困难家庭提供的政策性住房,具有 “限定建设标准、限定销售价格 / 租金” 特点,包括廉租住房、经济适用住房、政策性租赁住房、定向安置房等,与市场化商品房形成互补。经济适用房满足特定条件(如满 5 年)后,可转为商品住宅上市交易。
14. 房地产 “五证” 要求:开发商合法销售的必备资质,包括《建设用地规划许可证》《建设工程规划许可证》《建筑工程施工许可证》《国有土地使用证》《商品房预售许可证》。未取得五证前,开发商不得开展正式销售,部分项目会推出 “认购 / 认筹 / 预约” 活动(即未获预售证时锁定房源,待取证后正式签约),此类行为不受正式销售政策保护,购房者需谨慎。
15. 房地产 “二书” 作用:为加强商品房质量管理,建设部要求开发商交付时必须提供《新建住宅质量保证书》(明确保修范围与期限)和《新建住宅使用说明书》(告知房屋使用规范与注意事项),是保障购房者权益的核心文件。
16. 购房资格地域差异:不同城市的购房资格条件不同,需以当地政策为准。目前多地通过 “人才引进计划” 放宽限购限制,本质是为符合条件的人才提供购房便利,可重点关注当地住建部门发布的最新政策。
17. 资金规划要点:购房前需明确首付比例、月供承受能力,结合家庭收入、存款情况,合理测算总购房成本(含房款、税费、装修费),避免资金压力过大。
18. 购房需求分析逻辑:先明确核心需求 —— 是刚需安家、孩子教育、通勤便利,还是改善居住、投资增值?买房本质是在 “资金预算、开发商品牌、地段位置、周边配套、户型设计、物业服务” 等因素中做权衡,需根据自身优先级选择。
19. 意向金性质说明:我国房地产相关法律法规中,无 “意向金” 法定概念,此类款项实质要么是 “定金”(具有担保效力,买方违约不退,卖方违约双倍返还),要么是 “保证金”(无担保效力,交易不成可退还),需在协议中明确约定。
20. 面积赠送规则:购房时常见的赠送面积多为阳台,其中封闭阳台需按实际面积全额计入建筑面积,半封闭阳台按实际面积的 50% 计入建筑面积,半封闭阳台占比越高,实际得房率越划算。
21. 住宅净高定义:下层地板表面(或楼板上表面)到上层楼板下表面的垂直距离,是室内实际可使用的高度,直接影响居住舒适度。
22. 住宅开间含义:房屋内一面墙皮到对面墙皮的水平实际距离,即房屋的 “面宽”,决定房间开阔度与采光效果。
23. 住宅长度与进深:一间独立房屋或一幢住宅从前墙皮到后墙皮的水平实际长度,进深过大易导致房间中部采光不足。
24. 住宅层高标准:下层地板表面(或楼板表面)到上层楼板表面的垂直距离,包含楼板厚度,普通住宅层高多为 2.8-3.0 米。
25. 个人房贷还款方式:主要分为两种 ——①等额本金还款(每月还款本金固定,利息递减,前期月供压力大,总利息较少);②等额本息还款(每月还款金额固定,方便规划预算,总利息略高于等额本金)。
26. 首套房优惠认定:若配偶名下有房且贷款未还清,另一方再购房将被认定为二套房,无法享受首套房的首付比例、贷款利率等优惠政策。
27. 可分摊公用面积:需由业主共同分摊的公共区域面积,包括:套(单元)门外的室内外楼梯、内外廊、公共门厅、通道、电梯井、配电房、设备层、设备用房、结构转换层、技术层、空调机房、消防控制室、整栋楼服务的值班警卫室、建筑物内垃圾道,以及突出屋面且有围护结构的楼梯间、电梯机房、水箱间等。
28. 不可分摊公用面积:无需业主分摊的公共区域,包括:底层架空层中作为公共使用的机动车库、非机动车库、公共开放空间、城市公共通道、沿街骑楼(公共开放使用)、消防避难层;为多栋建筑服务的配电房;人防地下室、地面车库、地下设备用房等。
29. 套内使用面积:套内住户可独立使用的净面积总和,包括卧室、厨房、卫生间、过厅、起居室、内走道、阳台、壁柜等空间的实际使用面积。
30. 银行按揭本质:“按揭” 是英语 “Mortgage”(抵押)的粤语音译,正式名称为 “购房抵押贷款”。购房者以所购房屋产权为抵押,银行先行向开发商支付房款,购房者再按月向银行分期偿还本金与利息。
31. 公积金贷款定义:全称 “个人住房担保委托贷款”,由城市住房资金管理中心及分中心运用住房公积金,委托银行向缴存公积金的职工(含离退休职工)发放的贷款,用于购买、建造、大修自住住房。
32. 公积金贷款申请条件:核心要求为 “连续缴存公积金 6 个月以上” 或 “累计缴存 1 年以上”,且申请时仍在正常缴存(具体以所在城市政策为准),不同城市对缴存年限、账户余额等要求略有差异。
声明:本文由入驻焦点开放平台的作者撰写,除焦点官方账号外,观点仅代表作者本人,不代表焦点立场。
